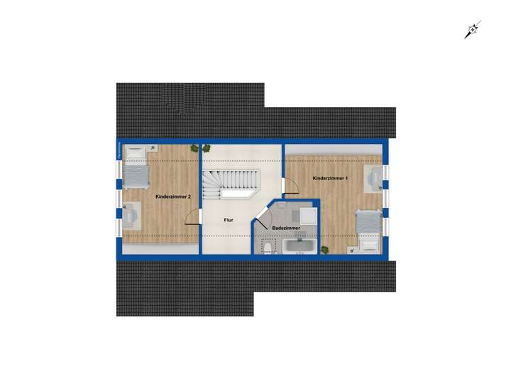
Dieses ca. 1988 errichtete Einfamilienhaus liegt in einer ruhigen und idyllischen Wohnlage in Aurich-Extum. Das Haus überzeugt mit einer gut durchdachten Raumaufteilung und einer offenen Wohnatmosphäre. Die ca. 141 m² Wohnfläche verteilen sich auf vier Wohn- und Schlafräume sowie zwei Bäder. Das lichtdurchflutete Wohn- und Esszimmer offeriert viel Platz zur freien Entfaltung und bietet einen Austritt auf die Terrasse. Von hier aus genießen Sie einen herrlichen Ausblick in den eigenen Garten. Ein Kachelofen im Wohnbereich sorgt insbesondere an kalten Tagen für wohlige Wärme. Die vollumfänglich ausgestattete Küche bietet viel Arbeits- und Staufläche und eine zusätzliche Speisekammer. Ein modernes und seniorengerechtes Tageslichtbadezimmer mit Dusche und Fußbodenerwärmung finden Sie im Erdgeschoss genauso wie ein behagliches Schlafzimmer. Abgerundet wird diese Ebene durch einen praktischen Hauswirtschaftsraum. Im Dachgeschoss erwarten Sie zwei sehr großzügig geschnittene Kinderzimmer, die Ihrem Nachwuchs viel Platz zum Schlafen und Spielen bieten. Auf dieser Ebene finden Sie auch ein weiteres Badezimmer mit Badewanne, Dusche und Fußbodenerwärmung. Das ausgebaute Nebengebäude mit einem Hobbyraum, Bad und Abstellraum offeriert Ihnen zusätzliche Nutzungsmöglichkeiten. Ein weiteres Highlight dieser Immobilie ist der besonders große und parkähnlich angelegte Garten, der Ihnen Ihren ganz besonderen eigenen Rückzugsort bietet und zum Entspannen und Verweilen einlädt. Ein Glasfaseranschluss versorgt Sie mit schnellen Internet. Abgerundet wird dieses gelungene Ensemble durch ein Gartenhaus und einen Schuppen. Ihre PKWs parken Sie bequem in Ihrer Garage oder auf einem der beiden Stellplätze.
Für weitere Informationen oder zur Abstimmung eines Besichtigungstermins stehe ich Ihnen unter der Telefonnummer 0441 200995 57 sehr gerne zur Verfügung.
Familienfreundliches Einfamilienhaus auf traumhaftem Grundstück mit Nebengebäude in Aurich-Extum
26605 Aurich
Die vollständige Adresse der Immobilie erhalten Sie vom Anbieter.
Auf Karte anzeigen
Die vollständige Adresse der Immobilie erhalten Sie vom Anbieter.
Finanzierungszertifikat
In nur zwei Minuten zu Ihrem persönlichen Finanzierungszertifkat.
Infos
| Haustyp | Einfamilienhaus |
|---|---|
| Etagenzahl | 1 |
| Wohnfläche ca. | 141 m2 |
| Grundstücksfläche | 1.719 m2 |
| Zimmer | 5 |
| Badezimmer | 3 |
| Anzahl Garage/Stellplatz | 3 |
Kosten
| Kaufpreis |
379.000 € |
|---|---|
| Preis für Garage/Stellplatz | 0 € |
| Provision |
3,57 % |
Finanzierungsrechner:
Kaufpreis:
600.000 €
Eigenkapital:
600.000 €
Monatliche Rate
0 €
Effektiver Jahreszins
0 %
Sollzinsbindung
10 Jahre
Bausubstanz & Energieausweis
| Baujahr | 1988 |
|---|---|
| Letzte Sanierung | 2020 |
| Bauphase | Haus fertig gestellt |
| Heizungsart | Gas-Heizung |
| Wesentliche Energieträger | Gas |
| Energieausweis | liegt vor |
| Energieausweistyp | Verbrauchsausweis |
| Energieverbrauchskennwert | 154,9 kWh/(m²*a) |
| Energieeffizienzklasse | E |
154,9
kWh/(m²*a)
Energieeffizienzklasse E
- A+
- A
- B
- C
- D
- E
- F
- G
- H
- 0
- 25
- 50
- 75
- 100
- 125
- 150
- 175
- 200
- 225
- >250
Beschreibung des Objekts
Lage
Dieses gepflegte Einfamilienhaus befindet sich in äußerst attraktiver Wohnlage im Auricher Ortsteil Extum, dem westlichsten Stadtteil der Stadt Aurich, der unmittelbar an die Auricher Kernstadt angrenzt. Die ruhige und familienfreundliche Wohngegend verbindet naturnahes Wohnen mit der unmittelbaren Nähe zur Innenstadt und bietet damit die perfekte Kombination aus Erholung und Alltagstauglichkeit. Extum ist bekannt für seine Nähe zu weiten Grünflächen, Feldern und Spazierwegen – ideal für Familien mit Kindern, Naturliebhaber oder Ruhesuchende. Gleichzeitig profitieren Sie von der hervorragenden Anbindung an das Stadtzentrum von Aurich, das Sie in wenigen Minuten mit dem Fahrrad, Auto oder auch zu Fuß erreichen. Hier finden Sie alle Einrichtungen des täglichen Bedarfs, darunter Supermärkte, Apotheken, Ärzte, Restaurants, Kindergärten und Schulen. Die verkehrsberuhigte Wohnlage bietet ein hohes Maß an Lebensqualität. Eine gute Anbindung an den öffentlichen Nahverkehr sowie an überregionale Verkehrsachsen sorgt dafür, dass Sie flexibel und mobil bleiben. Insgesamt bietet diese Lage alles, was man sich für ein dauerhaft angenehmes Wohnen wünscht: Ruhe, Natur und städtische Nähe – ein idealer Ort, um sich mit der Familie niederzulassen oder den Lebensabend zu genießen.
Sonstige Angaben
weitere Sonderausstattungen:
Grundriss
Grundriss Erdgeschoss
>
>
Grundriss Dachgeschoss
>
>
Grundriss Nebengebäude
>
>
Adresse
26605 Aurich
Interessante Orte
Preis- und Lageinformationen
Preistrend für Bestandsimmobilien in Aurich