Herzlich willkommen in Ihrem neuen Zuhause, das speziell für Familien und herzliche Menschen gestaltet wurde! Dieses großzügige Haus bietet nicht nur ausreichend Platz für Ihre Lieben, sondern auch eine warme und einladende Atmosphäre.
Im Erdgeschoss erwartet Sie ein geräumiges Wohnzimmer mit großen Fenstern, die viel Tageslicht hereinlassen. Die offene Küche bildet das Herz des Hauses und ist ideal für das gesellige Beisammensein. Das Esszimmer bietet Platz für gemeinsame Mahlzeiten und Feierlichkeiten.
Im Obergeschoss finden Sie die Schlafzimmer, darunter ein Hauptschlafzimmer mit eigenem Bad und begehbarem Kleiderschrank, sowie weitere Zimmer für Kinder oder Gäste. Der Garten ist ein Paradies für Aktivitäten im Freien.
Wenn Sie auf der Suche nach einem Zuhause sind, das mehr als nur vier Wände bietet – ein echtes Familienheim in einer herzlichen Nachbarschaft – könnte dieses Ihr perfektes Eigenheim sein. Kontaktieren Sie uns noch heute, um eine Besichtigung zu vereinbaren!
Familientraum – Glücklich leben im Eigenheim
38489 Jeeben
Die vollständige Adresse der Immobilie erhalten Sie vom Anbieter.
Auf Karte anzeigen
Die vollständige Adresse der Immobilie erhalten Sie vom Anbieter.
Finanzierungszertifikat
In nur zwei Minuten zu Ihrem persönlichen Finanzierungszertifkat.
Infos
| Haustyp | Bungalow |
|---|---|
| Wohnfläche ca. | 130 m2 |
| Nutzfläche | 0 m2 |
| Grundstücksfläche | 707 m2 |
| Zimmer | 4 |
| Schlafzimmer | 3 |
| Badezimmer | 1 |
| Anzahl Garage/Stellplatz | 1 |
Kosten
| Kaufpreis |
422.641 € |
|---|---|
| Provision | Nein |
Finanzierungsrechner:
Kaufpreis:
600.000 €
Eigenkapital:
600.000 €
Monatliche Rate
0 €
Effektiver Jahreszins
0 %
Sollzinsbindung
10 Jahre
Bausubstanz & Energieausweis
| Baujahr | 2026 |
|---|---|
| Bauphase | Haus in Planung (projektiert) |
| Qualität der Austattung | Gehoben |
| Heizungsart | Wärmepumpe |
Beschreibung des Objekts
Ausstattung
Neben kurzen Bauzeiten, innovativer Haustechnik, attraktiver Architektur und hochwertiger Manufaktur-Qualität bietet Ihnen das angebotene Schwabenhaus im “Green-Edition” All-Inclusive-Paket folgende Mehr-Werte:
- Bodenplatte inkl. Effizienzhaus 55 Perimeter-Dämmung unterhalb der Bodenplatte sowie stirnseitig
- Klima-Komfort-Bauweise für das Effizienzhaus 55
- Zimmermannsmäßiges Pfettendach
- Photovoltaik-Vorbereitung für die Ausführung eines Photovoltaik-Systems
- Komplette Elektro-, Sanitär- und Heizungs-Installation inkl. Grundinstallation für das Schwabenhaus auf Schwabenhaus-Bodenplatte bzw. -Keller*
- Zukunftsweisende Elektro-Installation*
- Abgeschirmte Lichtleitungen für moderne, störungsfreie Beleuchtung und Lichtszenarien
- Rollläden im Erd- und Obergeschoss Ihres Schwabenhauses
- Doppel-Wärmepumpe Eco* für Heizen, Kühlen, Lüften, Luftreinigung und Warmwasser
- Schwimmender Estrich mit Wärmedämmung*
- Blower-Door Test zur Überprüfung der Luftwechselrate*
- Klima-Komfort-Außenwand mit über 200 Putzfarben zur Auswahl
- Hochwertige, mehrschichtige Holz-Haustür in vielfältigen Design-Lösungen, mit Sicherheitsschließzylinder, 5-fach- Sicherheits-Verriegelung und 3-Scheiben-Wärmeschutzverglasung
- Kunststoff-Fenster mit 3-Scheiben- Wärmeschutzverglasung
- Dachflächenfenster mit Kipp- und Schwingfunktion sowie elektrischen Rollläden*, wenn laut Grundriss enthalten
- Außenfensterbänke aus Naturstein
- Innenfensterbänke aus Kunst- oder Naturstein*
- Massiv-Vollholz-Treppe
- Protect Versicherungs-Paket mit Wohngebäude-Versicherung inkl. Elementarschutz, Haus- und Wohnungs-Schutzbrief, Bauleistungs-Versicherung und Bauherren-Haftpflichtversicherung sowie Job-Protect Versicherungs-Paket
- 10 sowie 30 Jahre Gewährleistung gemäß Definition in der Schwabenhaus Bau- und Leistungsbeschreibung
*Ab Ausbaustufe "Fast-Vollendet"
¹Beim Effizienzhaus 40 Kühlung nur in Verbindung mit optionaler PV-Anlage.
Die aufgeführten Mehr-Werte und Leistungsinhalte beziehen sich ausschließlich auf das in der Schwabenhaus Bau- und Leistungsbeschreibung (BLB) beschriebene Technologie + Komfort-Paket "Green -Edition". Die Mehr-Werte und Leistungsinhalte anderer Schwabenhaus Bau- und Leistungsbeschreibungen bzw. Technologie + Komfort-Pakete können hiervon abweichen.
Lage
Lagebeschreibung
Das Grundstück liegt in Jeeben, einem beschaulichen Ortsteil der Gemeinde Beetzendorf im Altmarkkreis Salzwedel, Sachsen‑Anhalt. Jeeben ist ein kleines Angerdorf mit Kirche, eingebettet in eine ruhige, ländliche Umgebung.
Einkaufsmöglichkeiten
In Jeeben selbst existieren kleinere Läden des täglichen Bedarfs. Für größere Einkaufsangebote fährt man am besten nach Klötze, dem nächstgelegenen größeren Ort. Dort stehen Supermärkte, Fachgeschäfte, Apotheken und Dienstleister zur Verfügung. Für Spezialgeschäfte und ein breiteres Angebot bieten sich die Kreisstadt Salzwedel oder auch Orte wie Wolfsburg an.
Öffentlicher Personennahverkehr (ÖPNV)
Jeeben ist an das regionale Busnetz des Altmarkkreises Salzwedel angeschlossen. Der ÖPNV in dieser Region nutzt neben festen Linien auch Rufbusverkehre, um auch dünn besiedelte Orte flexibel anzubinden.
Es gibt geplante Fahrplanwechsel, Schülerverkehr wird berücksichtigt.
Schulen und Betreuung
Kindertagesstätten und Grundschulen sind in den umliegenden Orten verfügbar, insbesondere in Klötze. Klötze bietet mehrere Grundschulen und eine Sekundarschule. Für höhere Schulformen bzw. Gymnasien muss man in weitere Orte fahren.
Freizeit & Umgebung
Die Umgebung ist geprägt von Natur und ländlicher Ruhe. In Klötze gibt es den Tierpark „Arche Noah“ mit Streichelgehege und Spielplatz – ideal für Familien.
Die Landschaft um Jeeben lädt zu Spaziergängen und Naturerlebnissen ein – Felder, Wiesen, kleine Gewässer prägen das Bild. Durch die Nähe zur Jeetze bietet sich Wassernähe in der Umgebung.
Anbindung an größere Städte
Jeeben liegt ca. 8 km nordwestlich von Klötze.
Die Bundesstraße B248 ist etwa 5 km entfernt, was gute Verbindungswege in die Region ermöglicht.
Zu größeren Städten: Wolfsburg liegt in relativer Erreichbarkeit – es ist ein Wirtschaftsraum, zu dem Pendelwege möglich sind. Salzwedel als Kreisstadt bietet städtische Servicedichte.
+1
Sonstige Angaben
Das Haus ist projektiert inkl. Grundstück. Das Grundstück wird in Kommission angeboten bzw. direkt von Dritten verkauft. Daher kann der o.g. Preis aufgrund aktueller Marktsituationen schwanken.
Die Bauabwicklung kann kurzfristig nach Grundstückserwerb begonnen werden. Bilder zeigen möglicherweise Sonderausstattungen, die auf Wunsch gegen Preiskorrektur zusätzlich angeboten werden können.
Fragen Sie nach unserem kostenlosen Beratungs-Service und erhalten Sie in einem persönlichen Gespräch kostenlos alle wichtigen Informationen zu diesem Projekt, insbesondere: Lage und Bebauungsmöglichkeiten des Baugrundstücks, Baukosten-Kalkulation, Finanzierungs- u. Förderungs-Möglichkeiten, detaillierte Architektur- u. Grundrissplanung, etc.
Wir freuen uns, Sie ausführlich beraten zu dürfen!
Anbauteile, Carport, Garage und Keller können Extras sein, die als Sonderausstattung angeboten werden. Abbildungen, Grundrisse und Flächenangaben sind beispielhaft und können Extras zeigen. Flächenangaben nach DIN 277.
Profitieren Sie jetzt von der Schwabenhaus Online Beratung und verwirklichen Sie Ihr Traumhaus https://www.schwabenhaus.de/anmeldung-hausbau-beratung-online/
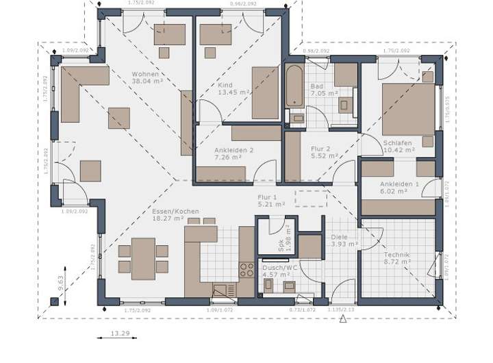
Grundriss
Grundriss Erdgeschoss
>
>
Adresse
38489 Jeeben
Interessante Orte
Preis- und Lageinformationen
Preistrend für Bestandsimmobilien in Jeeben