Herzlich willkommen in Ihrem neuen Zuhause, das speziell für Familien und herzliche Menschen gestaltet wurde! Dieses großzügige Haus bietet nicht nur ausreichend Platz für Ihre Lieben, sondern auch eine warme und einladende Atmosphäre.
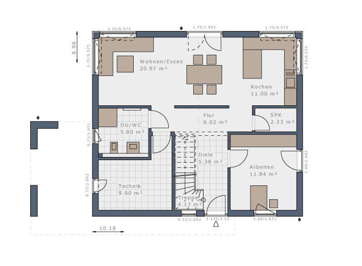
Im Erdgeschoss erwartet Sie ein geräumiges Wohnzimmer mit großen Fenstern, die viel Tageslicht hereinlassen. Die offene Küche bildet das Herz des Hauses und ist ideal für das gesellige Beisammensein. Das Esszimmer bietet Platz für gemeinsame Mahlzeiten und Feierlichkeiten.
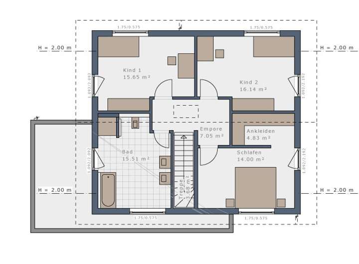
Im Obergeschoss finden Sie die Schlafzimmer, darunter ein Hauptschlafzimmer mit eigenem Bad und begehbarem Kleiderschrank, sowie weitere Zimmer für Kinder oder Gäste. Der Garten ist ein Paradies für Aktivitäten im Freien.
Wenn Sie auf der Suche nach einem Zuhause sind, das mehr als nur vier Wände bietet – ein echtes Familienheim in einer herzlichen Nachbarschaft – könnte dieses Ihr perfektes Eigenheim sein. Kontaktieren Sie uns noch heute, um eine Besichtigung zu vereinbaren!
Kinderparadies – Ihr Zuhause
39340 Haldensleben
Die vollständige Adresse der Immobilie erhalten Sie vom Anbieter.
Auf Karte anzeigen
Die vollständige Adresse der Immobilie erhalten Sie vom Anbieter.
Finanzierungszertifikat
In nur zwei Minuten zu Ihrem persönlichen Finanzierungszertifkat.
Infos
| Haustyp | Einfamilienhaus |
|---|---|
| Wohnfläche ca. | 154 m2 |
| Nutzfläche | 0 m2 |
| Grundstücksfläche | 740 m2 |
| Zimmer | 5 |
| Schlafzimmer | 3 |
| Badezimmer | 1 |
| Anzahl Garage/Stellplatz | 1 |
Kosten
| Kaufpreis |
498.662 € |
|---|---|
| Provision | Nein |
Finanzierungsrechner:
Kaufpreis:
600.000 €
Eigenkapital:
600.000 €
Monatliche Rate
0 €
Effektiver Jahreszins
0 %
Sollzinsbindung
10 Jahre
Bausubstanz & Energieausweis
| Baujahr | 2026 |
|---|---|
| Bauphase | Haus in Planung (projektiert) |
| Qualität der Austattung | Gehoben |
| Heizungsart | Wärmepumpe |
Beschreibung des Objekts
Ausstattung
Neben kurzen Bauzeiten, innovativer Haustechnik, attraktiver Architektur und hochwertiger Manufaktur-Qualität bietet Ihnen das angebotene Schwabenhaus im “Green-Edition” All-Inclusive-Paket folgende Mehr-Werte:
- Bodenplatte inkl. Effizienzhaus 55 Perimeter-Dämmung unterhalb der Bodenplatte sowie stirnseitig
- Klima-Komfort-Bauweise für das Effizienzhaus 55
- Zimmermannsmäßiges Pfettendach
- Photovoltaik-Vorbereitung für die Ausführung eines Photovoltaik-Systems
- Komplette Elektro-, Sanitär- und Heizungs-Installation inkl. Grundinstallation für das Schwabenhaus auf Schwabenhaus-Bodenplatte bzw. -Keller*
- Zukunftsweisende Elektro-Installation*
- Abgeschirmte Lichtleitungen für moderne, störungsfreie Beleuchtung und Lichtszenarien
- Rollläden im Erd- und Obergeschoss Ihres Schwabenhauses
- Doppel-Wärmepumpe Eco* für Heizen, Kühlen, Lüften, Luftreinigung und Warmwasser
- Schwimmender Estrich mit Wärmedämmung*
- Blower-Door Test zur Überprüfung der Luftwechselrate*
- Klima-Komfort-Außenwand mit über 200 Putzfarben zur Auswahl
- Hochwertige, mehrschichtige Holz-Haustür in vielfältigen Design-Lösungen, mit Sicherheitsschließzylinder, 5-fach- Sicherheits-Verriegelung und 3-Scheiben-Wärmeschutzverglasung
- Kunststoff-Fenster mit 3-Scheiben- Wärmeschutzverglasung
- Dachflächenfenster mit Kipp- und Schwingfunktion sowie elektrischen Rollläden*, wenn laut Grundriss enthalten
- Außenfensterbänke aus Naturstein
- Innenfensterbänke aus Kunst- oder Naturstein*
- Massiv-Vollholz-Treppe
- Protect Versicherungs-Paket mit Wohngebäude-Versicherung inkl. Elementarschutz, Haus- und Wohnungs-Schutzbrief, Bauleistungs-Versicherung und Bauherren-Haftpflichtversicherung sowie Job-Protect Versicherungs-Paket
- 10 sowie 30 Jahre Gewährleistung gemäß Definition in der Schwabenhaus Bau- und Leistungsbeschreibung
*Ab Ausbaustufe "Fast-Vollendet"
¹Beim Effizienzhaus 40 Kühlung nur in Verbindung mit optionaler PV-Anlage.
Die aufgeführten Mehr-Werte und Leistungsinhalte beziehen sich ausschließlich auf das in der Schwabenhaus Bau- und Leistungsbeschreibung (BLB) beschriebene Technologie + Komfort-Paket "Green -Edition". Die Mehr-Werte und Leistungsinhalte anderer Schwabenhaus Bau- und Leistungsbeschreibungen bzw. Technologie + Komfort-Pakete können hiervon abweichen.
Lage
Das Grundstück befindet sich in einer ruhigen und dennoch gut angebundenen Lage im westlichen Teil von Haldensleben. Die Umgebung zeichnet sich durch eine attraktive Mischung aus ländlicher Idylle und städtischer Infrastruktur aus, was es zu einem idealen Standort für Menschen macht, die sowohl die Ruhe des ländlichen Raums genießen möchten, aber gleichzeitig nicht auf eine gute Erreichbarkeit von Städten und verschiedenen Angeboten des täglichen Lebens verzichten wollen.
In unmittelbarer Nähe des Grundstücks befinden sich zahlreiche Einkaufsmöglichkeiten. Supermärkte, Discounter und kleinere Einzelhandelsgeschäfte sind sowohl zu Fuß als auch mit dem Auto schnell erreichbar und bieten eine bequeme Möglichkeit, den täglichen Bedarf zu decken. Auch eine Apotheke befindet sich in der Umgebung, sodass grundlegende Dienstleistungen vor Ort verfügbar sind. Für größere Einkaufsbedürfnisse ist das Stadtzentrum von Haldensleben mit weiteren Einzelhandelsgeschäften und Einkaufszentren in wenigen Minuten erreichbar.
Die Anbindung an den öffentlichen Personennahverkehr (ÖPNV) ist hervorragend. Der nächste Bahnhof liegt nur wenige Minuten entfernt und bietet schnelle Verbindungen nach Magdeburg sowie zu anderen Städten in der Region. Auch Bushaltestellen sind in der Nähe, sodass eine bequeme Anbindung an das städtische Verkehrsnetz gegeben ist. Diese Verkehrsanbindung ermöglicht eine schnelle Erreichbarkeit von Magdeburg und anderen größeren Städten in der Umgebung, was insbesondere für Pendler von Vorteil ist.
Für Familien ist die Lage ebenfalls ideal. In der Nähe des Grundstücks befinden sich verschiedene Bildungseinrichtungen. Von Kindergärten über Grundschulen bis hin zu weiterführenden Schulen ist alles in kurzer Distanz zu finden. Auch Sporteinrichtungen und Freizeitmöglichkeiten für Kinder und Jugendliche sind gut erreichbar, was eine hohe Lebensqualität für Familien gewährleistet.
Freizeitmöglichkeiten sind sowohl in der Natur als auch in der städtischen Umgebung vielfältig. Das Grundstück liegt in unmittelbarer Nähe zu Wäldern und Feldern. Zudem gibt es in Haldensleben und der Umgebung zahlreiche Sportvereine und Freizeitangebote, die das Leben abwechslungsreich gestalten. Wer mehr städtische Freizeitmöglichkeiten sucht, findet in Magdeburg, nur etwa 30 Minuten entfernt, ein breites kulturelles und gastronomisches Angebot sowie weitere sportliche Aktivitäten.
Die Nähe zu größeren Städten wie Magdeburg bietet zusätzliche Vorteile. Magdeburg ist mit dem Auto oder Zug in kurzer Zeit erreichbar und stellt eine attraktive Option für berufliche sowie kulturelle und soziale Aktivitäten dar. Durch die gute Anbindung sind auch die dortigen Arbeitsmärkte und Universitäten schnell zugänglich, was die Lage des Grundstücks für Berufspendler und Studierende besonders interessant macht.
Zusammengefasst bietet das Grundstück in Haldensleben eine ideale Kombination aus ländlicher Ruhe und guter Anbindung an städtische Infrastruktur und größere Städte.
Sonstige Angaben
Vereinbaren Sie einen persönlichen Beratungstermin, um über Ihren Haustraum und das angebotene Objekt zu sprechen.
Bitte beachten Sie, dass die dargestellten Bilder und Grundrisse nur beispielhaft sind und unter Umständen Sonderbauteile enthalten, die nicht im aufgerufenen Preis inkludiert sind.
Haben Sie außerdem Verständnis dafür, dass erst nach dem persönlichen Gespräch weitere Details zu dem angebotenen Grundstück bekanntgegeben werden und dass nur vollständige Anfragen bearbeitet werden können.
Anbauteile, Carport, Garage und Keller können Extras sein, die als Sonderausstattung angeboten werden. Abbildungen, Grundrisse und Flächenangaben sind beispielhaft und können Extras zeigen. Flächenangaben nach DIN 277.
Profitieren Sie jetzt von der Schwabenhaus Online Beratung und verwirklichen Sie Ihr Traumhaus https://www.schwabenhaus.de/anmeldung-hausbau-beratung-online/
Grundriss
Erdgeschoss
>
>
Obergeschoss
>
>
Adresse
39340 Haldensleben
Interessante Orte
Preis- und Lageinformationen
Preistrend für Bestandsimmobilien in Haldensleben