Herzlich willkommen in Ihrem neuen Zuhause, das speziell für Familien und herzliche Menschen gestaltet wurde! Dieses großzügige Haus bietet nicht nur ausreichend Platz für Ihre Lieben, sondern auch eine warme und einladende Atmosphäre.
Im Erdgeschoss erwartet Sie ein geräumiges Wohnzimmer mit großen Fenstern, die viel Tageslicht hereinlassen. Die offene Küche bildet das Herz des Hauses und ist ideal für das gesellige Beisammensein. Das Esszimmer bietet Platz für gemeinsame Mahlzeiten und Feierlichkeiten.
Im Obergeschoss finden Sie die Schlafzimmer, darunter ein Hauptschlafzimmer mit eigenem Bad und begehbarem Kleiderschrank, sowie weitere Zimmer für Kinder oder Gäste. Der Garten ist ein Paradies für Aktivitäten im Freien.
Wenn Sie auf der Suche nach einem Zuhause sind, das mehr als nur vier Wände bietet – ein echtes Familienheim in einer herzlichen Nachbarschaft – könnte dieses Ihr perfektes Eigenheim sein. Kontaktieren Sie uns noch heute, um eine Besichtigung zu vereinbaren!
Heimat für Herz und Seele
39638 Letzlingen
Die vollständige Adresse der Immobilie erhalten Sie vom Anbieter.
Auf Karte anzeigen
Die vollständige Adresse der Immobilie erhalten Sie vom Anbieter.
Finanzierungszertifikat
In nur zwei Minuten zu Ihrem persönlichen Finanzierungszertifkat.
Infos
| Haustyp | Einfamilienhaus |
|---|---|
| Wohnfläche ca. | 119 m2 |
| Nutzfläche | 0 m2 |
| Grundstücksfläche | 725 m2 |
| Zimmer | 4 |
| Schlafzimmer | 3 |
| Badezimmer | 1 |
| Anzahl Garage/Stellplatz | 0 |
Kosten
| Kaufpreis |
348.991 € |
|---|---|
| Provision | Nein |
Finanzierungsrechner:
Kaufpreis:
600.000 €
Eigenkapital:
600.000 €
Monatliche Rate
0 €
Effektiver Jahreszins
0 %
Sollzinsbindung
10 Jahre
Bausubstanz & Energieausweis
| Baujahr | 2026 |
|---|---|
| Bauphase | Haus in Planung (projektiert) |
| Qualität der Austattung | Gehoben |
| Heizungsart | Wärmepumpe |
Beschreibung des Objekts
Ausstattung
Neben kurzen Bauzeiten, innovativer Haustechnik, attraktiver Architektur und hochwertiger Manufaktur-Qualität bietet Ihnen das angebotene Schwabenhaus im “Green-Edition” All-Inclusive-Paket folgende Mehr-Werte:
- Bodenplatte inkl. Effizienzhaus 55 Perimeter-Dämmung unterhalb der Bodenplatte sowie stirnseitig
- Klima-Komfort-Bauweise für das Effizienzhaus 55
- Zimmermannsmäßiges Pfettendach
- Photovoltaik-Vorbereitung für die Ausführung eines Photovoltaik-Systems
- Komplette Elektro-, Sanitär- und Heizungs-Installation inkl. Grundinstallation für das Schwabenhaus auf Schwabenhaus-Bodenplatte bzw. -Keller*
- Zukunftsweisende Elektro-Installation*
- Abgeschirmte Lichtleitungen für moderne, störungsfreie Beleuchtung und Lichtszenarien
- Rollläden im Erd- und Obergeschoss Ihres Schwabenhauses
- Doppel-Wärmepumpe Eco* für Heizen, Kühlen, Lüften, Luftreinigung und Warmwasser
- Schwimmender Estrich mit Wärmedämmung*
- Blower-Door Test zur Überprüfung der Luftwechselrate*
- Klima-Komfort-Außenwand mit über 200 Putzfarben zur Auswahl
- Hochwertige, mehrschichtige Holz-Haustür in vielfältigen Design-Lösungen, mit Sicherheitsschließzylinder, 5-fach- Sicherheits-Verriegelung und 3-Scheiben-Wärmeschutzverglasung
- Kunststoff-Fenster mit 3-Scheiben- Wärmeschutzverglasung
- Dachflächenfenster mit Kipp- und Schwingfunktion sowie elektrischen Rollläden*, wenn laut Grundriss enthalten
- Außenfensterbänke aus Naturstein
- Innenfensterbänke aus Kunst- oder Naturstein*
- Massiv-Vollholz-Treppe
- Protect Versicherungs-Paket mit Wohngebäude-Versicherung inkl. Elementarschutz, Haus- und Wohnungs-Schutzbrief, Bauleistungs-Versicherung und Bauherren-Haftpflichtversicherung sowie Job-Protect Versicherungs-Paket
- 10 sowie 30 Jahre Gewährleistung gemäß Definition in der Schwabenhaus Bau- und Leistungsbeschreibung
*Ab Ausbaustufe "Fast-Vollendet"
¹Beim Effizienzhaus 40 Kühlung nur in Verbindung mit optionaler PV-Anlage.
Die aufgeführten Mehr-Werte und Leistungsinhalte beziehen sich ausschließlich auf das in der Schwabenhaus Bau- und Leistungsbeschreibung (BLB) beschriebene Technologie + Komfort-Paket "Green -Edition". Die Mehr-Werte und Leistungsinhalte anderer Schwabenhaus Bau- und Leistungsbeschreibungen bzw. Technologie + Komfort-Pakete können hiervon abweichen.
Lage
Das Grundstück liegt in einer ruhigen und naturnahen Lage im Ort Letzlingen, einem Ortsteil der Gemeinde Gardelegen im Landkreis Stendal. Die Umgebung ist von grünen Wäldern und Feldern geprägt und bietet eine hohe Lebensqualität für Naturliebhaber und Familien. Besonders hervorzuheben ist die gute Anbindung an den öffentlichen Nahverkehr und die Nähe zu größeren Städten.
Der nächstgelegene Ort mit umfassenden Einkaufsmöglichkeiten ist Gardelegen, ca. 10 Kilometer entfernt. Dort finden sich Supermärkte, Bäckereien, Banken sowie diverse Einzelhandelsgeschäfte, die den täglichen Bedarf decken. Weitere Einkaufsmöglichkeiten und ein breiteres Angebot an Dienstleistungen sind in der etwa 30 Kilometer entfernten Stadt Stendal zu finden. Dort gibt es auch Einkaufszentren, Fachmärkte und ein vielfältiges gastronomisches Angebot.
Für den öffentlichen Nahverkehr bietet Letzlingen eine gute Anbindung. Die Busverbindungen verbinden den Ort regelmäßig mit Gardelegen und anderen umliegenden Ortschaften. Über die nahegelegene Bundesstraße ist auch die Anbindung an das regionale und überregionale Straßennetz gewährleistet. Der Bahnhof in Stendal ermöglicht schnelle Zugverbindungen nach Magdeburg und Berlin.
In Bezug auf Bildungseinrichtungen ist Letzlingen mit Grundschulen und Kindergärten in Gardelegen gut versorgt. Für weiterführende Schulen müssen Schüler in der Regel nach Stendal oder in benachbarte Städte pendeln. Stendal bietet eine Vielzahl an weiterführenden Schulen, darunter Gymnasien und Gesamtschulen.
In der Umgebung gibt es zahlreiche Freizeitmöglichkeiten, die sowohl kulturelle als auch sportliche Aktivitäten umfassen. In unmittelbarer Nähe lädt die Natur zu ausgedehnten Wanderungen und Radtouren ein, insbesondere im angrenzenden Naturpark Drömling. Im Sommer bieten die zahlreichen Gewässer der Region Möglichkeiten zum Angeln und für andere Freizeitaktivitäten. Auch Vereine in Letzlingen und Gardelegen bieten eine gute Gelegenheit, sich sportlich zu betätigen und soziale Kontakte zu knüpfen.
Die größere Umgebung, insbesondere die Städte Stendal und Magdeburg, bieten eine Vielzahl von Freizeit- und Kulturangeboten. Magdeburg, als Landeshauptstadt von Sachsen-Anhalt, bietet ein umfangreiches kulturelles Angebot, darunter Museen, Theater, Konzertbühnen und Restaurants. Die Nähe zur Elbe macht Magdeburg zudem zu einem attraktiven Ziel für Ausflüge und Freizeitgestaltungen. Auch die Landeshauptstadt ist von Letzlingen aus gut zu erreichen und ermöglicht ein vielfältiges Leben mit hoher Lebensqualität.
Insgesamt bietet das Grundstück eine perfekte Kombination aus ländlicher Ruhe, guter Erreichbarkeit von größeren Städten und einer hervorragenden Anbindung an den öffentlichen Nahverkehr. Hier finden Sie eine hohe Lebensqualität inmitten der Natur mit einem breiten Angebot an Freizeitmöglichkeiten und einer guten Versorgung für den Alltag.
Sonstige Angaben
Vereinbaren Sie einen persönlichen Beratungstermin, um über Ihren Haustraum und das angebotene Objekt zu sprechen.
Bitte beachten Sie, dass die dargestellten Bilder und Grundrisse nur beispielhaft sind und unter Umständen Sonderbauteile enthalten, die nicht im aufgerufenen Preis inkludiert sind.
Haben Sie außerdem Verständnis dafür, dass erst nach dem persönlichen Gespräch weitere Details zu dem angebotenen Grundstück bekanntgegeben werden und dass nur vollständige Anfragen bearbeitet werden können.
Anbauteile, Carport, Garage und Keller können Extras sein, die als Sonderausstattung angeboten werden. Abbildungen, Grundrisse und Flächenangaben sind beispielhaft und können Extras zeigen. Flächenangaben nach DIN 277.
Profitieren Sie jetzt von der Schwabenhaus Online Beratung und verwirklichen Sie Ihr Traumhaus https://www.schwabenhaus.de/anmeldung-hausbau-beratung-online/
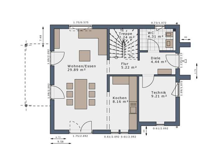
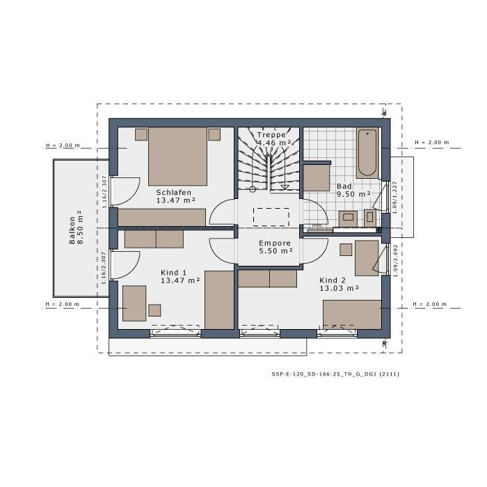
Grundriss
Grundriss Erdgeschoss
>
>
Grundriss Obergeschoss
>
>
Adresse
39638 Letzlingen
Interessante Orte
Preis- und Lageinformationen
Preistrend für Bestandsimmobilien in Letzlingen