Herzlich willkommen in Ihrem neuen Zuhause, das speziell für Familien und herzliche Menschen gestaltet wurde! Dieses großzügige Haus bietet nicht nur ausreichend Platz für Ihre Lieben, sondern auch eine warme und einladende Atmosphäre.
Im Erdgeschoss erwartet Sie ein geräumiges Wohnzimmer mit großen Fenstern, die viel Tageslicht hereinlassen. Die offene Küche bildet das Herz des Hauses und ist ideal für das gesellige Beisammensein. Das Esszimmer bietet Platz für gemeinsame Mahlzeiten und Feierlichkeiten.
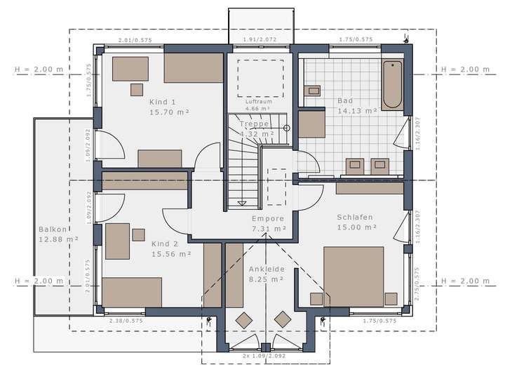
Im Obergeschoss finden Sie die Schlafzimmer, darunter ein Hauptschlafzimmer mit eigenem Bad und begehbarem Kleiderschrank, sowie weitere Zimmer für Kinder oder Gäste. Der Garten ist ein Paradies für Aktivitäten im Freien.
Wenn Sie auf der Suche nach einem Zuhause sind, das mehr als nur vier Wände bietet – ein echtes Familienheim in einer herzlichen Nachbarschaft – könnte dieses Ihr perfektes Eigenheim sein. Kontaktieren Sie uns noch heute, um eine Besichtigung zu vereinbaren!
Leben, Lieben, Lachen - Hier!
39638 Gardelegen
Die vollständige Adresse der Immobilie erhalten Sie vom Anbieter.
Auf Karte anzeigen
Die vollständige Adresse der Immobilie erhalten Sie vom Anbieter.
Finanzierungszertifikat
In nur zwei Minuten zu Ihrem persönlichen Finanzierungszertifkat.
Infos
| Haustyp | Einfamilienhaus |
|---|---|
| Wohnfläche ca. | 166 m2 |
| Nutzfläche | 0 m2 |
| Grundstücksfläche | 800 m2 |
| Zimmer | 5 |
| Schlafzimmer | 3 |
| Badezimmer | 1 |
| Anzahl Garage/Stellplatz | 1 |
Kosten
| Kaufpreis |
498.131 € |
|---|---|
| Provision | Nein |
Finanzierungsrechner:
Kaufpreis:
600.000 €
Eigenkapital:
600.000 €
Monatliche Rate
0 €
Effektiver Jahreszins
0 %
Sollzinsbindung
10 Jahre
Bausubstanz & Energieausweis
| Baujahr | 2026 |
|---|---|
| Bauphase | Haus in Planung (projektiert) |
| Qualität der Austattung | Gehoben |
| Heizungsart | Wärmepumpe |
Beschreibung des Objekts
Ausstattung
Neben kurzen Bauzeiten, innovativer Haustechnik, attraktiver Architektur und hochwertiger Manufaktur-Qualität bietet Ihnen das angebotene Schwabenhaus im “Green-Edition” All-Inclusive-Paket folgende Mehr-Werte:
- Bodenplatte inkl. Effizienzhaus 55 Perimeter-Dämmung unterhalb der Bodenplatte sowie stirnseitig
- Klima-Komfort-Bauweise für das Effizienzhaus 55
- Zimmermannsmäßiges Pfettendach
- Photovoltaik-Vorbereitung für die Ausführung eines Photovoltaik-Systems
- Komplette Elektro-, Sanitär- und Heizungs-Installation inkl. Grundinstallation für das Schwabenhaus auf Schwabenhaus-Bodenplatte bzw. -Keller*
- Zukunftsweisende Elektro-Installation*
- Abgeschirmte Lichtleitungen für moderne, störungsfreie Beleuchtung und Lichtszenarien
- Rollläden im Erd- und Obergeschoss Ihres Schwabenhauses
- Doppel-Wärmepumpe Eco* für Heizen, Kühlen, Lüften, Luftreinigung und Warmwasser
- Schwimmender Estrich mit Wärmedämmung*
- Blower-Door Test zur Überprüfung der Luftwechselrate*
- Klima-Komfort-Außenwand mit über 200 Putzfarben zur Auswahl
- Hochwertige, mehrschichtige Holz-Haustür in vielfältigen Design-Lösungen, mit Sicherheitsschließzylinder, 5-fach- Sicherheits-Verriegelung und 3-Scheiben-Wärmeschutzverglasung
- Kunststoff-Fenster mit 3-Scheiben- Wärmeschutzverglasung
- Dachflächenfenster mit Kipp- und Schwingfunktion sowie elektrischen Rollläden*, wenn laut Grundriss enthalten
- Außenfensterbänke aus Naturstein
- Innenfensterbänke aus Kunst- oder Naturstein*
- Massiv-Vollholz-Treppe
- Protect Versicherungs-Paket mit Wohngebäude-Versicherung inkl. Elementarschutz, Haus- und Wohnungs-Schutzbrief, Bauleistungs-Versicherung und Bauherren-Haftpflichtversicherung sowie Job-Protect Versicherungs-Paket
- 10 sowie 30 Jahre Gewährleistung gemäß Definition in der Schwabenhaus Bau- und Leistungsbeschreibung
*Ab Ausbaustufe "Fast-Vollendet"
¹Beim Effizienzhaus 40 Kühlung nur in Verbindung mit optionaler PV-Anlage.
Die aufgeführten Mehr-Werte und Leistungsinhalte beziehen sich ausschließlich auf das in der Schwabenhaus Bau- und Leistungsbeschreibung (BLB) beschriebene Technologie + Komfort-Paket "Green -Edition". Die Mehr-Werte und Leistungsinhalte anderer Schwabenhaus Bau- und Leistungsbeschreibungen bzw. Technologie + Komfort-Pakete können hiervon abweichen.
Lage
Das Grundstück befindet sich in einer ruhigen und dennoch gut angebundenen Lage in der Stadt Gardelegen, im westlichen Teil des Landkreises Altmarkkreis Salzwedel, mit direkter Erreichbarkeit zu diversen Einrichtungen und Angeboten des täglichen Lebens.
Einkaufsmöglichkeiten sind im näheren Umkreis zahlreich vorhanden. In Gardelegen finden sich Supermärkte, Discounter und Einzelhändler, die den täglichen Bedarf abdecken. Zudem bietet das Stadtzentrum verschiedene Fachgeschäfte und Wochenmärkte, auf denen frische Lebensmittel und regionale Produkte angeboten werden. Für größere Einkäufe oder spezialisierte Produkte ist die nahegelegene Stadt Salzwedel ein attraktives Ziel, das in kurzer Fahrzeit erreichbar ist.
Der öffentliche Personennahverkehr (ÖPNV) sorgt für eine ausgezeichnete Anbindung an Gardelegen und die umliegenden Orte. In der Nähe des Grundstücks befinden sich Haltestellen für Busse, die regelmäßig Verbindungen zu weiteren Städten und Gemeinden in der Region bieten. Auch die Bahnhöfe in Gardelegen und Salzwedel sind innerhalb kurzer Zeit erreichbar und ermöglichen eine bequeme Anreise zu größeren Städten, wie Magdeburg oder Wolfsburg. Die Anbindung an das überregionale Verkehrsnetz ist somit hervorragend.
Für Familien und Bildungsinteressierte ist die Lage ebenfalls vorteilhaft. In Gardelegen befinden sich mehrere Schulen, darunter Grundschulen sowie eine weiterführende Schule. Diese sind sowohl zu Fuß als auch mit dem Fahrrad oder dem ÖPNV gut erreichbar. Darüber hinaus gibt es in der Umgebung diverse Kindergärten und Einrichtungen der frühkindlichen Betreuung, die eine familienfreundliche Struktur der Region unterstreichen.
Freizeitmöglichkeiten sind in der Umgebung ebenfalls vielfältig. Die naturnahe Lage ermöglicht zahlreiche Outdoor-Aktivitäten, sei es beim Wandern, Radfahren oder Angeln in den benachbarten Gewässern. In Gardelegen selbst und den umliegenden Dörfern finden regelmäßig kulturelle Veranstaltungen und Feste statt. Zudem sorgen Sportvereine für Angebote im Bereich Fußball, Handball und weiteren Freizeitaktivitäten. In Salzwedel und Gardelegen selbst gibt es Schwimmbäder, Sporthallen und Einrichtungen für Fitness und Wellness, sodass eine breite Palette an Freizeitgestaltungen zur Verfügung steht.
Die Nähe zu größeren Städten wie Magdeburg (ca. 100 km), Wolfsburg (ca. 80 km) und Braunschweig (ca. 120 km) eröffnet zudem vielfältige Möglichkeiten für berufliche und private Aktivitäten. Diese Städte bieten eine Vielzahl an Arbeitsplätzen, Bildungseinrichtungen sowie kulturellen und gastronomischen Angeboten. Besonders die Anbindung an die Autobahnen A2 und A39 sorgt für eine schnelle Erreichbarkeit dieser urbanen Zentren.
Zusammenfassend lässt sich sagen, dass das Grundstück in Gardelegen aufgrund seiner Lage in einer ruhigen, aber gut vernetzten Region hervorragende Möglichkeiten für Wohnen und Leben in einer ländlichen Umgebung mit urbaner Anbindung bietet.
Sonstige Angaben
Vereinbaren Sie einen persönlichen Beratungstermin, um über Ihren Haustraum und das angebotene Objekt zu sprechen.
Bitte beachten Sie, dass die dargestellten Bilder und Grundrisse nur beispielhaft sind und unter Umständen Sonderbauteile enthalten, die nicht im aufgerufenen Preis inkludiert sind.
Haben Sie außerdem Verständnis dafür, dass erst nach dem persönlichen Gespräch weitere Details zu dem angebotenen Grundstück bekanntgegeben werden und dass nur vollständige Anfragen bearbeitet werden können.
Anbauteile, Carport, Garage und Keller können Extras sein, die als Sonderausstattung angeboten werden. Abbildungen, Grundrisse und Flächenangaben sind beispielhaft und können Extras zeigen. Flächenangaben nach DIN 277.
Profitieren Sie jetzt von der Schwabenhaus Online Beratung und verwirklichen Sie Ihr Traumhaus https://www.schwabenhaus.de/anmeldung-hausbau-beratung-online/
Grundriss
Grundriss Erdgeschoss
>
>
Grundriss Obergeschoss
>
>
Adresse
39638 Gardelegen
Interessante Orte
Preis- und Lageinformationen
Preistrend für Bestandsimmobilien in Gardelegen