Herzlich willkommen in Ihrem neuen Zuhause, das speziell für Familien und herzliche Menschen gestaltet wurde! Dieses großzügige Haus bietet nicht nur ausreichend Platz für Ihre Lieben, sondern auch eine warme und einladende Atmosphäre.
Im Erdgeschoss erwartet Sie ein geräumiges Wohnzimmer mit großen Fenstern, die viel Tageslicht hereinlassen. Die offene Küche bildet das Herz des Hauses und ist ideal für das gesellige Beisammensein. Das Esszimmer bietet Platz für gemeinsame Mahlzeiten und Feierlichkeiten.
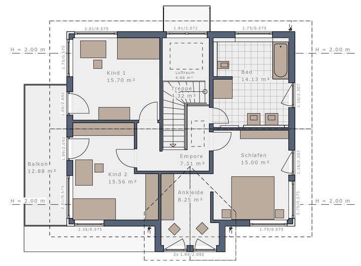
Im Obergeschoss finden Sie die Schlafzimmer, darunter ein Hauptschlafzimmer mit eigenem Bad und begehbarem Kleiderschrank, sowie weitere Zimmer für Kinder oder Gäste. Der Garten ist ein Paradies für Aktivitäten im Freien.
Wenn Sie auf der Suche nach einem Zuhause sind, das mehr als nur vier Wände bietet – ein echtes Familienheim in einer herzlichen Nachbarschaft – könnte dieses Ihr perfektes Eigenheim sein. Kontaktieren Sie uns noch heute, um eine Besichtigung zu vereinbaren!
Technologisch durchdacht - Ihr modernes Heim
39359 Calvörde
Die vollständige Adresse der Immobilie erhalten Sie vom Anbieter.
Auf Karte anzeigen
Die vollständige Adresse der Immobilie erhalten Sie vom Anbieter.
Finanzierungszertifikat
In nur zwei Minuten zu Ihrem persönlichen Finanzierungszertifkat.
Infos
| Haustyp | Einfamilienhaus |
|---|---|
| Wohnfläche ca. | 166 m2 |
| Nutzfläche | 0 m2 |
| Grundstücksfläche | 730 m2 |
| Zimmer | 5 |
| Schlafzimmer | 3 |
| Badezimmer | 1 |
| Anzahl Garage/Stellplatz | 1 |
Kosten
| Kaufpreis |
475.131 € |
|---|---|
| Provision | Nein |
Finanzierungsrechner:
Kaufpreis:
600.000 €
Eigenkapital:
600.000 €
Monatliche Rate
0 €
Effektiver Jahreszins
0 %
Sollzinsbindung
10 Jahre
Bausubstanz & Energieausweis
| Baujahr | 2026 |
|---|---|
| Bauphase | Haus in Planung (projektiert) |
| Qualität der Austattung | Gehoben |
| Heizungsart | Wärmepumpe |
Beschreibung des Objekts
Ausstattung
Neben kurzen Bauzeiten, innovativer Haustechnik, attraktiver Architektur und hochwertiger Manufaktur-Qualität bietet Ihnen das angebotene Schwabenhaus im “Green-Edition” All-Inclusive-Paket folgende Mehr-Werte:
- Bodenplatte inkl. Effizienzhaus 55 Perimeter-Dämmung unterhalb der Bodenplatte sowie stirnseitig
- Klima-Komfort-Bauweise für das Effizienzhaus 55
- Zimmermannsmäßiges Pfettendach
- Photovoltaik-Vorbereitung für die Ausführung eines Photovoltaik-Systems
- Komplette Elektro-, Sanitär- und Heizungs-Installation inkl. Grundinstallation für das Schwabenhaus auf Schwabenhaus-Bodenplatte bzw. -Keller*
- Zukunftsweisende Elektro-Installation*
- Abgeschirmte Lichtleitungen für moderne, störungsfreie Beleuchtung und Lichtszenarien
- Rollläden im Erd- und Obergeschoss Ihres Schwabenhauses
- Doppel-Wärmepumpe Eco* für Heizen, Kühlen, Lüften, Luftreinigung und Warmwasser
- Schwimmender Estrich mit Wärmedämmung*
- Blower-Door Test zur Überprüfung der Luftwechselrate*
- Klima-Komfort-Außenwand mit über 200 Putzfarben zur Auswahl
- Hochwertige, mehrschichtige Holz-Haustür in vielfältigen Design-Lösungen, mit Sicherheitsschließzylinder, 5-fach- Sicherheits-Verriegelung und 3-Scheiben-Wärmeschutzverglasung
- Kunststoff-Fenster mit 3-Scheiben- Wärmeschutzverglasung
- Dachflächenfenster mit Kipp- und Schwingfunktion sowie elektrischen Rollläden*, wenn laut Grundriss enthalten
- Außenfensterbänke aus Naturstein
- Innenfensterbänke aus Kunst- oder Naturstein*
- Massiv-Vollholz-Treppe
- Protect Versicherungs-Paket mit Wohngebäude-Versicherung inkl. Elementarschutz, Haus- und Wohnungs-Schutzbrief, Bauleistungs-Versicherung und Bauherren-Haftpflichtversicherung sowie Job-Protect Versicherungs-Paket
- 10 sowie 30 Jahre Gewährleistung gemäß Definition in der Schwabenhaus Bau- und Leistungsbeschreibung
*Ab Ausbaustufe "Fast-Vollendet"
¹Beim Effizienzhaus 40 Kühlung nur in Verbindung mit optionaler PV-Anlage.
Die aufgeführten Mehr-Werte und Leistungsinhalte beziehen sich ausschließlich auf das in der Schwabenhaus Bau- und Leistungsbeschreibung (BLB) beschriebene Technologie + Komfort-Paket "Green -Edition". Die Mehr-Werte und Leistungsinhalte anderer Schwabenhaus Bau- und Leistungsbeschreibungen bzw. Technologie + Komfort-Pakete können hiervon abweichen.
Lage
Das Grundstück befindet sich in einer ruhigen und idyllischen Lage in der Gemeinde Calvörde, im Landkreis Börde, und bietet eine angenehme Mischung aus ländlicher Idylle und guter Anbindung an das urbane Leben. Die Umgebung ist von grünen Feldern und Wäldern geprägt, was für Erholung und Naturverbundenheit sorgt. Gleichzeitig sind zahlreiche wichtige Infrastruktureinrichtungen in unmittelbarer Nähe.
Einkaufsmöglichkeiten:
In Calvörde selbst sowie im nahen Umfeld stehen alle wichtigen Einkaufsmöglichkeiten zur Verfügung. Supermärkte, Fachgeschäfte und Bäckereien sind bequem erreichbar, sodass der tägliche Bedarf problemlos gedeckt werden kann. Auch größere Einkaufszentren befinden sich in benachbarten Städten, die innerhalb kurzer Fahrtzeit zu erreichen sind.
Öffentliche Verkehrsanbindung:
Die Gemeinde ist gut an das Netz des öffentlichen Personennahverkehrs (ÖPNV) angeschlossen. Busverbindungen führen regelmäßig in die umliegenden Städte und Orte, sodass auch ohne eigenes Fahrzeug eine gute Mobilität gewährleistet ist. Die Anbindung an den regionalen Bahnverkehr ermöglicht eine schnelle Verbindung zu größeren Städten in der Region, was für Pendler oder für Ausflüge in benachbarte Städte von Vorteil ist.
Bildungseinrichtungen:
Für Familien ist die Nähe zu Schulen ein wichtiger Faktor. In Calvörde sind sowohl Grundschulen als auch weiterführende Schulen in unmittelbarer Nähe vorhanden. Weiterführende Schulen und Bildungseinrichtungen für höhere Bildungsabschlüsse befinden sich in benachbarten Städten, die schnell mit dem Auto oder dem ÖPNV erreichbar sind.
Freizeitmöglichkeiten:
Die Region rund um Calvörde bietet vielfältige Freizeitmöglichkeiten. Zahlreiche Wander- und Radwege laden zu ausgedehnten Spaziergängen und Radtouren in der Natur ein. Darüber hinaus gibt es in der Umgebung Sportvereine, kulturelle Veranstaltungen und Freizeitstätten, die das Angebot abrunden. Wer das Leben in der Stadt bevorzugt, findet in den größeren Städten in der Nähe eine breite Palette an Freizeitangeboten, von Kinos und Theateraufführungen bis hin zu Einkaufszentren und Restaurants.
Anbindung an größere Städte:
Die Lage des Grundstücks ermöglicht eine schnelle Anreise zu größeren Städten der Region. Die Städte Magdeburg, Wolfsburg und Braunschweig sind in etwa 30 bis 45 Minuten mit dem Auto erreichbar und bieten eine Vielzahl an Arbeitsplätzen, kulturellen Angeboten und Einkaufsmöglichkeiten. Dadurch bietet die Lage sowohl die Vorteile des ländlichen Lebens als auch die Nähe zu städtischen Zentren, die für Berufspendler und Kulturinteressierte gleichermaßen attraktiv ist.
Zusammenfassend lässt sich sagen, dass das Grundstück in Calvörde eine sehr gute Lage bietet, um das ruhige Leben auf dem Land zu genießen, während gleichzeitig alle Annehmlichkeiten des modernen Lebens in greifbarer Nähe sind.
Sonstige Angaben
Vereinbaren Sie einen persönlichen Beratungstermin, um über Ihren Haustraum und das angebotene Objekt zu sprechen.
Bitte beachten Sie, dass die dargestellten Bilder und Grundrisse nur beispielhaft sind und unter Umständen Sonderbauteile enthalten, die nicht im aufgerufenen Preis inkludiert sind.
Haben Sie außerdem Verständnis dafür, dass erst nach dem persönlichen Gespräch weitere Details zu dem angebotenen Grundstück bekanntgegeben werden und dass nur vollständige Anfragen bearbeitet werden können.
Anbauteile, Carport, Garage und Keller können Extras sein, die als Sonderausstattung angeboten werden. Abbildungen, Grundrisse und Flächenangaben sind beispielhaft und können Extras zeigen. Flächenangaben nach DIN 277.
Profitieren Sie jetzt von der Schwabenhaus Online Beratung und verwirklichen Sie Ihr Traumhaus https://www.schwabenhaus.de/anmeldung-hausbau-beratung-online/
Grundriss
Grundriss Erdgeschoss
>
>
Grundriss Obergeschoss
>
>
Adresse
39359 Calvörde
Interessante Orte
Preis- und Lageinformationen
Preistrend für Bestandsimmobilien in Calvörde