Herzlich willkommen in Ihrem neuen Zuhause, das speziell für Familien und herzliche Menschen gestaltet wurde! Dieses großzügige Haus bietet nicht nur ausreichend Platz für Ihre Lieben, sondern auch eine warme und einladende Atmosphäre.
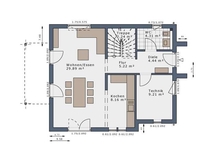
Im Erdgeschoss erwartet Sie ein geräumiges Wohnzimmer mit großen Fenstern, die viel Tageslicht hereinlassen. Die offene Küche bildet das Herz des Hauses und ist ideal für das gesellige Beisammensein. Das Esszimmer bietet Platz für gemeinsame Mahlzeiten und Feierlichkeiten.
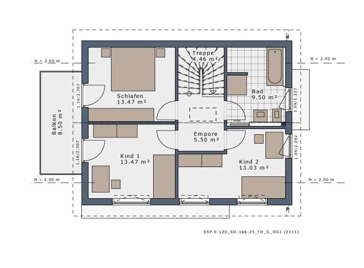
Im Obergeschoss finden Sie die Schlafzimmer, darunter ein Hauptschlafzimmer mit eigenem Bad und begehbarem Kleiderschrank, sowie weitere Zimmer für Kinder oder Gäste. Der Garten ist ein Paradies für Aktivitäten im Freien.
Wenn Sie auf der Suche nach einem Zuhause sind, das mehr als nur vier Wände bietet – ein echtes Familienheim in einer herzlichen Nachbarschaft – könnte dieses Ihr perfektes Eigenheim sein. Kontaktieren Sie uns noch heute, um eine Besichtigung zu vereinbaren!
Kinderparadies – Ihr Zuhause
39343 Erxleben
Die vollständige Adresse der Immobilie erhalten Sie vom Anbieter.
Auf Karte anzeigen
Die vollständige Adresse der Immobilie erhalten Sie vom Anbieter.
Finanzierungszertifikat
In nur zwei Minuten zu Ihrem persönlichen Finanzierungszertifkat.
Infos
| Haustyp | Einfamilienhaus |
|---|---|
| Wohnfläche ca. | 119 m2 |
| Nutzfläche | 0 m2 |
| Grundstücksfläche | 680 m2 |
| Zimmer | 4 |
| Schlafzimmer | 3 |
| Badezimmer | 1 |
| Anzahl Garage/Stellplatz | 0 |
Kosten
| Kaufpreis |
354.491 € |
|---|---|
| Provision | Nein |
Finanzierungsrechner:
Kaufpreis:
600.000 €
Eigenkapital:
600.000 €
Monatliche Rate
0 €
Effektiver Jahreszins
0 %
Sollzinsbindung
10 Jahre
Bausubstanz & Energieausweis
| Baujahr | 2026 |
|---|---|
| Bauphase | Haus in Planung (projektiert) |
| Qualität der Austattung | Gehoben |
| Heizungsart | Wärmepumpe |
Beschreibung des Objekts
Ausstattung
Neben kurzen Bauzeiten, innovativer Haustechnik, attraktiver Architektur und hochwertiger Manufaktur-Qualität bietet Ihnen das angebotene Schwabenhaus im “Green-Edition” All-Inclusive-Paket folgende Mehr-Werte:
- Bodenplatte inkl. Effizienzhaus 55 Perimeter-Dämmung unterhalb der Bodenplatte sowie stirnseitig
- Klima-Komfort-Bauweise für das Effizienzhaus 55
- Zimmermannsmäßiges Pfettendach
- Photovoltaik-Vorbereitung für die Ausführung eines Photovoltaik-Systems
- Komplette Elektro-, Sanitär- und Heizungs-Installation inkl. Grundinstallation für das Schwabenhaus auf Schwabenhaus-Bodenplatte bzw. -Keller*
- Zukunftsweisende Elektro-Installation*
- Abgeschirmte Lichtleitungen für moderne, störungsfreie Beleuchtung und Lichtszenarien
- Rollläden im Erd- und Obergeschoss Ihres Schwabenhauses
- Doppel-Wärmepumpe Eco* für Heizen, Kühlen, Lüften, Luftreinigung und Warmwasser
- Schwimmender Estrich mit Wärmedämmung*
- Blower-Door Test zur Überprüfung der Luftwechselrate*
- Klima-Komfort-Außenwand mit über 200 Putzfarben zur Auswahl
- Hochwertige, mehrschichtige Holz-Haustür in vielfältigen Design-Lösungen, mit Sicherheitsschließzylinder, 5-fach- Sicherheits-Verriegelung und 3-Scheiben-Wärmeschutzverglasung
- Kunststoff-Fenster mit 3-Scheiben- Wärmeschutzverglasung
- Dachflächenfenster mit Kipp- und Schwingfunktion sowie elektrischen Rollläden*, wenn laut Grundriss enthalten
- Außenfensterbänke aus Naturstein
- Innenfensterbänke aus Kunst- oder Naturstein*
- Massiv-Vollholz-Treppe
- Protect Versicherungs-Paket mit Wohngebäude-Versicherung inkl. Elementarschutz, Haus- und Wohnungs-Schutzbrief, Bauleistungs-Versicherung und Bauherren-Haftpflichtversicherung sowie Job-Protect Versicherungs-Paket
- 10 sowie 30 Jahre Gewährleistung gemäß Definition in der Schwabenhaus Bau- und Leistungsbeschreibung
*Ab Ausbaustufe "Fast-Vollendet"
¹Beim Effizienzhaus 40 Kühlung nur in Verbindung mit optionaler PV-Anlage.
Die aufgeführten Mehr-Werte und Leistungsinhalte beziehen sich ausschließlich auf das in der Schwabenhaus Bau- und Leistungsbeschreibung (BLB) beschriebene Technologie + Komfort-Paket "Green -Edition". Die Mehr-Werte und Leistungsinhalte anderer Schwabenhaus Bau- und Leistungsbeschreibungen bzw. Technologie + Komfort-Pakete können hiervon abweichen.
Lage
Lagebeschreibung für ein Grundstück in 39343 Erxleben
Das Grundstück befindet sich in einer ruhigen und naturnahen Lage im Ortskern von Erxleben, einer beschaulichen Gemeinde im Landkreis Börde, Sachsen-Anhalt. Die Umgebung ist von grünen Flächen und traditionellem ländlichem Charme geprägt, bietet jedoch gleichzeitig eine gute Anbindung an wichtige Infrastrukturangebote.
Verkehrsanbindung und ÖPNV:
Die Verkehrsanbindung ist durch die Nähe zur Bundesstraße B246 sehr gut. In Erxleben selbst gibt es eine gute Anbindung an den öffentlichen Personennahverkehr (ÖPNV). Von hier aus gelangt man schnell und bequem in benachbarte Städte. Die nächstgelegene Bushaltestelle befindet sich nur wenige Gehminuten entfernt, sodass eine regelmäßige Verbindung in die umliegenden Ortschaften und größeren Städte besteht. Der Bahnhof in Erxleben ist ebenfalls gut erreichbar und ermöglicht eine direkte Anbindung an das Schienennetz.
Einkaufsmöglichkeiten:
Für den täglichen Bedarf sind in Erxleben verschiedene kleine Einzelhändler sowie ein Supermarkt vorhanden, die eine unkomplizierte Versorgung gewährleisten. Größere Einkaufsmöglichkeiten sind in den nahegelegenen Städten Oschersleben, Haldensleben und Magdeburg zu finden.
Schulen und Bildungseinrichtungen:
In Erxleben selbst gibt es eine Grundschule sowie ein gut ausgestattetes Angebot an Kindergärten. Für weiterführende Schulen stehen in den benachbarten Städten Oschersleben und Magdeburg entsprechende Schulformen zur Verfügung, die in kurzer Zeit erreicht werden können. Magdeburg bietet zudem eine Vielzahl an Hochschulen und Universitäten.
Freizeitmöglichkeiten:
Erxleben und die umliegende Region bieten eine Vielzahl an Freizeitmöglichkeiten. Wander- und Radwege durchziehen die malerische Landschaft. In der Umgebung finden sich zudem zahlreiche Sportvereine und kulturelle Angebote, die das Leben im Ort bereichern. Im nahegelegenen Oschersleben gibt es ein Freizeitbad sowie diverse Sporteinrichtungen. Für Naturfreunde bieten sich zahlreiche Möglichkeiten zur Erholung in den angrenzenden Wäldern und an den verschiedenen Gewässern der Region.
Nähe zu größeren Städten:
Erxleben zeichnet sich durch seine Nähe zu größeren Städten aus. Die Landeshauptstadt Magdeburg ist nur etwa 20 km entfernt und bietet eine Vielzahl an kulturellen, gastronomischen und shoppingtechnischen Möglichkeiten. Oschersleben, ebenfalls in der Nähe, hat eine gute Anbindung an Magdeburg und bietet ebenfalls ein breites Spektrum an Freizeitmöglichkeiten. Die Region profitiert von der Nähe zur A2, die eine schnelle Verbindung zu Städten wie Halle und Braunschweig ermöglicht.
Zusammenfassend lässt sich sagen, dass das Grundstück in Erxleben eine ausgezeichnete Balance zwischen ländlicher Idylle und urbaner Erreichbarkeit bietet. Es ist ein perfekter Standort für diejenigen, die die Ruhe des Landes genießen möchten, dabei jedoch nicht auf die Vorzüge einer städtischen Infrastruktur verzichten wollen.
Sonstige Angaben
Vereinbaren Sie einen persönlichen Beratungstermin, um über Ihren Haustraum und das angebotene Objekt zu sprechen.
Bitte beachten Sie, dass die dargestellten Bilder und Grundrisse nur beispielhaft sind und unter Umständen Sonderbauteile enthalten, die nicht im aufgerufenen Preis inkludiert sind.
Haben Sie außerdem Verständnis dafür, dass erst nach dem persönlichen Gespräch weitere Details zu dem angebotenen Grundstück bekanntgegeben werden und dass nur vollständige Anfragen bearbeitet werden können.
Anbauteile, Carport, Garage und Keller können Extras sein, die als Sonderausstattung angeboten werden. Abbildungen, Grundrisse und Flächenangaben sind beispielhaft und können Extras zeigen. Flächenangaben nach DIN 277.
Profitieren Sie jetzt von der Schwabenhaus Online Beratung und verwirklichen Sie Ihr Traumhaus https://www.schwabenhaus.de/anmeldung-hausbau-beratung-online/
Grundriss
Grundriss Erdgeschoss
>
>
Grundriss Obergeschoss
>
>
Adresse
39343 Erxleben
Interessante Orte
Preis- und Lageinformationen
Preistrend für Bestandsimmobilien in Erxleben