Herzlich willkommen in Ihrem neuen Zuhause! Wir haben Ihr zukünftiges Eigenheim verwirklicht – schlüsselfertig, alles aus einer Hand und in zentraler Lage. Das moderne Reihenmittelhaus an der Sievekestraße in Warsingsfehn ist bereits fertiggestellt und bietet Ihnen höchsten Wohnkomfort.
Das angebotene Reihenmittelhaus beeindruckt mit einer großzügigen Wohn- und Nutzfläche von ca. 98 m². Im Erdgeschoss finden Sie einen geräumigen Wohnbereich mit offener Küche, ein Gäste-WC sowie einen Hauswirtschaftsraum mit Anschlüssen für Waschmaschine und Trockner.
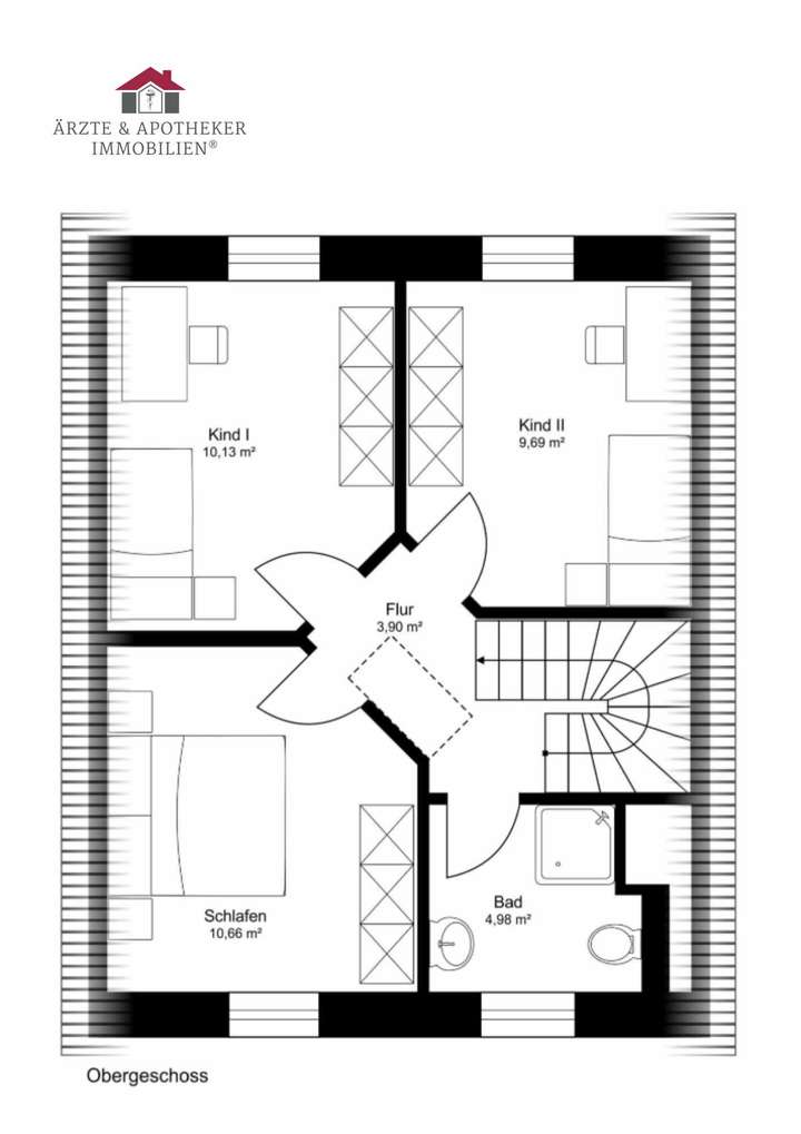
Das Obergeschoss verfügt über drei gemütliche Zimmer und ein Tageslichtbad mit ebenerdiger Dusche.
Für Ihren Komfort ist die gesamte Wohnfläche mit Fußbodenheizung ausgestattet. Die Beheizung erfolgt umweltfreundlich und energieeffizient durch eine Luft-Wasser-Wärmepumpe.
Der Außenbereich des Hauses umfasst einen eigenen kleinen Gartenbereich mit Terrasse, einen praktischen Geräteschuppen und einen Pkw-Stellplatz. Hier können Sie entspannte Stunden im Freien genießen und Ihr neues Zuhause in vollen Zügen erleben
Modernes & energieeffizientes Reihenmittelhaus in zentraler Lage – schlüsselfertig & bezugsbereit!
26802 Moormerland
Die vollständige Adresse der Immobilie erhalten Sie vom Anbieter.
Auf Karte anzeigen
Die vollständige Adresse der Immobilie erhalten Sie vom Anbieter.
Finanzierungszertifikat
In nur zwei Minuten zu Ihrem persönlichen Finanzierungszertifkat.
Infos
| Haustyp | Reihenmittelhaus |
|---|---|
| Wohnfläche ca. | 94 m2 |
| Grundstücksfläche | 186 m2 |
| Zimmer | 4 |
| Schlafzimmer | 3 |
| Badezimmer | 1 |
| Garage/Stellplatz | Außenstellplatz |
| Anzahl Garage/Stellplatz | 1 |
Kosten
| Kaufpreis |
339.000 € |
|---|---|
| Preis für Garage/Stellplatz | 9.900 € |
| Provision |
2,50% inkl. 19% MwSt. des beurkundeten Kaufpreises |
Finanzierungsrechner:
Kaufpreis:
600.000 €
Eigenkapital:
600.000 €
Monatliche Rate
0 €
Effektiver Jahreszins
0 %
Sollzinsbindung
10 Jahre
Bausubstanz & Energieausweis
| Baujahr | 2023 |
|---|---|
| Objektzustand | Erstbezug |
| Heizungsart | Fußbodenheizung |
| Energieausweis | liegt vor |
| Energieausweistyp | Bedarfsausweis |
| Energieverbrauchskennwert | 19,0 kWh/(m²*a) |
| Energieeffizienzklasse | A+ |
19,0
kWh/(m²*a)
Energieeffizienzklasse A+
- A+
- A
- B
- C
- D
- E
- F
- G
- H
- 0
- 25
- 50
- 75
- 100
- 125
- 150
- 175
- 200
- 225
- >250
Beschreibung des Objekts
Ausstattung
Luft/Wasser-Wärmepumpe – Effiziente und umweltfreundliche Heiztechnik für niedrige Energiekosten.
Lüftungsanlage mit Wärmerückgewinnung – Optimales Raumklima durch kontrollierte Belüftung und Energieeinsparung.
Versorgungsleitungen – Hochwertige und zukunftssichere Installation für Strom, Wasser und Heizung.
3-fach verglaste Isolierfenster – Hervorragende Wärmedämmung für optimalen Schallschutz und Energieeffizienz.
Elektrische Außenrollläden – Komfortable Steuerung für optimalen Sicht- und Sonnenschutz.
Fußbodenheizung – Angenehme und gleichmäßige Wärmeverteilung in allen Wohnräumen.
Hochwertige Fußbodenbeläge und Malerarbeiten – Modernes, stilvolles Design mit langlebigen Materialien.
Ebenerdige Dusche – Barrierearme Badausstattung für maximalen Komfort.
Dachboden ausbaufähig – Zusätzliche Erweiterungsmöglichkeit für mehr Wohnraum oder Stauraum.
PKW-Stellplatz – Bequeme Parkmöglichkeit direkt am Haus, käuflich zu erwerben für 9.900 €.
Schlüsselfertig zum Festpreis nach Real-Baubeschreibung – Keine versteckten Kosten, sofort bezugsfertig.
Lage
Die Sievekestraße liegt im Ortsteil Warsingsfehn der Gemeinde Moormerland in Ostfriesland, Niedersachsen. Warsingsfehn ist der Verwaltungssitz der Gemeinde und zeichnet sich durch seine zentrale Lage zwischen Leer, Emden und Aurich aus.
Die Sievekestraße ist eine ruhige Wohnstraße mit guter Anbindung an den Alltag. Einkaufsmöglichkeiten wie EDEKA Vela (250 m), Combi Verbrauchermarkt (440 m), ALDI Nord (170 m), Lidl (540 m) und Netto Marken-Discount (460 m) sind fußläufig erreichbar und ermöglichen eine komfortable Nahversorgung. Auch Kindergärten, Schulen sowie medizinische Einrichtungen befinden sich in unmittelbarer Nähe. Dank der schnellen Anbindung an die Autobahn A31 sind Städte wie Leer und Emden schnell erreichbar.
Die Umgebung bietet zahlreiche Freizeitmöglichkeiten. Historische Kirchen, Mühlen und Museen wie die „Alte Seilerei“ laden zu Besichtigungen ein. Die idyllische Fehnlandschaft mit Kanälen und Radwegen bietet ideale Bedingungen für Spaziergänge und Radtouren. Nahegelegene Gewässer, wie das Boekzeteler Meer oder das Naturschutzgebiet Fehntjer Tief, sind ideal für Naturbeobachtungen und Wassersport.
Regelmäßige Dorffeste und kulturelle Veranstaltungen stärken das Gemeinschaftsgefühl. Die Kombination aus einer ruhigen Wohnlage, ausgezeichneter Nahversorgung und attraktiven Freizeitmöglichkeiten macht die Sievekestraße zu einem idealen Wohnort für alle, die naturnah und dennoch gut angebunden leben möchten.
Sonstige Angaben
Vielen Dank für Ihr Interesse an der von uns angebotenen Immobilie.
Bitte haben Sie Verständnis dafür, dass wir unseren Auftraggebern Diskretion zugesagt haben und Sie daher um die Angabe Ihrer vollständigen Kontaktdaten inkl. Ihrer Telefonnummer bitten müssen.
Gern senden wir Ihnen anschließend ein Exposé zu.
Folgen Sie uns auf Instagram unter @auaimmo! Erfahren Sie von neuen Objekten, wie z.B. von der „Immobilie der Woche“ oder profitieren Sie von unseren Tipps und Tricks für Eigentümer und Suchende.
Grundriss
Erdgeschoss
>
>
Dachgeschoss
>
>
Adresse
26802 Moormerland
Interessante Orte
Preis- und Lageinformationen
Preistrend für Bestandsimmobilien in Moormerland