Willkommen in Ihrem neuen Zuhause – ein Ort voller Charakter, Geschichte und Geborgenheit!
Dieses außergewöhnliche Ein- bzw. Zweifamilienhaus aus ca. 1900 begeistert mit seinem unverwechselbaren Fachwerk-Charme, einer zentralen und beliebten Lage sowie einem liebevoll angelegten Grundstück von 381 m² – eine echte Rarität in dieser Umgebung.
Mit einer großzügigen Wohnfläche von rund 197 m² und zusätzlichen 103 m² Nutzfläche bietet die Immobilie vielseitige Nutzungsmöglichkeiten – ob als großzügiges Einfamilienhaus oder getrenntes Zweifamilienhaus mit zwei Wohneinheiten. Der im Jahr 1969 errichtete Anbau fügt sich harmonisch in das ursprüngliche Gebäude ein und sorgt für eine gelungene Verbindung aus historischem Charme und funktionaler Raumaufteilung.
Highlights des Hauses
•Baujahr ca. 1900 – teils Fachwerk mit unverwechselbarem Charakter
•Erweiterung im Jahr 1969
•Nutzung als Einfamilien- oder Zweifamilienhaus möglich
•Großzügige Wohnfläche mit flexibler Raumaufteilung über mehrere Etagen
•Helle, gemütliche Wohnräume mit viel Tageslicht
•Sonnige Terrasse und pflegeleichter Garten für entspannte Stunden im Freien
•Balkon im Obergeschoss mit schönem Ausblick
•Mehrere Schlaf-, Arbeits- und Aufenthaltsräume – ideal für Familien, Mehrgenerationen oder Homeoffice
•Nutzfläche ca. 103 m² im Keller und Dachboden – perfekt für Stauraum, Hobby oder Ausbauideen
•Zentrale und begehrte Wohnlage mit hervorragender Infrastruktur
Raumaufteilung
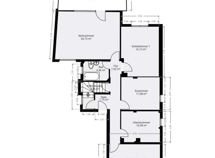
Erdgeschoss: Wohnzimmer mit Terrassenzugang, Schlafzimmer, Esszimmer, Arbeitszimmer, Bad und Flur
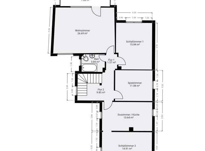
Obergeschoss: Zweites Wohnzimmer mit Balkon, zwei Schlafzimmer, Spielzimmer, Küche mit Essbereich
Dachgeschoss: Drei Dachbodenräume mit zusätzlichem Ausbaupotenzial
Kellergeschoss: Zwei Kellerräume, Heizungsraum und Flur
Der idyllische Garten lädt zum Entspannen ein und bietet zugleich genug Platz für Kinder, Haustiere oder gesellige Sommerabende.
Seltenes Schmuckstück mit Charme und Geschichte – zentrales Ein- oder Zweifamilienhaus mit Garten
61476 Kronberg im Taunus
Die vollständige Adresse der Immobilie erhalten Sie vom Anbieter.
Auf Karte anzeigen
Die vollständige Adresse der Immobilie erhalten Sie vom Anbieter.
Finanzierungszertifikat
In nur zwei Minuten zu Ihrem persönlichen Finanzierungszertifkat.
Infos
| Haustyp | Einfamilienhaus |
|---|---|
| Etagenzahl | 2 |
| Wohnfläche ca. | 197 m2 |
| Nutzfläche | 103 m2 |
| Grundstücksfläche | 381 m2 |
| Zimmer | 10 |
| Badezimmer | 2 |
| Garage/Stellplatz | Außenstellplatz |
| Anzahl Garage/Stellplatz | 2 |
Kosten
| Kaufpreis |
599.000 € |
|---|---|
| Provision |
3,57% inkl. MwSt. Wir haben einen provisionspflichtigen Maklervertrag mit dem Verkäufer in gleicher Höhe abgeschlossen. |
Finanzierungsrechner:
Kaufpreis:
600.000 €
Eigenkapital:
600.000 €
Monatliche Rate
0 €
Effektiver Jahreszins
0 %
Sollzinsbindung
10 Jahre
Bausubstanz & Energieausweis
| Baujahr | 1900 |
|---|---|
| Objektzustand | Renovierungsbedürftig |
| Heizungsart | Zentralheizung |
| Wesentliche Energieträger | Gas |
| Energieausweis | liegt vor |
| Energieausweistyp | Bedarfsausweis |
| Energieverbrauchskennwert | 261,4 kWh/(m²*a) |
| Energieeffizienzklasse | H |
261,4
kWh/(m²*a)
Energieeffizienzklasse H
- A+
- A
- B
- C
- D
- E
- F
- G
- H
- 0
- 25
- 50
- 75
- 100
- 125
- 150
- 175
- 200
- 225
- >250
Beschreibung des Objekts
Lage
Kronberg im Taunus zählt zu den begehrtesten Wohnlagen der Rhein-Main-Region. Die Stadt vereint historischen Charme, naturnahes Wohnen und urbane Lebensqualität auf besondere Weise.
Die imposante Burg Kronberg, die malerische Altstadt mit ihren liebevoll restaurierten Fachwerkhäusern sowie die herrschaftlichen Villen und Sommerresidenzen aus der Zeit der Jahrhundertwende prägen bis heute das unverwechselbare Stadtbild. Umgeben von grünen Parkanlagen und der reizvollen Landschaft des Taunus entsteht hier eine Atmosphäre, in der sich Tradition und Moderne harmonisch verbinden.
Kronberg ist verkehrsgünstig angebunden: Über die B455 erreichen Sie schnell die A661 und A66, der Flughafen Frankfurt liegt nur etwa 25 Kilometer entfernt. Die S-Bahn-Linie S4 bringt Sie bequem nach Frankfurt am Main und in die umliegenden Städte. Eine Park & Ride-Anlage am Bahnhof erleichtert den täglichen Arbeitsweg.
Für den täglichen Bedarf bietet Kronberg alles, was das Leben angenehm macht – von Supermärkten, Apotheken und Boutiquen bis hin zu Feinkostläden und regionalen Produkten. Zahlreiche Cafés und Restaurants laden zum Verweilen ein und verleihen der Stadt ihre besondere Lebensart.
Familien profitieren von einem breiten Bildungs- und Betreuungsangebot: Mehrere Kindertagesstätten, Grundschulen und eine Gesamtschule mit gymnasialer Oberstufe gewährleisten kurze Wege und eine ausgezeichnete Versorgung.
Auch das Freizeit- und Kulturleben kann sich sehen lassen: Der weit über die Region hinaus bekannte Opel-Zoo, vielfältige Vereine, der Kronberger Kulturkreis, die Kunstschule und die Stadtbücherei sorgen für Abwechslung und Inspiration. Für Sportbegeisterte stehen Golfplätze, Tennisanlagen, Reitmöglichkeiten sowie ein weitläufiges Wander- und Radwegenetz zur Verfügung.
Kronberg im Taunus – ein Ort, an dem Lebensqualität, Natur und Stil zu einem besonderen Wohngefühl verschmelzen.
Sonstige Angaben
Dieses Haus ist mehr als nur ein Zuhause – es ist ein Ort mit Seele, an dem Geschichte und Wohnkomfort aufeinandertreffen. Ob als großzügiges Familienhaus oder charmantes Zweifamilienhaus – hier lassen sich individuelle Wohnträume verwirklichen.
Grundriss
Erdgeschoss
>
>
Obergeschoss
>
>
Dachgeschoss
>
>
Kellergeschoss
>
>
Adresse
61476 Kronberg im Taunus
Interessante Orte
Preis- und Lageinformationen
Preistrend für Bestandsimmobilien in Kronberg im Taunus