Diese Doppelhaushälfte steht in einer der beliebten Lagen von Steinbach. Über viele Jahre war sie das Zuhause einer Familie, die hier gelebt, gelacht und ihr Leben gestaltet hat. Man spürt in jedem Winkel, dass in diesem Haus viele schöne Erinnerungen entstanden sind. Nun wartet es darauf, mit frischen Ideen und Tatkraft in eine neue Ära geführt zu werden.
Das eingewachsene, grüne Grundstück ist ein Paradies für Kinder, es darf noch im Garten gespielt, getobt und entdeckt werden. Währenddessen genießen die Eltern die Ruhe, das Vogelgezwitscher und die Geborgenheit einer gewachsenen, familienfreundlichen Nachbarschaft. Alle Annehmlichkeiten des täglichen Lebens sind nur einen Steinwurf entfernt, hier wohnt man mittendrin und doch angenehm ruhig.
Das Haus wurde 1963 erbaut und 1975 mit einer Garage, einem Anbau samt Unterkellerung, einer erweiterten Terrasse und deren Überdachung erweitert. Heute präsentiert es sich als ehrliches Haus mit Geschichte, bereit für eine vollständige Sanierung. Genau das macht seinen Reiz aus: ein echtes Projekt für Macher, die Raum für ihre Ideen suchen und ein Zuhause nach ihren Vorstellungen gestalten möchten - Kernsanierung notwendig.
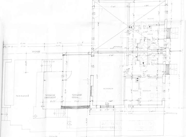
Im Erdgeschoss erwartet Sie der klassische Windfang mit Gäste-WC, ein gemütliches Esszimmer mit angrenzender Küche sowie ein sehr großzügiger Wohnbereich. Der Anbau schafft hier zusätzlich Platz und eröffnet viele Möglichkeiten für eine moderne Raumaufteilung. Der Grundriss lässt sich hervorragend an heutige Wohnkonzepte anpassen, der Platz ist da, man muss ihn nur nutzen.
Im Obergeschoss befinden sich drei Schlafzimmer und ein Badezimmer. Eines der Zimmer verfügt über eine eigene Ankleide sowie den Zugang zum Balkon mit Blick in den grünen Garten, perfekt, um den Tag bei einer Tasse Kaffee zu beginnen oder ihn in ruhiger Atmosphäre ausklingen zu lassen. Zwei weitere Zimmer sind hell und freundlich und eignen sich ideal als Kinderzimmer, Gästezimmer oder Homeoffice.
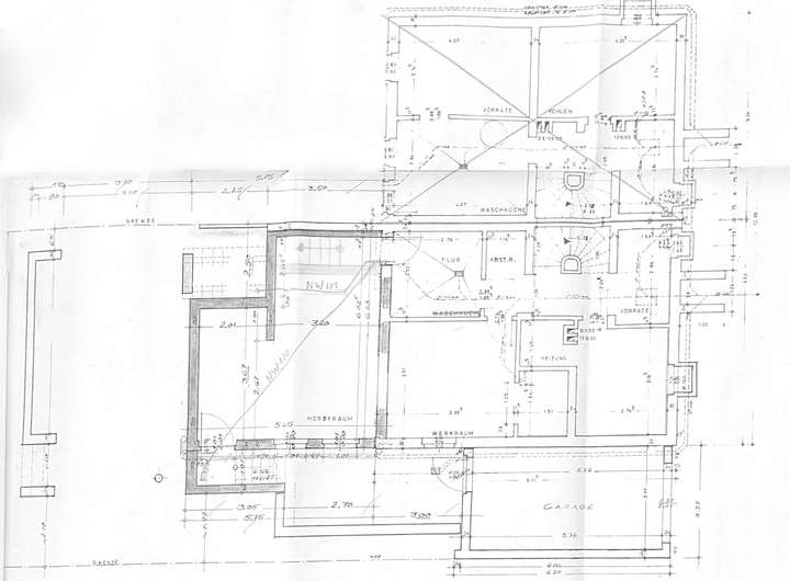
Im Untergeschoss gibt es gleich zwei Hobbyräume, einer davon mit direktem Außenzugang, perfekt für Feiern oder gemütliche Treffen, wenn das Wetter einmal nicht mitspielt. Gäste gelangen hier bequem vom Garten hinein. Der zweite Hobbyraum bietet sich als Spielzimmer, Office oder Gästezimmer an und verfügt sogar über ein eigenes Bad. Außerdem gibt es im Keller eine Waschküche, einen kleinen Vorratsraum und eine Werkstatt, praktisch und vielseitig nutzbar.
Auch außen überzeugt das Haus mit viel Raum und Struktur: Ein gepflegter Vorgarten, zwei Stellplätze vor dem Haus und die Garage mit elektrischem Tor bieten Komfort im Alltag. Von der Garage führt ein direkter Zugang in den Garten, ideal für kurze Wege und unkompliziertes Familienleben.
Diese Immobilie bietet Platz, Potenzial und eine Lage, die man so selten findet. Sie wartet auf Menschen, die gestalten wollen, nicht nur bewohnen, auf Macher, die wissen, dass sich Einsatz lohnt.
Wir freuen uns, Ihnen dieses spannende Projekt persönlich zu zeigen und Sie auf dem Weg zu Ihrem neuen Zuhause zu begleiten.
Vereinbaren Sie gerne einen Besichtigungstermin, wir führen Sie durch ein Haus, das auf seinen nächsten Lebensabschnitt wartet.
Hinweis zu Bilddarstellungen:
Einige Abbildungen dieses Exposés können digital bearbeitet oder als Gestaltungsbeispiele dargestellt sein. Die Darstellungen dienen der unverbindlichen Illustration und können vom tatsächlichen Zustand abweichen.
Haus sucht Macher – wer’s kann, wird’s lieben!
61449 Steinbach (Taunus)
Die vollständige Adresse der Immobilie erhalten Sie vom Anbieter.
Auf Karte anzeigen
Die vollständige Adresse der Immobilie erhalten Sie vom Anbieter.
Finanzierungszertifikat
In nur zwei Minuten zu Ihrem persönlichen Finanzierungszertifkat.
Infos
| Haustyp | Doppelhaushaelfte |
|---|---|
| Wohnfläche ca. | 120 m2 |
| Nutzfläche | 26 m2 |
| Grundstücksfläche | 465 m2 |
| Bezugsfrei ab | sofort |
| Zimmer | 6 |
| Schlafzimmer | 3 |
| Badezimmer | 2 |
| Garage/Stellplatz | Garage |
| Anzahl Garage/Stellplatz | 3 |
Kosten
| Kaufpreis |
565.000 € |
|---|---|
| Provision |
3,57% Gerne führen wir gemeinsam mit Ihnen eine Besichtigung durch und stehen im Anschluss mit weiteren Informationen zum Objekt zur Verfügung. Im Falle des Abschlusses eines Kaufvertrages wird die zu zahlende Maklerprovision von 3,57%, inklusive Mehrwertsteuer, von Ihnen getragen. Bitte beachten Sie, dass wir keine Haftung für die Angaben zum Objekt, seine Nutzung und Beschaffenheit übernehmen können. Die bereitgestellten Informationen basieren auf den Angaben des Eigentümers, und Änderungen der Bedingungen oder andere Bewertungen behält sich der/die Eigentümer*in jederzeit vor. Wir möchten darauf hinweisen, dass dieses Angebot ausschließlich für Sie bestimmt ist. Eine Weitergabe bedarf der ausdrücklichen Zustimmung durch uns, ansonsten löst die Weitergabe Provisionspflicht aus. Für weitere Fragen oder für die Vereinbarung eines Besichtigungstermins stehen wir Ihnen gerne zur Verfügung. |
Finanzierungsrechner:
Kaufpreis:
600.000 €
Eigenkapital:
600.000 €
Monatliche Rate
0 €
Effektiver Jahreszins
0 %
Sollzinsbindung
10 Jahre
Bausubstanz & Energieausweis
| Baujahr | 1963 |
|---|---|
| Heizungsart | Öl-Heizung |
| Wesentliche Energieträger | Öl |
| Energieausweis | liegt vor |
| Energieausweistyp | Bedarfsausweis |
| Energieverbrauchskennwert | 365,1 kWh/(m²*a) |
| Energieeffizienzklasse | H |
365,1
kWh/(m²*a)
Energieeffizienzklasse H
- A+
- A
- B
- C
- D
- E
- F
- G
- H
- 0
- 25
- 50
- 75
- 100
- 125
- 150
- 175
- 200
- 225
- >250
Beschreibung des Objekts
Ausstattung
∙ Parkett
∙ Garage mit elekt. Tor
∙ Kachelofen
∙ Anbau
∙ Unterkellerung der Terrasse
∙ Überdachung der Terrasse
∙ ein Hobbyraum Außenausgang
∙ ein Hobbyraum mit Bad
∙ Garten bereits angelegt (Strom im Garten)
∙ Gartenhaus
∙ eingezäunt
Lage
Steinbach am Taunus ist eine Stadt im Hochtaunuskreis in Hessen, unmittelbar westlich von Frankfurt am Main gelegen. Mit rund 10.000 Einwohnern bietet sie eine ideale Verbindung von städtischer Nähe und ländlicher Ruhe. Eingebettet zwischen dem Vordertaunus und der Rhein-Main-Ebene liegt Steinbach in einer landschaftlich reizvollen Umgebung mit Wiesen, Feldern und Waldflächen.
Die Stadt verfügt über eine ausgezeichnete Verkehrsanbindung: Die S-Bahn-Linie S5 verbindet Steinbach direkt mit Frankfurt, Bad Homburg und Friedrichsdorf. Über die nahegelegenen Autobahnen A5 (Kassel–Frankfurt) und A66 (Wiesbaden–Frankfurt) ist Steinbach hervorragend an das überregionale Straßennetz angeschlossen, und die Bundesstraße B455 sorgt für eine schnelle Verbindung zu den Nachbarstädten Oberursel und Königstein. Der Frankfurter Flughafen ist in etwa 20 Minuten mit dem Auto erreichbar.
Auch im Bildungsbereich ist Steinbach gut aufgestellt. Mit der Geschwister-Scholl-Schule steht eine öffentliche Grundschule zur Verfügung, und der Phorms Frankfurt Taunus Campus bietet als private bilinguale Einrichtung sowohl Grundschule als auch Gymnasium an.
Neben Schulen und Kinderbetreuungseinrichtungen bietet Steinbach eine moderne Infrastruktur, vielfältige Freizeit- und Sportmöglichkeiten sowie ein aktives Vereinsleben. Der historische Ortskern mit seinen Fachwerkhäusern erinnert an die bäuerlichen Wurzeln der Stadt, während neue Wohngebiete und Gewerbeflächen für modernes Leben und Arbeiten sorgen. Insgesamt verbindet Steinbach am Taunus eine hohe Lebensqualität mit optimaler Anbindung an die Metropolregion Frankfurt/Rhein-Main.
Sonstige Angaben
Gerne führen wir gemeinsam mit Ihnen eine Besichtigung durch und stehen im Anschluss mit weiteren Informationen zum Objekt zur Verfügung. Im Falle des Abschlusses eines Kaufvertrages wird die zu zahlende Maklerprovision von 3,57% inklusive Mehrwertsteuer von Ihnen getragen. Bitte beachten Sie, dass wir keine Haftung für die Angaben zum Objekt, seine Nutzung und Beschaffenheit übernehmen. Die bereitgestellten Informationen basieren auf den Angaben des Eigentümers, Änderungen der Bedingungen oder andere Verwertungen behält sich der/die Eigentümer*in jederzeit vor.
Wir möchten darauf hinweisen, dass dieses Angebot ausschließlich für Sie bestimmt ist. Eine Weitergabe bedarf der ausdrücklichen Zustimmung durch uns, ansonsten löst die Weitergabe Provisionspflicht aus. Für weitere Fragen oder für die Vereinbarung eines Besichtigungstermins stehen wir Ihnen gerne zur Verfügung.
Fuchsberger & Voigt Immobilien
Ihre Immobilienmakler
Adresse
61449 Steinbach (Taunus)
Interessante Orte
Preis- und Lageinformationen
Preistrend für Bestandsimmobilien in Steinbach (Taunus)