• Neuwertiges, äußerst repräsentatives Anwesen in Frankfurter Bestlage auf knapp 1.200 m² Grundstück
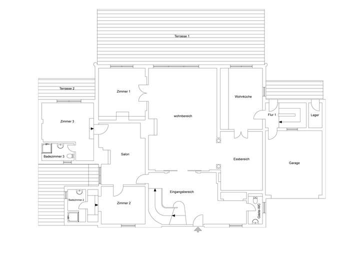
• 485 m² luxuriöse Wohnfläche auf 3 Ebenen mit idealer Raumaufteilung und beeindruckenden Deckenhöhen inklusive imposanter Galerie
• 7 Schlafzimmer mit jeweils edlem Ensuite-Bad
• maßgefertigte Einbauküche mit hochwertigen Geräten und zeitlosem Design
• französische Kamine aus dem 18. Jahrhundert
• diverse, maßgefertigte Einbauschränke, Bibliothek, begehbare Kleiderschränke im gesamten Haus
• Hochwertige Ausstattung wie bodentiefe Holzsprossenfenster, Fußbodenheizung, maßgefertigte Ziersäulen und Flügeltüren, Stuck, Fischgrätparkett, Holzvertäfelungen, elektrische Rolläden, Security-System uvm
• Spa- und Fitnessbrereich mit Sauna
• Einliegerwohnung oder Nannybereich
• separater Gästetrakt mit eigenem Eingang und Outdoor Area
• Doppelgarage mit direktem Zugang zur Küche und dem großzügigen Garten sowie zwei weitere Stellplätze in der Einfahrt
• neue Gasheizung von 2020
Imposante Villa im französischen Stil mit separatem Gästetrakt, Spa, 3 Kaminen und Parkgrundstück
60598 Frankfurt am Main
Die vollständige Adresse der Immobilie erhalten Sie vom Anbieter.
Auf Karte anzeigen
Die vollständige Adresse der Immobilie erhalten Sie vom Anbieter.
Finanzierungszertifikat
In nur zwei Minuten zu Ihrem persönlichen Finanzierungszertifkat.
Infos
| Haustyp | Villa |
|---|---|
| Etagenzahl | 3 |
| Wohnfläche ca. | 485 m2 |
| Nutzfläche | 80 m2 |
| Grundstücksfläche | 1.165 m2 |
| Bezugsfrei ab | nach Vereinbarung |
| Zimmer | 12 |
| Schlafzimmer | 7 |
| Badezimmer | 8 |
| Garage/Stellplatz | Garage |
| Anzahl Garage/Stellplatz | 4 |
Kosten
| Kaufpreis |
4.175.000 € |
|---|---|
| Provision |
3,57 % inkl. MwSt. |
Finanzierungsrechner:
Kaufpreis:
600.000 €
Eigenkapital:
600.000 €
Monatliche Rate
0 €
Effektiver Jahreszins
0 %
Sollzinsbindung
10 Jahre
Bausubstanz & Energieausweis
| Baujahr | 1992 |
|---|---|
| Letzte Sanierung | 2025 |
| Bauphase | Haus fertig gestellt |
| Objektzustand | Neuwertig |
| Qualität der Austattung | Luxus |
| Heizungsart | Gas-Heizung |
| Wesentliche Energieträger | Erdgas schwer |
| Energieausweis | liegt vor |
| Energieausweistyp | Bedarfsausweis |
| Energieeffizienzklasse | D |
Energieeffizienzklasse D
- A+
- A
- B
- C
- D
- E
- F
- G
- H
- 0
- 25
- 50
- 75
- 100
- 125
- 150
- 175
- 200
- 225
- >250
Beschreibung des Objekts
Ausstattung
INTERIOR
Hochexklusive 485 m² Wohnfläche, verteilt auf drei durchdachte Ebenen, erschaffen eine Atmosphäre aus Licht, Struktur und fließenden Übergängen. Die Architektur verbindet klassische Eleganz mit zeitloser Modernität – ein Statement für Wohnqualität auf höchstem Niveau.
Schon beim ersten Schritt durch die Tür öffnet sich eine Inszenierung aus Raum und Material. Die Eingangshalle, gestaltet aus edlem Marmor, wirkt repräsentativ und einladend zugleich. Von hier aus entfaltet sich das Haus mit einer klaren, aufeinander abgestimmten Linienführung, die jeden Raum mit dem nächsten verbindet. Eine imposante, offene Galerie mit breitem Treppenaufgang rundet dieses repräsentative Entrée ab.
Das Fischgrätparkett aus feiner Eiche mit umlaufendem Fries verleiht den Wohnräumen Charakter, während großflächige weiße Holzsprossenfenster mit Rollläden das Licht subtil lenken und stets eine Verbindung zum Außenraum bewahren. Jedes Detail wurde bewusst gewählt – glatt Wände mit Malerleisten, fein dosierter Stuck, klassisches Maßwerk, das dem Haus eine natürliche Eleganz verleiht.
Der Wohnbereich mit Kamin bildet das Herzstück des Hauses. Großzügige, bodentiefe Sprossenfensterfronten öffnen sich zur Terrasse, während drei opulente Original-Kamine aus dem 18. Jahrhundert Geschichte und Gegenwart miteinander verweben. Der Raum strahlt eine souveräne Ruhe aus, verstärkt durch ein fein abgestimmtes Licht- und Farbkonzept, das in allen Räumen integriert wurde.
Die angrenzende Küche, maßgefertigt mit Miele-Einbaugeräten und Marmorpaneelen, ist eine elegante Symbiose aus Tradition und zeitloser Eleganz.
Die insgesamt zwölf Zimmer und acht Bäder sind als private Refugien konzipiert, jedes mit eigenem Charakter. Die Badezimmer – eine perfekte Balance aus klassisch-eleganten Elementen – sind mit Marmor, THG Paris Armaturen und Czech&Speake Sanitär-Objekten ausgestattet. Bodentiefe Duschen, freistehende Wannen, maßgefertigte Waschtische, ergänzt durch ausgewählte Materialien, machen jedes dieser Bäder zu einem Ort der Ruhe.
Im Obergeschoss führt eine beeindruckende, offene Galerie zu vier großzügigen Schlafzimmern, die jeweils mit eigenem Ensuite-Bad ausgestattet sind. Das Herren- und Damenbad, separiert durch eine maßgefertigte, deckenhohe Ankleide, schafft eine exklusive Spa-Atmosphäre – stilvoll, minimalistisch, kompromisslos hochwertig.
Das Untergeschoss mit großem Hobbyraum, Spa- und Fitnessbereich, Einliegerwohnung für eine Nanny oder Personal ist eine großzügige Erweiterung des Wohnraums. Der Wellnessbereich mit Sauna, Ruhezone und begehbarer Dusche verwandelt auch diesen Bereich in einen privaten Rückzugsort. Ergänzt wird diese Ebene durch diverse Keller- , Hauswirtschafts- und Technikräume, die sowohl praktische als auch gestalterische Funktion erfüllen.
Jedes Detail ist Teil eines Gesamtbildes, das Architektur und Wohnen auf höchstem Niveau in einer perfekten Balance vereint.
EXTERIOR
Eingebettet in ein 1.165 m² großes Grundstück, befindet sich die Villa Lerchesberg in einer der begehrtesten Lagen Frankfurts. Die klassische Fassade, geprägt von zeitloser Zurückhaltung, lässt den Fokus auf die Umgebung wirken: ein gewachsener Garten mit altem Baumbestand, der Ruhe ausstrahlt und eine einmalige Privatsphäre schafft.
Die diversen großzügigen Terrassen erweitern das Wohnkonzept nach außen, während große, bodentiefe Sprossenfensterfronten die Grenzen zwischen Innen und Außen verschwimmen lassen.
Ein Doppelgarage sowie zwei Stellplätze bieten ausreichend Platz für Fahrzeuge, während ein separater Lagerraum und Technikbereich unauffällig in die Architektur integriert wurde.
Die Lage am Lerchesberg, einer der exklusivsten Wohnadressen Frankfurts, verstärkt das Gesamtbild: eine Villa, die sich bewusst zurücknimmt und gerade dadurch eine unverkennbare Präsenz schafft.
Lage
Hoch über Frankfurt liegt der Lerchesberg, eine der begehrtesten Wohnadressen der Stadt – geprägt von großzügigen Villengrundstücken, gewachsenem Baumbestand und diskreter Eleganz. Die Anliegerstraße, in der sich das Anwesen befindet, sorgt für absolute Ruhe, während die pulsierende Innenstadt Frankfurts in wenigen Minuten erreichbar ist, ebenso wie renommierte Schulen, internationale Kindergärten und exklusive Sport- und Freizeitmöglichkeiten.
Sachsenhausen selbst bietet eine einzigartige Mischung aus Kultur und Lebensqualität – vom weltbekannten Museumsufer über gehobene Restaurants bis hin zu individuellen Boutiquen im Brückenviertel. Wer hier lebt, sucht nicht nur eine repräsentative Adresse, sondern ein Zuhause mit Charakter – privat, stilvoll, perfekt angebunden.
Sonstige Angaben
GELDWÄSCHE:
Als Immobilienmaklerunternehmen ist die von Fantastic Frank Frankfurt, FF Frankfurt OHG, nach § 2 Abs. 1 Nr. 14 und § 11 Abs. 1, 2 Geldwäschegesetz (GwG) dazu verpflichtet, bei der Begründung einer Geschäftsbeziehung die Identität des Vertragspartners festzustellen und zu überprüfen, bzw. sobald ein ernsthaftes Interesse an der Durchführung des Immobilienkaufvertrages besteht. Hierzu ist es erforderlich, dass wir nach § 11 Abs. 4 GwG die relevanten Daten Ihres Personalausweises festhalten, wenn Sie als natürliche Person handeln– beispielsweise mittels einer Kopie. Bei Firmen und juristischen Personen benötigen wir eine Kopie des Handelsregisterauszugs, aus welchem der wirtschaftlich Berechtigte hervorgeht. Das GWG sieht vor, dass der Makler diese Unterlagen fünf Jahre aufbewahren muss. Als unser Vertragspartner haben Sie auch eine Mitwirkungspflicht nach § 11 Abs. 6 GwG.
HAFTUNG:
Wir weisen darauf hin, dass die von uns weitergegebenen Objektinformationen, Unterlagen, Pläne etc. vom Verkäufer stammen. Eine Haftung für die Richtigkeit oder Vollständigkeit der Angaben übernehmen wir daher nicht. Es obliegt daher unseren Kunden, die darin enthaltenen Objektinformationen und Angaben auf ihre Richtigkeit hin zu überprüfen. Alle Immobilienangebote sind freibleibend und vorbehaltlich Irrtümer, Zwischenverkauf- und Vermietung oder sonstiger Zwischenverwertung.
Grundriss
13201415_3-312-5_2D_web
>
>
13201415_2-312-5_2D_web
>
>
13201415_1-312-5_2D_web
>
>
Adresse
60598 Frankfurt am Main
Interessante Orte
Preis- und Lageinformationen
Preistrend für Bestandsimmobilien in Sachsenhausen-Süd