Unter diesem Walmdach steckt ein ganz besonderes Konzept – und schon auf den ersten Blick ist hier die Individualität unverkennbar. Der rechteckige Grundriss bietet Raum für Singles, Paare und Familien. Die außergewöhnliche Planung sorgt für eine klare Gliederung in beiden Etagen. Groß, zeitlos-elegant und bis ins kleinste Detail durchdacht –
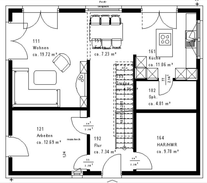
das zeichnet diese Stadtvilla aus! Auf einer Fläche von knapp 160 qm, verteilt auf zwei Ebenen. Zentraler Ort der Begegnung für Familie und Freunde ist der rund 38 qm große Wohn-Ess-Koch-Bereich.
Große Fensterfronten ermöglichen einen direkten Zugang
zum Garten und sorgen für maximalen Lichteinfall. Besonders
praktisch: Direkt an die Küche schließt sich eine Speisekammer
an. Außerdem im Erdgeschoss: ein komfortables Arbeits- od. Gästezimmer. Über
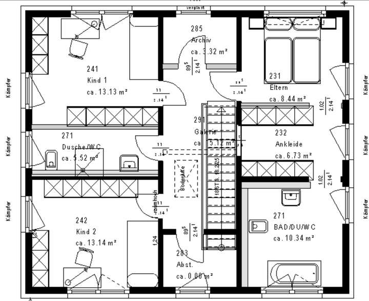
den offenen Dielenbereich geht es ins Obergeschoss
und damit in den Rückzugsort für die Familienmitglieder. Die Eltern verfügen
hier über eine Wohlfühloase mit großem Schlafbereich, separatem
Ankleidezimmer und sich unmittelbar anschließendem Badezimmer
mit Wanne, Dusche und WC. Gegenüber: das Reich der
Kinder. Die beiden geräumigen Zimmer werden durch ein eigenes
Bad voneinander getrennt. Abgerundet wird das Raumangebot
durch einen praktischen Abstellraum auf der Galerie.
moderne OKAL Stadtvilla zum Top Preis
60437 Frankfurt am Main
Die vollständige Adresse der Immobilie erhalten Sie vom Anbieter.
Auf Karte anzeigen
Die vollständige Adresse der Immobilie erhalten Sie vom Anbieter.
Finanzierungszertifikat
In nur zwei Minuten zu Ihrem persönlichen Finanzierungszertifkat.
Infos
| Haustyp | Einfamilienhaus |
|---|---|
| Etagenzahl | 2 |
| Wohnfläche ca. | 151 m2 |
| Grundstücksfläche | 548 m2 |
| Bezugsfrei ab | 2026 |
| Zimmer | 5 |
| Schlafzimmer | 4 |
| Badezimmer | 1 |
Kosten
| Kaufpreis |
1.057.900 € |
|---|---|
| Provision | Nein |
Finanzierungsrechner:
Kaufpreis:
600.000 €
Eigenkapital:
600.000 €
Monatliche Rate
0 €
Effektiver Jahreszins
0 %
Sollzinsbindung
10 Jahre
Bausubstanz & Energieausweis
| Baujahr | unbekannt |
|---|---|
| Bauphase | Haus in Planung (projektiert) |
| Qualität der Austattung | Gehoben |
| Heizungsart | Wärmepumpe |
| Wesentliche Energieträger | Strom |
| Energieausweis | liegt vor |
| Energieausweistyp | Bedarfsausweis |
| Energieverbrauchskennwert | 17,0 kWh/(m²*a) |
| Energieeffizienzklasse | A+ |
17,0
kWh/(m²*a)
Energieeffizienzklasse A+
- A+
- A
- B
- C
- D
- E
- F
- G
- H
- 0
- 25
- 50
- 75
- 100
- 125
- 150
- 175
- 200
- 225
- >250
Beschreibung des Objekts
Ausstattung
im unserem OKAL-Hauspreis enthalten sind:
+ umfangreiche Architektenleistung
+ Energieausweis für Neubauten
+ Bodenplatte inklusive Bodengutachten
+ Sockeldämmung 100mm
+ Lüftungsheizung (Wärmepumpe) PROXON
+ kontrollierte Be- / Entlüftung mit Wärmerückgewinnung
+ Wände- / Decken gespachtelt u.
geschliffen
+ Bäder gefliest, Sanitärobjekte
+ Elektrische Aluminiumrollläden
+ Zertifizierte Nachhaltigkeit
+ Festpreisgarantie 22 Monate
+ Alles aus einer Hand
Grundstückpreis (Preis ist einkalkuliert, jedoch können Sie über mich z.Z. nicht direkt das Grundstück erwerben!)
OKAL bietet Ihnen aber auch einen kostenfreien Grundstückservice an bzw. unterstützt Sie aktiv bei der Grundstücksuche.
Lage
Frankfurt, Nieder-Erlenbach
Sonstige Angaben
Kontaktieren Sie mich um von unserer aktuellen Aktion zu profitieren.
Die in diesem Inserat enthaltenen Bilder und Grundrisse stellen Muster dar, die von der späteren Ausführung Ihres Hauses abweichen können, da jedes OKAL-Haus individuell für Sie geplant und ausgestattet wird.
Weitere Dokumente
Prospekt_neue_ErstinformationOKAL Ausbaustufe Sommer 2021
Grundriss
Grundriss EG
>
>
Grundriss OG
>
>
Adresse
60437 Frankfurt am Main
Interessante Orte
Preis- und Lageinformationen
Preistrend für Bestandsimmobilien in Nieder-Erlenbach