Erfahrene Baupartner planen und realisieren Ihr Haus ganz individuell nach Ihren Vorstellungen und das ganze Massiv - Stein auf Stein.
Da die Wohnwünsche durchaus sehr vielfältig sind sollte ein Haus „von der Stange“ für Sie nur die 2. Wahl sein. Daher entstehen hier Häuser die im Grunde für jeden Kunden neu geplant und dann errichtet werden. Somit sind Ihre Wünsche unser Bauplan!
VORTEILE für Bauherren AUF EINEN BLICK:
• Bei dem hier angegebenen Preis ist bereits der Bauplatz und das schlüsselfertige/
bezugsfertige Haus inklusive. Damit sind auch bereits alle Boden- und Wandbeläge,
Anschlüsse, Bäder etc. einkalkuliert.
• Festpreisgarantie
• Bauzeitgarantie
• 10 Prozent Vertragserfüllungsbürgschaft
Handbuch _ Exposéerstellung
• 5 Prozent Gewährleistungsbürgschaft
• Übernahme der gesamten Baukoordination
• freie & individuelle Planung durch Architekten
• aktive Nutzung aktueller Fördermöglichkeiten
• Bau- und Kostenkontrolle
• kein „Bauträger-Ausfallrisiko“
• kein „Bauträger-Aufschlag“
• Direktverträge mit auf Qualität und Bonität geprüften Handwerksbetrieben
• solide Massivbauweise
• modernste Haus- und Heiztechnik
• Ausstattung mit exakt benannten Produkten namhafter & geprüfter
Markenhersteller
• Güte- und Qualitätskontrolle: Durch eine neutrale Bauleitung, die keinem
Bauträger weisungsgebunden ist, haben Sie die SICHERHEIT, dass Ihre Interessen
vertreten werden. Gleichzeit werden alle Bauvorhaben durch Sachverständige der
DEKRA als zusätzliches Qualitätscontrolling überwacht.
• Zahlungsabwicklung: Gemäß einem alten, handwerklichen und kaufmännischen
Prinzip zahlen Sie bei unseren Partnern erst dann, wenn Leistungen erbracht
wurden.
Diese faire Zahlungsweise bringt Ihnen SICHERHEIT, dass Sie nur das bezahlen, was auch erbracht wurde.
TOP LAGE _ Modernes Architektenhaus in massiver Bauweise...
64297 Darmstadt
Die vollständige Adresse der Immobilie erhalten Sie vom Anbieter.
Auf Karte anzeigen
Die vollständige Adresse der Immobilie erhalten Sie vom Anbieter.
Finanzierungszertifikat
In nur zwei Minuten zu Ihrem persönlichen Finanzierungszertifkat.
Infos
| Haustyp | Einfamilienhaus |
|---|---|
| Wohnfläche ca. | 176 m2 |
| Grundstücksfläche | 625 m2 |
| Zimmer | 5,5 |
| Garage/Stellplatz | Garage |
| Anzahl Garage/Stellplatz | 1 |
Kosten
| Kaufpreis |
950.000 € |
|---|---|
| Preis für Garage/Stellplatz | 8.000 € |
| Provision | Nein |
Finanzierungsrechner:
Kaufpreis:
600.000 €
Eigenkapital:
600.000 €
Monatliche Rate
0 €
Effektiver Jahreszins
0 %
Sollzinsbindung
10 Jahre
Bausubstanz & Energieausweis
| Bauphase | Haus in Planung (projektiert) |
|---|---|
| Qualität der Austattung | Gehoben |
Beschreibung des Objekts
Ausstattung
MIT WENIGER SOLLTEN SIE SICH NICHT ZUFRIEDEN GEBEN:
• Erfahrung: Den Erfahrungsschatz aus über 1.000 Bauvorhaben möchten wir Ihnen gerne bei Ihrem Bauprojekt zur Verfügung stellen.
Von Planung bis Fertigstellung dient diese Erfahrung Ihrer SICHERHEIT.
• Ein Eigenheim sollte gebaut für Generationen, wertbeständig und solide sein. Aus diesem Grund bauen Sie mit unseren Partnern in der traditionellen und bewährten, massiven Bauweise.
• Durch die massive Bauweise ist außer der sehr guten Wärmedämmung auch ein
sehr guter Schall- und Brandschutz gewährleistet.
• Mit unseren Partnern gibt es keine unveränderbaren Typenhäuser, somit sind wir in der Lage sämtliche Bauherrenwünsche umzusetzen und an alle Bebauungsvorschriften anzupassen.
• Für jedes Haus wird ein Energiepass – nach individueller Wärmebedarfsberechnung
erstellt und dem Bauherren ausgehändigt.
• Für jedes Haus wird ein Ökopass erstellt und dem Bauherren ausgehändigt.
• Heizen, dass ist nicht einfach nur Wärme! Moderne Heiztechnik fordert heute hohe
Wirtschaftlichkeit und saubere, emissionsarme Verbrennung. Unsere Partner stehen für Brennwertnutzung auf dem neusten Stand der Technik in Kooperation mit dem
Hersteller VIESSMANN.
• Um eine optimale Wohnraumnutzung auch im Dachgeschoss zu gewährleisten,
werden alle Häuser mit einem überdurchschnittlich hohen Kniestock geplant.
• Gern unterstützen unsere Finanzierungsfachberater Sie bei der Ausarbeitung von
Finanzierungsanträgen und sind bei der Beantragung von Fördermitteln gerne
behilflich.
Selbstverständlich sind unsere Partner auch Profis für bewährte Innovationen wie
z.B. Solartechnik, Regenwassernutzung, BUS- Elektrosystemtechnik, Erdwärme,
kontrollierte Be- und Entlüftung und vieles mehr.
Lage
In einer der begehrtesten Wohnlagen Darmstadts vereint dieser außergewöhnliche Bauplatz mit 625 m² Grundstücksfläche das Beste aus zwei Welten: die Ruhe eines gepflegten Wohnumfelds und die Nähe zu städtischem Leben. Hier entsteht Ihr individuelles Architektenhaus _ ein Zuhause, das Architektur, Komfort und Natur harmonisch miteinander verbindet.
Das Umfeld ist geprägt von stilvollen Einfamilienhäusern, blühenden Gärten und einer angenehmen Nachbarschaft, die Geborgenheit und Beständigkeit ausstrahlt. Wer Wert auf ein niveauvolles Wohnumfeld legt, findet hier den idealen Ort, um seine Wohnvision Wirklichkeit werden zu lassen.
Die Lage im Süden Darmstadts überzeugt durch eine hervorragende Infrastruktur: Einkaufsmöglichkeiten, Schulen, Kindergärten, Ärzte und Freizeitangebote sind schnell erreichbar. Die Innenstadt liegt nur wenige Minuten entfernt und bietet mit ihren Boutiquen, Cafés und kulturellen Einrichtungen alles, was das urbane Herz begehrt.
Gleichzeitig laden die umliegenden Parkanlagen, Wälder und Felder zu Spaziergängen und sportlichen Aktivitäten ein _ ideal für alle, die Entspannung und Natur schätzen, ohne auf die Vorteile der Stadt verzichten zu wollen.
Die Verkehrsanbindung ist ausgezeichnet: Über die A5 und A67 erreichen Sie die gesamte Metropolregion Rhein-Main in kurzer Zeit. Auch die Anbindung an den öffentlichen Nahverkehr ist optimal _ Darmstadt punktet mit hervorragenden Bus- und Straßenbahnverbindungen.
Ein Grundstück mit Raum für Ideen:
Ob moderne Stadtvilla, klarer Bauhausstil oder stilvoller Familienbungalow _ gemeinsam mit unseren Architekten entsteht hier Ihr persönliches Traumhaus, maßgeschneidert auf Ihre Wünsche und Lebensweise.
Ein Ort, der Ruhe schenkt, Nähe bietet und Werte schafft _ mitten im grünen Süden Darmstadts...
Sonstige Angaben
***!!***
A C H T U N G:
WEITERE ANGEBOTE FINDEN SIE UNTER: www.dFlair.de
WICHTIGER HINWEIS:
Alle Angaben zu Größe, Güte und Beschaffenheit, Bebaubarkeit oder sonstige Eigenschaften erfolgen ohne eine Gewährleistung durch dFlair Immobilien und dessen Mitarbeiter. Alle
Angaben sind ohne Gewähr und basieren ausschließlich auf Informationen, die uns von unserem Auftraggeber zur Verfügung gestellt wurden. Wir übernehmen keinerlei Gewähr für die Vollständigkeit, Richtigkeit und Aktualität dieser Angaben. Die Kauf- und Baunebenkosten wie u. A. Grunderwerbsteuer, Notar und Grundbuchkosten etc. sind vom
Käufer zu tragen. Irrtum und Zwischenverkauf vorbehalten. Eine Grundstücksmaklercourtage eines externen Maklers kann ggf. anfallen!
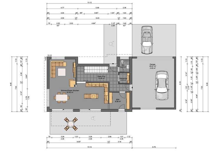
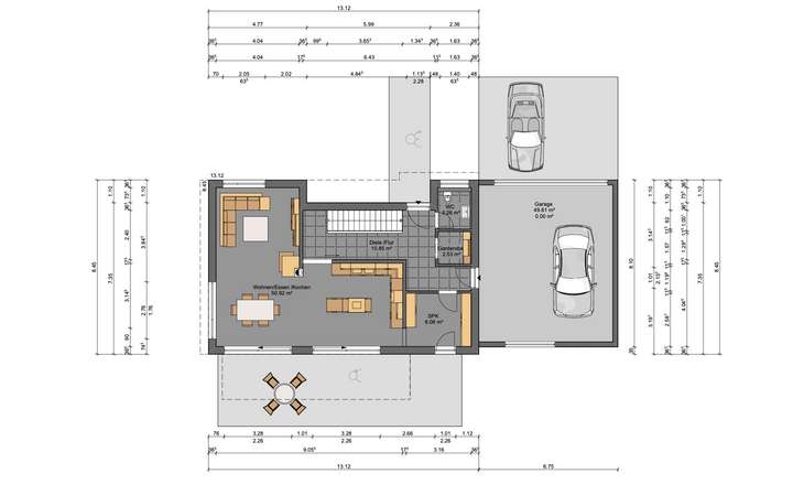
Grundriss
Grundriss_EG
>
>
Grundriss_OG
>
>
Adresse
64297 Darmstadt
Interessante Orte
Preis- und Lageinformationen
Preistrend für Bestandsimmobilien in Eberstadt