Dieses Einfamilienhaus aus dem Jahr 1983 vereint großzügige Wohnflächen mit einem besonderen Wohlfühlambiente. Hochwertige Bodenbeläge aus Cotto-Fliesen und Parkett sowie eine angenehme Fußbodenheizung schaffen in allen Räumen eine warme Atmosphäre. Mittelpunkt des Hauses ist der ca. 40m² große, lichtdurchflutete Wohn- und Essbereich mit Kamin, der für gemütliche Stunden sorgt. Die angrenzende Wohnküche ist mit einer praktischen Einbauküche ausgestattet und bietet ausreichend Platz für die ganze Familie.
Mit bis zu fünf Schlafzimmern, drei Bädern und einem separaten Gäste-WC eröffnet die Immobilie vielfältige Nutzungsmöglichkeiten – ideal für Familien, Gäste oder ein Homeoffice. Praktische Einbauschränke bieten zusätzlichen Stauraum und unterstreichen den funktionalen Grundriss.
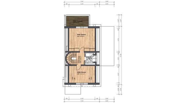
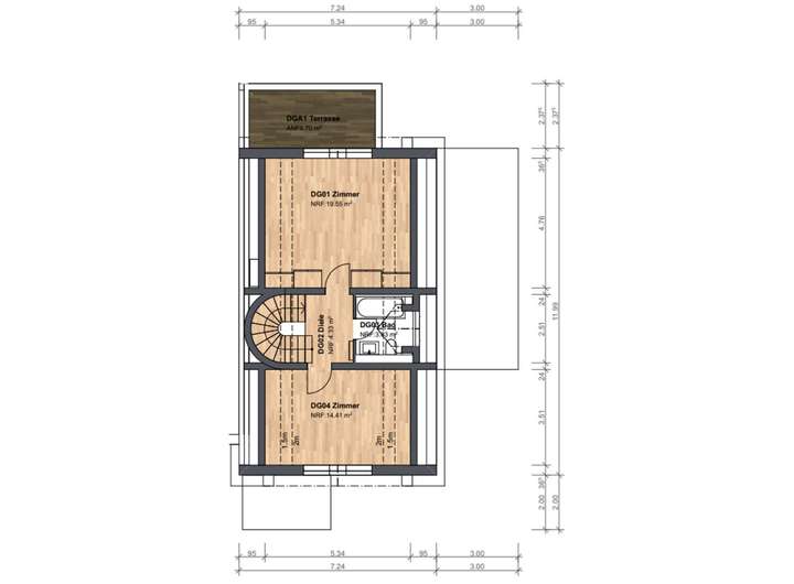
Ein besonderes Highlight ist der Skylineblick von den beiden Balkonen sowie der großzügigen Dachterrasse. Der gepflegte Garten mit sonniger Süd-/West-Terrasse lädt zum Entspannen und Verweilen im Freien ein. Abgerundet wird das Angebot durch die großzügigen Nebenräume, wobei 1 Raum als möglicher Arbeitsbereich genutzt werden kann. Eine Garage sowie eine Stellplatz davor stehen außerdem zur Verfügung.
Bitte beachten Sie: Die Heizungsanlage muss erneuert werden – eine ideale Gelegenheit, moderne Technik nach Ihren individuellen Vorstellungen zu integrieren und das Haus so auf den neuesten Stand zu bringen.
Ein Ort, an dem Erinnerungen wachsen!
60598 Frankfurt am Main
Die vollständige Adresse der Immobilie erhalten Sie vom Anbieter.
Auf Karte anzeigen
Die vollständige Adresse der Immobilie erhalten Sie vom Anbieter.
Finanzierungszertifikat
In nur zwei Minuten zu Ihrem persönlichen Finanzierungszertifkat.
Infos
| Haustyp | Doppelhaushaelfte |
|---|---|
| Etagenzahl | 4 |
| Wohnfläche ca. | 205 m2 |
| Grundstücksfläche | 350 m2 |
| Bezugsfrei ab | nach Vereinbarung |
| Zimmer | 6 |
| Schlafzimmer | 5 |
| Badezimmer | 3 |
| Garage/Stellplatz | Garage |
| Anzahl Garage/Stellplatz | 1 |
Kosten
| Kaufpreis |
1.680.000 € |
|---|---|
| Provision |
2,975 % inkl. Mehrwertsteuer |
Finanzierungsrechner:
Kaufpreis:
600.000 €
Eigenkapital:
600.000 €
Monatliche Rate
0 €
Effektiver Jahreszins
0 %
Sollzinsbindung
10 Jahre
Bausubstanz & Energieausweis
| Baujahr | 1983 |
|---|---|
| Heizungsart | Fußbodenheizung |
| Wesentliche Energieträger | Erdgas schwer |
| Energieausweis | liegt vor |
| Energieausweistyp | Bedarfsausweis |
| Energieverbrauchskennwert | 195,0 kWh/(m²*a) |
Beschreibung des Objekts
Ausstattung
- Einfamilienhaus-Baujahr 1983
- Bodenbeläge in Form von Cotto Fliesen und Parkett
- Fußbodenheizung
- ca. 40 m² Großer Wohn-/ Essbereich mit Kamin
- Wohnküche mit Einbauküche
- 3 Bäder + sep. Gäste-WC
- 4-5 Schlafzimmer
- Einbauschränke
- 2 Balkone + Dachterrasse mit Skylineblick
- Schöner Garten mit Terrasse in Süd-/ West-Ausrichtung
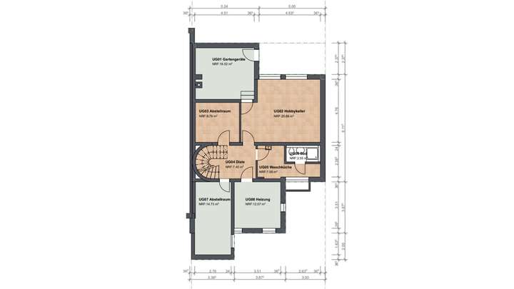
- großzügige Kellerräume davon auch 1 Raum nutzbar für zusätzlichen Arbeitsbereich o.ä.
- Garage + Stellplatz vorhanden
- Heizungsanlage muss erneuert werden
Lage
Das südliche Sachsenhausen zählt zu den begehrtesten Wohnlagen Frankfurts. Anders als die urbane Innenstadt überzeugt dieser Stadtteil durch seine ruhige, grüne Atmosphäre und ein gehobenes Wohnumfeld – ideal für alle, die naturnah leben und dennoch zentral angebunden sein möchten. Ein besonderes Highlight ist die direkte Nähe zum Frankfurter Stadtwald – ein beliebtes Naherholungsgebiet für Familien, Spaziergänger und Sportbegeisterte. Großzügige Grundstücke, gepflegte Gärten und eine repräsentative Bebauung prägen das hochwertige Wohnbild dieser Gegend. Alle Einrichtungen des täglichen Bedarfs befinden sich in unmittelbarer Nähe. Supermärkte wie REWE und HIT sowie eine Apotheke sind bequem zu Fuß erreichbar. Für sportlich Aktive bietet das moderne Elements Fitnessstudio am Henninger-Turm ein umfassendes Angebot – inklusive Pool mit spektakulärem Skyline-Blick.
Sachsenhausen ist besonders bei Familien äußerst beliebt – nicht zuletzt dank seines hervorragenden Bildungsangebots. Die Martin-Buber-Schule ist fußläufig erreichbar, ebenso wie weitere Grund- und weiterführende Schulen, darunter die IGS Süd und die Freiherr-vom-Stein-Schule. Mehrere Kindertagesstätten in direkter Umgebung runden die familienfreundliche Infrastruktur ab.
Die Anbindung an den öffentlichen Nahverkehr ist exzellent: Straßenbahn, U-Bahn und S-Bahn ermöglichen eine schnelle Verbindung in alle Frankfurter Stadtteile und darüber hinaus. Autofahrer profitieren von der direkten Anbindung an die A3 über die Darmstädter Landstraße. Auch der Flughafen Frankfurt ist in wenigen Minuten erreichbar – ein klarer Vorteil für Berufspendler und Vielflieger.
Sonstige Angaben
Unser gesamtes Angebot finden Sie unter www.fiedler-immo.de !!
Oder rufen Sie uns an unter 069-63152068.
Als Immobilienmaklerunternehmen ist Mark Fiedler Immobilien nach § 2 Abs. 1 Nr. 14 und § 10 Abs. 3 Geldwäschegesetz (GwG) dazu verpflichtet, bei der Begründung einer Geschäftsbeziehung die Identität des Vertragspartners festzustellen und zu überprüfen. Hierzu ist es erforderlich, dass wir nach § 11 GwG die relevanten Daten Ihres Personalausweises festhalten (wenn Sie als natürliche Person handeln) – beispielsweise mittels einer Kopie. Bei einer juristischen Person benötigen wir eine Kopie des Handelsregisterauszugs, aus welchem der wirtschaftlich Berechtigte hervorgeht. Das Geldwäschegesetz sieht vor, dass der Makler die Kopien bzw. Unterlagen fünf Jahre aufbewahren muss.
Grundriss
Grundriss EG
>
>
Grundriss OG
>
>
Grundriss DG
>
>
Grundriss UG
>
>
Adresse
60598 Frankfurt am Main
Interessante Orte
Preis- und Lageinformationen
Preistrend für Bestandsimmobilien in Sachsenhausen-Süd