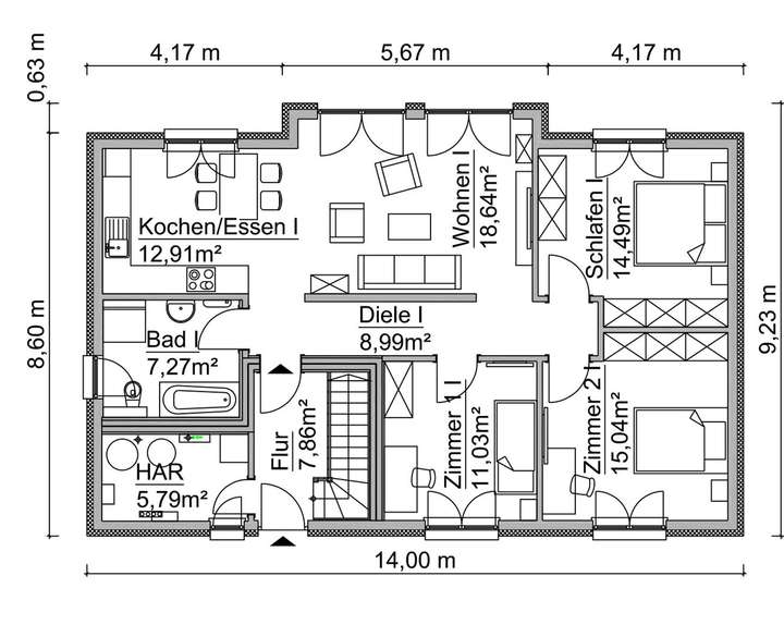
2 Generationen unter einem Dach mit 2 Vollgeschossen. Die Aufteilung der beiden Wohnungen ist fast identisch. Auf jeder Ebene befinden sich ein offener Küchen-Ess-Wohnbereich, 3 Schlafzimmer und ein vollausgestattetes Bad. Natürlich können wir die Grundrisse Ihren Wünschen anpassen.
Das ideale Mietobjekt zwischen Montabaur und Limburg
56414 Wallmerod
Die vollständige Adresse der Immobilie erhalten Sie vom Anbieter.
Auf Karte anzeigen
Die vollständige Adresse der Immobilie erhalten Sie vom Anbieter.
Finanzierungszertifikat
In nur zwei Minuten zu Ihrem persönlichen Finanzierungszertifkat.
Infos
| Haustyp | Mehrfamilienhaus |
|---|---|
| Etagenzahl | 2 |
| Wohnfläche ca. | 198 m2 |
| Nutzfläche | 202 m2 |
| Grundstücksfläche | 987 m2 |
| Zimmer | 8 |
| Schlafzimmer | 6 |
| Badezimmer | 2 |
| Anzahl Garage/Stellplatz | 3 |
Kosten
| Kaufpreis |
665.000 € |
|---|---|
| Provision | Nein |
Finanzierungsrechner:
Kaufpreis:
600.000 €
Eigenkapital:
600.000 €
Monatliche Rate
0 €
Effektiver Jahreszins
0 %
Sollzinsbindung
10 Jahre
Bausubstanz & Energieausweis
| Baujahr | 2026 |
|---|---|
| Bauphase | Haus in Planung (projektiert) |
| Objektzustand | Erstbezug |
| Qualität der Austattung | Gehoben |
| Heizungsart | Wärmepumpe |
| Wesentliche Energieträger | Strom |
Beschreibung des Objekts
Ausstattung
Der Angebotspreis beinhaltet das schlüsselfertige Wohnhaus INKLUSIVE Grundstück in energiesparender Bauweise:
Dazu zählt auch:
- Architektenleistung
- KFW 40+
- PV-Anlage
- SCHLÜSSELFERTIGES BAUEN
- INDIVIDUELLE Aufteilung des Grundrisses
- ERDARBEITEN für die Bodenplatte
- Bodenplatte MIT Radonabdichtung!!!!
- Luftwasserwärmepumpe mit Fußbodenheizung
- Elektroinstallation
- Be- und Entlüftung (gesund – KEINE trockene Raumluft - und staubfrei!!)
- 3-fach Verglasung
- Innentüren lackiert
- Massivholztreppe
- Hochwertige Sanitärobjekte
- 18 Monate Festpreisgarantie
- „Made in Germany“
- ERST BAUEN - DANN ZAHLEN (ohne inkludiertem Grundstückspreis, diesen dürfen Sie im Vorfeld bezahlen)
Bodenbeläge und Wandbeläge sind zu Ihrem Schutz nicht im Lieferumfang enthalten. - Warum? - Das erkläre ich Ihnen gerne in unserem persönlichen Erstgespräch bei mir im Musterhaus.
Lage
Das REAL existierende Grundstück mit einem guten Gartenbereich befindet sich in zentraler Lage von Wallmerod. Der Grundstückspreis ist im Angebotspreis enthalten!! - Die genaue Lage erfahren Sie gerne bei einem ersten persönlichem Gespräch mit mir, da der Eigentümer von dem Sie dieses direkt erwerben keinen Tourismus an und auf seinem Grundstück wünscht. Rufen Sie mich einfach an und vereinbaren einen Termin: 0160 94 55 12 53 oder kontaktieren Sie mich per Email: roidl@scanhaus.de
ZWISCHENVERKAUF VORBEHALTEN
Sonstige Angaben
Wir bauen seit fast 30 Jahren energiesparende Häuser. Warum nicht auch Ihres? - Unsere einzigartigen Zahlungsbedingungen werden auch sicherlich Sie überzeugen "Erst BAUEN, dann zahlen" (Nicht nach Baufortschritt, sondern erst bei Hausübergabe!!!!) - Also KEIN Risiko für Sie. Gerade in der heutigen Zeit ein sehr wichtiger Aspekt!!! - Das kann Ihnen sonst keiner bieten!!!
Bei SCAN-Haus ist die CO² Diskussion kein Thema, denn wir bauen CO² neutral. Scan-Häuser verursachen keine Treibhausemissionen, da im Holz mehr Energie gespeichert ist, als für die Herstellung und Verarbeitung benötigt wird
Zu dem angegebenen Preis müssen Sie noch die Baunebenkosten (Anschlüsse durch die Versorger, Bodengutachten, Vermessung etc.) hinzurechnen. Dies berechne ich auch gerne nach einem persönlichen Gespräch bei mir im Musterhaus.
Sie sind auf der Suche nach Ihrem persönlichen Traumhaus. Gerne plane ich mit Ihnen gemeinsam das zu Ihnen passende Objekt. Nehmen Sie einfach mit mir Kontakt auf und profitieren Sie von meiner langjährigen Erfahrung.
Grundriss
Erdgeschoss
>
>
Obergeschoss
>
>
Adresse
56414 Wallmerod
Interessante Orte
Preis- und Lageinformationen
Preistrend für Bestandsimmobilien in Wallmerod