Dieses im Jahr 1947 erbaute Einfamilienhaus wurde ca. 1957 um einen Anbau mit zwei weiteren Zimmern erweitert und liegt ruhig am Ende einer kleinen, privaten Straße in Wiesbaden-Breckenheim.
Mit einer Wohnfläche von 121,51 m² und einer durchdachten Raumaufteilung bietet die Immobilie eine solide Grundlage – ideal für handwerklich versierte Käufer oder Familien, die ein Haus nach ihren eigenen Vorstellungen gestalten möchten.
Der Eingang befindet sich im ca. 1958 errichteten Anbau. Von hier gelangt man rechter Hand in ein Schlafzimmer mit angrenzendem Bad, das etwa 1980 zusammen mit der Garage entstand. Links führt der Flur in die helle Wohnküche des ursprünglichen Gebäudes, an die ein weiteres Zimmer anschließt. Neben der Küche befindet sich eine kleine Abstellkammer, die bislang als Standort für die Waschmaschine diente und sich ideal als künftiges Gäste-Bad anbietet. Die Raumstruktur schafft gute Voraussetzungen, um bei einer Modernisierung individuelle Wohnideen umzusetzen.
Im Obergeschoss stehen ein Zimmer mit Zugang zur großzügigen Dachterrasse (ca. 35,68 m²), ein separates WC sowie ein weiteres, über ein Durchgangszimmer erreichbares Schlafzimmer zur Verfügung. Von der Terrasse aus eröffnet sich ein weiter Blick über Breckenheim bis zu den sanften Höhenzügen des Taunus – ein echtes Highlight des Hauses.
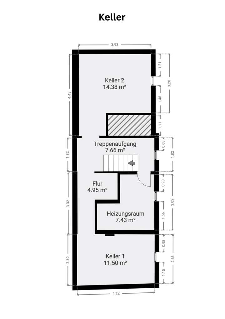
Der Dachboden ist nicht ausgebaut. Das Haus ist voll unterkellert: Zwei Kellerräume mit Lehmboden bieten Stauraum, ein weiterer Raum beherbergt die Heizungsanlage.
Zum Anwesen gehören eine Garage (Baujahr ca. 1980) im Innenhof sowie eine kleine, befestigte Hoffläche.
Diese Immobilie eignet sich ideal für Käufer, die eine ruhige Lage schätzen und den Charme eines Bestandsgebäudes mit solider Substanz zu einem behaglichen Zuhause weiterentwickeln möchten.
Vereinbaren Sie noch heute Ihren Besichtigungstermin – wir freuen uns, Ihnen dieses Haus persönlich zu zeigen!.
Ein Ort zum Gestalten – Einfamilienhaus mit Dachterrasse in Breckenheim
65207 Wiesbaden
Die vollständige Adresse der Immobilie erhalten Sie vom Anbieter.
Auf Karte anzeigen
Die vollständige Adresse der Immobilie erhalten Sie vom Anbieter.
Finanzierungszertifikat
In nur zwei Minuten zu Ihrem persönlichen Finanzierungszertifkat.
Infos
| Haustyp | Einfamilienhaus |
|---|---|
| Etagenzahl | 2 |
| Wohnfläche ca. | 121 m2 |
| Nutzfläche | 70,88 m2 |
| Grundstücksfläche | 136 m2 |
| Bezugsfrei ab | sofort |
| Zimmer | 5 |
| Schlafzimmer | 3 |
| Badezimmer | 1 |
| Garage/Stellplatz | Garage |
| Anzahl Garage/Stellplatz | 2 |
Kosten
| Kaufpreis |
249.000 € |
|---|---|
| Provision |
3,57 % |
Finanzierungsrechner:
Kaufpreis:
600.000 €
Eigenkapital:
600.000 €
Monatliche Rate
0 €
Effektiver Jahreszins
0 %
Sollzinsbindung
10 Jahre
Bausubstanz & Energieausweis
| Baujahr | 1949 |
|---|---|
| Qualität der Austattung | Einfach |
| Heizungsart | Öl-Heizung |
| Wesentliche Energieträger | Öl |
| Energieausweis | liegt vor |
| Energieausweistyp | Bedarfsausweis |
| Energieverbrauchskennwert | 258,0 kWh/(m²*a) |
Beschreibung des Objekts
Ausstattung
- Baujahr 1947, Anbau ca. 1957
- Wohnfläche 121,51 m²
- Nutzfläche 70,88
- Grundstücksgröße 136m²
- Massivbauweise
- Badezimmer, separates WC
- Fenster, Holz und Kunststoff
- große Dachterrasse im 1. OG
- Ölzentralheizung 1995 mit Flachheizkörpern
- Garage, Pkw-Stellplatz im Hof
- Umzäunter Innenhof mit Privatsphäre
- ruhige Lage am Ende einer Sackgasse
- ideal für Familien
Lage
Der östlichste Stadtteil Wiesbadens zählt ca. 3600 Einwohner und verbindet ländlichen Charme mit hervorragender Infrastruktur. Als reine Wohngemeinde ohne gewerbliche Ansiedlung bietet Breckenheim eine hohe Lebensqualität. Ein historischer Ortskern mit einer romanischen Kirche von 1280, umgeben von Feldern und Obstbäumen, besonders bekannt ist das Pfingstborngelände mit einer Quelle, der eine heilende Wirkung zugesprochen wird.
Über die nur wenige Minuten entfernten Autobahnanschlüsse an die A3 und A66 ist Breckenheim optimal an das überregionale Verkehrsnetz angebunden. So erreichen Sie den Flughafen Frankfurt in rund 20 Minuten, das Mainzer Stadtzentrum in etwa 15 Minuten und die Wiesbadener Innenstadt in knapp 10 Minuten. Auch die Anbindung in Richtung Frankfurt und Rhein-Main-Gebiet ist ideal für Berufspendler.
Für den öffentlichen Nahverkehr steht eine regelmäßige Busverbindung nach Wiesbaden-Mitte sowie zu den benachbarten Stadtteilen Nordenstadt und Igstadt zur Verfügung.
Über diese erreichen Sie Anschluss an die S-Bahn-Linien Richtung Frankfurt, Mainz und den Rhein-Main-Flughafen.
Im Ort selbst finden sich Einkaufsmöglichkeiten für den täglichen Bedarf, eine Grundschule, Kindergarten, Sport- und Freizeitangebote sowie ein reges Vereinsleben, das Breckenheim seine lebendige und familiäre Atmosphäre verleiht.
Sonstige Angaben
Wir weisen darauf hin, dass die von uns weitergegebenen Objektinformationen, Unterlagen, Pläne etc. vom Verkäufer stammen. Eine Haftung für die Richtigkeit oder Vollständigkeit der Angaben übernehmen wir daher nicht. Es obliegt daher unseren Kunden, die darin enthaltenen Objektinformationen und Angaben auf ihre Richtigkeit hin zu überprüfen. Alle Immobilienangebote sind freibleibend und vorbehaltlich Irrtümer, Zwischenverkauf oder sonstiger Zwischenverwertung.
Ein Teil der in diesem Exposé verwendeten Bilder wurde digital bearbeitet oder inszeniert, um Raumwirkung, Nutzungsmöglichkeiten oder Ausstattungsideen anschaulicher darzustellen. Diese Visualisierungen dienen ausschließlich der besseren Präsentation und sollen die Vorstellungskraft unterstützen. Bitte beachten Sie, dass es sich dabei nicht in jedem Fall um den exakten Ist-Zustand handelt.
Die Käuferprovision beträgt 3,57 % inkl. MwSt. des beurkundeten Kaufpreises. Ein provisionspflichtiger Maklervertrag wurde mit dem Verkäufer in gleicher Höhe abgeschlossen. Die Käuferprovision ist nach Beurkundung des notariellen Kaufvertrages gegen Rechnungsstellung fällig.
GELDWÄSCHE:
Als Immobilienmaklerunternehmen ist die Firma GRUNDUM Immobilien GmbH nach § 2 Abs. 1 Nr. 14 und § 10 Abs. 3 Geldwäschegesetz (GwG) dazu verpflichtet, bei der Begründung einer Geschäftsbeziehung die Identität des Vertragspartners festzustellen und zu überprüfen. Hierzu ist es erforderlich, dass wir nach § 11 GwG die relevanten Daten Ihres Personalausweises festhalten (wenn Sie als natürliche Person handeln) - beispielsweise mittels einer Kopie. Bei einer juristischen Person benötigen wir eine Kopie des Handelsregisterauszugs, aus welchem der wirtschaftlich Berechtigte hervorgeht. Das Geldwäschegesetz sieht vor, dass der Makler die Kopien bzw. Unterlagen fünf Jahre aufbewahren muss.
Weitere Dokumente
01 Exposé.pdfGrundriss
Keller
>
>
Erdgeschoss
>
>
Obergeschoss
>
>
Adresse
65207 Wiesbaden
Interessante Orte
Preis- und Lageinformationen
Preistrend für Bestandsimmobilien in Breckenheim