In naturnaher und ruhiger Wohnlage von Hofheim-Wildsachsen steht das Zwei- und Dreifamilienhaus nebeneinander, in einem gepflegten Zustand, auf einem großzügigen Grundstück von 983 m² zum Verkauf. Die insgesamt fünf Wohneinheiten bieten mit ca. 316 m² Wohnfläche vielfältige Nutzungsmöglichkeiten. Besonders attraktiv für mehrere Generationen, große Familien oder auch für eine Kombination aus Eigennutzung und Teilvermietung.
Die beiden Häuser wurden laufend instand gehalten und präsentieren sich in einem gepflegten Gesamtzustand. Die durchdachte Aufteilung schafft ideale Voraussetzungen, um mehrere Generationen unter einem Dach zu vereinen – mit ausreichend Raum für gemeinsames Leben und dennoch genügend Privatsphäre für jedes Familienmitglied.
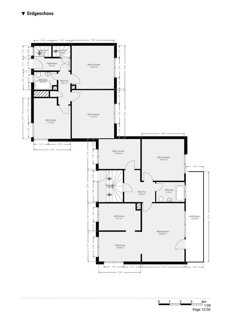
Im Vorderhaus sowie im Hinterhaus befindet sich jeweils eine Wohnung im Erdgeschoss u. eine Wohnung im Dachgeschoss. Die fünfte Einheit im Hinterhaus verfügt über einen eigenen Eingang und ist separat nutzbar. Sie lässt sich flexibel in das Gesamtkonzept integrieren – sei es als barrierearme Lösung für die Großeltern, Jugendwohnung, Gästeappartment oder Büro.
Drei der fünf Wohnungen sind derzeit vermietet, damit der neue Eigentümer/ die neue Eigentümerin selbst entscheiden kann ob die freien Wohnungen eigengenutzt oder vermietet werden.
Ein echtes Highlight ist der großzügige Garten, der viel Platz für gemeinsame Aktivitäten, Kinder, Haustiere oder den Anbau von Obst und Gemüse bietet. Ideal für alle, die Wert auf Naturverbundenheit und Selbstversorgung legen.
Ob als Zuhause für mehrere Generationen, zur Kombination von Wohnen und Arbeiten oder als familienfreundliche Investition – diese Immobilie bietet Ihnen zahlreiche Möglichkeiten in einem gepflegten und naturnahen Umfeld.
Mehrgenerationenhaus mit großem Garten in ruhiger Lage
65719 Hofheim am Taunus
Die vollständige Adresse der Immobilie erhalten Sie vom Anbieter.
Auf Karte anzeigen
Die vollständige Adresse der Immobilie erhalten Sie vom Anbieter.
Finanzierungszertifikat
In nur zwei Minuten zu Ihrem persönlichen Finanzierungszertifkat.
Infos
| Haustyp | Mehrfamilienhaus |
|---|---|
| Wohnfläche ca. | 300 m2 |
| Nutzfläche | 130 m2 |
| Grundstücksfläche | 983 m2 |
| Zimmer | 13,5 |
| Schlafzimmer | 8 |
| Badezimmer | 5 |
Kosten
| Kaufpreis |
699.000 € |
|---|---|
| Provision |
3,57 % inkl. MwSt. |
Finanzierungsrechner:
Kaufpreis:
600.000 €
Eigenkapital:
600.000 €
Monatliche Rate
0 €
Effektiver Jahreszins
0 %
Sollzinsbindung
10 Jahre
Bausubstanz & Energieausweis
| Baujahr | 1959 |
|---|---|
| Objektzustand | Gepflegt |
| Heizungsart | Zentralheizung |
| Wesentliche Energieträger | Öl |
| Energieausweis | liegt vor |
| Energieausweistyp | Verbrauchsausweis |
| Energieverbrauchskennwert | 294,3 kWh/(m²*a) |
| Energieeffizienzklasse | H |
294,3
kWh/(m²*a)
Energieeffizienzklasse H
- A+
- A
- B
- C
- D
- E
- F
- G
- H
- 0
- 25
- 50
- 75
- 100
- 125
- 150
- 175
- 200
- 225
- >250
Beschreibung des Objekts
Ausstattung
Vorderhaus, Bj. 1959:
- DG: 2,5 Zimmer, Küche, TGL-Wannenbad
- EG: 2 Zimmer, Küche, TGL-Wannenbad
- Keller
- Waschkeller
- Abstellraum
- Fahrradkeller
Hinterhaus, Bj. 1969:
- DG: 3,5 Zimmer, Küche, TGL-Wannenbad, Balkon
- EG: 3,5 Zimmer, Küche, TGL-Wannenbad, Balkon und Terrasse
- Anliegerwohnung: 2 Zimmer, Küche, Wannenbad
- Heiz- u. Waschraum
- Kellerraum
- Glasfaser
- Eine Öl-Zentralheizung für beide Häuser
- 4 PKW-Außenstellplätze
- 1 Garage
- Geräteschuppen
Lage
Wildsachsen ist ein ruhiges Örtchen inmitten idyllischer Landschaft und ist einer von insgesamt 6 Stadtteilen zugehörig zu Hofheim. Wer Ruhe nach einem stressigem Alltag oder Erholung in sportlichen Aktivitäten sucht, ist hier genau richtig. Der kleine Ort ist nur wenige Autominuten von der Kreisstadt Hofheim entfernt, wo sich eine wunderschöne historische Altstadt vermischt, mit einem pulsierenden Nachtleben und regem Geschäftstreiben. Hofheim bietet Ihnen einfach alles. Attraktive und zahlreiche Einkaufsmöglichkeiten, sehr gute Restaurants sowie Cafes. Mehrere Schulen sowie Kindergärten, Ärzte, Apotheken etc. Von Wildsachsen sind es ca. 8 Autominuten zur BAB-Anbindung A3. Wildsachsen ist an das Stadtbusnetz Hofheim angebunden. Dort befindet sich der S-Bahnanschluss in Richtung Frankfurt/ Niedernhausen. Ein weiterer S-Bahnanschluss der Linie S2 befindet sich in nur 3,5 km Entfernung in Bremthal.
Sonstige Angaben
Energieausweis Daten Vorderhaus:
Bj.: 1959, Verbrauchsausweis
Energieverbrauch: 294,3 kWh/(m²*a)
Öl-Zentralheizung
Energieeffizienzklasse: H
Energieausweis Daten Hinterhaus:
Bj.: 1969, Verbrauchsausweis
Energieverbrauch: 295,8 kWh/(m²*a)
Öl-Zentralheizung
Energieeffizienzklasse: H
Grundriss
Grundriss DG
>
>
Grundriss EG
>
>
Grundriss KG
>
>
Adresse
65719 Hofheim am Taunus
Interessante Orte
Preis- und Lageinformationen
Preistrend für Bestandsimmobilien in Hofheim am Taunus