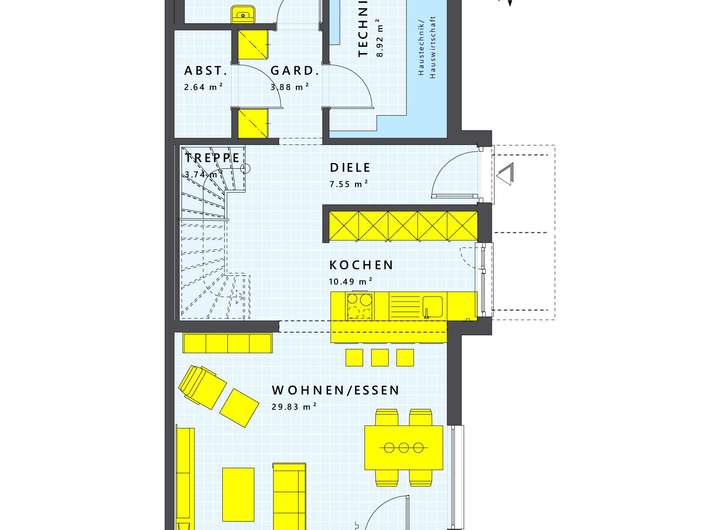
Dieses beeindruckende Doppelhaus mit klassischem Satteldach bietet dir auf 125 m² Wohnfläche und in zwei Etagen alles, was du für dein zukünftiges Zuhause brauchst. Die Dachabschleppung, die sich bis zum Wintergartenerker im Erdgeschoss erstreckt, verleiht der Fassade eine elegante Note und sorgt für eine harmonische Verbindung zwischen Innen- und Außenraum. Besonders der zweigeschossige Giebelerker schafft nicht nur eine einladende Atmosphäre, sondern erweitert auch deine Küche und die Kinderzimmer, sodass du genügend Platz für gemeinsame Momente mit deiner Familie hast. Ein weiteres Highlight ist die stilvolle Glasüberdachung am Hauseingang, die deinen Eingangsbereich lichtdurchflutet und einladend gestaltet.
LivingHaus bietet dir zusätzlich eine Vielzahl an maßgeschneiderten Leistungen, die dein Eigenheim noch individueller gestalten. Mit der hochwertigen Traumküche von LivingHaus wird der Kochbereich exakt auf deinen Grundriss abgestimmt. Ausgestattet mit modernster Technik und cleveren Stauraumlösungen, kannst du sofort nach dem Einzug mit dem Kochen beginnen.
Das LivingHaus Bau-Cockpit sorgt dafür, dass du dein Bauprojekt stets im Blick hast. Mit der praktischen App hast du Zugriff auf Zeitpläne, Dokumente und kannst jederzeit Informationen abrufen - für einen stressfreien Bauprozess.
Die I-KON-Lösung steht für intelligentes Bauen. Dein Zuhause wird nicht nur energieeffizient, sondern auch umweltfreundlich. Mit einem I-KON Effizienzhaus 55 benötigst du lediglich 55 % der Energie eines Standardhauses, was dir langfristig Kosten spart und die Umwelt schont.
Finanzielle Flexibilität bietet dir das Zuhause-Darlehen, mit dem du bis zu 250.000 EUR zu besonders günstigen Konditionen finanzieren kannst.
Das Zuhause-Paket sorgt dafür, dass dein Haus mit einer hochwertigen Grundausstattung geliefert wird, inklusive moderner Böden, edlen Türen und stilvollen Sanitäranlagen.
Und wenn du gerne selbst Hand anlegst, bietet dir das DIY-Ausbau-Coaching die Möglichkeit, in nur drei Tagen von Experten zu lernen, wie du den Innenausbau selbst meisterst.
Mit LivingHaus bekommst du nicht nur ein Haus, sondern ein Zuhause, das ganz nach deinen Vorstellungen gestaltet wird.
Platz für ein ganzes Leben! (SOL 125)
65510 Idstein
Die vollständige Adresse der Immobilie erhalten Sie vom Anbieter.
Auf Karte anzeigen
Die vollständige Adresse der Immobilie erhalten Sie vom Anbieter.
Finanzierungszertifikat
In nur zwei Minuten zu Ihrem persönlichen Finanzierungszertifkat.
Infos
| Haustyp | Doppelhaushaelfte |
|---|---|
| Etagenzahl | 2 |
| Wohnfläche ca. | 125 m2 |
| Nutzfläche | 125 m2 |
| Grundstücksfläche | 500 m2 |
| Zimmer | 4 |
| Schlafzimmer | 3 |
| Badezimmer | 2 |
Kosten
| Kaufpreis |
545.000 € |
|---|
Finanzierungsrechner:
Kaufpreis:
600.000 €
Eigenkapital:
600.000 €
Monatliche Rate
0 €
Effektiver Jahreszins
0 %
Sollzinsbindung
10 Jahre
Bausubstanz & Energieausweis
| Baujahr | unbekannt |
|---|---|
| Heizungsart | Wärmepumpe |
| Energieausweis | liegt vor |
| Energieausweistyp | Bedarfsausweis |
| Energieverbrauchskennwert | 18,0 kWh/(m²*a) |
| Energieeffizienzklasse | A+ |
18,0
kWh/(m²*a)
Energieeffizienzklasse A+
- A+
- A
- B
- C
- D
- E
- F
- G
- H
- 0
- 25
- 50
- 75
- 100
- 125
- 150
- 175
- 200
- 225
- >250
Beschreibung des Objekts
Ausstattung
In diesem Angebot enthalten: - 18 Monate Festpreisgarantie! - Baugrundstück - individuell geplante Küche mit Kochinsel, Softclose-Funktion, Induktion, Spülmaschine und vielem mehr! - Plusenergiehaus mit Kühlfunktion - Fenster mit RAL Farben sowie Außenfensterbänke - Photovoltaikanlage mit 6,64 kWp - Stromspeicher VARTA pulse neo 10,2 - Elektroinstallation durch Livinghaus - Sanitärrohinstallation durch Livinghaus - Dämmung und Beplankung durch Livinghaus - Estricharbeiten durch Livinghaus - Vollständiges hochwertiges Finish-Material (Bodenbeläge, Wandbeläge, Innentüren, Sanitärobjekte bis hin zum Handtuchhalter) - Ausbaucoach für 3 Tage auf eigener Baustelle (DiY - Academy) - Bodenplatte - Architektenleistung - Finanzierungsservice mit Sonderkonditionen - Baucockpit App zur Übersicht der nächsten Schritte - DGNB Zertifikat in GOLD
Die auf den Bildern gezeigte Hausvariante kann Elemente enthalten, die nicht im Standardhauspreis inkludiert sind.
Lage
Idstein ist ein malerischer Ort, der nicht nur durch seine historische Altstadt besticht, sondern auch durch eine hervorragende Infrastruktur. Hier findest du alles, was du für den täglichen Bedarf benötigst: Supermärkte wie Edeka und Lidl sind leicht zu erreichen, und die Stadt bietet eine Vielzahl von Fachgeschäften und Restaurants. Für Familien ist die Nähe zu Kindergärten und Schulen, wie die Grundschule Idstein und das Gymnasium, besonders attraktiv. Die medizinische Versorgung ist durch ansässige Ärzte und Apotheken gewährleistet, sodass du dich stets gut betreut fühlst.
Freizeitmöglichkeiten gibt es in Idstein reichlich. Die umliegenden Wälder und der nahegelegene Taunus laden zu ausgedehnten Spaziergängen und Fahrradtouren ein. Im Winter kannst du sogar die nahegelegenen Skigebiete nutzen. Zudem ist die Anbindung an den öffentlichen Nahverkehr und die Autobahn exzellent, sodass Pendler schnell und bequem in die umliegenden Städte gelangen. Die S-Bahn-Verbindung nach Wiesbaden und Frankfurt ermöglicht es dir, auch in der Metropolregion mobil zu sein. Idstein bietet somit das perfekte Umfeld für Familien, Naturliebhaber und Berufstätige, die ein harmonisches Leben in einer lebenswerten Umgebung anstreben.
Sonstige Angaben
Stressfrei und unkompliziert:
Wir wissen, dass Zeit kostbar ist. Deshalb bieten wir Ihnen die Möglichkeit, ganz ohne Stress und mit nur wenigen Klicks einen Termin für ein unverbindliches Erstgespräch zu buchen. Egal ob Sie Fragen zu dieser Immobilie haben, etwas über Fertighäuser wissen möchten oder Finanzierungsoptionen wünschen - wir sind für Sie da!
So einfach geht's:
Klicken Sie auf den Link unten und wählen Sie Ihren Wunschtermin. Wir kümmern uns um den Rest!
https://scheduler.zoom.us/dirk-lange-v5imvh/erstgespraech
Ich freue mich, Ihnen Ihr neues Zuhause vorstellen zu dürfen!
Adresse
65510 Idstein
Interessante Orte
Preis- und Lageinformationen
Preistrend für Bestandsimmobilien in Idstein