Sind Sie auf der Suche nach einem Mehrfamilienhaus mit starkem Renditepotential? Hier gibt es gute Entwicklungsmöglichkeiten kombiniert mit einem Grundstück, welches auch wirklich Ihnen gehört. (KEINE Erbpacht)
Das massiv erbaute Mehrfamilienhaus wurde ursprünglich 1973 erbaut und im Jahr 2009 komplett erneuert. (Sanierung EG, Ausbau ELW im UG, OG und DG wurden neu aufgestockt).
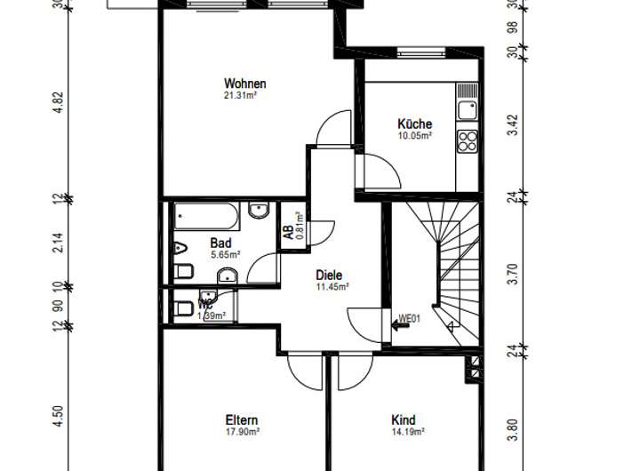
Nach Ihrer Ankunft an der Garage / Stellplatz betreten Sie durch den Garten das Treppenhaus, das einen zusätzlichen Vorraum für Fahrräder bietet. Im Untergeschoss finden Sie neben den Kellerräumen und dem Waschraum eine ca. 30 m² große Einliegerwohnung mit offenem und flexiblem Schnitt. Diese Wohnung verfügt zudem über einen Gartenzugang.
In der nächsten Etage befindet sich die Gewerbeeinheit (Erlaubnis zur Umnutzung zu Wohnraum liegt bereits vor), die auch über die Straßenseite zugänglich ist. Sie ist mit einer sonnigen Terrasse in Südausrichtung ausgestattet und bietet die ideale Grundlage für jegliche Wohnzwecke. Durch die beidseitige Belichtung wird die Fläche besonders attraktiv. Ein WC und ein separater Raum für die Küche liegen bereits vor.
Die weiteren Wohneinheiten (2x 3 Zi. Wohnungen) erreichen Sie ebenfalls über das Treppenhaus. Die Wohnungen sind jeweils mit Badezimmer und einem Gäste-WC ausgestattet ist. Vom zentralen Flurbereich aus erreichen Sie das Kinderzimmer, das Schlafzimmer, die Küche und das Wohnzimmer mit Balkon. Die Wohnung im 1.OG wurde nach Auszug der Mieter in 2025 noch einmal renoviert. Die Besonderheit im 2. OG ist ein Balkon mit Feldbergblick und eine moderne Küche + Deckenhöhen bis über 3,50m.
Für Kapitalanleger:
Bei Vollvermietung beträgt die SOLL-Kaltmiete 54.000 Euro jährlich
Nutzen Sie diese einmalige Gelegenheit und stellen Sie jetzt Ihre Anfrage für ein ausführlicheres Exposé und die Chance auf einen Besichtigungstermin.
Starke Renditemöglichkeit in Frankfurt-Goldstein. Grundstück in Eigentum! Neuerrichtung 2009
60529 Frankfurt am Main
Die vollständige Adresse der Immobilie erhalten Sie vom Anbieter.
Auf Karte anzeigen
Die vollständige Adresse der Immobilie erhalten Sie vom Anbieter.
Finanzierungszertifikat
In nur zwei Minuten zu Ihrem persönlichen Finanzierungszertifkat.
Infos
| Haustyp | Mehrfamilienhaus |
|---|---|
| Etagenzahl | 4 |
| Wohnfläche ca. | 301 m2 |
| Nutzfläche | 40 m2 |
| Grundstücksfläche | 538 m2 |
| Zimmer | 10 |
| Schlafzimmer | 8 |
| Badezimmer | 3 |
| Garage/Stellplatz | Außenstellplatz |
| Anzahl Garage/Stellplatz | 5 |
Kosten
| Kaufpreis |
945.000 € |
|---|---|
| Provision |
5,95% Hiermit möchten wir auf die Tätigkeit des Maklers unsererseits hinweisen, welche eine Provisionszahlung von Ihnen in Höhe von 5,95% inkl. ges. MWST beinhaltet. |
Finanzierungsrechner:
Kaufpreis:
600.000 €
Eigenkapital:
600.000 €
Monatliche Rate
0 €
Effektiver Jahreszins
0 %
Sollzinsbindung
10 Jahre
Bausubstanz & Energieausweis
| Baujahr | 1973 |
|---|---|
| Objektzustand | Modernisiert |
| Heizungsart | Zentralheizung |
| Wesentliche Energieträger | Erdgas leicht |
| Energieausweis | liegt vor |
| Energieausweistyp | Bedarfsausweis |
| Energieverbrauchskennwert | 120,7 kWh/(m²*a) |
| Energieeffizienzklasse | D |
120,7
kWh/(m²*a)
Energieeffizienzklasse D
- A+
- A
- B
- C
- D
- E
- F
- G
- H
- 0
- 25
- 50
- 75
- 100
- 125
- 150
- 175
- 200
- 225
- >250
Beschreibung des Objekts
Ausstattung
Sollte das Objek als Standardmietobjekt genutzt werden, ist eine Miete von 4.500 Euro mtl. zu erwarten
Alle Highlights auf einen Blick:
+ Objekt wird zur rentablen Vermietung leerstehend übergeben. (Auf Wunsch können bereits vorab Mietangebote vorgelegt werden)
+ Gewerbeeinheit kann zu Wohnfläche umgewidmet werden
+ 2 Garage a 10.000 EUR
+ 5 Stellplätze
+ OG und DG 2009 aufgestockt
+ Balkon im OG und DG
+ Wohnung im 1. OG 2025 renoviert
+ Einliegerwohnung 2009 ausgebaut
+ DG Wohnung mit bis zu 3,50m Deckenhöhe
+ Gäste WCs in den oberen Wohnungen
+ Außendämmung + moderne Kunststofffenster
+ Ruhige Lage mit guter Nachbarschaft
+ Garten
Das Objekt ist baulich in einem ausgesprochen guten Zustand. Durch die Sanierung und Neuaufstockung des Objekt befindet sich alles auf aktuellem Standard. Trotzdem sollte für die Umnutzung der Erdgeschosseinheit ein Budget von ca. 50.000 Euro eingeplant werden.
Lage
Die Immobilie befindet sich in einem ruhigen und gleichzeitig gut angebundenen Stadtteil im Süden von Frankfurt am Main. Die Lage zeichnet sich durch ihre hervorragende Erreichbarkeit aus: sowohl die Frankfurter Innenstadt als auch wichtige Verkehrsknotenpunkte sind schnell zu erreichen.
Mikrolage:
Grundschule 700 Meter
Weiterführende Schule 750 Meter
Restaurants in 550 Meter
Diverse Spielplätze im 700 Meter Umkreis
Main 700 Meter
Die Umgebung bietet eine sehr gute Infrastruktur. Diverse Einkaufsmöglichkeiten, darunter Supermärkte und Fachgeschäfte, befinden sich in unmittelbarer Nähe. Für den täglichen Bedarf sorgt zudem das nahegelegene Einkaufszentrum, das eine Vielzahl von Geschäften und Dienstleistern beherbergt.
Für Familien ist die Lage besonders attraktiv, da sie zahlreiche Schulen, Kindergärten und Freizeitmöglichkeiten bietet. In wenigen Minuten erreicht man das Grüngebiet rund um den Goldsteinpark, der zu Spaziergängen und sportlichen Aktivitäten einlädt.
Öffentliche Verkehrsmittel sind ebenfalls gut erreichbar: Der nahegelegene S-Bahnhof Frankfurt-Goldstein ermöglicht eine schnelle Anbindung an das Frankfurter Stadtzentrum sowie an wichtige Verkehrsrouten wie die A5 und A661. Auch der Flughafen Frankfurt ist in kürzester Zeit erreichbar, was die Lage für Berufspendler und Vielreisende besonders attraktiv macht.
Sonstige Angaben
HAFTUNG: Wir weisen darauf hin, dass die von uns weitergegebenen Objektinformationen, Unterlagen, Pläne etc. ausschließlich auf Informationen basieren, die uns vom Verkäufer zur Verfügung gestellt wurden. Wir übernehmen keine Gewähr für die Vollständigkeit, Richtigkeit und Aktualität dieser Angaben. Alle Immobilienangebote sind freibleibend und vorbehaltlich Irrtümer, Zwischenverkauf- und Vermietung oder sonstiger Zwischenverwertung. Die Bilder im Exposé können vom tatsächlichen Ergebnis abweichen.
GELDWÄSCHE: Wir weisen darauf hin, dass Immobilienmaklerunternehmen nach § § 1, 2 Abs. 1 Nr. 10, 4 Abs. 3 Geldwäschegesetz (GwG) vor dem Entstehen einer Geschäftsbeziehung zur Feststellung und Überprüfung des Vertragspartners verpflichtet sind. Dies erfolgt z.B. durch eine Kopie Ihres Personalausweises. Die Angaben hieraus müssen gemäß Geldwäschegesetz fünf Jahre aufbewahrt werden.
Adresse
60529 Frankfurt am Main
Interessante Orte
Preis- und Lageinformationen
Preistrend für Bestandsimmobilien in Schwanheim