Diese ansprechende Doppelhaushälfte aus dem Jahr 1999 befindet sich in einer ruhigen und gewachsenen Wohnlage von Wolfsburg. Mit einer Wohnfläche von rund 132 m² auf einem großzügigen Eigentumsgrundstück von 582 m² bietet das Haus viel Platz für die ganze Familie und überzeugt durch eine durchdachte Raumaufteilung sowie eine gepflegte Ausstattung.
Im Erdgeschoss empfängt eine helle Diele die Bewohner und Gäste. Von hier aus gelangt man in die Küche, die mit einer Einbauküche ausgestattet ist. Ein Zwischenflur führt zu einem gemütlichen Schlafzimmer. Das großzügige Wohnzimmer bietet viel Raum für den Wohn- und Essbereich und öffnet sich zur sonnigen Terrasse mit Blick in den liebevoll angelegten Garten. Ein Duschbad komplettiert das Raumangebot auf dieser Ebene. Der Garten ist gepflegt, verfügt über ein Gewächshaus und einen praktischen Abstellraum – ideal für Hobbygärtner und alle, die das Leben im Grünen genießen möchten.
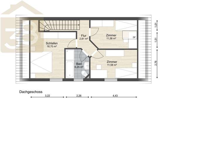
Eine offene Holztreppe führt in das Obergeschoss. Dort befindet sich ein großes Badezimmer mit Wanne und Dusche sowie drei weitere Zimmer, die sich flexibel als Kinder-, Gäste- oder Arbeitszimmer nutzen lassen. Im ausgebauten Dachgeschoss steht ein weiterer heller Wohnraum zur Verfügung, der sich hervorragend als Arbeits- oder Gästezimmer eignet und den Wohnkomfort des Hauses abrundet.
Beheizt wird die Immobilie über eine effiziente Gas-Zentralheizung. Eine Garage sowie ein Außenstellplatz gehören ebenfalls zum Haus und bieten ausreichend Platz für Fahrzeuge.
Die Doppelhaushälfte liegt am Hageberg, einer beliebten Wohnlage von Wolfsburg. Einkaufsmöglichkeiten, Schulen, Kindergärten und öffentliche Verkehrsanbindungen sind bequem erreichbar. Das Stadtzentrum und das VW-Werk befinden sich nur wenige Fahrminuten entfernt. Die Umgebung ist von gepflegten Einfamilien- und Doppelhäusern geprägt und bietet eine angenehme, familienfreundliche Nachbarschaft.
Insgesamt präsentiert sich diese Doppelhaushälfte als ideales Zuhause für Familien oder Paare, die Wert auf eine ruhige Lage, ein großzügiges Grundstück und eine solide Bauweise legen. Das Haus ist gepflegt, sofort beziehbar und bietet mit seinem schönen Garten, den hellen Räumen und der guten Ausstattung beste Voraussetzungen für komfortables Wohnen in Wolfsburg.
Geräumige Doppelhaushälfte am Hageberg - Wolfsburg! Mein Haus = Mein Makler!
38440 Wolfsburg
Die vollständige Adresse der Immobilie erhalten Sie vom Anbieter.
Auf Karte anzeigen
Die vollständige Adresse der Immobilie erhalten Sie vom Anbieter.
Finanzierungszertifikat
In nur zwei Minuten zu Ihrem persönlichen Finanzierungszertifkat.
Infos
| Haustyp | Doppelhaushaelfte |
|---|---|
| Etagenzahl | 3 |
| Wohnfläche ca. | 132 m2 |
| Grundstücksfläche | 582 m2 |
| Bezugsfrei ab | sofort |
| Zimmer | 5 |
| Schlafzimmer | 4 |
| Badezimmer | 2 |
| Garage/Stellplatz | Garage |
| Anzahl Garage/Stellplatz | 2 |
Kosten
| Kaufpreis |
429.000 € |
|---|---|
| Provision |
2,58 % Käuferprovision inklusive Umsatzsteuer. Die Käufer-Provision beträgt 2,58 % vom Kaufpreis inkl. MwSt. Die Käufer-Provision ist verdient und fällig mit notarieller Beurkundung. Die Maklerhaus 38 GmbH hat einen provisionspflichtigen Maklervertrag in gleicher Höhe mit dem Verkäufer abgeschlossen. |
Finanzierungsrechner:
Kaufpreis:
600.000 €
Eigenkapital:
600.000 €
Monatliche Rate
0 €
Effektiver Jahreszins
0 %
Sollzinsbindung
10 Jahre
Bausubstanz & Energieausweis
| Baujahr | 1999 |
|---|---|
| Bauphase | Haus fertig gestellt |
| Objektzustand | Gepflegt |
| Qualität der Austattung | Normal |
| Heizungsart | Fernwärme |
| Wesentliche Energieträger | Fernwärme |
| Energieausweis | liegt vor |
| Energieausweistyp | Verbrauchsausweis |
| Energieverbrauchskennwert | 77,0 kWh/(m²*a) |
| Energieeffizienzklasse | C |
77,0
kWh/(m²*a)
Energieeffizienzklasse C
- A+
- A
- B
- C
- D
- E
- F
- G
- H
- 0
- 25
- 50
- 75
- 100
- 125
- 150
- 175
- 200
- 225
- >250
Beschreibung des Objekts
Ausstattung
+ 132 m² Wohnfläche
+ 582 m² Grundstück
+ 5 Zimmer
+ 2 Badezimmer
+ Garten
+ Gewächshaus
+ Garage
Lage
Die Doppelhaushälfte befindet sich im beliebten Wolfsburger Stadtteil Hageberg, in ruhiger und gepflegter Wohnlage der Gelsenkirchener Straße. Das Umfeld ist geprägt von Einfamilien- und Doppelhäusern mit schönen Gärten und bietet eine angenehme, familienfreundliche Atmosphäre.
Einkaufsmöglichkeiten, Schulen, Kindergärten und Bushaltestellen sind bequem zu Fuß erreichbar. Das VW-Werk und die Wolfsburger Innenstadt liegen nur wenige Minuten entfernt. Dank der guten Verkehrsanbindung und der grünen Umgebung mit nahegelegenen Spazier- und Radwegen vereint Hageberg ruhiges Wohnen mit Stadtnähe auf ideale Weise.
Sonstige Angaben
Gerne laden wir Sie zu einer Besichtigung ein, um Ihnen vielleicht Ihr neues Zuhause bekannt zu machen.
Bei Interesse und zur Vereinbarung von Besichtigungsterminen setzen Sie sich bitte mit uns über das Kontaktformular in Verbindung. Bitte geben Sie hierbei Ihre vollständige Kontaktadresse an. Unvollständige Anfragen werden nicht bearbeitet.
Unser Angebot ist nur für den Empfänger bestimmt. Da die in diesem Exposé enthaltenen Angaben auf Informationen des Eigentümers beruhen, können wir für die Richtigkeit trotz aller Sorgfalt keine Gewähr übernehmen. Hierfür bitten wir höflich um Ihr Verständnis.
Die Datenverarbeitung erfolgt auf Grundlage von Art. 6 Abs. 1 lit. b) DSGVO. Sie müssen dabei diejenigen personenbezogenen Daten angeben, die für die Bearbeitung Ihres jeweiligen Anliegens bzw. die Vorbereitung oder Durchführung der Geschäftsbeziehung mit Ihnen erforderlich sind. Ohne diese Daten werden wir nicht in der Lage sein, Ihre Anfrage zu bearbeiten bzw. den Vertrag mit Ihnen zu erfüllen. Ich stimme daher zu, das OM Immobilienmanagement meine personenbezogenen Daten im Einzelfall z.B. bei Kauf- oder Mietvertragsabschlüssen abspeichert und an Dritte (Eigentümer/Notar/Behörden) übermitteln darf.
Grundriss
Grundriss EG
>
>
Grundriss OG
>
>
Grundriss DG
>
>
Adresse
38440 Wolfsburg
Interessante Orte
Preis- und Lageinformationen
Preistrend für Bestandsimmobilien in Laagberg