Für Kapitalanleger oder Eigennutzer – Attraktives Angebot nahe der Stadtmitte von Bad Soden
Von Privat: Wunderschöner repräsentativer Altbau im Stil der Jahrhundertwende, Baujahr ca. 1900 (genaues Baujahr unbekannt).
Das Gebäude verfügt über 303 Quadratmeter Wohnfläche auf drei etwa gleich großen Ebenen mit je vier Räumen. Die einzelnen Etagen können entweder als eine Einheit oder aber als getrennte Wohnungen genutzt werden.
Die Immobilie kann auch – wie bisher – als Büro/Praxis dienen oder aber in Kombination von Wohnen und Arbeiten.
Das Gebäude enthält attraktive historische Elemente wie auffällige Türmchen im schiefergedeckten Dach, ein Treppenhaus mit alten Holz-Innentüren, hübsche Erker in jeder Etage sowie zwei schöne überdachte Balkone.
Die beiden unteren Geschosse haben überhohe Räume, die oberste Etage eine normale Deckenhöhe.
Die oberste Etage bietet einen fantastischen Skyline-Blick.
Das Gebäude wurde vor rund zehn Jahren umfangreich saniert (Dach neu eingedeckt, Doppel- bzw. Dreifachverglasung, neue Bodenbeläge, Außenfassade überarbeitet...). Jedes Zimmer verfügt über eine Klimaanlage.
Da die Liegenschaft in den letzten Jahren als Büro genutzt wurde, gibt es keine Bäder (jedoch in jeder Etage ein WC). Es sind drei kleine Büroküchen vorhanden. Hier besteht, je nach geplanter Nutzung, Umbaubedarf.
Zusätzliche Wohnfläche kann im Dachboden oder im Souterrain gewonnen werden.
5 gepflasterte Parkplätze befinden sich auf dem 564 Quadratmeter großen Grundstück.
Der Kaufpreis setzt sich zusammen aus 1.360.000 Euro für das Haus und 5 x 25.000 Euro für die angelegten Parkplätze.
Das Grundstück liegt in verkehrsgünstiger Lage, nur wenige Gehminuten von der Innenstadt von Bad Soden entfernt. Zum Bahnhof sind es nur 500 Meter.
Von Privat: Großzügiges Haus mit 12 Zimmern in Bad Soden am Taunus
65812 Bad Soden am Taunus
Die vollständige Adresse der Immobilie erhalten Sie vom Anbieter.
Auf Karte anzeigen
Die vollständige Adresse der Immobilie erhalten Sie vom Anbieter.
Finanzierungszertifikat
In nur zwei Minuten zu Ihrem persönlichen Finanzierungszertifkat.
Infos
| Haustyp | Mehrfamilienhaus |
|---|---|
| Etagenzahl | 3 |
| Wohnfläche ca. | 303 m2 |
| Nutzfläche | 96 m2 |
| Grundstücksfläche | 564 m2 |
| Bezugsfrei ab | 1.1.2026 |
| Zimmer | 12 |
| Schlafzimmer | 6 |
| Badezimmer | 3 |
| Garage/Stellplatz | Außenstellplatz |
| Anzahl Garage/Stellplatz | 5 |
Kosten
| Kaufpreis |
1.485.000 € |
|---|---|
| Provision | Nein |
Finanzierungsrechner:
Kaufpreis:
600.000 €
Eigenkapital:
600.000 €
Monatliche Rate
0 €
Effektiver Jahreszins
0 %
Sollzinsbindung
10 Jahre
Bausubstanz & Energieausweis
| Baujahr | 1900 |
|---|---|
| Letzte Sanierung | 2015 |
| Bauphase | Haus fertig gestellt |
| Objektzustand | Gepflegt |
| Qualität der Austattung | Gehoben |
| Heizungsart | Öl-Heizung |
| Wesentliche Energieträger | Öl |
| Energieausweis | liegt vor |
| Energieausweistyp | Bedarfsausweis |
| Energieverbrauchskennwert | 217,2 kWh/(m²*a) |
| Energieeffizienzklasse | G |
217,2
kWh/(m²*a)
Energieeffizienzklasse G
- A+
- A
- B
- C
- D
- E
- F
- G
- H
- 0
- 25
- 50
- 75
- 100
- 125
- 150
- 175
- 200
- 225
- >250
Beschreibung des Objekts
Ausstattung
- Hochwertiger Backsteinbau mit Sandsteinelementen,
- Sandsteinverzierungen an Hausecken und Fenstern,
- attraktive Holzelemente an Balkonen und Dach,
- schiefergedeckt mit schönen Türmchen,
- schmiedeeiserne Verzierungen an Haustür und Treppengeländern.
Lage
Bad Soden am Taunus, ein etablierter Kurort im Main-Taunus-Kreis, besticht durch seine attraktive Lage am Rande des Taunus und seine Nähe zu Frankfurt. Die Stadt bietet eine hervorragende Infrastruktur mit zahlreichen Einkaufsmöglichkeiten, Ärzten, Schulen und Freizeiteinrichtungen. Die gute Verkehrsanbindung durch öffentliche Verkehrsmittel und nahegelegene Autobahnen ermöglicht schnelle Wege in die Metropolregion Rhein-Main.
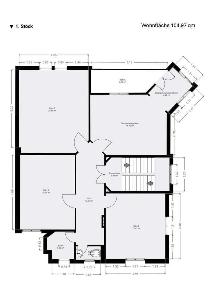
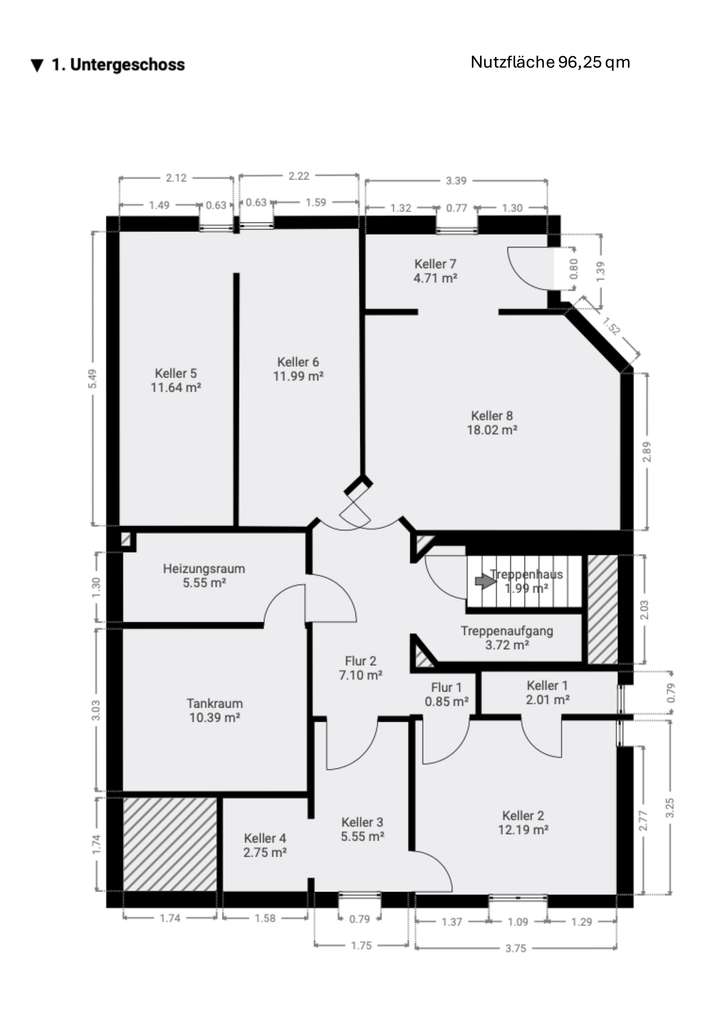
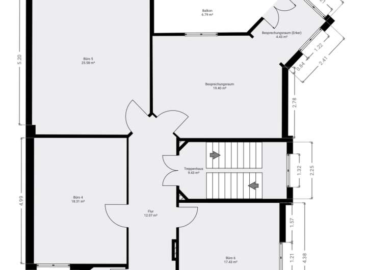
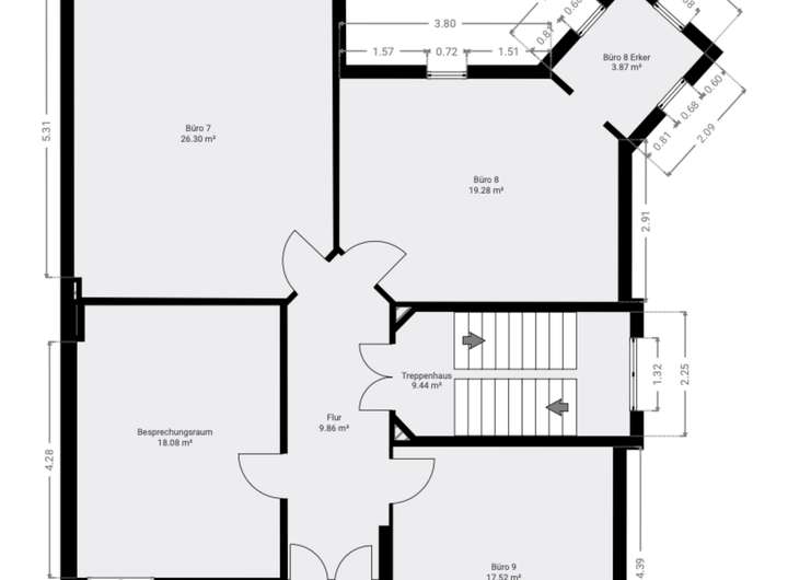
Grundriss
Grundriss UG
>
>
Grundriss EG
>
>
Grundriss 1 OG
>
>
Grundriss Dachgeschoss
>
>
Adresse
65812 Bad Soden am Taunus
Interessante Orte
Preis- und Lageinformationen
Preistrend für Bestandsimmobilien in Bad Soden am Taunus