Gemütliches Reihenmittelhaus auf sonnigen, pflegeleichten Grundstück auf dem beliebten denkmalgeschützten Steimker Berg. Das Haus steht auf einem 182 qm großen Eigentumsgrundstück, ist voll unterkellert und verfügt über einen eigenen separaten Außenstellplatz.
Aufgrund seiner soliden Bausubstanz und des äußerst gepflegten Erhaltungszustandes kann mit einigen wenigen Modernisierungsmaßnahmen ein zeitgemäßes Zuhause für die Familie oder das anspruchsvolle Pärchen geschaffen werden.
Steimker Berg! Grundsolides Reihenmittelhaus mit gepflegten sonnigen Garten und eigenem Stellplatz
38446 Wolfsburg
Die vollständige Adresse der Immobilie erhalten Sie vom Anbieter.
Auf Karte anzeigen
Die vollständige Adresse der Immobilie erhalten Sie vom Anbieter.
Finanzierungszertifikat
In nur zwei Minuten zu Ihrem persönlichen Finanzierungszertifkat.
Infos
| Haustyp | Reihenmittelhaus |
|---|---|
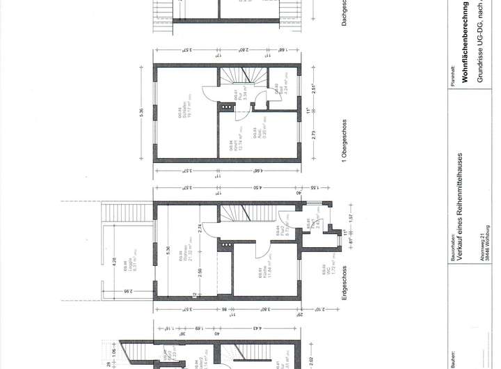
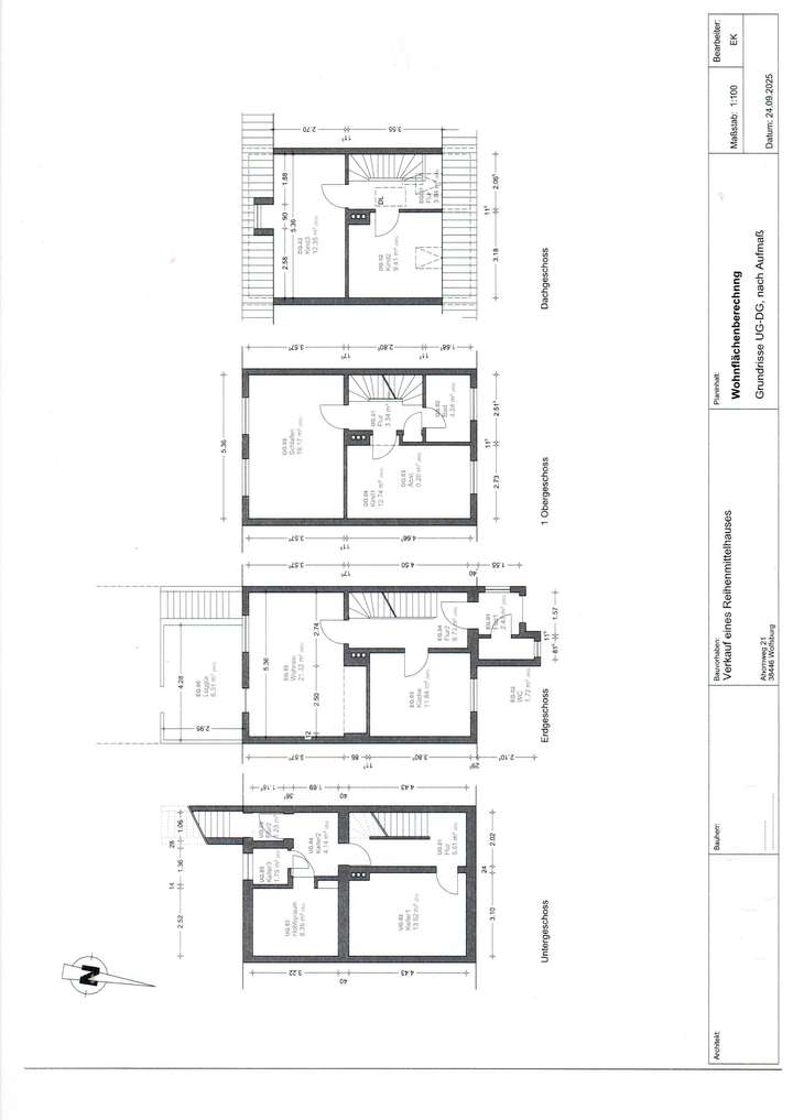
| Wohnfläche ca. | 116 m2 |
| Nutzfläche | 50 m2 |
| Grundstücksfläche | 182 m2 |
| Bezugsfrei ab | nach Absprache |
| Zimmer | 5 |
| Schlafzimmer | 4 |
| Badezimmer | 1 |
| Garage/Stellplatz | Außenstellplatz |
| Anzahl Garage/Stellplatz | 1 |
Kosten
| Kaufpreis |
325.000 € |
|---|---|
| Provision |
2,38 % inkl. MwSt vom erzielten Kaufpreis 2,38 % Käuferprovision inkl. MwSt., verdient und fällig mit Beurkundung des notariellen Kaufvertrages. AM Immobilien hat einen provisionspflichtigen Maklervertrag mit dem Verkäufer in gleicher Höhe abgeschlossen. |
Finanzierungsrechner:
Kaufpreis:
600.000 €
Eigenkapital:
600.000 €
Monatliche Rate
0 €
Effektiver Jahreszins
0 %
Sollzinsbindung
10 Jahre
Bausubstanz & Energieausweis
| Baujahr | 1939 |
|---|---|
| Letzte Sanierung | 2002 |
| Objektzustand | Gepflegt |
| Qualität der Austattung | Normal |
| Heizungsart | Fernwärme |
| Wesentliche Energieträger | Fernwärme |
| Energieausweis | laut Gesetz nicht erforderlich |
Beschreibung des Objekts
Ausstattung
Die Immobilie ist in einem äußerst gepflegten Zustand und verfügt über folgende Ausstattung:
- Vollkeller mit überdachten separaten Kellerausgang
- eigenem Stellplatz
- top gepflegte originale Miele Küche inkl. Miele Elektrogeräte
- Fernwärmeanschluss
- Glasfaseranschluss
- Kunstofffenster im gesamten Haus
- Gäste-Wc im Erdgeschoss
- Bad mit Fenster im Obergeschoss
- großzügige komplett überdachte Terrasse
- top gepflegter, pflegeleichter Garten ohne störenden Altbaumbestand
- 3 zügiger Schornstein für eventuelle Kamin oder Ofennutzung
- neue Dacheindeckung nach Sturmschaden im Jahre 2002 inkl. Innendämmung und neuer Schornsteineinfassung
- diverse Tischlereinbauschränke
...etc.
Lage
Der Steimker Berg ist eine der Top Wohnlagen von Wolfsburg. Aufgrund seiner speziellen Lage erreicht man das Stadtzentrum fußläufig in wenigen Minuten und ebenso ist man nach wenigen Schritten im idyllischen Hasselbachtal und kann die Natur genießen. Sämtliche Dinge des täglichen Bedarfs sind in unmittelbarer Nähe.
Grundriss
Grundrisse
>
>
Adresse
38446 Wolfsburg
Interessante Orte
Preis- und Lageinformationen
Preistrend für Bestandsimmobilien in Steimker Berg