Willkommen in einem Zuhause voller Möglichkeiten.
Dieses charmante Wohnhaus in Wolfsburg-Barnstorf bietet eine Kombination aus solider Bausubstanz und Potential zur freien Gestaltung. Mit ca. 128 m² Wohnfläche in unverbauter Feldrandlage genießen Sie einen wundervollen Ausblick in die Weite und viel Privatsphäre.
Das ursprünglich als Einfamilienhaus konzipierte Wohnhaus - massive Bauweise, Baujahr 1963 - wurde 2010 um einen Anbau ergänzt. Dabei wurde auch das Dach gartenseitig erneuert und gedämmt. Aktuell entspricht das Wesen der Immobilie einer Doppelhaushälfte. Die Teilung der Immobilien erfolgte mit Hilfe einer Teilungserklärung.
Im Haus finden Sie 3 großzügige Zimmer, ein Wintergarten und eine Außenterrasse mit viel Raum für individuelle Gestaltungsideen. Bereits beim Betreten des Gebäudes spürt man, dass das zentrale Treppenhaus und die Anordnung der Räume auf verschiedenen Etagen etwas besonderes ist. Im Erdgeschoss befindet sich ein Gäste-WC, die Küche (Option zur offenen Küche) befindet sich im Hochparterre, das Bad mit Dusche und Wanne im Obergeschoss.
Diese Immobilie bietet eine ideale Grundlage um Ihre Wohnträume in die Wirklichkeit umzusetzen. Das Wohnhaus in voll unterkellert, die Fenster verfügen über manuelle Rollläden. Beheizt wird das Gebäude über eine gemeinschaftliche Gas-Zentralheizung sowie Heizkörper in den Räumen.
Auf dem Grundstück befinden sich eine Garage mit elektr. Tor und Vorrüstung für eine Wallbox sowie ein PKW-Stellplatz, die der Immobilie zugeordnet sind. Die angegebene Grundstücksfläche sowie Wohnfläche bezieht sich auf die zum Verkauf stehende Einheit.
Feldrandlage: 3-Zimmer-Wohnhaus mit Keller, Garten und Garage
38446 Wolfsburg
Die vollständige Adresse der Immobilie erhalten Sie vom Anbieter.
Auf Karte anzeigen
Die vollständige Adresse der Immobilie erhalten Sie vom Anbieter.
Finanzierungszertifikat
In nur zwei Minuten zu Ihrem persönlichen Finanzierungszertifkat.
Infos
| Haustyp | Einfamilienhaus |
|---|---|
| Wohnfläche ca. | 128 m2 |
| Nutzfläche | 171 m2 |
| Grundstücksfläche | 427 m2 |
| Zimmer | 3 |
Kosten
| Kaufpreis |
195.000 € |
|---|---|
| Provision |
2,97% Bei Zustandekommen des notariellen Kaufvertrages durch unseren Nachweis und/oder Vermittlung hat der Käufer eine Maklerprovision i.H. von 2,97 % inkl. gesetzlich geltender MwSt. vom endgültigen Erwerbspreis an uns zu zahlen. Mit dem Verkäufer besteht eine gleichlautende Vereinbarung. Fälligkeit bei Abschluss des notariellen Kaufvertrages. |
Finanzierungsrechner:
Kaufpreis:
600.000 €
Eigenkapital:
600.000 €
Monatliche Rate
0 €
Effektiver Jahreszins
0 %
Sollzinsbindung
10 Jahre
Bausubstanz & Energieausweis
| Energieausweis | liegt zur Besichtigung vor |
|---|
Beschreibung des Objekts
Lage
Die Immobilie befindet sich in unverbauter Feldrandlage von Barnstorf, einem südlichen Stadtteil der Autostadt Wolfsburg. Die etwa 130.000 Einwohner zählende Stadt Wolfsburg ist fünftgrößte Stadt in Niedersachsen und Teil der Metropolregion Hannover- Braunschweig-Göttingen-Wolfsburg. Die Stadt Wolfsburg verfügt über eine hervorragende Infrastruktur, bestehend aus Nahversorgern, Kitas, Schulen, ärztlicher Versorgung, Klinikum, Hotels und zahlreichen weiteren Einrichtungen des täglichen Bedarfes.
Die Umgebungsbebauung von weiteren Einfamilienhäusern geprägt. Die Anbindung an den öffentlichen Personennahverkehr erfolgt über eine fußläufig entfernte Bushaltestelle. Die Entfernung zur Autostadt/ dem Wolfsburger Stadtzentrum beträgt nur ca. 14 PKW-Fahrminuten. Die Anbindung an den überregionalen Individualverkehr erfolgt durch die nur ca. 9 km entfernte Auffahrt zur Autobahn A39 und im weiteren Verkauf zur A2.
Sonstige Angaben
Die Objektangaben wurden nach bestem Wissen und Gewissen erstellt. Grundlage der vorstehenden Angaben sind Informationen und/oder Unterlagen, welche uns seitens des Eigentümers oder Dritter zur Verfügung gestellt worden sind. Eine Gewähr für die Richtigkeit der Angaben kann daher nicht übernommen werden. Irrtum und Zwischenverkauf vorbehalten.
Grundriss
Grundriss EG u. Hochparterre
>
>
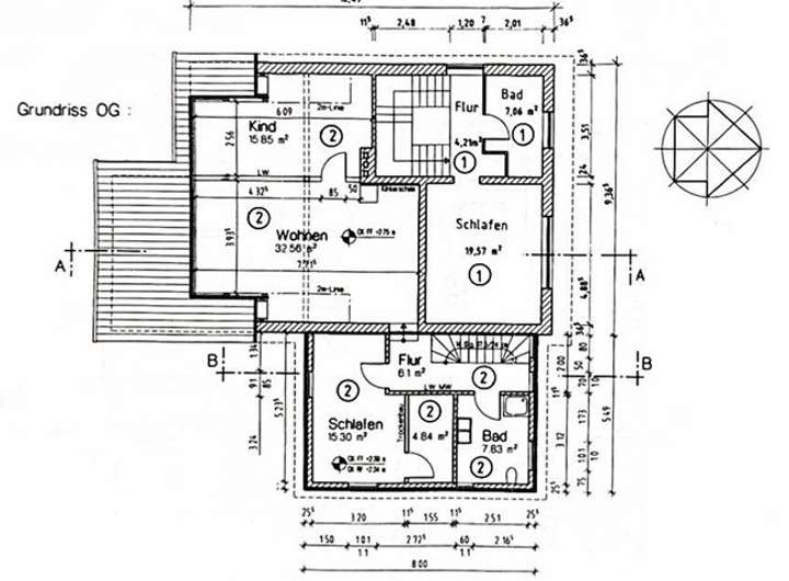
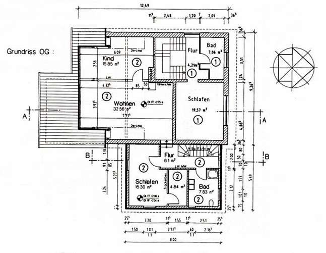
Grundriss Obergeschoss
>
>
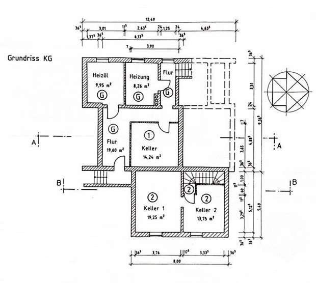
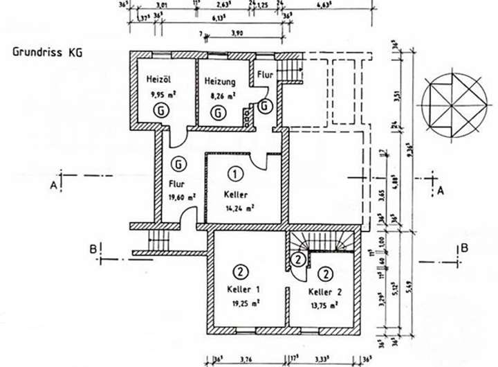
Grundriss Kellergeschoss
>
>
Grundriss Erdgeschoss.jpg
>
>
Grundriss Obergeschoss.jpg
>
>
Grundriss Keller.jpg
>
>
Adresse
38446 Wolfsburg
Interessante Orte
Preis- und Lageinformationen
Preistrend für Bestandsimmobilien in Barnstorf