Diese großzügige Immobilie, bestehend zwei Häusern, wurde im Jahr 1961 (Haupthaus) sowie 1974 (Anbau/Nebengebäude) erbaut und bietet vielfältige Nutzungsmöglichkeiten für die ganze Familie – ob als Mehrgenerationenhaus, zur teilweisen Vermietung oder zur Kombination von Wohnen und Arbeiten.
Haupthaus :
Das Haupthaus mit einer Wohnfläche von ca. 120 m² ist bezugsfertig und wird mit einer Ölheizung im Keller (inkl. Kellertank) beheizt.
Erdgeschoss:
Zwei Zimmer, eine Küche (die vorhandene Einbauküche kann auf Wunsch für 1 € übernommen oder entfernt werden) sowie ein Badezimmer.
Dachgeschoss:
Drei weitere Zimmer, alternativ nutzbar als 2 Zimmer, Küche und Bad – ideal für eine Einliegerwohnung. Zusätzlich befindet sich hier ein kleiner Wirtschaftsraum sowie ein weiteres Bad.
In den letzten Jahren wurden Modernisierungen vorgenommen:
- Malerarbeiten
- Fußböden
- Wasser- und Abwasserleitungen
- Elektroinstallation
- Badezimmer
Anbau:
Der Anbau wurde 1974 errichtet und verfügt über ca. 75 m² Wohnfläche. Er bietet drei Zimmer, eine Küche und ein Bad sowie einen Vollkeller mit separater Ölheizung.
Der Anbau ist derzeit vermietet und erzielt eine monatliche Kaltmiete von 300 €.
Nebengebäude und Außenbereich:
Auf dem Grundstück befindet sich ein massives Nebengebäude mit Walmdach, bestehend aus:
- Garage
- Abstellraum
- Fahrradraum
- Hühnerstall
- Dachboden, vom Hof aus zugänglich
Der gepflasterte Hof bietet mehrere PKW-Stellplätze.
Aufteilung im Überblick
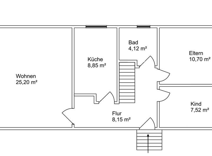
Haupthaus:
EG: Windfang, Flur, Treppenhaus, Schlafzimmer, Wohnzimmer, Küche, Bad
DG: Flur, Kind I, Kind II, Kind III mit Zugang zum Bad
Spitzboden: nicht ausgebaut, Zugang über Einschubtreppe
KG: Flur, Vorratsraum, Heizung, Waschküche
Anbau:
EG: Flur, Kind, Schlafen, Küche, Bad, Wohnzimmer
KG: Flur, Vorrat I, Vorrat II, Hobbyraum, Heizung
Diese kombinierte Immobilie vereint großzügiges Wohnen, solide Bausubstanz und vielfältige Nutzungsmöglichkeiten auf einem gepflegten Grundstück – ideal für Familien oder Kapitalanleger!
Der Energieausweis ist beantragt und liegt bei der Besichtigung vor!
Geräumiges Einfamilienhaus mit Anbau und Nebengebäude in Hohne!
29362 Hohne
Die vollständige Adresse der Immobilie erhalten Sie vom Anbieter.
Auf Karte anzeigen
Die vollständige Adresse der Immobilie erhalten Sie vom Anbieter.
Finanzierungszertifikat
In nur zwei Minuten zu Ihrem persönlichen Finanzierungszertifkat.
Infos
| Haustyp | Einfamilienhaus |
|---|---|
| Etagenzahl | 1 |
| Wohnfläche ca. | 190 m2 |
| Grundstücksfläche | 700 m2 |
| Zimmer | 8 |
| Schlafzimmer | 6 |
| Badezimmer | 3 |
Kosten
| Kaufpreis |
169.000 € |
|---|---|
| Provision |
Die Maklerprovision beträgt 3,57 % inkl. 19 % Mehrwertsteuer vom beurkundeten Kaufpreis. |
Finanzierungsrechner:
Kaufpreis:
600.000 €
Eigenkapital:
600.000 €
Monatliche Rate
0 €
Effektiver Jahreszins
0 %
Sollzinsbindung
10 Jahre
Bausubstanz & Energieausweis
| Baujahr | 1961 |
|---|---|
| Heizungsart | Zentralheizung |
| Wesentliche Energieträger | Öl |
Beschreibung des Objekts
Ausstattung
Alles Wichtige auf einem Blick:
- EKB
- Holzfenster
- Böden: Fliesen, Laminat
- Haupthaus zwei Bäder
- tlw. Außenjalousien
- Anbau ein Bad mit Fenster
- Haupthaus: EG und DG sep. Stromzähler
- Haupthaus und Anbau sep. Heizung
- Gerätschuppen
- kleiner Unterstand im Garten
- Garage
- Garten
u.v.m.
Lage
Willkommen in Hohne, einem malerischen Ort, eingebettet in die reizvolle Landschaft nahe Celle. Diese idyllische Lage bietet eine harmonische Verbindung zwischen ländlichem Charme und modernem Komfort, die jeden Bewohner verzaubert.
Die Anbindung an die Stadt Celle ist hervorragend. In nur wenigen Minuten erreichen Sie das Stadtzentrum mit seinen vielfältigen Einkaufsmöglichkeiten, Restaurants und kulturellen Angeboten. Die gute Verkehrsanbindung ermöglicht zudem eine bequeme Anreise in die benachbarten Städte Hannover und Braunschweig.
Für Familien bietet Hohne ein ideales Umfeld. Kindergärten, Schulen und Spielplätze befinden sich in der Nähe und sorgen für eine optimale Versorgung der kleinen Bewohner.
Sonstige Angaben
Alle Angaben in diesem Exposé wurden sorgfältig und so vollständig wie möglich gemacht. Dennoch kann das Vorhandensein von Fehlern nicht ausgeschlossen werden. Die Angaben in diesem Exposé erfolgen daher ohne Gewähr und basieren ausschließlich auf Informationen, die uns vom Verkäufer bzw. von Dritten zur Verfügung gestellt wurden, sodass wir eine Gewähr für die Vollständigkeit, Richtigkeit und Aktualität dieser Angaben nicht übernehmen können.
***Da wir unseren Auftraggebern zur Diskretion verpflichtet sind und es sich bei den Informationen zu der Immobilie um sensible Daten handelt, bitten wir um Verständnis, dass wir Ihre Anfragen nur unter vollständiger Nennung Ihres Namens, der Anschrift und der Telefonnummer bearbeiten können!***
Weitere Fragen beantwortet Ihnen sehr gerne Frau Gürbet Ekinci aus unserem Büro in Hannover unter Telefon 0162 24 47 198 Rufen Sie uns an. Wir freuen uns, Ihnen bei der Suche nach Ihrer Wunschimmobilie behilflich sein zu dürfen.
Adresse
29362 Hohne
Interessante Orte
Preis- und Lageinformationen
Preistrend für Bestandsimmobilien in Hohne