Das gepflegte Zweifamilienhaus präsentiert sich in einem soliden und gut instandgehaltenen Zustand. Es besteht aus zwei vermieteten Wohneinheiten und wurde im September 2025 außen vollständig gestrichen. Im Juli 2025 erfolgte zudem eine Einblasdämmung, wodurch die Energieeffizienz des Hauses deutlich verbessert wurde. Beheizt wird das Gebäude über eine Gasheizung aus 2007, der Warmwasserkessel wurde im Jahr 2025 erneuert.
Die Wohnung im Obergeschoss verfügt über zwei Zimmer, eine Küche, ein Bad sowie ein separates WC. Sie ist seit etwa eineinhalb Jahren vermietet. Die monatliche Kaltmiete beträgt rund 700 Euro, die Warmmiete etwa 850 Euro. Die Wohnung ist mit einem Echtholzparkettboden ausgestattet und in einem gepflegten Zustand. Eine Einbauküche ist vorhanden.
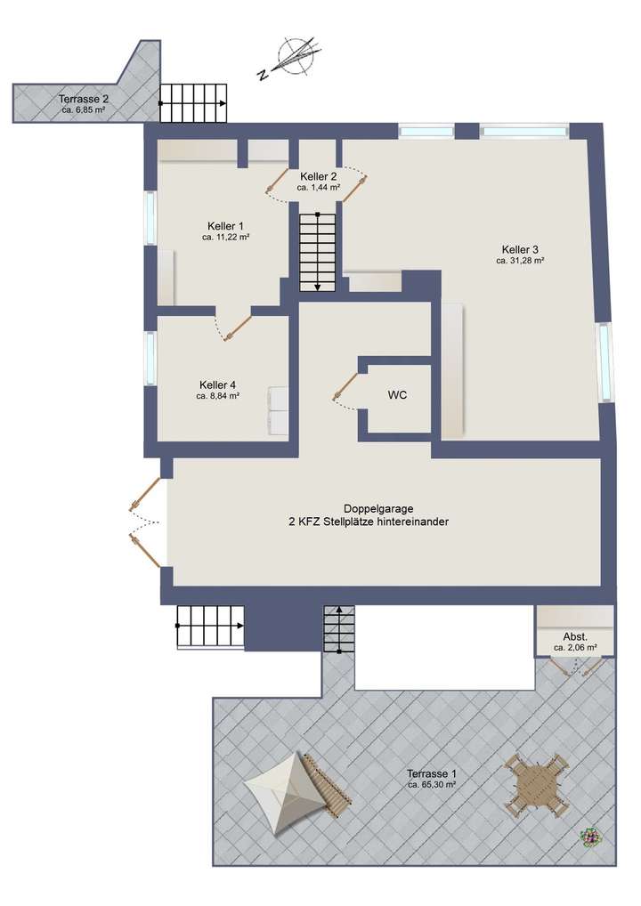
Die Erdgeschosswohnung umfasst ein Wohnzimmer, eine Küche, ein Arbeitszimmer, ein Schlafzimmer, ein Bad und ein separates Gäste-WC. Sie ist voll unterkellert und bietet im Keller ein beheiztes Gästezimmer, eine Waschküche sowie Abstellflächen. Die Fenster sind doppelt verglast mit Kunststoffrahmen und stammen aus dem Jahr 1997. Die Bodenbeläge sind in Holzoptik (Laminat) gehalten. Zusätzlich gehört eine Doppelgarage mit Stellfläche zum Objekt.
Das Haus ist insgesamt in einem gepflegten und funktionalen Zustand. Durch die frische Fassadengestaltung und die neue Dämmung präsentiert es sich optisch ansprechend und energetisch verbessert. Die Beheizung erfolgt über eine zentrale Gasheizung, die Fenster bieten einen soliden Wärmeschutz.
Vermietetes Zweifamilienhaus in beliebter zentraler Lage von Hamburg-Rahlstedt
22149 Hamburg
Die vollständige Adresse der Immobilie erhalten Sie vom Anbieter.
Auf Karte anzeigen
Die vollständige Adresse der Immobilie erhalten Sie vom Anbieter.
Finanzierungszertifikat
In nur zwei Minuten zu Ihrem persönlichen Finanzierungszertifkat.
Infos
| Haustyp | Mehrfamilienhaus |
|---|---|
| Wohnfläche ca. | 125 m2 |
| Nutzfläche | 108,93 m2 |
| Grundstücksfläche | 345 m2 |
| Zimmer | 4 |
| Schlafzimmer | 3 |
| Badezimmer | 2 |
| Garage/Stellplatz | Garage |
| Anzahl Garage/Stellplatz | 1 |
Kosten
| Kaufpreis |
489.000 € |
|---|---|
| Provision |
3,57% |
Finanzierungsrechner:
Kaufpreis:
600.000 €
Eigenkapital:
600.000 €
Monatliche Rate
0 €
Effektiver Jahreszins
0 %
Sollzinsbindung
10 Jahre
Bausubstanz & Energieausweis
| Baujahr | 1935 |
|---|---|
| Objektzustand | Gepflegt |
| Heizungsart | Zentralheizung |
| Wesentliche Energieträger | Gas |
| Energieausweis | liegt vor |
| Energieausweistyp | Bedarfsausweis |
| Energieverbrauchskennwert | 219,0 kWh/(m²*a) |
| Energieeffizienzklasse | H |
219,0
kWh/(m²*a)
Energieeffizienzklasse H
- A+
- A
- B
- C
- D
- E
- F
- G
- H
- 0
- 25
- 50
- 75
- 100
- 125
- 150
- 175
- 200
- 225
- >250
Beschreibung des Objekts
Ausstattung
Besondere Highlights:
+ Baujahr: Ca.: 1935
+ Wohnfläche gesamt: Ca.: 125,68 m²
+ Wohnfläche Erdgeschoss: Ca.: 79,67 m²
+ Wohnfläche Obergeschoss: Ca.: 46,01 m²
+ Gepflegtes Zweifamilienhaus mit solider Bausubstanz
+ Miete Erdgeschoss: Ca.: 1.230,- € kalt, 1.500,- € warm
+ Miete Obergeschoss: Ca.: 700,- € kalt, 850,- € warm
+ Zwei vermietete Wohneinheiten – stabile Mieteinnahmen
+ Frisch gestrichene Fassade (2025)
+ Energetisch modernisiert durch Einblasdämmung (2025)
+ Zentrale Gasheizung aus 2007 – zuverlässige Wärmeversorgung
+ Neuer Warmwasserkessel (2025)
+ Voll unterkellert mit zusätzlicher Nutzfläche
+ Beheiztes Gästezimmer im Keller
+ Doppelgarage mit zusätzlicher Stellfläche
+ Echtholzparkett im Obergeschoss & hochwertiger Bodenbelag
+ Moderne Laminatböden in Holzoptik im Erdgeschoss
+ Helle und freundliche Raumaufteilung
+ Fenster mit Doppelverglasung (1997)
+ Ruhige Wohnlage mit angenehmer Nachbarschaft
+ Verbesserter Energieverbrauch durch Dämmung
+ Beide Wohnungen mit Küche und separatem WC ausgestattet
+ Großzügige Kellerfläche mit Waschküche
+ Attraktives Gesamtobjekt mit langfristiger Wertstabilität
Nähere Details erläutere ich Ihnen gerne in einem persönlichen Gespräch.
Machen Sie sich selbst ein Bild von diesem schönen Objekt und vereinbaren Sie jetzt Ihren individuellen Besichtigungstermin.
Lage
Rahlstedt ist einer der beliebtesten Stadtteile Hamburgs. Die etwa 92.000 Einwohner leben gut und gerne hier im Nordosten der Hansestadt. Der Stadtteil hat eine sehr gut ausgebaute Infrastruktur und bietet etliche Einkaufsmöglichkeiten und Dienstleistungen aller Art sowie eine lebendige Kulturszene.
In den alten, im Krieg nicht zerstörten Teilen, zeichnet sich Rahlstedt durch ein Stadtbild aus, welches vielfach von Häusern aus der Gründerzeit und des Jugendstils aus dem späten 19. Jahrhundert geprägt wird. Gerade diese herrschaftlichen Häuser machen den ganz besonderen Reiz dieses besonderen Stadtteils aus.
Vom Rahlstedter Bahnhof, gelegen an der Strecke Hamburg-Hauptbahnhof – Lübeck, ist man in ca. 20 Minuten in der Innenstadt. Außerdem verbinden knapp 20 Buslinien den Stadtteil mit den umliegenden Quartieren, mit dem Zentrum Wandsbek und mit den Gemeinden im schleswig-holsteinischen Landkreis Stormarn. Mit dem PKW ist man in ca. 45 Minuten an der Ostsee. Die nahegelegene Auffahrt zur BAB A1 stellt den direkten Anschluss an das Fernverkehrsnetz sicher.
Im Umfeld gibt es für Naturliebhaber und Sportbegeisterte viele grüne Oasen, beispielsweise die Feldmark und das Naturschutzgebiet Höltigbaum, welches zum Wandern, Joggen oder einfach nur Flanieren in einer faszinierenden, savannenähnlichen Landschaft einlädt.
Rahlstedt verfügt zudem über ein breites Angebot an Bildungseinrichtungen bis hin zum Gymnasium sowie ein vielfältiges Betreuungsangebot für Kinder und ist daher auch bei Familien sehr beliebt.
Weitere Impressionen können Sie auch unserem Stadtteil-Video entnehmen: https://youtu.be/ffXrVztgxJc
Sonstige Angaben
Sie wollen Ihre Immobilie verkaufen? Sprechen Sie uns an und vereinbaren Sie einen Termin für eine kostenlose Werteinschätzung. Entsprechend Ihrer Vorstellungen erhalten Sie von uns ein für Sie maßgeschneidertes Vermarktungskonzept für Ihre Immobilie.
Dolberg & Uderstadt Immobilien, Ihr Vertrauensmakler seit 1971 – profitieren Sie von der Erfahrung aus 50 Jahren im Verkauf von Immobilien.
Nebenkosten: ca. 2 % Notar- und Gerichtskosten sowie 5,5 % gesetzlicher Grunderwerbsteuer
Käufercourtage: 3,57 % inkl. Mehrwertsteuer
Bitte haben Sie Verständnis dafür, dass auf Wunsch der Verkäufer keine Reservierungen vor Notartermin möglich sind.
Haftungsausschluss: Wir möchten Sie darauf hinweisen, dass sämtliche Angaben auf Grundlage von Eigentümerangaben, nach bestem Wissen und Gewissen, jedoch ohne Gewähr auf Vollständigkeit und Richtigkeit, erfolgen. Irrtum und Zwischenverkauf vorbehalten. Der Makler ist von jeglicher Haftung befreit.
Grundriss
Grundriss Erdgeschoss
>
>
Grundriss Dachgeschosswohnung
>
>
Grundriss Kellergeschoss
>
>
Adresse
22149 Hamburg
Interessante Orte
Preis- und Lageinformationen
Preistrend für Bestandsimmobilien in Rahlstedt