Schönes Mehrfamilienhaus mit architektonischer Raffinesse
Dieses außergewöhnliche Architektenhaus überzeugt durch ein innovatives Raumkonzept über mehrere Ebenen, das Großzügigkeit, Funktionalität und Individualität harmonisch vereint. Die versetzten Wohnebenen schaffen nicht nur spannende Sichtachsen und eine klare Trennung der Lebensbereiche, sondern ermöglichen auch ein lichtdurchflutetes, offenes Wohnambiente mit einzigartigem Charakter.
Das stilvolle Dreiparteienhaus bietet vielseitige Nutzungsmöglichkeiten und lässt sich flexibel an individuelle Wohnbedürfnisse anpassen. Auf insgesamt elf Zimmern, verteilt auf mehrere Ebenen, bietet dieses Objekt vielfältige Nutzungsmöglichkeiten – ob als großzügiges Familiendomizil, Mehrgenerationenhaus oder repräsentativer Wohn- und Arbeitsort unter einem Dach.
Es stehen drei rechtlich eigenständige, grundbuchlich getrennte Wohneinheiten zur Verfügung:
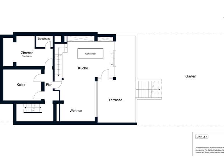
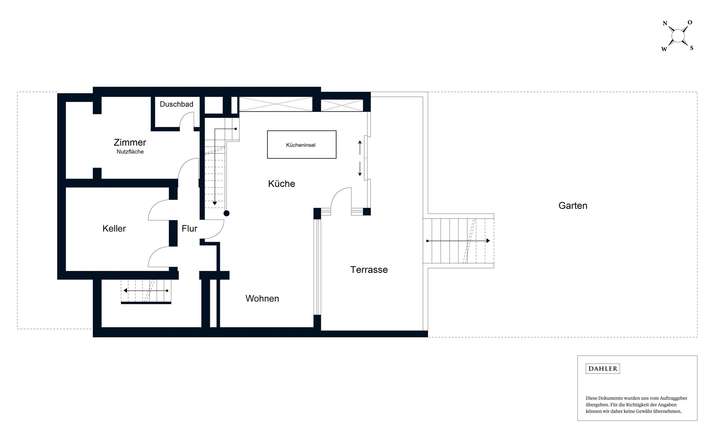
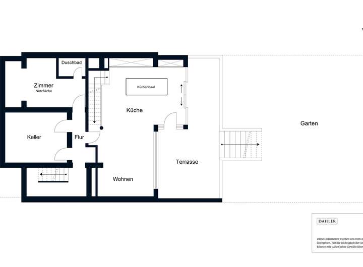
_ Maisonette-Wohnung (Untergeschoss & Hochparterre): vier Zimmer, großzügige Terrasse und direkter Zugang zum Garten – ideal für Familien oder anspruchsvolle Paare mit Wunsch nach Freiraum und Privatsphäre (ETW 1 - Wohnfläche ca. 102,2 m²)
_ erstes Obergeschoss: drei Zimmer, zwei Balkone – perfekt für Paare oder kleine Familien, die lichtdurchflutetes Wohnen mit Außenbezug schätzen (ETW 2 - Wohnfläche ca . 81,9 m²)
_ zweites Obergeschoss: vier Zimmer, ein Balkon – optimal für Familien oder Wohngemeinschaften mit Platzbedarf und einem Sinn für urbanes Wohnen mit Ausblick
(ETW 3 - Wohnfläche ca. 78,4 m²)
Jede Einheit besticht durch eine hochwertige Ausstattung, eine durchdachte Raumaufteilung sowie ein außergewöhnliches Wohngefühl, das moderne Architektur auf den Punkt bringt.
Die Jahresnettokaltmiete bei Vollvermietung (möbliert) belief sich in den letzten Jahren auf ca. 83.700 Euro.
Drei-Parteienhaus – Eigennutzung mit attraktiver Vermietung
60385 Frankfurt am Main
Die vollständige Adresse der Immobilie erhalten Sie vom Anbieter.
Auf Karte anzeigen
Die vollständige Adresse der Immobilie erhalten Sie vom Anbieter.
Finanzierungszertifikat
In nur zwei Minuten zu Ihrem persönlichen Finanzierungszertifkat.
Infos
| Haustyp | Mehrfamilienhaus |
|---|---|
| Wohnfläche ca. | 263 m2 |
| Grundstücksfläche | 315 m2 |
| Bezugsfrei ab | nach Vereinbarung |
| Zimmer | 11 |
| Anzahl Garage/Stellplatz | 1 |
Kosten
| Kaufpreis |
2.390.000 € |
|---|---|
| Provision |
5,95 % inkl. gesetzlicher MwSt. von aktuell 19 % bezogen auf den Kaufpreis |
Finanzierungsrechner:
Kaufpreis:
600.000 €
Eigenkapital:
600.000 €
Monatliche Rate
0 €
Effektiver Jahreszins
0 %
Sollzinsbindung
10 Jahre
Bausubstanz & Energieausweis
| Baujahr | 1936 |
|---|---|
| Qualität der Austattung | Gehoben |
| Wesentliche Energieträger | Gas |
| Energieausweis | liegt vor |
| Energieausweistyp | Bedarfsausweis |
| Energieverbrauchskennwert | 233,9 kWh/(m²*a) |
| Energieeffizienzklasse | G |
233,9
kWh/(m²*a)
Energieeffizienzklasse G
- A+
- A
- B
- C
- D
- E
- F
- G
- H
- 0
- 25
- 50
- 75
- 100
- 125
- 150
- 175
- 200
- 225
- >250
Beschreibung des Objekts
Ausstattung
_ offener Wohn-Essbereich mit Galerie und Raumhöhe bis zu 5 Meter
_ direkter Zugang zu Terrasse und Garten
_ hochwertige, vom Schreiner angefertigte Designküche mit Kochinsel und Elektrogeräten der Marke Miele
_ Smart-Home-Steuerung
_ Fußbodenheizung in der Maisonette-Wohnung
_ maßgefertigte Einbauschränke in der Wohnung
_ hochwertige Materialien wie Eichenparkett, Naturstein oder Sichtbeton, Via Fliesen
_ lichtdurchflutete Räume dank bodentiefer Fenster
_ Fenster mit erhöhtem Sicherheitsgrad
_ elf Zimmer
_ drei Küchen
_ vier Badezimmer, drei davon mit Tageslicht
_ vier Balkone mit verschiedenen Ausrichtungen
_ Terrasse, Balkon und Garten sind nach Südwesten ausgerichtet
_ optional: offener Kamin, Weinkeller oder Atelierbereich
_ Gartenhäuschen und Fahrradabstellmöglichkeiten
_ E-Mobil Ladestation
_ einen Parkplatz
_ die Gaszentralheizung wurde im Jahr 2017 installiert
_ Vorbereitung für eine Photovoltaikanlage
Lage
_ kaum ein Stadtteil entwickelt sich so schnell dynamisch nach vorne wie das Ostend
_ einst als Industrieviertel ist das Ostend heute durch den imposanten Bau der EZB
geprägt
_ Gegenpol hierzu bieten die ehemalige Großmarkthalle, der Zoo sowie das Fritz-
Remond-Theater
_ alle Zeichen im Ostend stehen auf „immer weiter“: architektonisch, kulturell und
kulinarisch
_ nach etwa 25 Fahrminuten erreicht man den Frankfurter Flughafen
_ die Nähe zum benachbarten Bornheim
_ die Wohnung liegt 10 Minuten von der Berger Straße mit ihren zahlreichen Shopping-Möglichkeiten, Restaurants und einem Wochenmarkt entfernt.
_ der Zugang zur U7 befindet sich in einer Minute Laufweite, wodurch die
Konstablerwache in ca. 7 Minuten erreichbar ist
Grundriss
Grundriss UG
>
>
Grundriss EG
>
>
Grundriss 1. OG
>
>
Grundriss 2. OG
>
>
Adresse
60385 Frankfurt am Main
Interessante Orte
Preis- und Lageinformationen
Preistrend für Bestandsimmobilien in Ostend