Hier können Sie Ihren individuellen Wohntraum verwirklichen: Basierend auf dem Planungskonzept »View« des renommierten Darmstädter Architekturbüros planquadrat haben Sie die Möglichkeit, Ihre Vorstellungen hinsichtlich Raumplanung, Ausstattungswünschen und Fassadengestaltung gemeinsam mit den Architekten bis zur Baureife zu entwickeln.
Gestaltprägendes Thema aller Entwürfe ist eine polygonale Formensprache, die dem Gebiet seinen einzigartigen Charakter verleiht. Die Villa hat zwei Geschosse und ist voll unterkellert.
Das übergreifende Farbkonzept wurde von einem Farbarchitekten entwickelt. Es betont die extravagante Architektursprache, lässt eine interessante Varianz im Quartier entstehen.
Der Haustyp "View" mit seiner länglichen Gebäudeform bietet von der nach Süden ausgerichteten Dachterrasse Ausblicke in Richtung der Frankfurter Skyline.
Das Erdgeschoss ist mit Bezug auf die Grundstückstopografie als Splitlevel konzipiert, der Wohn- und Essbereich weitet sich in seiner Raumhöhe zum Garten hin auf.
Von der Garage aus erreicht man den Eingangsbereich geschützt durch das auskragende Obergeschoss. Große Fensteröffnungen im Erdgeschoss erzeugen einen räumlichen Bezug zum Garten, Fensterbäder im Obergeschoss betonen die lang gestreckte Gebäudeform.
In den oberen Geschossen befinden sich die Individualräume. Im Erdgeschoss kann neben Wohn-, Ess- und Kochbereich ein weiterer Raum als Gäste- oder Arbeitszimmer eingerichtet werden.
NEU! | WestVilla "View" mit individueller Grundrissgestaltung auf über 230 m² Wohnfläche | Riedberg
Fritz-Wichert-Ring 5,
60438 Frankfurt am Main
Auf Karte anzeigen
Finanzierungszertifikat
In nur zwei Minuten zu Ihrem persönlichen Finanzierungszertifkat.
Infos
| Haustyp | Einfamilienhaus |
|---|---|
| Etagenzahl | 2 |
| Wohnfläche ca. | 233 m2 |
| Nutzfläche | 46,1 m2 |
| Grundstücksfläche | 499 m2 |
| Bezugsfrei ab | Sommer 2027 |
| Zimmer | 8 |
| Schlafzimmer | 7 |
| Badezimmer | 2 |
| Garage/Stellplatz | Garage |
| Anzahl Garage/Stellplatz | 2 |
Kosten
| Kaufpreis |
1.912.800 € |
|---|---|
| Provision | Nein |
Finanzierungsrechner:
Kaufpreis:
600.000 €
Eigenkapital:
600.000 €
Monatliche Rate
0 €
Effektiver Jahreszins
0 %
Sollzinsbindung
10 Jahre
Bausubstanz & Energieausweis
| Baujahr | 2027 |
|---|---|
| Objektzustand | Erstbezug |
| Qualität der Austattung | Luxus |
| Heizungsart | Zentralheizung |
| Wesentliche Energieträger | Fernwärme |
Beschreibung des Objekts
Ausstattung
Zum Ausstattungs- bzw. Leistungsumfang gehören unter anderem:
- Fußbodenheizung
- KfW55-Standard (GEG)
- Tageslichtbäder mit Dusche und Badewanne
- Gäste-WC
- Eichenparkett
- Hochwertige Wand- und Bodenfliesen
- Exklusive Sanitärobjekte
- Handtuchheizkörper in den Bädern
- Terrasse im EG
- Loggia im OG
- Großzügiger Privatgarten
- inklusive Außenanlagen (Zuwegung, Mülleinhausung, Gartenhütte)
- Bepflanzung (Erstanlage Rasenflächen, Hainbuchenhecke entlang der Grundstücksgrenzen)
- Doppelgarage für 2 PKW
Moderne Architektur, gebaut mit einem zeitlos modernen Baustoff: Ziegel. Das natürliche und bei weitem beliebteste Baumaterial ist seit Jahrhunderten bewährt und immer noch aktuell: Stabilität, Wärmedämmung, Wohnraumklima, Werterhalt.
Dabei werden die kompletten Wände und Decken in einem der modernsten Werke Europas für Systemelemente vorgefertigt. Computer-gesteuert und mit einer Maßhaltigkeit, die in klassischer Stein-auf-Stein-Bauweise nicht zu erzielen ist, entsteht so im Bayerischen Wald der Rohbau, der in Frankfurt von erfahrenen Teams zusammengefügt wird.
Der schlüsselfertige Ausbau geschieht nach Ihrer Auswahl aus hochwertigen Markenprodukten. Gerne überreichen wir Ihnen die ausführliche Baubeschreibung.
Lage
Riedberg, Frankfurts jüngster Stadtteil, Universitäts- und Wissenschaftsstandort, hat sich in den letzten Jahren zu einem der gefragtesten Wohnquartiere der Mainmetropole entwickelt. Dabei hat die Architektur der rund 1.000 fertiggestellten Wohneinheiten der LECHNER GROUP einen bedeutenden Beitrag zu dieser Entwicklung geleistet. Unter den vielen städtebaulich attraktiven Quartieren ist der »Westflügel« die Top-Lage am Riedberg.
Ihr Domizil entsteht in einem verkehrsberuhigten Bereich ohne Durchgangsverkehr am südlichen Rand des Riedbergs. Das umgrenzte Areal wird von Norden durch eine harmonisch geschwungene Ringstraße erschlossen. In alle anderen Himmelsrichtungen führen Fuß- und Radwege in und aus Ihrer Nachbarschaft. Es entsteht ein Ensemble architektonisch außergewöhnlicher Villen - maximale Wohnlichkeit und Exklusivität. Genießen Sie Ihr neues Zuhause!
Sonstige Angaben
Das Grundstück wird von der Frankfurter Stiftung Waisenhaus gegen einen monatlichen Erbpachtzins in Höhe von 641,12 € an Sie verpachtet. Sie sparen damit die hohen Finanzierungskosten des Grundstücksanteils. Der Erbbaurechtsvertrag hat eine Laufzeit bis zum 31.12.2113.
Kompetente Beratung auch am Wochenende - wir nehmen uns genügend Zeit, um alle Ihre Fragen rund um Ihren Immobilienwunsch zu beantworten. Rufen Sie uns unter 0160 - 987 33 633 an, damit wir einen Termin vereinbaren können.
Oder besuchen Sie uns in unserem Infocenter in der Altenhöferalle 141, geöffnet
Montag bis Freitag von 9.30 bis 17.30 Uhr sowie am
Wochenende von 14.00 bis 17.00 Uhr.
Bezugsfertig: 2027
Provision: KEINE PROVISION!
Der Energiebedarfsausweis wird derzeit erstellt und liegt deshalb noch nicht vor.
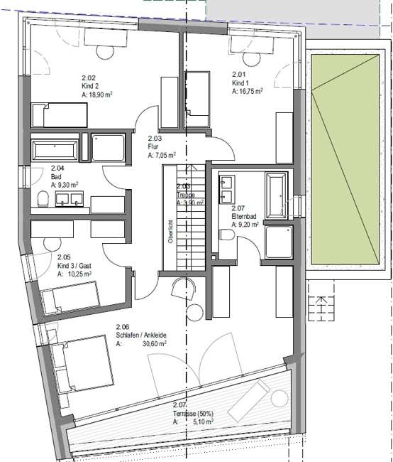
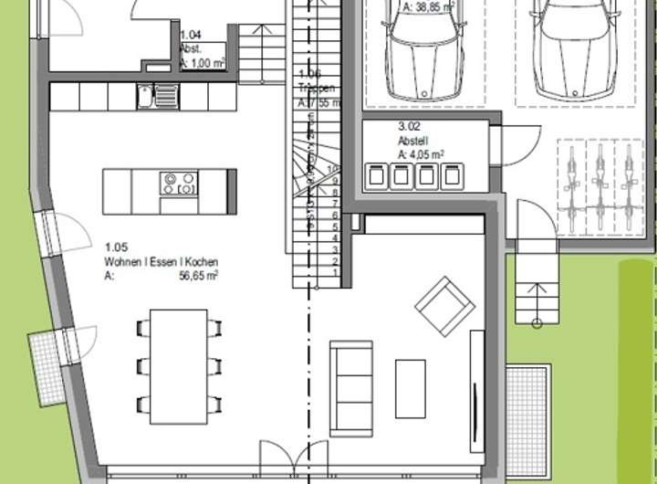
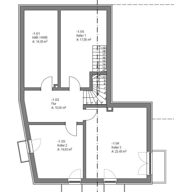
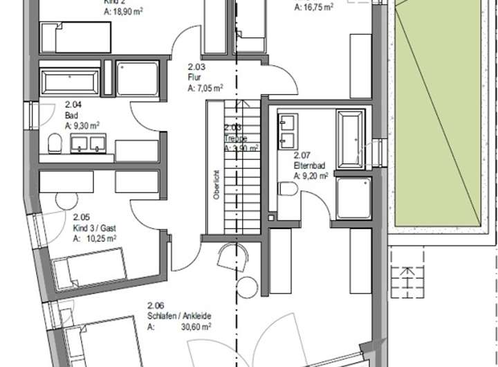
Grundriss
WestVillen View 35 - Grundriss
>
>
WestVillen View 35 - Grundriss
>
>
WestVillen View 35 - Grundriss
>
>
Adresse
Fritz-Wichert-Ring 5, 60438 Frankfurt am Main
Interessante Orte
Preis- und Lageinformationen
Preistrend für Bestandsimmobilien in Niederursel