Dieses charmante Einfamilienhaus aus dem Jahr 1996 befindet sich in einer besonders grünen Lage. Direkt am Wald und ideal für Naturliebhaber. Das Objekt wurde im ISORAS-Bausystem errichtet und überzeugt als energiebewusstes Energiesparhaus mit Be- und Entlüftungsanlage inklusive Wärmerückgewinnung. Hochwertige 4-fach isolierverglaste Fenster mit integrierten Jalousien unterstreichen den effizienten Charakter der Immobilie.
Auf rund 111 m² Wohnfläche verteilen sich fünf gut geschnittene Zimmer, die vielfältige Nutzungsmöglichkeiten bieten. Der Vollkeller mit zusätzlicher Sauna schafft wertvollen Raum für Wellness und Hobby. Eine große Terrasse lädt zum Entspannen im Grünen ein. Ein 9.000-Liter-Tank auf dem Grundstück sowie eine Filteranlage im Haus bereiten das Wasser auf und ermöglichen dessen Nutzung für Waschmaschine und Toiletten – ein deutlicher Vorteil bei den laufenden Betriebskosten.
Dieses Haus vereint ruhiges Wohnen im Grünen mit energieeffizienter Technik – ideal für alle, die Komfort und Nachhaltigkeit schätzen.
Einfamilienhaus in Waldrandlage
21029 Hamburg
Die vollständige Adresse der Immobilie erhalten Sie vom Anbieter.
Auf Karte anzeigen
Die vollständige Adresse der Immobilie erhalten Sie vom Anbieter.
Finanzierungszertifikat
In nur zwei Minuten zu Ihrem persönlichen Finanzierungszertifkat.
Infos
| Haustyp | Einfamilienhaus |
|---|---|
| Wohnfläche ca. | 111 m2 |
| Nutzfläche | 63 m2 |
| Grundstücksfläche | 568 m2 |
| Bezugsfrei ab | nach Vereinbarung |
| Zimmer | 5 |
| Schlafzimmer | 4 |
| Badezimmer | 2 |
Kosten
| Kaufpreis |
495.000 € |
|---|---|
| Provision |
3,57 % inkl. MwSt. |
Finanzierungsrechner:
Kaufpreis:
600.000 €
Eigenkapital:
600.000 €
Monatliche Rate
0 €
Effektiver Jahreszins
0 %
Sollzinsbindung
10 Jahre
Bausubstanz & Energieausweis
| Baujahr | 1996 |
|---|---|
| Objektzustand | Renovierungsbedürftig |
| Heizungsart | Elektro-Heizung |
| Wesentliche Energieträger | Strom |
| Energieausweis | liegt vor |
| Energieausweistyp | Verbrauchsausweis |
| Energieverbrauchskennwert | 104,7 kWh/(m²*a) |
| Energieeffizienzklasse | D |
104,7
kWh/(m²*a)
Energieeffizienzklasse D
- A+
- A
- B
- C
- D
- E
- F
- G
- H
- 0
- 25
- 50
- 75
- 100
- 125
- 150
- 175
- 200
- 225
- >250
Beschreibung des Objekts
Ausstattung
Die Ausstattung des Hauses bietet eine solide Basis für eine moderne Neugestaltung. Der aktuelle Zustand ist renovierungsbedürftig, ermöglicht jedoch kreativen Spielraum für individuelle Wohnkonzepte.
Im Erdgeschoss sind verschiedene Fliesen verlegt, die dem Haus einen funktionalen Charakter verleihen. Im Obergeschoss treffen praktische Fliesen auf einen ansprechenden Designbodenbelag, der bereits eine warme Wohnatmosphäre schafft. Das en suite-Bad im Erdgeschoss ist mit einer Badewanne ausgestattet und eignet sich ideal als persönlicher Rückzugsort. Im Dachgeschoss ergänzt ein weiteres Badezimmer mit Dusche das komfortable Raumangebot.
Die Beheizung und Warmwasserversorgung erfolgen über Strom.
Lassen Sie sich bei einer vor Ort-Besichtigung von dem Potential dieser Immobilie überzeugen.
Lage
Bergedorf vereint die Beschaulichkeit einer Kleinstadt mit den Vorzügen der Großstadt. Hier finden Sie eine "eigene Stadt in der Stadt". Ob im Bergedorfer Villengebiet mit herrschaftlichen Jugendstilvillen und hanseatischen Kaffeemühlen, im gewachsenen Einfamilienhausgebiet oder dem modernen Wohngebiet mit Reihenhäusern und schicken Eigentumswohnungen, Bergedorf bietet für jeden Geschmack etwas. Das Bergedorfer Schloss mit seinem Schlosspark, die attraktiven Fußgängerzonen und das neu gestaltete City Center Bergedorf bieten zahlreiche Einkaufsmöglichkeiten und einen Erholungswert. Mehrere Kindergärten und sämtliche Schulformen sind ansprechend für Familien. Das Freizeitangebot ist breit gefächert, ob aktiv im Sportverein, kulturell oder entspannend bei einem Spaziergang durch das Bergedorfer Gehölz, hier findet man eine große Palette an Möglichkeiten. Die Vier- und Marschlande an der Elbe oder der Sachsenwald laden zu Ausflügen in die Natur ein. Die Verkehrsanbindung ist sowohl mit dem PKW als auch den öffentlichen Verkehrsmitteln sehr gut, die Fahrzeit in die Hamburger Innenstadt beträgt jeweils nur etwa 20 Minuten. Dieses Einfamilienhaus befindet sich am Rande Bergedorfs in Richtung Börnsen.
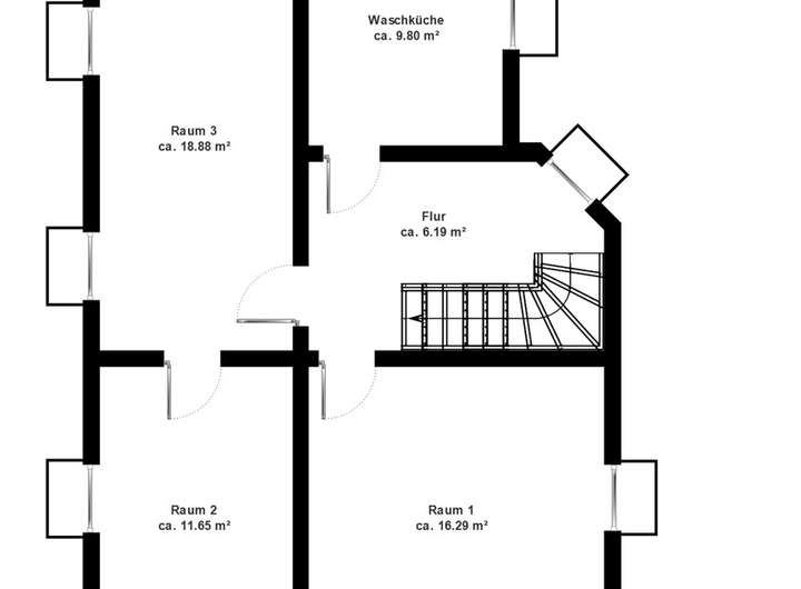
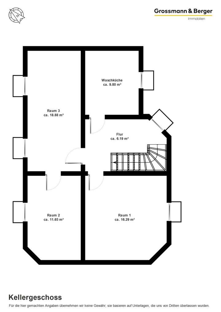
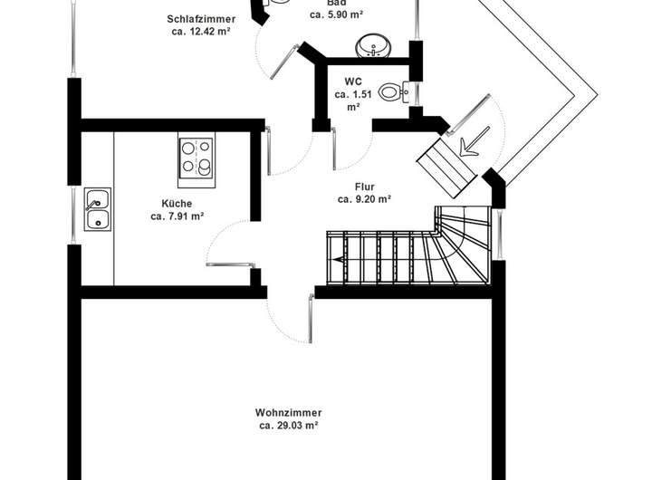
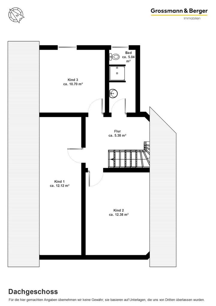
Grundriss
Erdgeschoss
>
>
Dachgeschoss
>
>
Kellergeschoss
>
>
Adresse
21029 Hamburg
Interessante Orte
Preis- und Lageinformationen
Preistrend für Bestandsimmobilien in Bergedorf