Potenziale erkennen – Chancen nutzen!
Diese besondere Liegenschaft vereint Wohnen, Arbeiten und Investieren an einem idealen Standort. Das Wohn- und Geschäftshaus setzt sich aus einem Haupthaus (Baujahr ca. 1979) und einem separaten Anbau (Baujahr ca. 1988) zusammen. Im Haupthaus befinden sich zwei großzügige Wohnungen im 1. Obergeschoss und im Dachgeschoss sowie zwei nebeneinanderliegende Gewerbeeinheiten im Erdgeschoss. Der Anbau beherbergt zusätzlich eine weitere Wohnung im Dachgeschoss und eine große Gewerbeeinheit im Erdgeschoss, die derzeit als charmante Kaffeerösterei genutzt wird und für ein lebendiges, einladendes Umfeld sorgt. Lediglich diese großzügige Gewerbeeinheit im Anbau ist aktuell vermietet – sämtliche weiteren Einheiten stehen leer und bieten damit erhebliches Entwicklungspotenzial.
Die Immobilie befindet sich auf einem gepflegten Grundstück mit zahlreichen PKW-Stellplätzen direkt vor dem Objekt, wodurch optimale Bedingungen für Bewohner, Kunden und Gewerbetreibende geschaffen werden. Eine Garage sowie ein Carport erweitern das Stellplatzangebot und unterstreichen die funktionale Ausrichtung der Liegenschaft. Das gesamte Gebäudeensemble wurde über die Jahre hinweg fortlaufend instand gehalten und überzeugt durch eine solide Bausubstanz sowie vielseitige Nutzungsmöglichkeiten – ideal für individuelle Konzepte, Umstrukturierungen oder Neuvermietungen.
Die Wohn- und Gewerbeflächen gliedern sich wie folgt:
Im Haupthaus stehen eine Wohnung im 1. Obergeschoss mit ca. 118,01 m² sowie eine Dachgeschosswohnung mit ca. 89,73 m² zur Verfügung. Die beiden Gewerbeeinheiten im Erdgeschoss bieten ca. 57,77 m² und ca. 55,90 m². Im Anbau umfasst die Dachgeschosswohnung ca. 100,77 m², während die vermietete Gewerbefläche im Erdgeschoss großzügige ca. 110,60 m² bietet. Durch die Kombination aus Wohnen und Gewerbe ergibt sich eine attraktive Struktur mit hervorragender Vermietbarkeit und starkem Zukunftspotenzial.
Ausstattung und Komfort zeigen sich in der funktionalen Aufteilung der Gebäude, den vorhandenen Außenstellplätzen sowie der Garage und dem Carport, die zusätzliche Nutzungsqualität schaffen. Die solide Bausubstanz bildet die Grundlage für eine langfristige Werthaltigkeit und ermöglicht individuelle Modernisierungs- und Ausbaukonzepte.
Die Lage überzeugt durch eine gute Anbindung an die örtliche Infrastruktur. Einkaufsmöglichkeiten, Gastronomie, Schulen, Freizeitangebote und öffentliche Verkehrsmittel befinden sich in kurzer Reichweite. Damit bietet die Umgebung eine ausgewogene Mischung aus Ruhe und praktischer Alltagstauglichkeit – ideal sowohl für Wohnmieter als auch für Gewerbetreibende.
Insgesamt bietet dieses Wohn- und Geschäftshaus ein überzeugendes Investitionspotenzial: Die leerstehenden Einheiten ermöglichen flexible Neuvermietungen oder eigene Nutzungskonzepte, während die bereits vermietete Gewerbeeinheit stabile Einnahmen garantiert. Die Kombination aus solider Bausubstanz, vielseitigen Flächen und attraktiver Lage macht dieses Objekt zu einer hervorragenden Option für Bestandshalter, Investoren und Projektentwickler.
Attraktives Wohn- und Geschäftshaus mit vielseitigem Nutzungspotenzial in Rödermark
63322 Rödermark
Die vollständige Adresse der Immobilie erhalten Sie vom Anbieter.
Auf Karte anzeigen
Die vollständige Adresse der Immobilie erhalten Sie vom Anbieter.
Finanzierungszertifikat
In nur zwei Minuten zu Ihrem persönlichen Finanzierungszertifkat.
Infos
| Haustyp | Mehrfamilienhaus |
|---|---|
| Etagenzahl | 3 |
| Wohnfläche ca. | 308 m2 |
| Grundstücksfläche | 802 m2 |
| Bezugsfrei ab | sofort |
| Zimmer | 9 |
| Schlafzimmer | 6 |
| Badezimmer | 3 |
| Garage/Stellplatz | Garage |
| Anzahl Garage/Stellplatz | 1 |
Kosten
| Kaufpreis |
799.900 € |
|---|---|
| Provision |
3,57 % inkl. MwSt. Käuferprovision beträgt 3,57 % (inkl. MwSt.) des beurkundeten Kaufpreises |
Finanzierungsrechner:
Kaufpreis:
600.000 €
Eigenkapital:
600.000 €
Monatliche Rate
0 €
Effektiver Jahreszins
0 %
Sollzinsbindung
10 Jahre
Bausubstanz & Energieausweis
| Baujahr | 1979 |
|---|---|
| Bauphase | Haus fertig gestellt |
| Objektzustand | Renovierungsbedürftig |
| Qualität der Austattung | Normal |
| Heizungsart | Zentralheizung |
| Wesentliche Energieträger | Gas |
| Energieausweis | liegt vor |
| Energieausweistyp | Bedarfsausweis |
| Energieverbrauchskennwert | 222,0 kWh/(m²*a) |
| Energieeffizienzklasse | G |
222,0
kWh/(m²*a)
Energieeffizienzklasse G
- A+
- A
- B
- C
- D
- E
- F
- G
- H
- 0
- 25
- 50
- 75
- 100
- 125
- 150
- 175
- 200
- 225
- >250
Beschreibung des Objekts
Ausstattung
- Wohnlage: Zentrum von Rödermark
- Gebäude: Wohn- und Geschäftshaus
- Nutzung: Renditeobjekt
- Renditepotential: hoch
- Grundstücksfläche gesamt: ca. 802,00 m²
- Wohnfläche: ca. 308,51 m²
- Gewerbefläche: ca. 224,27 m²
- Soll-Miete gesamt: ca. 75.720,00 EUR p.a. (Nettokaltmiete)
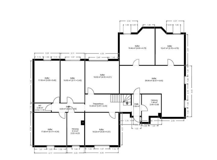
- Kellerfläche: großzügig
- Bodenbeläge: Fliesen, Laminat
- Wände: Tapete/Putz gestrichen
- Fenster: 2-fach verglast
- Rollläden: Ja, Kunststoff
- Heizung: Gas-Zentralheizungen
- Dach: Satteldach
- Garagen: 1
- Carport: 1
- Verkehrsanbindung: exzellent (sämtliche Autobahnen, Busse, Bahnen und der Frankfurter Flughafen sind in wenigen Minuten erreichbar)
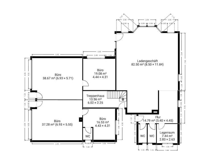
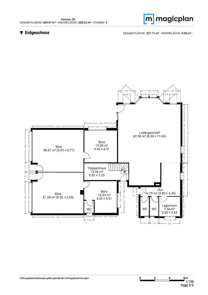
Die Einheiten im Haupthaus teilen sich wie folgt auf:
EG links: Ladengeschäft mit zwei Büroräumen, ca. 57,77 m² Gewerbefläche
EG rechts: Ladengeschäft mit zwei Büroräumen, WC, ca. 55,90 m² Gewerbefläche
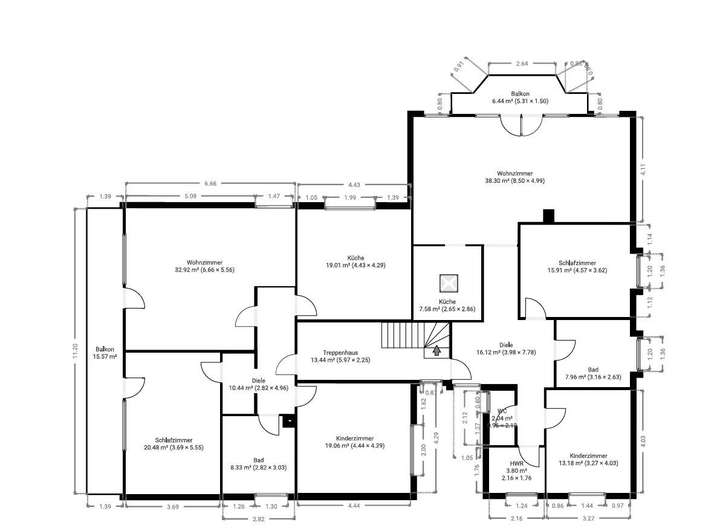
1. OG: 3-Zimmer-Wohnung mit Diele, Küche, Bad, Balkon, ca. 118,01 m² Wohnfläche
DG: 3-Zimmer-Wohnung mit Diele, Küche, Bad, Balkon, ca. 89,73 m² Wohnfläche
Die Einheiten im Anbau teilen sich wie folgt auf:
EG: Ladengeschäft, Lager und WCs, ca. 110,60 m² Gewerbefläche
1. OG/DG: 3-Zimmer-Wohnung mit Diele, Küche, Bad, WC, HWR, Balkon ca. 100,77 m² Wohnfläche
Lage
Die Immobilie befindet sich in einer sehr attraktiven Wohnlage in Rödermark, eingebettet in eine ruhige und grüne Umgebung mit direktem Anschluss an Erholungsflächen. Die Stadt profitiert von einem ausgewogenen Mix aus Natur und urbaner Infrastruktur: Sanfte Hügellandschaften sowie das Naturschutzgebiet der Erlenwiesen befinden sich in unmittelbarer Nähe und laden zu Spaziergängen, Radtouren oder anderen Freizeitaktivitäten ein.
Trotz dieser naturnahen Lage ist die Anbindung an das Verkehrsnetz hervorragend: Der öffentliche Nahverkehr ist gut ausgebaut, vor allem durch die S-Bahn-Verbindung der Linie S1, über die man schnell in das Rhein-Main-Metropolgebiet gelangt.
Zusätzlich sind Busverbindungen vorhanden, und über gut ausgebaute Straßen wie die B-Verbindungen oder die Autobahn sind Frankfurt, Offenbach, Darmstadt und weitere Regionen bequem erreichbar.
In der näheren Umgebung finden sich alle wichtigen Einrichtungen des täglichen Lebens: Schulen und Kindergärten sind leicht zu erreichen, ebenso wie verschiedene Einkaufsmöglichkeiten, Arztpraxen, Apotheken und Freizeitangebote.
Für sportlich Aktive gibt es in der Stadt ein vielfältiges Freizeitangebot – von Grünflächen über Sportvereine bis hin zu kulturellen Einrichtungen.
Das Stadtbild von Rödermark ist geprägt von einer hohen Lebensqualität: Die Stadtverwaltung legt großen Wert auf nachhaltige Stadtentwicklung, Natur- und Klimaschutz sowie eine familienfreundliche Infrastruktur.
So entsteht hier ein sehr ausgewogenes Wohnumfeld, ideal für Familien, Berufspendler und naturverbundene Menschen gleichermaßen.
Sonstige Angaben
GELDWÄSCHE: Als Immobilienmaklerunternehmen ist die Main Estate Immobilien GmbH nach § 2 Abs. 1 Nr. 14 und § 11 Abs. 1, 2 Geldwäschegesetz (GwG) dazu verpflichtet, bei der Begründung einer Geschäftsbeziehung bzw. sobald ein ernsthaftes Interesse an der Durchführung des Immobilienkaufvertrages besteht, die Identität des Vertragspartners festzustellen und zu überprüfen. Hierzu ist es erforderlich, dass wir, wenn Sie als natürliche Person handeln, nach § 11 Abs. 4 GwG die relevanten Daten Ihres Personalausweises festhalten - beispielsweise mittels einer Kopie. Bei einer juristischen Person benötigen wir eine Kopie des Handelsregisterauszugs, aus welchem der wirtschaftlich Berechtigte hervorgeht. Das Geldwäschegesetz sieht vor, dass der Makler die Kopien bzw. Unterlagen fünf Jahre aufbewahren muss. Als unser Vertragspartner haben Sie auch eine Mitwirkungspflicht nach § 11 Abs. 6 GwG.
HAFTUNG: Wir weisen darauf hin, dass die von uns weitergegebenen Objektinformationen, Unterlagen, Pläne etc. vom Verkäufer bzw. Vermieter stammen. Eine Haftung für die Richtigkeit oder Vollständigkeit der Angaben übernehmen wir daher nicht. Es obliegt daher unseren Kunden, die darin enthaltenen Objektinformationen und Angaben auf ihre Richtigkeit hin zu überprüfen. Alle Immobilienangebote sind freibleibend und vorbehaltlich Irrtümer, Zwischenverkauf- und Vermietung oder sonstiger Zwischenverwertung.
BILDER: Aus Gründen der Ästhetik wurden u.U. manche Bilder mit Hilfe von KI optimiert.
HINWEIS: Sollten mehrere Kaufzusagen zur angebotenen Immobilie / Grundstück vorliegen, hält sich der Eigentümer das Recht vor, von einem Verkaufsangebot auf ein Bieterverfahren zu wechseln.
EIGENTÜMERSERVICE: Planen Sie den Verkauf oder die Vermietung Ihrer Immobilie, so ist es für Sie wichtig, deren Marktwert zu kennen. Lassen Sie kostenfrei und unverbindlich den aktuellen Wert Ihrer Immobilie professionell durch uns einschätzen. Unser professionelles Netzwerk ermöglicht es uns, Verkäufer bzw. Vermieter und Interessenten bestmöglich zusammenzuführen.
Weitere Dokumente
Grundriss EGGrundriss 1. OG
Grundriss DG
Grundriss UG
Grundriss
Grundriss EG
>
>
Grundriss 1. OG
>
>
Grundriss DG
>
>
Grundriss UG
>
>
Adresse
63322 Rödermark
Interessante Orte
Preis- und Lageinformationen
Preistrend für Bestandsimmobilien in Rödermark