Gestalten Sie ihr neues Zuhause! Dieses gepflegte Einfamilienhaus ist ideal für alle, die eigene Vorstellungen umsetzen möchten!
- Grundstücksfläche 1094 m²
- Gesamtwohnfläche ca. 130 m²
- Nutzfläche ca. 37 m²
- unterkellert
- Massive Bauweise
- Walmdach
- Wärmeverbundsystem an den Außenwänden
- Gasbrennwertgerät (Baujahr 2007) mit Warmwasserspeicher
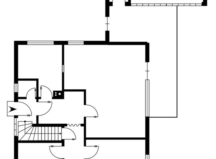
- Erdgeschoss - ca. 82 m²
- 3 gut geschnittene Zimmer
- Küche
- Badezimmer
- sep. Gäste-WC
- Windfang/Flur
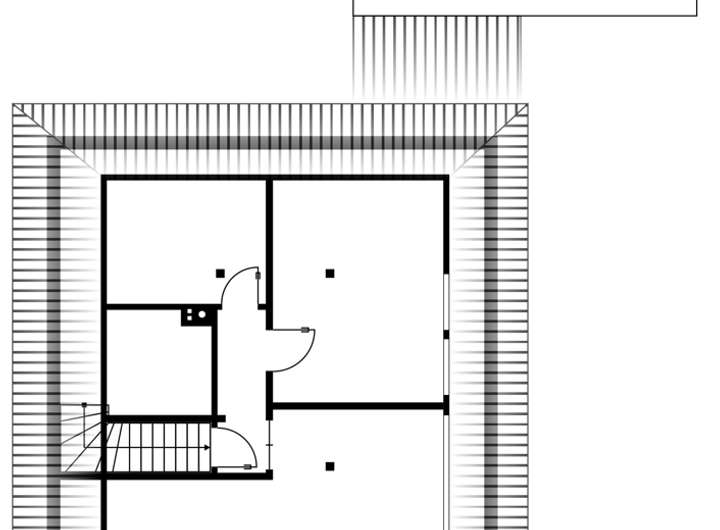
- Dachgeschoss - ca. 42 m²
- 3 helle Zimmer
- Badezimmer
- Flur
- Kellergeschoss - ca. 37 m²
- Abstellräume
- Heizungsraum
Dieses Haus vereint ein großzügiges Platzangebot, einen soliden Bauzustand und ein weitläufiges Grundstück zu einer seltenen Gelegenheit! Denn es ist ideal für Familien oder Paare, die ihr persönliches Traumhaus gestalten wollen. Mit etwas Renovierungsaufwand entsteht hier ein modernes Zuhause!
Provisionsfrei! Charmantes Einfamilienhaus mit viel Potenzial für persönliche Gestaltung!
28816 Stuhr
Die vollständige Adresse der Immobilie erhalten Sie vom Anbieter.
Auf Karte anzeigen
Die vollständige Adresse der Immobilie erhalten Sie vom Anbieter.
Finanzierungszertifikat
In nur zwei Minuten zu Ihrem persönlichen Finanzierungszertifkat.
Infos
| Haustyp | Einfamilienhaus |
|---|---|
| Etagenzahl | 2 |
| Wohnfläche ca. | 130 m2 |
| Nutzfläche | 37 m2 |
| Grundstücksfläche | 1.049 m2 |
| Zimmer | 6 |
| Badezimmer | 2 |
Kosten
| Kaufpreis |
370.000 € |
|---|---|
| Provision | Nein |
Finanzierungsrechner:
Kaufpreis:
600.000 €
Eigenkapital:
600.000 €
Monatliche Rate
0 €
Effektiver Jahreszins
0 %
Sollzinsbindung
10 Jahre
Bausubstanz & Energieausweis
| Baujahr | 1970 |
|---|---|
| Objektzustand | Renovierungsbedürftig |
| Heizungsart | Gas-Heizung |
| Wesentliche Energieträger | Erdgas leicht |
| Energieausweis | liegt vor |
| Energieausweistyp | Bedarfsausweis |
| Energieverbrauchskennwert | 161,5 kWh/(m²*a) |
Beschreibung des Objekts
Lage
Die Immobilie befindet sich im Ortsteil Stuhr-Heiligenrode, in einer ruhigen und familienfreundlichen Wohnlage. Einkaufsmöglichkeiten, Schulen, Ärzte und öffentliche Einrichtungen sind schnell erreichbar.
Die Verkehrsanbindung ist hervorragend und bietet eine perfekte Anbindung auch für Berufspendler. Über die nahegelegene A1, die B6/B51 erreicht man Bremen, Delmenhorst, Oldenburg und die umliegenden Ortschaften schnell und bequem. Busverbindungen sorgen zusätzlich für eine gute Anbindung an den öffentlichen Nahverkehr. Der Flughafen Bremen sowie der Bremer Hauptbahnhof liegen ebenfalls in komfortabler Entfernung.
Naherholungsgebiete, Grünflächen und Spazierwege liegen in direkter Umgebung und sorgen für eine hohe Lebensqualität.
Sonstige Angaben
Übernahmetermin: nach Absprache
Ihr zuständiger Ansprechpartner ist Herr Claas Gerdes:
Tel.: 04271 - 9275174
Bitte geben Sie bei Kontaktaufnahme per E-Mail gern Ihre Rufnummer an, damit wir uns zeitnah zurückmelden können. Halten Sie bei telefonischer Anfrage gerne die Anbieterobjektnummer bereit, so können wir Sie schnell und gezielt mit allen weiterführenden Informationen versorgen.
HINWEIS :
Leider wird unsere Branche vermehrt von Spam-Attacken heimgesucht. Wir bitten Sie deshalb, uns Ihre kompletten Kontaktdaten (Name, Adresse, Email-Adresse und Telefonnummer) anzugeben. Nur dann können wir auf Ihre Email-Anfrage reagieren und sie bearbeiten.
Alle Angaben in diesem Exposé wurden sorgfältig und so vollständig wie möglich gemacht. Trotzdem können Fehler nicht ausgeschlossen werden.
Die Angaben in diesem Exposé sind ohne jede Gewähr. Nur die im Kaufvertrag / Mietvertrag geschlossenen Vereinbarungen gelten. Veröffentlichte Grundrissgrafiken und eventuell darin enthaltenen Maßangaben sowie Einrichtungen sind nicht maßstabsgetreu. Hierfür wird jegliche Haftung ausgeschlossen.
Adresse
28816 Stuhr
Interessante Orte
Preis- und Lageinformationen
Preistrend für Bestandsimmobilien in Stuhr