** Der Energieausweis ist beantragt **
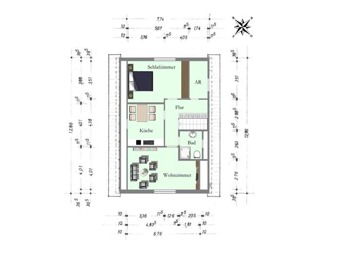
Diese vielseitig nutzbare Immobilie bietet großes Potenzial und befindet sich in ruhiger Wohnlage in Edewecht-Osterscheps. Es eignet sich sowohl als Einfamilienhaus als auch als Zweifamilienhaus. Darüber hinaus besteht die Möglichkeit, eine Teilfläche im rückwärtigen Bereich abzutrennen – beispielsweise zur Eigennutzung oder zur Veräußerung. Im Innenbereich verfügt das Wohnhaus über ein großzügiges Wohn- und Esszimmer mit Zugang zum Wintergarten, der ebenfalls einen direkten Zugang zum rückwärtigen Gartenbereich gewährleistet. Des Weiteren befinden sich im Erdgeschoss die Küche, drei Schlafzimmer, ein neuwertiges Badezimmer, Diele und Windfang mit abgetrenntem Aufgang ins Obergeschoss sowie Heizungsraum, Waschküche und separates WC. Das Obergeschoss wurde von den jetzigen Eigentümern bislang als Kapitalanlage genutzt, bleibt aber bezüglich des Verkaufs vorerst unvermietet. Es bietet Ihnen ein Wohnzimmer, Küche, Schlafzimmer, Abstellraum, Badezimmer und einen Flurbereich mit Zugang zum Dachboden, der Ihnen weitere Abstellmöglichkeiten bietet. Vom Wohnhaus aus erreichen Sie intern die Garage mit Werkstatt. Im Außenbereich befinden sich zusätzlich ein Carport sowie eine Gartenhütte. Der großzügige Gartenbereich erstreckt sich über eine liebevoll angelegte Fläche im vorderen Bereich des Grundstückes sowie eine weitere Fläche im rückwärtigen Bereich.
Ein-/Zweifamilienhaus mit großzü. Garten, Garage sowie abtrennbarem Bauplatz in Edewecht-Osterscheps
26188 Edewecht
Die vollständige Adresse der Immobilie erhalten Sie vom Anbieter.
Auf Karte anzeigen
Die vollständige Adresse der Immobilie erhalten Sie vom Anbieter.
Finanzierungszertifikat
In nur zwei Minuten zu Ihrem persönlichen Finanzierungszertifkat.
Infos
| Haustyp | Einfamilienhaus |
|---|---|
| Wohnfläche ca. | 208 m2 |
| Nutzfläche | 27 m2 |
| Grundstücksfläche | 1.608 m2 |
| Bezugsfrei ab | nach Absprache |
| Zimmer | 7 |
| Schlafzimmer | 4 |
| Badezimmer | 2 |
Kosten
| Kaufpreis |
349.000 € |
|---|---|
| Provision |
3,57 % des Kaufpreises inkl. 19,00 % MwSt. |
Finanzierungsrechner:
Kaufpreis:
600.000 €
Eigenkapital:
600.000 €
Monatliche Rate
0 €
Effektiver Jahreszins
0 %
Sollzinsbindung
10 Jahre
Bausubstanz & Energieausweis
| Baujahr | 1977 |
|---|---|
| Objektzustand | Gepflegt |
| Heizungsart | Zentralheizung |
| Wesentliche Energieträger | Gas |
| Energieausweis | liegt vor |
| Energieausweistyp | Verbrauchsausweis |
| Energieverbrauchskennwert | 180,5 kWh/(m²*a) |
| Energieeffizienzklasse | F |
180,5
kWh/(m²*a)
Energieeffizienzklasse F
- A+
- A
- B
- C
- D
- E
- F
- G
- H
- 0
- 25
- 50
- 75
- 100
- 125
- 150
- 175
- 200
- 225
- >250
Beschreibung des Objekts
Ausstattung
Für weitere Details fordern Sie gerne unser ausführliches Exposé an.
Lage
Versorgungseinrichtungen des täglichen Bedarfs sind in ca. 5 PKW-Minuten erreichbar.
Adresse
26188 Edewecht
Interessante Orte
Preis- und Lageinformationen
Preistrend für Bestandsimmobilien in Edewecht