Diese außergewöhnliche Architektenvilla verkörpert Wohnkultur auf höchstem Niveau – ein Haus, das architektonische Präzision, erstklassige Materialien und eine bis ins Detail durchdachte Planung zu einem harmonischen Gesamtwerk verbindet. Auf einem sonnigen Süd-West-Grundstück in einer der begehrtesten Adressen Blankeneses errichtet, präsentiert sich dieses Anwesen als seltene Gelegenheit für Liebhaber kompromissloser Bauqualität. Der massive Baukörper aus edlem Wittmunder Klinker, ergänzt durch stilvolle Holz-Sprossenfenster und ein anthrazitfarbenes Zinkdach, verleiht dem Gebäude seine zeitlose Eleganz und eine beeindruckende Wertbeständigkeit. Bereits beim Betreten offenbart sich der außergewöhnliche Anspruch: Das großzügige, lichtdurchflutete Treppenhaus fungiert als architektonisches Herzstück und verbindet die vier Ebenen Ihres neuen Zuhauses auf elegante Weise. Hochwertige Bodenbeläge, prägnante Raumhöhen, moderne Lofttüren und eine geschwungene, handwerklich perfekt gearbeitete Treppe setzen exklusive Akzente, die man sieht – und spürt. Der über 80 m² große Wohn- und Essbereich mit angrenzender Küche bildet das kommunikative Zentrum des Hauses. Ein eleganter Kamin, raumhohe Fensterfronten und der direkte Zugang zur weitläufigen Terrasse unterstreichen das Zusammenspiel von Innen- und Außenraum. Der Garten ist hochwertig angelegt und schafft einen privaten Rückzugsort, der zu jeder Jahreszeit besondere Momente verspricht. Die klare Raumstruktur überzeugt mit exzellenter Alltagstauglichkeit: Vier gleichwertige Kinderzimmer mit eigenem, großzügigen Bad bieten ideale Voraussetzungen für Familien. Eine separate Einliegerwohnung eröffnet zusätzliche Flexibilität – perfekt als Gästebereich, als Homeoffice oder für ein Au-pair. Das Dachgeschoss gehört ganz den Eltern: Über 60 m² privater Wohnkomfort mit Schlafbereich, Ankleide, luxuriösem Bad und einer beeindruckenden Dachterrasse in perfekter Sonnenausrichtung schaffen einen Rückzugsort, der seinesgleichen sucht. Technisch erfüllt die Villa höchste Standards: Moderne Gasheizung mit Wärmepumpe, Lüftungsanlage mit Wärmerückgewinnung, Fußbodenheizung, intelligente Verschattungssysteme, Rollläden, SmartHome, Alarmanlage mit Videoüberwachung sowie unsichtbar integrierte Lautsprecher stehen für zukunftsorientierte Wohnqualität. Eine Klimaanlage im Elternbereich sowie eine Garage mit direktem Zugang runden das außergewöhnliche Komfortniveau ab. Unser Fazit: Diese Villa ist mehr als ein Zuhause – sie ist ein Statement.
Architektonisches Meisterstück: Designer-Neubauvilla im Herzen von Blankenese
22587 Hamburg
Die vollständige Adresse der Immobilie erhalten Sie vom Anbieter.
Auf Karte anzeigen
Die vollständige Adresse der Immobilie erhalten Sie vom Anbieter.
Finanzierungszertifikat
In nur zwei Minuten zu Ihrem persönlichen Finanzierungszertifkat.
Infos
| Haustyp | Einfamilienhaus |
|---|---|
| Wohnfläche ca. | 345 m2 |
| Nutzfläche | 61 m2 |
| Grundstücksfläche | 600 m2 |
| Bezugsfrei ab | 31.12.2025 |
| Zimmer | 9 |
| Schlafzimmer | 6 |
| Badezimmer | 3 |
| Anzahl Garage/Stellplatz | 4 |
Kosten
| Kaufpreis |
4.290.000 € |
|---|---|
| Provision |
3.57 % inkl. gesetzl. MwSt. |
Finanzierungsrechner:
Kaufpreis:
600.000 €
Eigenkapital:
600.000 €
Monatliche Rate
0 €
Effektiver Jahreszins
0 %
Sollzinsbindung
10 Jahre
Bausubstanz & Energieausweis
| Baujahr | 2022 |
|---|---|
| Objektzustand | Neuwertig |
| Heizungsart | Wärmepumpe |
| Wesentliche Energieträger | Gas |
| Energieausweis | liegt vor |
| Energieausweistyp | Bedarfsausweis |
| Energieeffizienzklasse | A |
Energieeffizienzklasse A
- A+
- A
- B
- C
- D
- E
- F
- G
- H
- 0
- 25
- 50
- 75
- 100
- 125
- 150
- 175
- 200
- 225
- >250
Beschreibung des Objekts
Ausstattung
Abstellkammer
Arbeitszimmer
Einbauküche
Blick ins Grüne
Fußbodenheizung
Vollunterkellert
Kamin
Lage
Diese traumhafte Villa liegt in einer der gefragtesten Straßen Blankeneses, einem Stadtteil, der zu den beliebtesten Wohnlagen Hamburgs zählt. Eingebettet in eine ruhige, grüne Umgebung wird das Bild der Nachbarschaft von gepflegten Einfamilien- und Doppelhäusern, klassischen Villen und einem beeindruckenden alten Baumbestand geprägt. Hier verbindet sich eine hohe Wohnqualität mit dem besonderen Charme einer traditionsreichen Elbvorortlage. Blankenese und der Bahnhof sind bequem fußläufig zu erreichen und somit neben der hervorragenden Anbindung an den Ortskern auch sehr gut an die Hamburger Innenstadt angebunden. Ebenso befindet sich der beliebte Blankeneser Marktplatz nur wenige Schritte entfernt. Hier finden sich sämtliche Geschäfte für den täglichen Bedarf, charmante Boutiquen, gemütliche Cafés, Arztpraxen und eine Auswahl an Restaurants, die den Stadtteil mit Leben erfüllen. Blankenese besticht durch seine unmittelbare Nähe zur Elbe. Das weltbekannte Treppenviertel mit seinen verwinkelten Gassen und den typischen weißen Kapitänshäusern verleiht dem Ort eine maritime, fast mediterrane Atmosphäre. Spaziergänge entlang der Elbe oder ein Ausflug zu den schönen, feinsandigen Stränden bieten höchste Lebensqualität und machen das Wohnen hier zu einem Privileg. Für Familien bietet Blankenese eine hervorragende Infrastruktur: Zahlreiche Kindergärten sowie alle Schulzweige sind schnell erreichbar. Besonders hervorzuheben sind die Gorch-Fock-Schule sowie die Gymnasien in Blankenese und Willhöden. Damit erfüllt der Stadtteil alle Ansprüche an kurze Wege sowie eine erstklassige Bildung. Auch das Freizeitangebot ist außergewöhnlich vielseitig: Sportbegeisterte kommen im Golf-Club Falkenstein, beim Blankeneser Segel-Club oder dem traditionsreichen MTV Blankenese auf ihre Kosten. Der nahegelegene Hirschpark mit seinem alten Baumbestand sowie die Elbwiesen laden zu Spaziergängen, Joggingrunden und Fahrradtouren ein. Für Reiter und Naturliebhaber bietet der Forst Klövensteen ein ausgedehntes Wegenetz. Trotz der ruhigen Lage ist die Anbindung an die Hamburger Innenstadt hervorragend. Mit der S-Bahnlinie S1 erreichen Sie den Jungfernstieg oder den Hamburger Flughafen in etwa 30 Minuten. Mit dem Auto gelangen Sie ebenso schnell in die City. Blankenese vereint das Beste aus zwei Welten: die Ruhe und Exklusivität einer gehobenen Wohnlage mit der Lebendigkeit und Nähe zur Metropole Hamburg. Wer hier wohnt, entscheidet sich für eine einzigartige Lebensqualität, geprägt von hanseatischer Tradition, maritimem Flair und höchster Wohnkultur.
Sonstige Angaben
Der Makler-Vertrag mit uns kommt durch die Bestätigung der Inanspruchnahme unserer Maklertätigkeit in Textform zustande, wie z.B. insbesondere die Unterschrift des Suchkundenvertrages und/oder des Objekt-Exposés. Die Höhe der Courtage richtet sich nach den seit dem 23.12.2020 in Kraft getretenen gesetzlichen Regelungen zur Teilung der Maklercourtage. Hiernach wird die Courtage regelmäßig für beide Parteien (Eigentümer und Käufer) in Höhe von 3 % zuzüglich Umsatzsteuer in jeweils geltender Höhe, derzeit also insgesamt 7,14 % des Kaufpreises einschließlich ges. Umsatzsteuer bei notariellem Vertragsabschluss verdient und fällig. Die Höhe der Bruttocourtage unterliegt einer Anpassung bei Steuersatzänderung. Grunderwerbsteuer, Notar- und Gerichtskosten trägt der Käufer. Alle Angaben sind ohne Gewähr und basieren ausschließlich auf Informationen, die uns von unserem Auftraggeber übermittelt wurden. Wir übernehmen keine Gewähr für die Vollständigkeit, Richtigkeit und Aktualität dieser Angaben. Zwischenverkauf bleibt vorbehalten. Sollte das von uns nachgewiesene Objekt bereits bekannt sein, teilen Sie uns dieses bitte unverzüglich mit. Die Weitergabe dieses Exposees an Dritte ohne unsere Zustimmung löst gegebenenfalls Courtage- bzw. Schadensersatzansprüche aus. Im Übrigen gelten die Allgemeinen Geschäftsbedingungen für die Rechtsbeziehung zwischen Ihnen und der Engel & Völkers Immobilien Deutschland GmbH (Lizenznehmer der Engel & Völkers Residential GmbH).
Grundriss
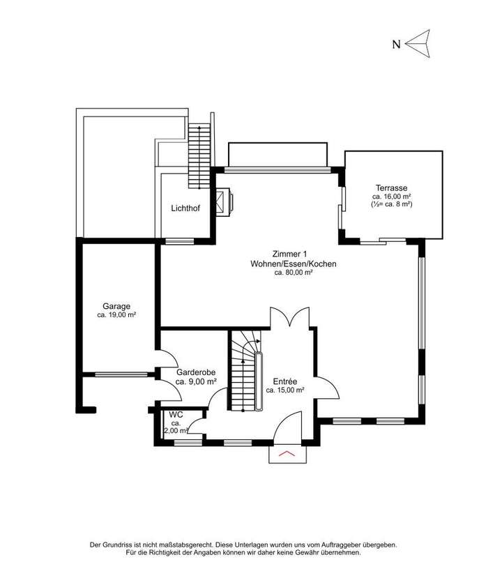
Grundriss Erdgeschoss
>
>
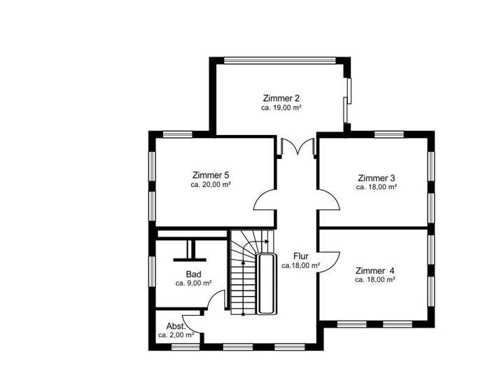
Grundriss Obergeschoss
>
>
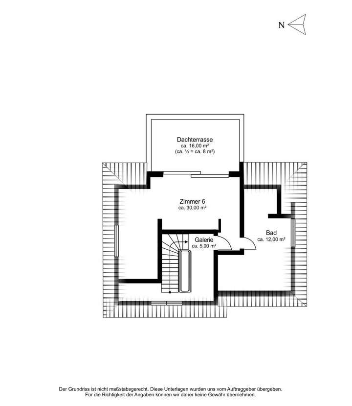
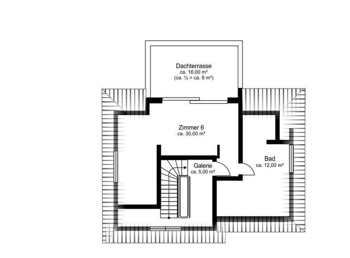
Grundriss Dachgeschoss
>
>
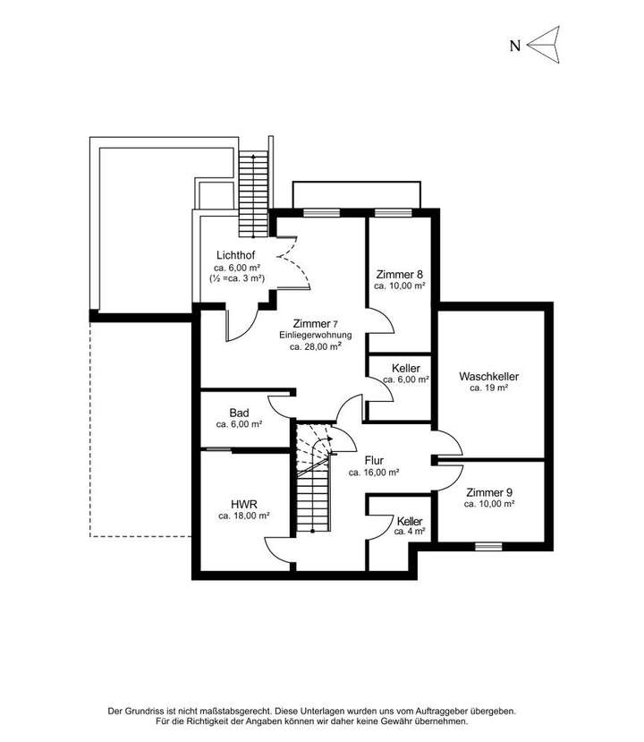
Grundriss Kellergeschoss
>
>
Adresse
22587 Hamburg
Interessante Orte
Preis- und Lageinformationen
Preistrend für Bestandsimmobilien in Blankenese