Zuhause ankommen: Luce ist mehr als ein Familienhaus - denn hier trifft repräsentative Eleganz auf lichtdurchflutete Räume. Über den angrenzenden Carport gelangen Sie in Ihr über 190 Quadratmeter großes Traumhaus. Ihre Einkäufe können Sie direkt in den angrenzenden Hauswirtschaftsraum oder in der Speisekammer, die direkt an die Küche angrenzt, abstellen.
Highlight im Erdgeschoss ist der fast 47 Quadratmeter große, offene Wohn- und Essbereich. Dieser wird durch den über beide Etagen ragenden Wintergarten lichtdurchflutet - und das zu jeder Jahreszeit. Das Erdgeschoss wird komplettiert durch ein Home-Office, das entspanntes Arbeiten von Zuhause möglich macht, und ein Gäste-WC mit Dusche.
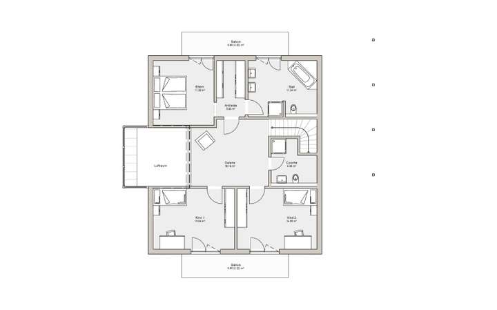
Selbst vom Dachgeschoss aus können Sie über die Galerie durch den Wintergarten in den heimischen Garten blicken. Die beiden Kinderzimmer mit jeweils 17 Quadratmetern verfügen über ein eigenes Badezimmer mit Dusche. Das Eltern-Schlafzimmer ist mit einer Ankleide und einem Wellness-Badezimmer mit Badewanne und Dusche ausgestattet. Alle Schlafzimmer verfügen über einen direkten Zugang auf einen der beiden Balkone. Luce: Symbiose von Licht und Freiraum!
Dieses Haus wird nach Ihren individuellen Wünschen geplant und ausgestattet!
Symbiose von Licht und Freiraum!
38557 Osloß
Die vollständige Adresse der Immobilie erhalten Sie vom Anbieter.
Auf Karte anzeigen
Die vollständige Adresse der Immobilie erhalten Sie vom Anbieter.
Finanzierungszertifikat
In nur zwei Minuten zu Ihrem persönlichen Finanzierungszertifkat.
Infos
| Haustyp | Einfamilienhaus |
|---|---|
| Wohnfläche ca. | 192 m2 |
| Grundstücksfläche | 859 m2 |
| Zimmer | 5 |
| Schlafzimmer | 4 |
| Badezimmer | 1 |
| Anzahl Garage/Stellplatz | 2 |
Kosten
| Kaufpreis |
863.500 € |
|---|---|
| Provision | Nein |
Finanzierungsrechner:
Kaufpreis:
600.000 €
Eigenkapital:
600.000 €
Monatliche Rate
0 €
Effektiver Jahreszins
0 %
Sollzinsbindung
10 Jahre
Bausubstanz & Energieausweis
| Baujahr | 2026 |
|---|---|
| Bauphase | Haus in Planung (projektiert) |
| Objektzustand | Erstbezug |
| Qualität der Austattung | Gehoben |
| Heizungsart | Wärmepumpe |
| Wesentliche Energieträger | Strom |
| Energieausweis | liegt vor |
| Energieausweistyp | Bedarfsausweis |
| Energieverbrauchskennwert | 18,4 kWh/(m²*a) |
| Energieeffizienzklasse | A+ |
18,4
kWh/(m²*a)
Energieeffizienzklasse A+
- A+
- A
- B
- C
- D
- E
- F
- G
- H
- 0
- 25
- 50
- 75
- 100
- 125
- 150
- 175
- 200
- 225
- >250
Beschreibung des Objekts
Ausstattung
5 Zimmer, offene Küche, Diele, 2 x Dusche, Galerie, Bad, Ankleide, Hauswirtschaftsraum, SPK, 2 Balkone, Carport
Das gezeigte Traumhaus im Überblick:
+ Schlüsselfertiges Massivhaus im Sinne der Ausstattungsbeschreibung "Edition 25"
+ Zukunftsorientierte Energieausstattung in Form einer Luft-Wasser-Wärmepumpe und Fußbodenheizung sowie einer kontrollierten Wohnraumlüftung mit Wärmerückgewinnung
+ Inklusive Bodenplatte
Beste Markenausstattung in jedem Kern-Haus:
+ Zimmermannsmäßiger Dachstuhl aus Konstruktionsvollholz
+ Dacheindeckung mit Betondachsteinen von Braas
+ Hochwertiger Kunstharz-Außenputz für eine langlebige Fassade
+ Vollständige Badausstattung von Villeroy & Boch mit Badewanne und flacher Duschwanne sowie einer Echtglasduschkabine
+ Fliesen von Villeroy & Boch in Bad und WC
+ Haustür mit 5-fach-Sicherheitsverriegelung
+ Erstklassige Innentüren der Marke Herholz
+ Fenster mit 3-Scheiben-Wärmeschutzverglasung und Rollläden
+ Stahl-Holz-Treppe mit individueller Farbgestaltungsmöglichkeit
+ Vollständige und überdurchschnittliche Elektroausstattung inklusive Klingelanlage und Netzwerkdosen
+ Rauchmelder für Ihre Sicherheit
+ Alle Leistungen aus einer Hand
+ Alle Planungs- und Architektenleistungen
+ Einsatz regionaler Handwerksbetriebe
+ Baubegleitende 5-Phasen-TÜV-Prüfung und Blower-Door-Test
+ Individuelle Anpassung auf Ihre Bedürfnisse
+ Auf Wunsch mit Keller erhältlich
+ Auf Wunsch mit weiteren Energietechniken erhältlich
Lage
In Osloß entsteht derzeit ein neues Baugebiet mit viel Naherholungsmöglichkeiten in der Umgebug. Bauen Sie hier gemeinsam mit Kern-Haus Ihren modenen und energieeffizienten Traum vom Eigenheim!
Das Baugebiet befindet sich in der Gemeinde Osloß, ca. 12 km von Wolfsburgs Innenstadt entfernt und 12 km von Gifhorn entfernt. Sie leben idyllisch und trotzdem sind Sie nah am Stadtgeschehen. Zum VW- Werk sind es gerade einmal 10 km!!!
Einkaufsmöglichkeiten sind im Nachbarort Weyhausen ca. 2 km entfernt vorhanden. Ein Bäcker, Allgemeinarzt, Kindergarten, Grundschule, Sportverein und Restaurant sind im Ort.
Sonstige Angaben
Kern-Haus baut individuelle und massive Architektenhäuser zu einem attraktiven Preis-Leistungs-Verhältnis – und das bereits mit einer Erfahrung seit 1980. Bei Kern-Haus erhalten Sie unter anderem 10 Jahre Gewährleistung auf die wesentlichen Bauleistungen, bis zu 24 Monate Preissicherheit sowie eine dokumentierte 5-Phasen-TÜV-Prüfung während der Bauphase. Jedes Kern-Haus als Effizienzhaus 40 ist bereits QNG-zertifiziert durch die Deutsche Gesellschaft für nachhaltiges Bauen (DGNB).
40 Jahre Expertise für das massive, energieeffiziente Bauen: Kern-Haus realisiert Massivhäuser in Ziegel, Bims, Porenbeton oder Stahlbeton (DuoTherm).
Kern-Haus setzt auf eine hohe Bauqualität der Handwerker und auf eine große Auswahl starker Marken. So verwendet Kern-Haus beim Bau Ihres Hauses nur hochwertige Markenprodukte renommierter Hersteller – wie etwa Produkte von Villeroy & Boch.
Preise und Auszeichnungen von Kern-Haus:
- German Brand Award in den Jahren 2018 und 2021
- Hausbau Design Award: Sieger in den Jahren 2017, 2018, 2019, 2020, 2021, 2022 und 2023
- Deutscher Traumhauspreis: Sieger in den Jahren 2014, 2015, 2016 und 2018 und Silber 2017, 2020 und 2021
- Mittelstandspreis "Top 100" in den Jahren 2014, 2016, 2018, 2020 und 2022
- German Design Award im Jahr 2018
Weitere Informationen
Der gezeigte Preis versteht sich inklusive Grundstück und exklusive der Baunebenkosten.
Grundriss
Grundriss Erdgeschoss
>
>
Grundriss Dachgeschoss
>
>
Adresse
38557 Osloß
Interessante Orte
Preis- und Lageinformationen
Preistrend für Bestandsimmobilien in Osloß