Der freistehende Bungalow wurde ca. 1970 in Fertigbauweise mit massiver Klinkerfassade errichtet und bietet ca. 100 m² Wohnfläche auf einer Ebene. Das Haus ist vollunterkellert und verfügt über eine Garage im Kellergeschoss mit direktem Zugang ins Haus.
1983 wurde der Wohnbereich um einen beheizbaren Wintergarten mit Südausrichtung erweitert, der direkt vom Wohnzimmer aus zugänglich ist. Das ca. 898 m² große Eigentumsgrundstück bietet viel Platz für Garten, Spiel- und Freizeitflächen.
Das ab sofort verfügbare Objekt befindet sich in einem modernisierungsbedürftigen Zustand und eignet sich ideal für Käufer, die ihr neues Zuhause individuell gestalten möchten. Besonders geeignet ist es für Familien oder Paare, die ebenerdiges Wohnen schätzen – eine sehr gute Basis für eine umfassende Modernisierung.
Aufteilung:
Erdgeschoss (EG):
Eingangsbereich / Flur
Gäste-WC
Küche mit kurzer Wegeführung zum Essbereich und Zugang zum Keller
Wohn- und Esszimmer mit Zugang zum beheizbaren Wintergarten (Südausrichtung, mit Überdachung/Jalousie)
2 Kinderzimmer
1 Elternschlafzimmer
Kleine Abstellkammer
Tageslichtbad mit Fenster und Badewanne
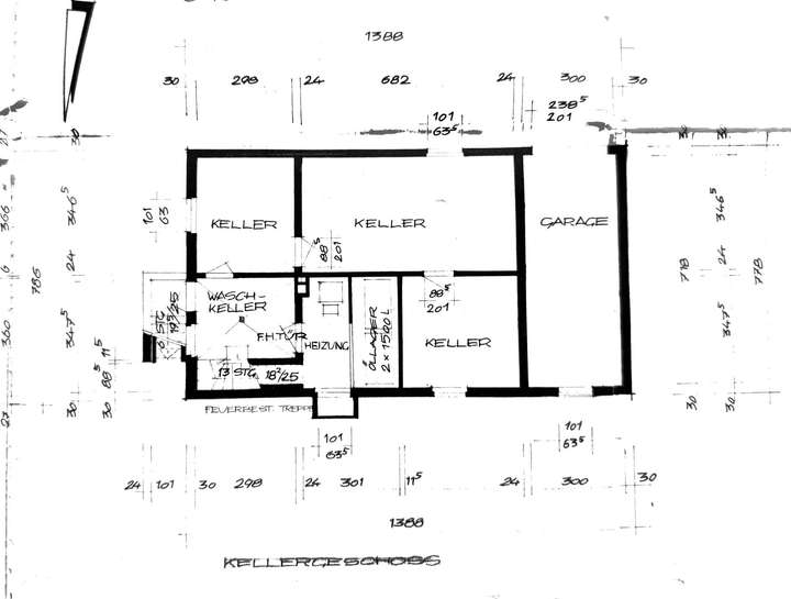
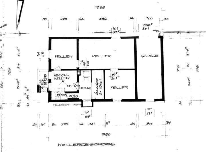
Kellergeschoss (Vollkeller):
Waschküche
Hobbyraum
Werkstatt
WC mit Dusche
Garage im Keller
Kelleraußentreppe in den Garten
Haben wir Ihr Interesse geweckt? Dann freue ich mich über Ihre Nachricht.
Auf Wunsch erstellen wir Ihnen gerne zu diesem Angebot ein maßgeschneidertes Finanzierungsangebot über unseren langjährigen Finanzierungspartner.
Gerne unterstützen wir Sie auch beim Verkauf Ihrer bestehenden Immobilie.
Bungalow mit Wintergarten, Vollkeller und Garage in ruhiger Lage – viel Potenzial für Familien
38268 Lengede
Die vollständige Adresse der Immobilie erhalten Sie vom Anbieter.
Auf Karte anzeigen
Die vollständige Adresse der Immobilie erhalten Sie vom Anbieter.
Finanzierungszertifikat
In nur zwei Minuten zu Ihrem persönlichen Finanzierungszertifkat.
Infos
| Haustyp | Einfamilienhaus |
|---|---|
| Wohnfläche ca. | 100 m2 |
| Grundstücksfläche | 898 m2 |
| Bezugsfrei ab | Sofort |
| Zimmer | 4 |
| Schlafzimmer | 3 |
| Badezimmer | 2 |
| Garage/Stellplatz | Garage |
| Anzahl Garage/Stellplatz | 1 |
Kosten
| Kaufpreis |
199.000 € |
|---|---|
| Provision |
3,57 % aus dem Kaufpreis inkl. MwSt. Fällig nach notarieller Beurkundung |
Finanzierungsrechner:
Kaufpreis:
600.000 €
Eigenkapital:
600.000 €
Monatliche Rate
0 €
Effektiver Jahreszins
0 %
Sollzinsbindung
10 Jahre
Bausubstanz & Energieausweis
| Baujahr | 1970 |
|---|---|
| Letzte Sanierung | 2006 |
| Bauphase | Haus fertig gestellt |
| Objektzustand | Renovierungsbedürftig |
| Heizungsart | Öl-Heizung |
| Wesentliche Energieträger | Öl |
| Energieausweis | liegt vor |
| Energieausweistyp | Bedarfsausweis |
| Energieverbrauchskennwert | 266,9 kWh/(m²*a) |
| Energieeffizienzklasse | H |
266,9
kWh/(m²*a)
Energieeffizienzklasse H
- A+
- A
- B
- C
- D
- E
- F
- G
- H
- 0
- 25
- 50
- 75
- 100
- 125
- 150
- 175
- 200
- 225
- >250
Beschreibung des Objekts
Ausstattung
Technik & weitere Ausstattungsmerkmale:
+ Bungalow
+ 4 Zimmer
+ 898 m² Eigentumsgrundstück
+ Öl-Zentralheizung (Baujahr ca. 1989)
+ Kunststoff-Öltanks, ca. 3.000 l
+ Dach-Solaranlage zur Warmwasserbereitung mit Speicher (ca. 2006)
+ Doppelt verglaste Kunststofffenster mit Außenrollläden
+ Dachboden als Stauraum
+ Fertigteilhaus mit massiver Klinkerfassade
+ Zustand: modernisierungsbedürftig
+ Ab sofort verfügbar
+ und vieles mehr...
Lage
Das Objekt befindet sich in Klein Lafferde, einem Ortsteil der Gemeinde Lengede im Landkreis Peine (Niedersachsen).
Der Ort bietet eine ruhige, familienfreundliche Wohnlage mit überwiegend Ein- und Zweifamilienhäusern. Klein Lafferde liegt verkehrsgünstig an der Landesstraße L472 zwischen Braunschweig und Hildesheim sowie unweit der Städte Peine und Salzgitter.
Einkaufsmöglichkeiten, Schulen, Kitas und weitere Einrichtungen des täglichen Bedarfs sind in der Gemeinde Lengede und den umliegenden Orten gut erreichbar. Durch Busverbindungen und die nahegelegenen Bahnhöfe im Gemeindegebiet besteht eine gute Anbindung an den Regionalverkehr.
Sonstige Angaben
Wichtige Hinweise zur Exposé- und Besichtigungsanfrage
1. Kontaktformular ausfüllen
Bitte vollständigen Namen, Anschrift und Telefonnummer angeben – erforderlich zur Identitätsprüfung (§ 2 Abs. 10 GwG). Ohne diese Angaben können wir nicht starten.
2. Zustimmung per E-Mail
Nach Ihrer Anfrage erhalten Sie eine E-Mail. Über den Bestätigungslink akzeptieren Sie unsere Nutzungsbedingungen und bestätigen die Widerrufsbelehrung (Fernabsatzrecht).
3. Exposé öffnen
Nach der Bestätigung können Sie das vollständige Exposé direkt über den Link öffnen bzw. herunterladen. Gern vereinbaren wir anschließend einen Besichtigungstermin.
Vielen Dank für Ihr Verständnis! Bei Fragen sind wir jederzeit für Sie da.
Cakir Immobilien GmbH
Grundriss
Grundriss EG
>
>
Grundriss KG
>
>
Schnittzeichnung
>
>
Adresse
38268 Lengede
Interessante Orte
Preis- und Lageinformationen
Preistrend für Bestandsimmobilien in Lengede