Das Mehrfamilienhaus in guter Wohnlage wurde um 1920 erbaut und nach 2001 grundlegend vom
Keller bis zum Dach saniert.
Die Erneuerung der Holz-Balkonanlage erfolgte erneut in Jahr 2018 und wurde in Metall ausgeführt.
Das Mehrfamilienhaus ist seit der Sanierung immer gut vermietet.
Alle Mieterverträge sind bereits älter als 10 Jahre.
Sie können von einer gut funktionierenden Hausgemeinschaft ausgehen.
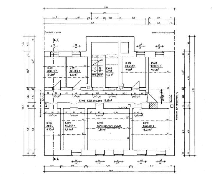
Das Mehrfamilienhaus ist vollständig unterkellert.
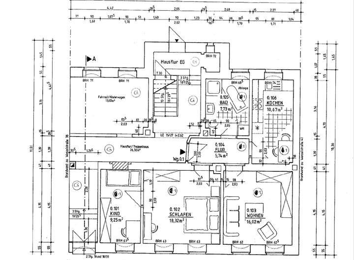
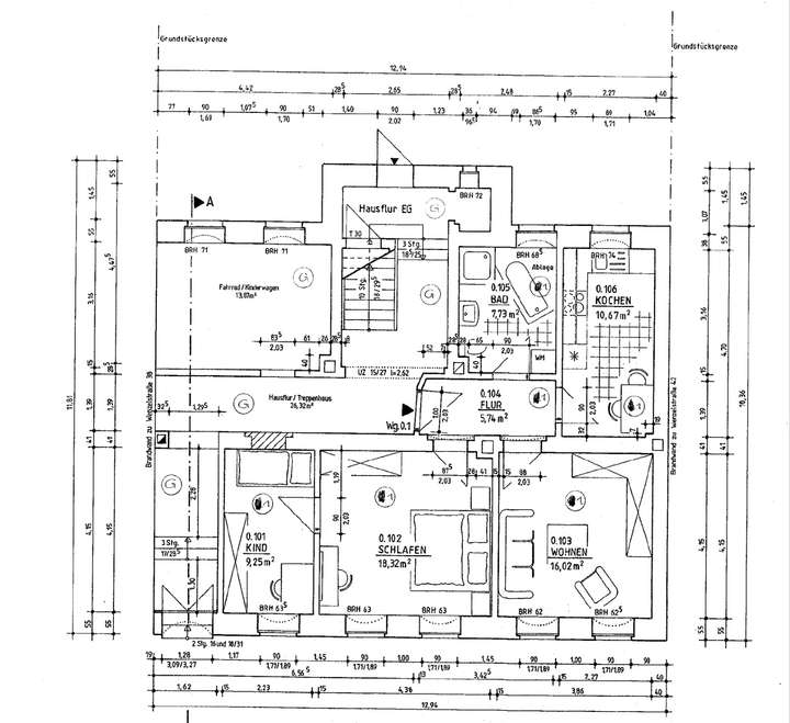
Im Erdgeschoss befindet sich eine Wohnung und ein Abstell- und Fahrradraum und der Durchgang zum hinten Teil des Grundstückes mit Garten. Zur Erdgeschosswohnung gehört ein Freisitz zum Garten.
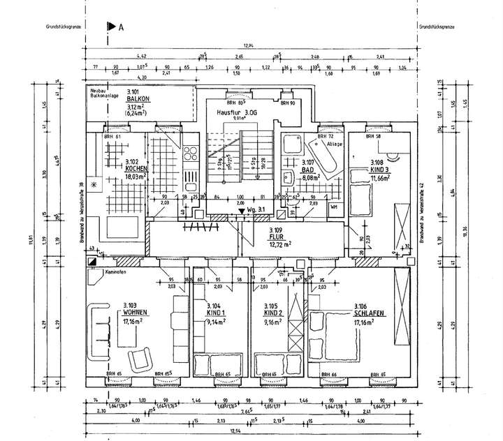
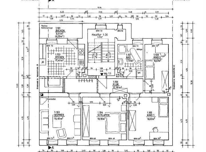
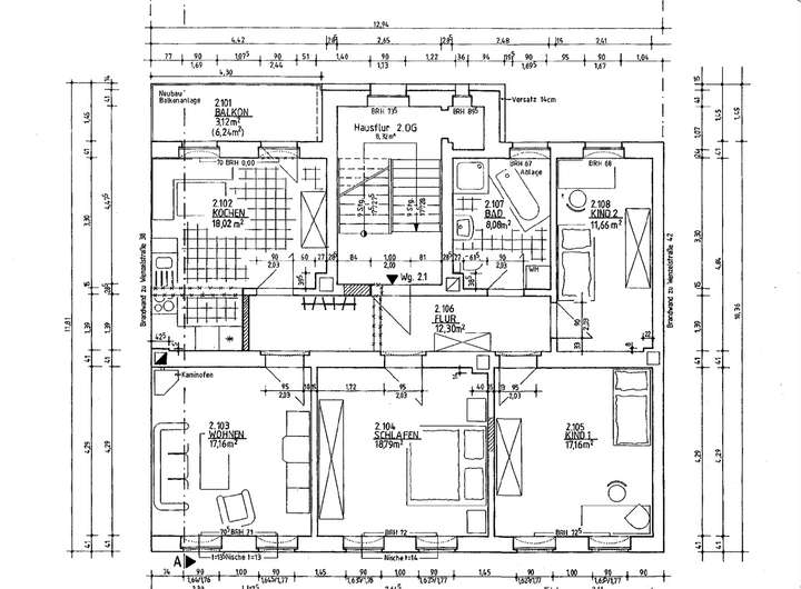
Vom 1. Obergeschoss bis zum 3. Obergeschoss befinden Sie jeweils über 100 m2 große Wohnungen mit 3 Schlafzimmern, einem Wohnzimmer, einer geräumigen Küche mit Ausgang zum Balkon und jeweils mit einem Bad mit Wanne und Dusche und natürlich mit Fenster.
Der Ausgang von der Küche auf den Balkon hat sich als sehr praktisch erwiesen.
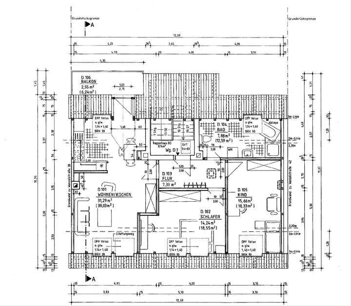
Die Dachgeschosswohnung verfügt über ein großes Wohnzimmer mit offener Küche.
Selbst in der Dachgeschosswohnung befindet sich ein Balkon der aufwendig in das Dach integriert
wurde.
Das Mehrfamilienhaus verfügt über 2 sanierte Schornsteine wovon der eine Schornstein für die Gaszentralheizung im Keller genutzt wird.
Der 2. Schornstein wurde saniert um in jeder Wohnung die Möglichkeit zu bieten einen Kaminofen anzuschließen,.
Hinweis zu den Bildern im Exposé und auf den Immobilienplattformen:
Einige Fotos sind bereits einige Jahre alt und vor dem Einzug entstanden.
Wir haben hier auf Fotos vor der Vermietung zurückgegriffen.
Die Fotos aus dem Dachgeschoss sind ebenfalls bereits älter.
Achtung Kapitalanleger, wir bieten ein voll vermietetes, gepflegtes Mehrfamilienhaus in Altenburg an
04600 Altenburg
Die vollständige Adresse der Immobilie erhalten Sie vom Anbieter.
Auf Karte anzeigen
Die vollständige Adresse der Immobilie erhalten Sie vom Anbieter.
Finanzierungszertifikat
In nur zwei Minuten zu Ihrem persönlichen Finanzierungszertifkat.
Infos
| Haustyp | Mehrfamilienhaus |
|---|---|
| Etagenzahl | 5 |
| Wohnfläche ca. | 460 m2 |
| Grundstücksfläche | 276 m2 |
| Bezugsfrei ab | sofort |
| Zimmer | 18 |
| Schlafzimmer | 13 |
| Badezimmer | 5 |
Kosten
| Kaufpreis |
429.000 € |
|---|---|
| Provision |
3,57% inkl. MwSt. Nach derzeit gültiger gesetzlicher Regelung, Käufer und Verkäufer je zur Hälfte, fällig und zahlbar bei Beurkundung |
Finanzierungsrechner:
Kaufpreis:
600.000 €
Eigenkapital:
600.000 €
Monatliche Rate
0 €
Effektiver Jahreszins
0 %
Sollzinsbindung
10 Jahre
Bausubstanz & Energieausweis
| Baujahr | 1920 |
|---|---|
| Letzte Sanierung | 2018 |
| Denkmalschutzobjekt | Ja |
| Objektzustand | Gepflegt |
| Qualität der Austattung | Normal |
| Heizungsart | Gas-Heizung |
| Wesentliche Energieträger | Gas |
| Energieausweis | liegt vor |
| Energieausweistyp | Verbrauchsausweis |
| Energieverbrauchskennwert | 114,0 kWh/(m²*a) |
| Energieeffizienzklasse | D |
114,0
kWh/(m²*a)
Energieeffizienzklasse D
- A+
- A
- B
- C
- D
- E
- F
- G
- H
- 0
- 25
- 50
- 75
- 100
- 125
- 150
- 175
- 200
- 225
- >250
Beschreibung des Objekts
Ausstattung
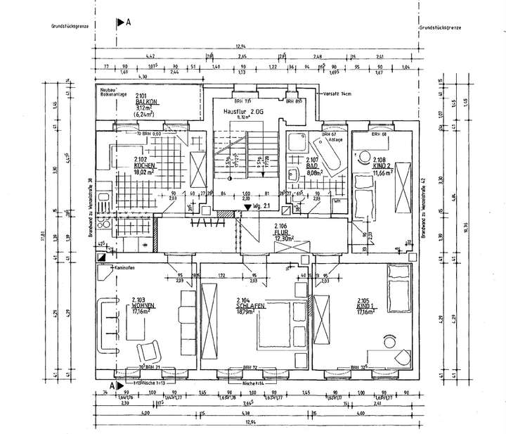
Die Wohnungsgrößen aufgelistet:
1. Erdgeschoss 67,73 m2
2. 1. Obergeschoss 101.26 m2
3. 2. Obergeschoss 106,36 m2
4. 3. Obergeschoss 105,93 m2
5. Dachgeschoss 79,02 m2
Gesamtwohnfläche 460.30 m2
Aus unserer jahrzehntelangen Erfahrung in Altenburg wissen wir, dass gerade die großen Wohnungen sehr stark nachgefragt werden.
Bei diesem Mehrfamilienhaus handelt es sich auf alle Fälle um ein solide Kapitalanlage.
Lage
Altenburg, eine historische Stadt in Thüringen, besticht durch ihr mittelalterliches Flair und eine Vielzahl von Sehenswürdigkeiten.
Das Stadtzentrum ist geprägt von prachtvollen Gebäuden und schmalen Gassen, die zum Bummeln und Entdecken einladen.
Kulturell bietet Altenburg ein breites Angebot, von Theateraufführungen bis hin zu Museen und Ausstellungen.
Spricht man von Altenburg so denkt man fast automatisch an des Deutschen liebstes Kartenspiel das genau hier in der ostthüringischen Residenzstadt Altenburg Anfang des 19. Jahrhunderts erfunden wurde.
Die Skat- und Touristenstadt Altenburg hat auch in Zukunft große Pläne die das Ansehen und den Tourismus enorm beleben werden und das sollten Investoren und Betreiber unbedingt bei Ihrer Entscheidung berücksichtigen.
Dementsprechend werden in den nächsten Jahren umfangreiche Investitionen in der mitteldeutschen Kreisstadt erfolgen.
Ein zentrales Schlüsselprojekt wird das YOSEPHINUM® – eine deutschlandweit bislang einzigartige multimediale Erlebniswelt auf drei Etagen mit 20 Themenräumen.
Die Region um Altenburg ist vor allem für ihre malerische Landschaft und ihre zahlreichen Schlösser und Burgen bekannt. Die Umgebung lädt zu ausgedehnten Wanderungen und Radtouren ein und bietet zahlreiche Möglichkeiten für Ausflüge in die Natur. Die Region ist außerdem für ihre traditionelle Küche und ihre herzliche Gastfreundschaft berühmt, was das Leben in Altenburg besonders angenehm macht.
Das Mehrfamilienhaus befindet sich in einem ruhigen Stadtteil von Altenburg.
Der Stadtteil zeichnet sich durch seine zentrale Lage aus und bietet eine gute Anbindung an öffentliche Verkehrsmittel sowie Einkaufsmöglichkeiten und Restaurants in unmittelbarer Nähe.
Die grüne Umgebung lädt zu Spaziergängen und Erholung im Freien ein.
Die Region um Altenburg lockt mit ihrer malerischen Landschaft und der Nähe zu zahlreichen Naturschutzgebieten.
Wander- und Radwege durch Wälder, Wiesen und entlang von Flüssen laden dazu ein, die Natur zu erkunden. Zudem bietet die Umgebung zahlreiche historische Städte und Schlösser, die einen Einblick in die reiche Geschichte der Region bieten.
Insgesamt ist die Lage der Immobilie ideal für Menschen, die die Vorzüge einer lebendigen Stadt mit der Ruhe und Schönheit der Natur vereinen möchten.
Die wichtigen Verbindungsstraßen in alle Richtungen B 7, B 93 und B 180 verlaufen in der Nähe.
Seit 2013 besteht eine direkte S-Bahn Anbindung von Altenburg nach Leipzig und auch zum Flughafen Leipzig/Halle durch den neuen City-Tunnel.
Sonstige Angaben
Rechtlicher Hinweis / Disclaimer
Wir bitten um Verständnis, dass wir nur vollständig ausgefüllte Emailanfragen mit Vornamen,
Namen, Anschrift, Telefonnummer und Emailadresse beantworten können.
Alle Daten und Fakten stammen vom Eigentümer des Objektes. Wir haben uns vor Ort von der
Übereinstimmung überzeugt. Trotz aller Gründlichkeit können wir für die Richtigkeit und
Vollständigkeit der Angaben keine Haftung übernehmen. Irrtum und Auslassung sowie
Zwischenverkauf und/oder Zwischenvermietung bleiben vorbehalten.
Eine Reservierung kann nur nach schriftlicher Vereinbarung in Absprache mit dem Makler und dem
Eigentümer erfolgen.
Disclaimer / Property offers
Please understand that we will only answer fully completed requests with name, address, telephone
number and email address.
Provided, neither Langer Immobilien GmbH & Co. KG, its officers or employees accept any
responsibility as to the accuracy of the information provided on either this or in any subsequent
communication.
We strongly recommend that each individual investor takes independent professional advice
concerning all aspects of any proposed purchase.
Langer Immobilien GmbH & Co. KG does not take any responsibility for any Professional or other
costs incurred by an investor.
The provision of the information contained in this E-Mail or any subsequent communication is no
indication or proof of Langer Immobilien GmbH & Co. KG’s legal appointment by the owner / vendor
of a proposed investment to market this opportunity exclusively or as one of several appointed
consultants.
Hauptsitz: Langer Immobilien GmbH & Co. KG, Weydingerstraße 14-16, 10178 Berlin - Mitte
Weitere Dokumente
AGB_aktuell_PDFDatenschutz_aktuell
Disclaimer PDF
Impressum
Grundriss
Ansichten
>
>
Schnitt
>
>
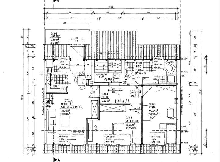
Dachgeschoss
>
>
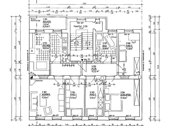
3. Obergeschoss
>
>
2. Obergeschoss
>
>
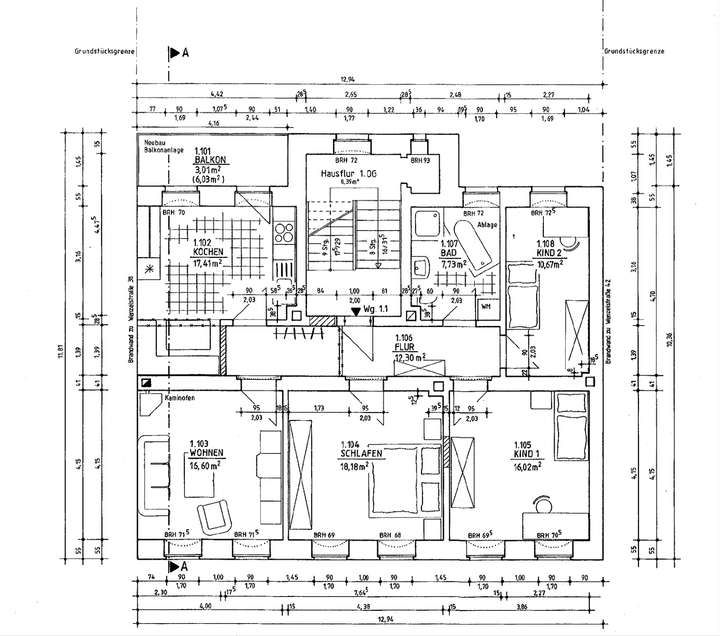
1. Obergeschoss
>
>
Erdgeschoss
>
>
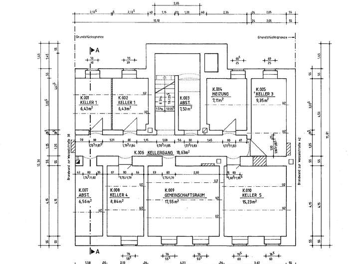
Keller
>
>
Adresse
04600 Altenburg
Interessante Orte
Preis- und Lageinformationen
Preistrend für Bestandsimmobilien in Altenburg