Dieses freistehende Einfamilienhaus vereint historischen Charme mit großzügigem Platzangebot auf einem weitläufigen Grundstück von ca. 1.116 m². Das Gebäude aus dem Jahr 1845, welches 1962 umfangreich saniert wurde, bietet eine Wohnfläche von ca. 180 m² und eignet sich ideal für Familien mit Platzbedarf, Naturfreunde oder Menschen, die individuelle Gestaltungsmöglichkeiten suchen.
Der große Garten mit überdachter Sitzmöglichkeit, die ruhige Lage im Herzen von Havelse sowie die Nähe zu Schulen, Einkaufsmöglichkeiten und Naherholung (Leinemasch) machen diese Immobilie besonders attraktiv.
Dieses Haus bietet ausreichend Platz, um modernes Wohnen mit historischem Charme zu vereinen – egal ob offene Wohnküche, Homeoffice oder Einliegerbereich.
Platz, Ruhe und Perspektive: Großes Einfamilienhaus im alten Ortskern von Havelse
Im alten Dorfe 8,
30823 Garbsen
Auf Karte anzeigen
Finanzierungszertifikat
In nur zwei Minuten zu Ihrem persönlichen Finanzierungszertifkat.
Infos
| Haustyp | Einfamilienhaus |
|---|---|
| Etagenzahl | 2 |
| Wohnfläche ca. | 180 m2 |
| Nutzfläche | 125 m2 |
| Grundstücksfläche | 1.116 m2 |
| Bezugsfrei ab | 1.12.2025 |
| Zimmer | 8 |
| Schlafzimmer | 4 |
| Badezimmer | 3 |
| Garage/Stellplatz | Garage |
| Anzahl Garage/Stellplatz | 1 |
Kosten
| Kaufpreis |
349.000 € |
|---|---|
| Provision | Nein |
Finanzierungsrechner:
Kaufpreis:
600.000 €
Eigenkapital:
600.000 €
Monatliche Rate
0 €
Effektiver Jahreszins
0 %
Sollzinsbindung
10 Jahre
Bausubstanz & Energieausweis
| Baujahr | 1845 |
|---|---|
| Letzte Sanierung | 2024 |
| Objektzustand | Renovierungsbedürftig |
| Qualität der Austattung | Einfach |
| Heizungsart | Gas-Heizung |
| Wesentliche Energieträger | Gas |
| Energieausweis | liegt vor |
| Energieausweistyp | Bedarfsausweis |
| Energieverbrauchskennwert | 299,8 kWh/(m²*a) |
| Energieeffizienzklasse | H |
299,8
kWh/(m²*a)
Energieeffizienzklasse H
- A+
- A
- B
- C
- D
- E
- F
- G
- H
- 0
- 25
- 50
- 75
- 100
- 125
- 150
- 175
- 200
- 225
- >250
Beschreibung des Objekts
Ausstattung
- Einfache Ausstattung mit viel Potenzial es sich selbst zu gestalten und schön zu machen
- Umbau- und Ausbaumöglichkeiten vorhanden
- Elektrik dreiadrig
- Gas-Therme in 2024 erneuert
- Kaminofen vorhanden
- Überdachte Laube im Garten
- Brunnen mit Pumpe im Garten
Lage
Havelse gehört zu den beliebtesten Wohnlagen in Garbsen. Der Ortsteil vereint Dorfcharakter, Ruhe und sehr gute Infrastruktur:
Schulen & Kitas in unmittelbarer Umgebung
Einkaufsmöglichkeiten, Ärzte und Restaurants fußläufig erreichbar
Kurze Wege zur B6, nach Hannover und ins Garbsener Zentrum
Naherholung entlang der Leine und am Schwarzen See
Familienfreundliches Umfeld, gewachsene Wohnstruktur
Eine Lage, die sich durch hohe Nachfrage auszeichnet – besonders bei Familien und Menschen, die naturnah wohnen möchten.
Sonstige Angaben
Highlights:
- Freistehendes Einfamilienhaus in idyllischer Lage
- 1.116 m² Grundstück – ein Traum für Familien, Gartenliebhaber oder Tierfreunde
- Ausbaureserve (ca. 95 m²) – echte Wertsteigerung möglich
- Ruhige Lage im alten Dorfkern – seltenes Angebot mit Tradition
- Kurze Wege, viel Platz, große Perspektive
- Freistehendes Einfamilienhaus in idyllischer Lage
- 180 m² Wohnfläche nach Wohnflächenverordnung (testiert)
- Baujahr 1845, modernisiert 1962
- Neuere Heiztechnik (Gas, Baujahr 2023)
- Gepflegter, jedoch modernisierungswürdiger Zustand – ideal für Käufer, die ihr Zuhause individuell gestalten möchten
Weitere Dokumente
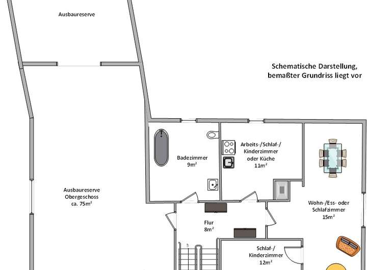
Energieausweis HavelseGrundriss
Grundriss Erdgeschoss
>
>
Grundriss Obergeschoss
>
>
Adresse
Im alten Dorfe 8, 30823 Garbsen
Interessante Orte
Preis- und Lageinformationen
Preistrend für Bestandsimmobilien in Garbsen