Willkommen zu Ihrem neuen Zuhause in Hamburg, einem charmanten Einfamilienhaus im idyllischen Stadtteil Lemsahl-Mellingstedt. Diese solide Immobilie, erbaut im Jahr 1968, vereint zeitlosen Charakter mit großzügige Wohnfläche auf einem naturschönen Grundstück von ca. 1.192 m². Mit einer Wohnfläche von ca. 184 m², davon allein ca. 115 m² im Erdgeschoss bietet dieses Haus ausreichend Platz für Ihre Familie und Gäste. Es verfügt aktuell über insgesamt fünf Zimmer, darunter vier Schlafzimmer und ein Badezimmer. Das Dachgeschoss mit derzeit zwei Zimmern kann neu aufgeteilt werden, um ein weiteres Zimmer zu schaffen. Im Herzen des Erdgeschosses befindet sich eine offen gestaltete Einbauküche, die nahtlos in den Wohn- und Essbereich übergeht. Zwei weitere Zimmer im Erdgeschoss runden gemeinsam mit dem Wannenbad sowie dem Gäste-WC das Angebot dieser Ebene ab. Das Gebäude ist voll unterkellert und bietet auf der Kellerebene auch eine Doppelgarage (hintereinander) mit direktem Zugang zum Haus.
Entdecken Sie die perfekte Kombination aus Ruhe und Natur in einer begehrten Wohnlage Hamburgs.
Zuhause mitten im Grünen
22397 Hamburg
Die vollständige Adresse der Immobilie erhalten Sie vom Anbieter.
Auf Karte anzeigen
Die vollständige Adresse der Immobilie erhalten Sie vom Anbieter.
Finanzierungszertifikat
In nur zwei Minuten zu Ihrem persönlichen Finanzierungszertifkat.
Infos
| Haustyp | Einfamilienhaus |
|---|---|
| Wohnfläche ca. | 184 m2 |
| Nutzfläche | 101 m2 |
| Grundstücksfläche | 1.192 m2 |
| Bezugsfrei ab | nach Vereinbarung |
| Zimmer | 5 |
| Schlafzimmer | 4 |
| Badezimmer | 1 |
Kosten
| Kaufpreis |
699.000 € |
|---|---|
| Provision |
3,57 % inkl. MwSt. |
Finanzierungsrechner:
Kaufpreis:
600.000 €
Eigenkapital:
600.000 €
Monatliche Rate
0 €
Effektiver Jahreszins
0 %
Sollzinsbindung
10 Jahre
Bausubstanz & Energieausweis
| Baujahr | 1968 |
|---|---|
| Objektzustand | Renovierungsbedürftig |
| Heizungsart | Zentralheizung |
| Wesentliche Energieträger | Pelletheizung |
| Energieausweis | liegt vor |
| Energieausweistyp | Bedarfsausweis |
| Energieverbrauchskennwert | 310,7 kWh/(m²*a) |
| Energieeffizienzklasse | H |
310,7
kWh/(m²*a)
Energieeffizienzklasse H
- A+
- A
- B
- C
- D
- E
- F
- G
- H
- 0
- 25
- 50
- 75
- 100
- 125
- 150
- 175
- 200
- 225
- >250
Beschreibung des Objekts
Ausstattung
Diese solide Immobilie bietet eine zeitgemäß ausgestattete Einbauküche mit offener Gestaltung, die sowohl funktional als auch optimal dem angrenzenden Wohn-Essbereich angeschlossen ist. Der Kamin im Wohnbereich sorgt für wohlige Wärme und eine einladende Atmosphäre, insbesondere an kälteren Tagen. Die großzügigen Terrassen, teilweise überdacht, erweitert den Wohnbereich nach draußen und laden gemeinsam mit den zahlreichen Sitzplätzen auf dem Grundstück zu entspannten Stunden im Freien ein. Die Zentralheizung (BJ 2022), betrieben mit umweltfreundlichem Pelletsystem, sichert eine effiziente und nachhaltige Beheizung der gesamten Räumlichkeiten.
Investitionsbedarf zeigt die angebotene Immobilie im Bereich der Energetik sowie dekorativer Maßnahmen, zu denen wir auch die Modernisierung der vorhandenen Sanitärbereiche zählen. Eine Dichtheitsprüfung wurde bislang noch nicht durchgeführt.
Lage
Dieses Einfamilienhaus befindet sich inmitten der Natur im Norden von Hamburg. Die Gegend zeichnet sich durch ihre ruhige, familienfreundliche Atmosphäre und eine Vielzahl von Grünflächen aus, die Erholung und Entspannung bieten.
Freizeitmöglichkeiten finden sich in den nahegelegenen Grüngebieten, dem Golfclub Treudelberg, dem Duvenstedter Freibad im Sommer sowie in diversen Sportvereinen. Besorgungen für die Dinge des täglichen Bedarfs können in dem kleinen Einkaufszentrum am Tannenhof erledigt werden. Für größere Einkäufe oder einen gemütlichen Bummel stehen eine Vielzahl an Möglichkeiten in Duvenstedt oder im Alstertaler Einkaufszentrum zur Verfügung. Die gute Anbindung an den öffentlichen Nahverkehr wird durch eine nahe gelegene Bushaltestelle an der Lemsahler Landstraße und die U-Bahn-Station "Ohlstedt" oder S-Bahn-Station "Poppenbüttel" gewährleistet.
Für Familien mit Kindern bietet die Umgebung ein hervorragendes Bildungsangebot: Kindergarten und Grundschule sowie ein Gymnasium befinden sich in kurzer Distanz. Die Autobahnanbindung ermöglicht einen Zugang zum überregionalen Straßennetz in ca. 20 Minuten Fahrzeit.
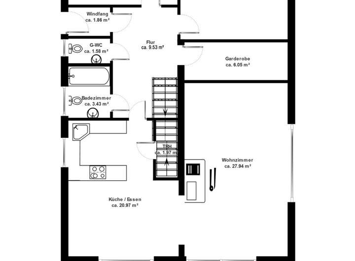
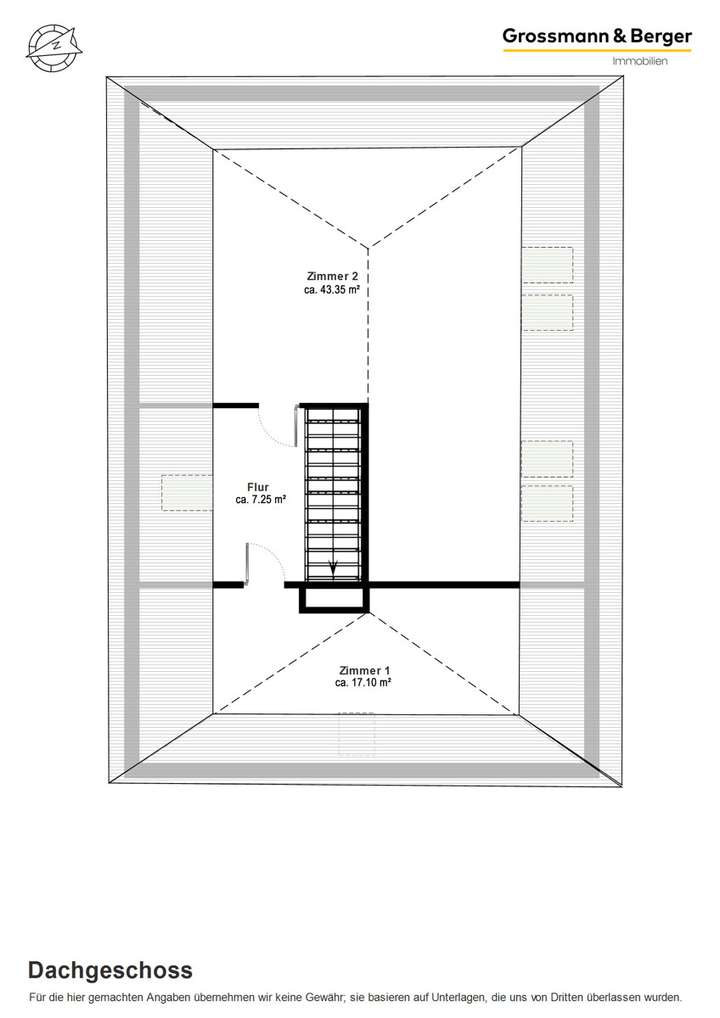
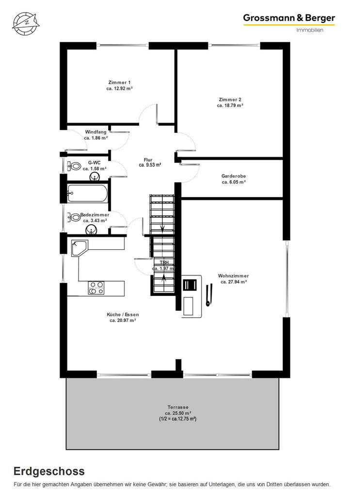
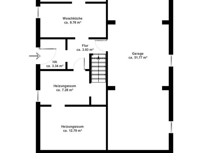
Grundriss
Erdgeschoss
>
>
Dachgeschoss
>
>
Kellergeschoss
>
>
Adresse
22397 Hamburg
Interessante Orte
Preis- und Lageinformationen
Preistrend für Bestandsimmobilien in Lemsahl-Mellingstedt