Moderne Architektur, luxuriöse Ausstattung und maximale Privatsphäre auf ca. 924 m² Grundstück, ca. 210 m² Wohnfläche plus ca. 90 m² Nutzfläche. Offenes, lichtdurchflutetes Wohnkonzept mit hochwertiger Küche, maßgefertigten Einbauten, Kaminofen sowie großer Terrasse und idyllischem Garten mit Süd-Ost-Ausrichtung.
Privater Bereich mit Elternsuite, zwei Kinderzimmern und luxuriösem Bad. Im Untergeschoss: Lounge, Sauna mit Duschbad, Werkstatt, diverse Nebenräume sowie separater Wohnbereich mit Pantryküche, Gästezimmer und Studio – ideal für Gäste oder kreative Nutzung.
Zusätzlich separater Eingang zum Souterrain-Patio. Garage und Stellplatz vorhanden. Ein einzigartiges Zuhause für höchste Ansprüche, Privatsphäre und flexible Wohnkonzepte.
Ein weiteres Highlight ist die Möglichkeit durch einen Dachaufbau zusätzliche 85 m2 Wohnfläche zu generieren.
Das Objekt wurde 2006 kernsaniert. Im Jahr 2012 erfolgten zusätzliche Erweiterungen, darunter ein neu angelegter Vorgarten sowie ein seitlicher Zugang zum Souterrain. 2025 wurde der hintere Garten neu gestaltet und eine große Holzterrasse hinzugefügt. Im Januar 2026 werden zudem neue Fenster eingebaut. Energieausweis ist in Bearbeitung.
www.bungalow-hamburg-west.de
Exklusiver Design-Bungalow mit Einliegerbereich – Sonnenlage, ideal für Familien – courtagefrei
22609 Hamburg
Die vollständige Adresse der Immobilie erhalten Sie vom Anbieter.
Auf Karte anzeigen
Die vollständige Adresse der Immobilie erhalten Sie vom Anbieter.
Finanzierungszertifikat
In nur zwei Minuten zu Ihrem persönlichen Finanzierungszertifkat.
Infos
| Haustyp | Bungalow |
|---|---|
| Etagenzahl | 2 |
| Wohnfläche ca. | 210 m2 |
| Nutzfläche | 90 m2 |
| Grundstücksfläche | 924 m2 |
| Zimmer | 7 |
| Schlafzimmer | 1 |
| Badezimmer | 3 |
| Garage/Stellplatz | Garage |
| Anzahl Garage/Stellplatz | 1 |
Kosten
| Kaufpreis |
2.150.000 € |
|---|---|
| Provision | Nein |
Finanzierungsrechner:
Kaufpreis:
600.000 €
Eigenkapital:
600.000 €
Monatliche Rate
0 €
Effektiver Jahreszins
0 %
Sollzinsbindung
10 Jahre
Bausubstanz & Energieausweis
| Baujahr | 1971 |
|---|---|
| Letzte Sanierung | 2025 |
| Qualität der Austattung | Gehoben |
| Heizungsart | Fernwärme |
| Wesentliche Energieträger | Fernwärme |
Beschreibung des Objekts
Ausstattung
GEHOBENE AUSSTATTUNG:
Kernsaniert, 13 Zimmer insgesamt (Reisekeller, Aktenkeller, Werkstatt, Waschküche, Lounge, etc.), Travertin Böden+Nussbaum Parkett in 3 Zimmern, Duravit Bäder, freistehende Wanne, Sauna, Gartenhaus, Garten Pavillon vorbereitet.
AUSBAU UND NUTZUNGSPOTENTIAL
Dachaufbau über zusätzliche 85 m2 möglich
Separater Zugang zum Untergeschoss macht eine autarke Einheit möglich
Großer Vorder- und Hintergarten
SICHERHEIT
Alarmanlage im gesamten Haus vorhanden
Lage
Dieser exklusive Bungalow liegt in einer der begehrtesten Wohnlagen Hamburgs – im grünen, ruhigen Stadtteil Groß Flottbek. Gepflegte Alleen, Einzelhausbebauung und alter Baumbestand prägen das Umfeld, während Natur, Elbe und eine hervorragende Infrastruktur schnell erreichbar sind. Die A7-Anschlussstelle Bahrenfeld sowie sehr gute Bus- und S-Bahn-Verbindungen sorgen für optimale Mobilität.
Im direkten Umfeld befinden sich erstklassige Bildungseinrichtungen wie die International School of Hamburg, das Christianeum, das Gymnasium Hochrad sowie mehrere Kitas. Sportangebote wie Tennis, Reiten und Hockey sind fußläufig erreichbar – ideal für anspruchsvolle Familien.
Kulinarisch bietet die Umgebung hochwertige Gastronomie, darunter das Country Kitchen und das Landhaus Flottbek mit dem Restaurant Hygge. Für komfortable Nahversorgung liegt das Elbe-Einkaufszentrum (EEZ) in der Nähe.
Jenischpark, Botanischer Garten und Elbufer bei Teufelsbrück bieten Erholung und Freizeitmöglichkeiten direkt vor der Haustür.
Fazit: Eine exklusive Adresse, die Ruhe, Natur, Bildung und urbanen Komfort harmonisch verbindet – eine der besten Wohnlagen im Hamburger Westen.
Ideal für junge Familien.
EXZELLENTE LAGE
Jenischpark: 1,3 km
Botanischer Garten: 800 m
Elbufer / Teufelsbrück: 2 km
Elbe-Einkaufszentrum: 800 m
A7-Zubringer Bahrenfeld: 2,3 km
S-Bahnstation Klein Flottbek: 800 m
AUSBAU UND NUTZUNGSPOTENTIAL
Dachaufbau über zusätzliche 85 m2 möglich
Separater Zugang zum Untergeschoss macht eine autarke Einheit möglich
Großer Vorder- und Hintergarten
Objekt Highlights
BILDUNG & FREIZEIT
International School of Hamburg: 500 m
Gymnasium Christianeum: 1,2 km
Gymnasium Hochrad (bilingual): 1,9 km
Grundschule Windmühlenweg + Kita: 500 m
Reitanlage Flottbek: 450 m
Tennis + Hockeyclub THCC: 950 m
SICHERHEIT
Alarmanlage im gesamten Haus vorhanden
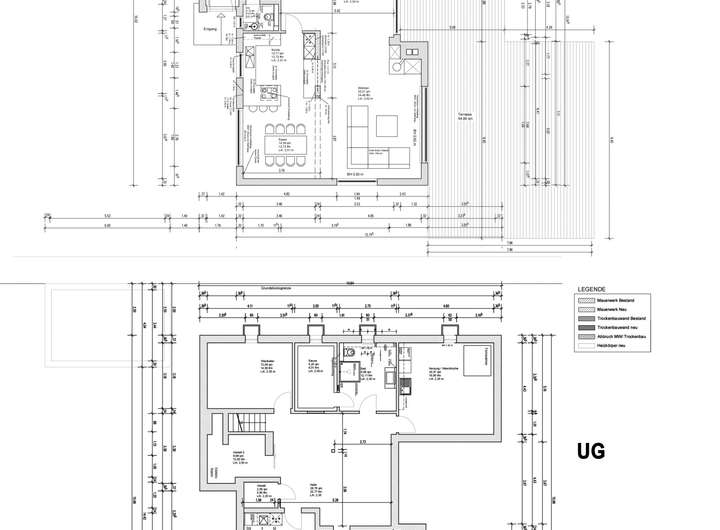
Grundriss
Grundriss
>
>
Adresse
22609 Hamburg
Interessante Orte
Preis- und Lageinformationen
Preistrend für Bestandsimmobilien in Osdorf