Dieses charmante Reihenmittelhaus auf ca. 400 m2 Grundstück überzeugt mit einer besonders gemütlichen Atmosphäre und viel Potenzial zur eigenen Gestaltung. Mit seinen 124 m2 Wohnfläche präsentiert es sich als ideale Lösung für Paare oder junge Familien, die ihr eigenes gemeinsames Zuhause suchen und offen für kleine Modernisierungen sind. Die Räume sind hell, freundlich und bieten genügend Platz für individuelle Einrichtungswünsche und das in einer der begehrtesten Lagen in Hamburg, Lokstedt.
Herzstück des Hauses ist der offen gestaltete Wohn- und Essbereich mit einem charmantem Ofen, der wieder zum Leben erweckt werden kann. Eine separate Küche, ein praktischer Windfang im Eingangsbereich sowie das Gäste-WC ergänzen das Erdgeschoss. Über große Fenster gelangt man in den liebevoll angelegten Garten mit Terrasse: ein grünes Paradies für entspannte Stunden. Ein kleines Gartenhäuschen schafft zudem praktischen Stauraum für Freizeit- oder Gartengeräte.
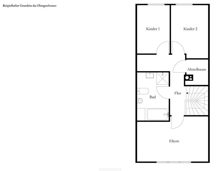
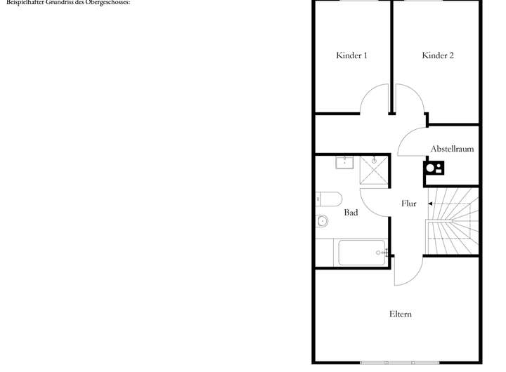
Im Obergeschoss erwarten Sie zwei helle Schlafzimmer sowie ein Bad mit Dusche. Besonderes Potenzial: Durch eine mögliche weitere Unterteilung lässt sich ein drittes Schlafzimmer realisieren, sodass Flexibilität auch für wachsende Familien gegeben ist. Der voll unterkellerte Bereich bietet neben Abstellraum, Waschküche und der Gasheizung nützliche Flächen, während ein Garagenstellplatz im Innenhof den Komfort in dieser gefragten und dennoch ruhigen Wohnlage abrundet.
Finanzierungszertifikat
In nur zwei Minuten zu Ihrem persönlichen Finanzierungszertifkat.
Infos
| Haustyp | Reihenmittelhaus |
|---|---|
| Etagenzahl | 2 |
| Wohnfläche ca. | 124 m2 |
| Nutzfläche | 63 m2 |
| Grundstücksfläche | 400 m2 |
| Bezugsfrei ab | sofort |
| Zimmer | 3 |
| Schlafzimmer | 2 |
| Badezimmer | 1 |
| Garage/Stellplatz | Garage |
| Anzahl Garage/Stellplatz | 1 |
Kosten
| Kaufpreis |
749.000 € |
|---|---|
| Provision |
3,57% inkl. MwSt. Der Makler hat mit dem Verkäufer einen Maklervertrag in gleicher Höhe vereinbart. |
Finanzierungsrechner:
Kaufpreis:
600.000 €
Eigenkapital:
600.000 €
Monatliche Rate
0 €
Effektiver Jahreszins
0 %
Sollzinsbindung
10 Jahre
Bausubstanz & Energieausweis
| Baujahr | 1980 |
|---|---|
| Bauphase | Haus fertig gestellt |
| Objektzustand | Renovierungsbedürftig |
| Qualität der Austattung | Normal |
| Heizungsart | Gas-Heizung |
| Wesentliche Energieträger | Gas |
| Energieausweis | liegt vor |
| Energieausweistyp | Verbrauchsausweis |
| Energieverbrauchskennwert | 115,7 kWh/(m²*a) |
| Energieeffizienzklasse | D |
115,7
kWh/(m²*a)
Energieeffizienzklasse D
- A+
- A
- B
- C
- D
- E
- F
- G
- H
- 0
- 25
- 50
- 75
- 100
- 125
- 150
- 175
- 200
- 225
- >250
Beschreibung des Objekts
Lage
Das charmante Reihenmittelhaus befindet sich in einer der beliebtesten Wohnlagen Lokstedts. Die Umgebung verbindet eine ruhige, familienfreundliche Atmosphäre mit einer hervorragenden städtischen Anbindung. Innerhalb weniger Minuten erreicht man sowohl das lebendige Eppendorf mit seinen Cafés, Restaurants und Boutiquen als auch die zentralen Verkehrsachsen Richtung Innenstadt, Universität und Flughafen.
Durch die Nähe zu mehreren Bus- und U-Bahn-Linien sowie kurzen Wegen zu Einkaufsmöglichkeiten, Kitas, Schulen und Grünflächen ist die Lage besonders attraktiv für Familien. Gleichzeitig bietet das Wohnumfeld eine angenehme Nachbarschaft mit hohem Freizeitwert - ideal für alle, die ruhiges Wohnen schätzen, aber dennoch schnell im Herzen der Stadt sein möchten.
Grundriss
beispielhafter Grundriss des O
>
>
Grundriss Kellergeschoss
>
>
Grundriss Erdgeschoss
>
>
Ist-Zustand des Obergeschosses
>
>
Adresse
Hinter der Lieth 7b, 22529 Hamburg
Interessante Orte
Preis- und Lageinformationen
Preistrend für Bestandsimmobilien in Lokstedt