Das familienfreundliche Reihenhaus befindet sich in ruhiger, reiner Wohnlage des Dichterviertels.
Die angenehme Nachbarschaft ist geprägt von gepflegten Reihenhäusern mit eingewachsenen Gärten.
Das Haus besticht durch seinen ganztägig schönen Tageslichteinfall – von Osten bis Südwesten – und den außergewöhnlich großen, nicht einsehbaren Sonnengarten.
Großzügige Fensterfronten bieten von jedem Raum einen Ausblick ins Grüne.
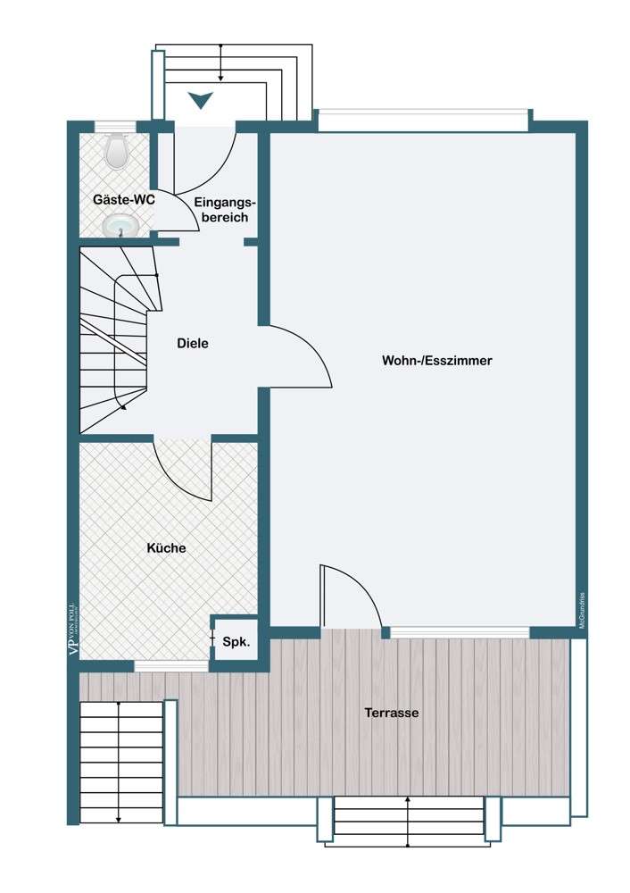
Im Erdgeschoss befindet sich das geräumige Wohnzimmer mit Zugang zur Südwest-Terrasse und dem Garten. Die Küche ist separat gehalten, ließe sich aber öffnen.
Im Eingangsbereich liegt das Tageslicht-Gäste-WC und die Garderobe.
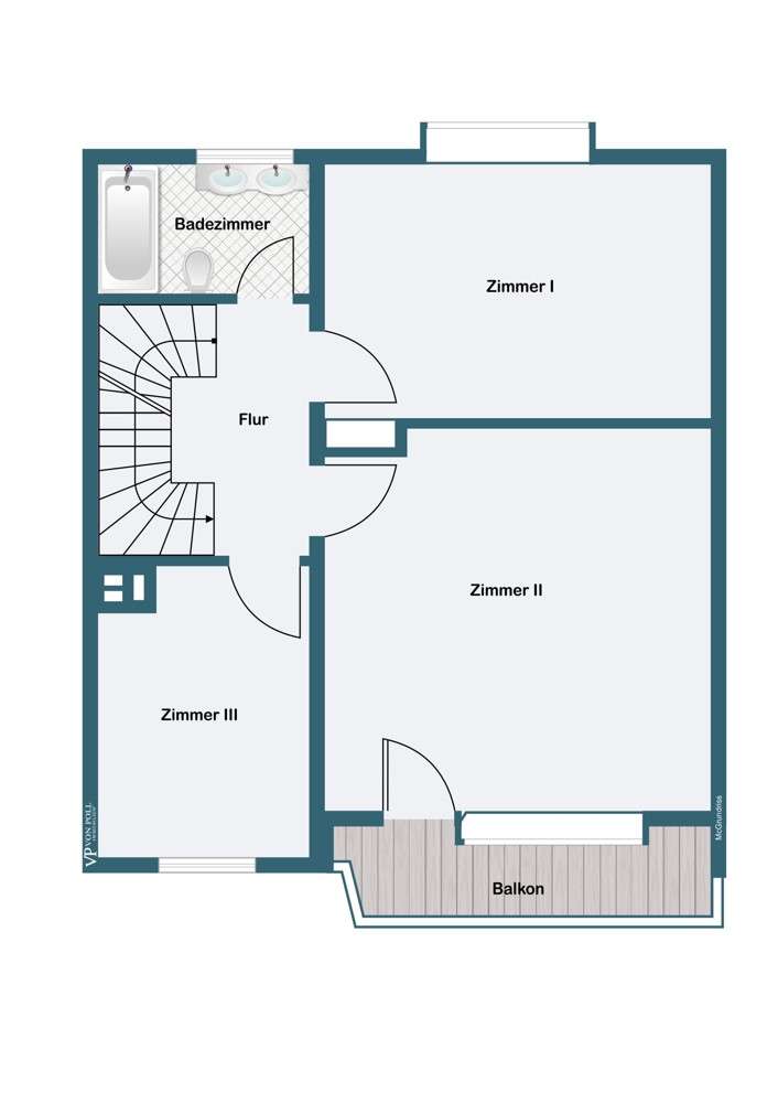
Eine massive, dekorative Holztreppe aus dem Ursprungsbaujahr führt in das erste Obergeschoss mit zwei großen und einem kleinen Schlafzimmer sowie einem Tageslicht-Duschbad. Eins der Schlafzimmer hat Zugang auf einen Balkon mit Gartenausrichtung.
Das ausgebaute Dachgeschoss mit großen Gauben bietet zwei ineinander übergehende Zimmer, ein Tageslicht-Duschbad und einen kleinen Raum, der als Ankleide- oder Arbeitszimmer nutzbar ist.
Das Haus ist voll unterkellert und verfügt neben einer Waschküche mit Außenzugang über drei weitere Kellerräume.
Der große Garten ist nach Süd-West ausgerichtet und bietet Freiraum zum Spielen für die Kinder und entspannte Stunden auf der Sonnenterrasse in angenehmer Privatsphäre.
Das Haus steht leer und ist ab sofort verfügbar.
Reihenhaus mit großem Garten im Dichterviertel
60431 Frankfurt am Main
Die vollständige Adresse der Immobilie erhalten Sie vom Anbieter.
Auf Karte anzeigen
Die vollständige Adresse der Immobilie erhalten Sie vom Anbieter.
Finanzierungszertifikat
In nur zwei Minuten zu Ihrem persönlichen Finanzierungszertifkat.
Infos
| Haustyp | Reihenmittelhaus |
|---|---|
| Etagenzahl | 3 |
| Wohnfläche ca. | 135 m2 |
| Nutzfläche | 49,89 m2 |
| Grundstücksfläche | 250 m2 |
| Zimmer | 6,5 |
| Schlafzimmer | 4 |
| Badezimmer | 2 |
Kosten
| Kaufpreis |
1.250.000 € |
|---|---|
| Provision |
Käuferprovision beträgt 3,57 % (inkl. MwSt.) des beurkundeten Kaufpreises |
Finanzierungsrechner:
Kaufpreis:
600.000 €
Eigenkapital:
600.000 €
Monatliche Rate
0 €
Effektiver Jahreszins
0 %
Sollzinsbindung
10 Jahre
Bausubstanz & Energieausweis
| Baujahr | 1957 |
|---|---|
| Letzte Sanierung | 2023 |
| Bauphase | Haus fertig gestellt |
| Objektzustand | Modernisiert |
| Qualität der Austattung | Normal |
| Heizungsart | Zentralheizung |
| Wesentliche Energieträger | Gas |
| Energieausweis | liegt vor |
| Energieausweistyp | Bedarfsausweis |
| Energieverbrauchskennwert | 161,2 kWh/(m²*a) |
| Energieeffizienzklasse | F |
161,2
kWh/(m²*a)
Energieeffizienzklasse F
- A+
- A
- B
- C
- D
- E
- F
- G
- H
- 0
- 25
- 50
- 75
- 100
- 125
- 150
- 175
- 200
- 225
- >250
Beschreibung des Objekts
Ausstattung
- Kunststofffenster
- Elektrische Rollläden
- Parkett
- Laminat
- Fliesen
- Zwei Tageslichtbäder
- Ein Tageslicht-Gäste-WC
- Balkon
- Terrasse
- Sonnen-Markise
- Außenzugang vom Keller zum Garten
- Neues Rücklaufventil im Keller ( 2023)
- Neue Buderus - Gas - Heizung ( 2023)
Lage
Das im Nordwesten Frankfurts gelegene Eschersheim zählt zu den begehrten, citynahen Wohnquartieren der Mainmetropole. Südlich davon, rund um die U-Bahn-Station „Weißer Stein“, finden sich sanierte Altbauten sowie eine aufgelockerte Villenbebauung, die harmonisch in das renommierte Dichterviertel übergeht.
Das Dichterviertel zählt zu den exklusivsten und gefragtesten Wohnlagen Frankfurts. Eingebettet zwischen Dornbusch, Hügelstraße, Raimundstraße und der Eschersheimer Landstraße vereint diese Lage ruhiges Wohnen mit unmittelbarer Stadtnähe – eine Kombination, die sie besonders attraktiv macht. Geprägt wird das Viertel von einer eleganten Architektur: Stilvolle Altbauvillen, gepflegte Ein- bis Dreifamilienhäuser, kleinere Mehrfamilienhäuser sowie hochwertige Neubauten prägen das Straßenbild. Viele der Anwesen verfügen über großzügige, eingewachsene Gärten, die eine grüne Refugium mitten in der Stadt schaffen.
Besonders reizvoll sind die kleinen Seitenstraßen, von denen einige mit historischem Kopfsteinpflaster versehen sind. Sie verleihen dem Viertel eine charmante Atmosphäre und erinnern an die elegante Wohnkultur der Jahrhundertwende. Die Straßennamen, die berühmten Dichtern gewidmet sind, verleihen dem Viertel zusätzlich eine niveauvolle, kulturell geprägte Note.
Für den täglichen Bedarf ist bestens gesorgt: Supermärkte, Einzelhandel, ein beliebter Wochenmarkt sowie vielfältige Dienstleistungsangebote rund um den Dornbusch stehen für eine hohe Lebensqualität. Auch Schulen und Kindergärten befinden sich in bequemer Reichweite.
Die zentrale Lage und die ausgezeichnete Verkehrsanbindung unterstreichen den hohen Wohnwert des Viertels.: Die U-Bahn-Haltestelle „Hügelstraße“ mit den U-Bahnlinien U1, U2, U3 und U8 sowie mehrere Buslinien sorgen für eine schnelle Anbindung an das gesamte Stadtgebiet. Die Autobahnen A66 und A661 sind in wenigen Minuten erreichbar, ebenso wie die Frankfurter Innenstadt, das Bankenviertel, der Hauptbahnhof und der Flughafen – ideal für Berufspendler und Vielreisende.
Sonstige Angaben
GELDWÄSCHE: Als Immobilienmaklerunternehmen ist die von Poll Immobilien GmbH nach § 2 Abs. 1 Nr. 14 und § 11 Abs. 1, 2 Geldwäschegesetz (GwG) dazu verpflichtet, bei der Begründung einer Geschäftsbeziehung die Identität des Vertragspartners festzustellen und zu überprüfen, bzw. sobald ein ernsthaftes Interesse an der Durchführung des Immobilienkaufvertrages besteht. Hierzu ist es erforderlich, dass wir nach § 11 Abs. 4 GwG die relevanten Daten Ihres Personalausweises festhalten (wenn Sie als natürliche Person handeln) – beispielsweise mittels einer Kopie. Bei einer juristischen Person benötigen wir eine Kopie des Handelsregisterauszugs, aus welchem der wirtschaftlich Berechtigte hervorgeht. Das Geldwäschegesetz sieht vor, dass der Makler die Kopien bzw. Unterlagen fünf Jahre aufbewahren muss. Als unser Vertragspartner haben Sie auch eine Mitwirkungspflicht nach § 11 Abs. 6 GwG.
HAFTUNG: Wir weisen darauf hin, dass die von uns weitergegebenen Objektinformationen, Unterlagen, Pläne etc. vom Verkäufer bzw. Vermieter stammen. Eine Haftung für die Richtigkeit oder Vollständigkeit der Angaben übernehmen wir daher nicht. Es obliegt daher unseren Kunden, die darin enthaltenen Objektinformationen und Angaben auf ihre Richtigkeit hin zu überprüfen. Alle Immobilienangebote sind freibleibend und vorbehaltlich Irrtümer, Zwischenverkauf- und Vermietung oder sonstiger Zwischenverwertung.
UNSER SERVICE FÜR SIE ALS EIGENTÜMER:
Planen Sie den Verkauf oder die Vermietung Ihrer Immobilie, so ist es für Sie wichtig, deren Marktwert zu kennen. Lassen Sie kostenfrei und unverbindlich den aktuellen Wert Ihrer Immobilie professionell durch einen unserer Immobilienspezialisten einschätzen. Unser bundesweites und internationales Netzwerk ermöglicht es uns, Verkäufer bzw. Vermieter und Interessenten bestmöglich zusammenzuführen.
Grundriss
Erdgeschoss
>
>
1. Obergeschoss
>
>
Dachgeschoss
>
>
Untergeschoss
>
>
Adresse
60431 Frankfurt am Main
Interessante Orte
Preis- und Lageinformationen
Preistrend für Bestandsimmobilien in Dornbusch