In einer der begehrtesten Wohnlagen von Dreieich-Götzenhain präsentiert sich diese moderne Doppelhaushälfte als ein Zuhause von außergewöhnlicher Qualität. Auf einem 315 m² großen Grundstück gelegen, bietet das Haus eine Wohnfläche von rund 198 m² sowie zusätzliche ca. 113 m² Nutzfläche (inkl. Garage) mit einigen Räumen mit wohnlichem Charakter und einem weiteren vollwertigen Bad im Souterrain (ca. 32 m2).
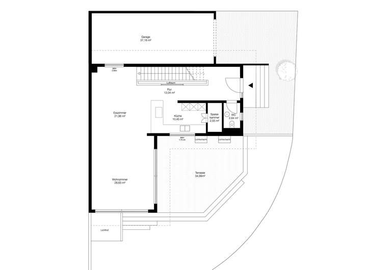
Die luxuriöse Doppelhaushälfte beeindruckt durch eine äußerst durchdachte Grundrissgestaltung, die Großzügigkeit, Licht und moderne Wohnqualität harmonisch miteinander verbindet. Im Erdgeschoss empfängt Sie ein stilvoll gestalteter Eingangsbereich mit angrenzendem Gäste-WC. Der weitläufige Wohn- und Essbereich öffnet sich mit seinen bodentiefen Fensterfronten zur großen Terrasse und dem höherliegenden Garten. Die offene Küche – ergänzt um eine geschickt integrierte Speisekammer – fügt sich elegant in den Wohnraum ein und bildet gemeinsam mit dem Essbereich das kommunikative Herz des Hauses.
Über den lichtdurchfluteten Treppenaufgang gelangen Sie ins Obergeschoss, das den privaten Wohnbereich beherbergt. Zwei großzügige Kinder- bzw. Arbeitszimmer, ein hochwertig ausgestattetes Kinderbad sowie ein eindrucksvoller Elternbereich mit Schlafzimmer, innenliegender Ankleide und luxuriösem En-Suite-Bad bieten ideale Rückzugsorte. Die klare Raumstruktur und die edlen Materialien schaffen ein Ambiente, das gleichermaßen modern und behaglich wirkt.
Das Souterrain beeindruckt mit einer für Untergeschosse außergewöhnlichen Raumhöhe und Helligkeit. Neben dem Flur befinden sich hier der technische Bereich, der Hauswirtschaftsraum, ein zusätzliches Bad sowie ein vielseitig nutzbarer Raum, der sich als Gästezimmer, Hobby- oder Arbeitsbereich eignet und dank großer Fenster zum Lichthof wohnlich belichtet wird. Ein weiterer Raum bietet sich – vorbereitete Anschlüsse inklusive – ideal als Sauna, Ankleide oder zusätzlicher Stauraum an.
Ergänzend dazu verfügt das Haus über eine sehr große Garage mit rund 37 m² Fläche, die nicht nur Platz für Fahrzeuge bietet, sondern auch als funktioneller Nebenraum dient – mit Starkstromanschluss, Wallbox-Vorbereitung und digital steuerbarem Sektionaltor. Ein weiterer Außenstellplatz rundet das Angebot ab und gewährleistet komfortable Parkmöglichkeiten direkt am Haus.
Moderne Haushälfte der Extraklasse
63303 Dreieich
Die vollständige Adresse der Immobilie erhalten Sie vom Anbieter.
Auf Karte anzeigen
Die vollständige Adresse der Immobilie erhalten Sie vom Anbieter.
Finanzierungszertifikat
In nur zwei Minuten zu Ihrem persönlichen Finanzierungszertifkat.
Infos
| Haustyp | Doppelhaushaelfte |
|---|---|
| Etagenzahl | 3 |
| Wohnfläche ca. | 198 m2 |
| Nutzfläche | 113 m2 |
| Grundstücksfläche | 315 m2 |
| Bezugsfrei ab | Ab sofort |
| Zimmer | 6 |
| Schlafzimmer | 3 |
| Badezimmer | 3 |
| Garage/Stellplatz | Garage |
| Anzahl Garage/Stellplatz | 2 |
Kosten
| Kaufpreis |
1.845.000 € |
|---|---|
| Provision |
3,57 % inkl. MwSt. des protokollierten Kaufpreises Die Provision in Höhe von 3,57 % versteht sich inkl. MwSt. und wird fällig bei Unterzeichnung des Kaufvertrages. Zahlbar durch den Käufer. |
Finanzierungsrechner:
Kaufpreis:
600.000 €
Eigenkapital:
600.000 €
Monatliche Rate
0 €
Effektiver Jahreszins
0 %
Sollzinsbindung
10 Jahre
Bausubstanz & Energieausweis
| Baujahr | 2024 |
|---|---|
| Bauphase | Haus fertig gestellt |
| Objektzustand | Neuwertig |
| Qualität der Austattung | Luxus |
| Heizungsart | Wärmepumpe |
| Wesentliche Energieträger | Strom |
| Energieausweis | liegt vor |
| Energieausweistyp | Bedarfsausweis |
| Energieverbrauchskennwert | 45,6 kWh/(m²*a) |
| Energieeffizienzklasse | A+ |
45,6
kWh/(m²*a)
Energieeffizienzklasse A+
- A+
- A
- B
- C
- D
- E
- F
- G
- H
- 0
- 25
- 50
- 75
- 100
- 125
- 150
- 175
- 200
- 225
- >250
Beschreibung des Objekts
Ausstattung
Technik & Gebäude:
- Luft/Wasser-Wärmepumpe (Wolf)
- Fußbodenheizung, raumweise steuerbar
- PV-Anlage (ca. 8,6 kWp) mit 20 Elementen, jeweils eigenem Wechselrichter
- Batteriespeicher (ca. 10 kWh)
- Vorbereitung für E-Ladestation, Anschluss an PV-Speicher
- SmartHome-Steuerung (Jalousien, Heizung, Licht, Tür & Videoüberwachung, Alarmanlage)
- Kameraüberwachung mit Bewegungserkennung
- Video-Türsprechanlage HIKVISION mit Fingerprint und Kartensystem
- Überwachungsbildschirme auf jeder Etage
- Alarmanlage (Hüllschutz)
- Klimaanlagen im Wohnzimmer und Elternschlafzimmer (Mitsubishi, deckengleich)
- Netzwerkverkabelung und WLAN-Access-Points je Etage
- Entkalkungsanlage für Wasser
- Moderne Bauweise: KS-Mauerwerk, 20–30 cm
- Dämmung, Betondecken, hochwertiger Dachaufbau
Garten & Außenbereich:
- Neu angelegter Rollrasen
- Rasenmähroboter (ECOVACS, kartierend)
- Beregnungsanlage (Hunter)
- Großzügige Terrasse, nahtloser Übergang Innen/Außen
- Beleuchteter Deckenüberstand mit LED
- Vorbereitung für Außenküche
- Aufwendige Außenbeleuchtung
- Garten höher als Straßenniveau
- Großer Olivenbaum mit Wurzelheizung und automatischer Bewässerung
Garage & Stellplätze:
- Sehr große Garage (ca. 37 m²)
- Elektrisches Sektionaltor (Fernbedienung &
Smartphone)
- Starkstromanschluss
- Vorbereitung für Wallbox (PV-Anbindung)
- Weiterer Außenstellplatz
Ausstattung innen:
- Dreifach verglaste Fenster, Außen-Alu, Profile Rehau
- Großformatige Schüco-Alu-Schiebetüranlage
- Außenjalousien aus Aluminium
- Hochwertiger, drehbarer FOCUS-Designkamin
- Hochwertige Innentüren, stumpf einschlagend, verdeckte Scharniere, matt schwarz (KTM bod’or, ca. 2,22 m Höhe)
- Umfangreiche dimmbare LED-Deckenbeleuchtung
- LED-Stufenbeleuchtung in den Treppenwangen
- Glatt gespachtelte und geschliffene Wände
Bodenbeläge:
- EG: Großformatfliesen (80 × 80 cm), Schieferoptik
- Terrasse: gleiche Optik, rutschhemmend
- OG: Dielenboden, geräucherte Eiche, 3-fach verleimt
- Treppe OG: Massivholz Eiche
- Treppe Souterrain: hochwertige Fliesen, Kanten auf Gehrung
- Souterrain/Keller: durchgängig gefliest
Bäder & Sanitär:
- Gäste-WC: Naturstein-Säulenwaschbecken, Kupferarmaturen, flächenbündiger Spiegel, Schieferfliesen
- Elternbad: große Regendusche, hochwertige Armaturen, Doppelwaschbecken, TOTO-Dusch-WC, Natursteinoptik
- Kinderbad: Dusche mit Regenschauer, Whirlwanne, hochwertige Fliesen und LED-Spiegelschrank
- Gästebad im Souterrain: deckenhoch gefliest, moderne Ausstattung
Lage
Das Objekt liegt in Götzenhain – einem begehrten Dreieicher Stadtteil in guter Lage, südlich von Frankfurt. Kindergarten und Grundschule sind nur wenige Gehminuten entfernt, die weiterführende Gesamtschule Weibelfeldschule, das Gymnasium Ricarda-Huch-Schule sowie die renommierte Strothoff International School mit integriertem Kindergarten sind von hier aus gut mit dem Fahrrad oder Auto erreichbar.
Geschäfte für den täglichen Bedarf, Restaurants und eine Auswahl von Ärzten finden Sie in Fußweite direkt in Götzenhain. Die Dreieich-Bahn erreichen Sie in wenigen Minuten mit dem Fahrrad. Sie führt im Halbstundentakt nach Buchschlag, von wo aus die S-Bahnen nach Frankfurt und Darmstadt verkehren.
Die Frankfurter Innenstadt erreichen Sie in rund 25 Autominuten, die Jugendstilstadt Darmstadt ebenso. Die A 661 liegt in ca. vier Kilometern Entfernung und die
A 3 ist nur unwesentlich weiter entfernt. Für die Freizeit haben Sie in direkter Umgebung wunderbare Felder, die zum Spazieren, Joggen und Radfahren einladen. Diverse Vereine und der Golfclub Neuhof sind in unmittelbarer Nähe.
Sonstige Angaben
Alle Angaben stammen vom Eigentümer. Es gibt keine Gewähr für die Vollständigkeit und Richtigkeit der Angaben. Es gelten unsere AGB.
Adresse
63303 Dreieich
Interessante Orte
Preis- und Lageinformationen
Preistrend für Bestandsimmobilien in Dreieich