Dieses große Einfamilienhaus in Split-Level-Bauweise befindet sich in einer verkehrsberuhigten Anliegerstraße und ist perfekt geeignet für Familien oder Paare, die ein ruhiges und familiäres Umfeld schätzen.
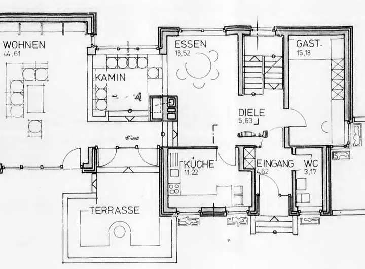
Im Eingangsbereich des Erdgeschosses erwartet Sie ein großzügiger Wohnbereich mit abgeteilter Essecke. Von hier eröffnet sich ein faszinierender Blick in das tiefergelegene große Wohnzimmer. Einige Treppenstufen hinab gelangen Sie in den hellen Wohnraum, von dem aus die schöne Terrasse und der Garten betreten werden kann. In einer separaten, etwas niedriger gelegenen gemütlichem Sitzecke mit Kamin, laden bequeme Polster dazu ein, gemeinsam mit Freunden und Familie entspannte Stunden zu genießen. Ein weiteres Zimmer kann individuell als Gäste- oder Arbeitszimmer hergerichtet werden.
Die praktisch geschnittene Küche bietet genügend Platz, um auch hier mit der Familie eine Mahlzeit einzunehmen. Ein Gäste-WC im Erdgeschoss ergänzt das Raumangebot und sorgt für zusätzlichen Komfort.
Das Obergeschoss bietet zwei komfortable Schlafzimmer, die jeweils über ein eigenes Badezimmer mit Dusche oder Badewanne verfügen. Das größere der beiden Zimmer wird zusätzlich durch einen Ankleideraum erweitert. Hier findet jeder seinen persönlichen Rückzugsort und maximal gewahrte Privatsphäre.
Das Haus ist teilweise unterkellert. Im Kellergeschoss befinden sich die Haustechnik und Vorratsräume, ideal zur Lagerung von Gegenständen oder Vorräten. Ein Badezimmer mit Dusche und WC vervollständigt den Keller.
Auf der teilweise überdachten und gepflasterten Terrasse können Sie die Sommerabende genießen und den Blick über den gepflegten Garten schweifen lassen. In einem Gartenhaus finden alle Arbeitsgeräte und Werkzeuge Ihren Platz, ebenso der Holzvorrat für den Kamin.
Auf der gepflasterten Auffahrt mit Doppelgarage finden mehrere Pkws ausreichend Platz.
Dieses Haus ist perfekt für Familien oder Paare, die eine gepflegte Immobilie mit durchdachter Raumaufteilung und eigenem Garten schätzen.
MGK bietet Schloss Ricklingen: Einfamilienhaus mit außergewöhnlichem Grundriss
30826 Garbsen
Die vollständige Adresse der Immobilie erhalten Sie vom Anbieter.
Auf Karte anzeigen
Die vollständige Adresse der Immobilie erhalten Sie vom Anbieter.
Finanzierungszertifikat
In nur zwei Minuten zu Ihrem persönlichen Finanzierungszertifkat.
Infos
| Haustyp | Einfamilienhaus |
|---|---|
| Etagenzahl | 2 |
| Wohnfläche ca. | 159 m2 |
| Grundstücksfläche | 798 m2 |
| Bezugsfrei ab | nach Absprache |
| Zimmer | 4 |
| Schlafzimmer | 3 |
| Badezimmer | 3 |
| Garage/Stellplatz | Garage |
Kosten
| Kaufpreis |
549.900 € |
|---|---|
| Provision |
3,00 % Bei Abschluss eines wirksamen Kaufvertrages verpflichtet sich der/die Interessent*in/Käufer*in an die Firma MGK Immobilien GmbH eine Courtage in Höhe von 3 % inkl. Mehrwertsteuer bezogen auf den notariell beurkundeten Kaufpreis zu zahlen. |
Finanzierungsrechner:
Kaufpreis:
600.000 €
Eigenkapital:
600.000 €
Monatliche Rate
0 €
Effektiver Jahreszins
0 %
Sollzinsbindung
10 Jahre
Bausubstanz & Energieausweis
| Baujahr | 1982 |
|---|---|
| Objektzustand | Gepflegt |
| Heizungsart | Gas-Heizung |
| Wesentliche Energieträger | Gas |
| Energieausweis | liegt vor |
| Energieausweistyp | Verbrauchsausweis |
| Energieverbrauchskennwert | 148,1 kWh/(m²*a) |
| Energieeffizienzklasse | E |
148,1
kWh/(m²*a)
Energieeffizienzklasse E
- A+
- A
- B
- C
- D
- E
- F
- G
- H
- 0
- 25
- 50
- 75
- 100
- 125
- 150
- 175
- 200
- 225
- >250
Beschreibung des Objekts
Ausstattung
Erdgeschoss
– offener Wohn-/Essbereich
– Kamin
– Küche
– 1 Zimmer zur freien Verfügung
– Gäste-WC mit Fenster
– Rollläden
Obergeschoss:
– 2 Schlafzimmer mit seperatem Zugang zu
– 2 Tageslichtbäder mit Dusche
– 1 Ankleideraum
Keller:
– 4 Kellerräume
– Waschmaschinenanschluss
– 1 Bad mit Dusche und WC
Doppelgarage mit Abstellraum
Lage
Die Immobilie befindet sich in Schloß Ricklingen, einem ruhigen und familienfreundlichen Ortsteil der Stadt Garbsen, rund 20 Kilometer westlich der niedersächsischen Landeshauptstadt Hannover. Mit aktuell etwa 3.000 Einwohnern und weiterem Wachstum durch neue Wohngebiete erfreut sich der Stadtteil wachsender Beliebtheit.
Schloß Ricklingen bietet eine hohe Lebensqualität mit viel Grün, Spielplätzen und einer naturnahen Umgebung. Für Familien stehen ein Kindergarten und eine Grundschule direkt im Ort zur Verfügung; weiterführende Schulen befinden sich im nahegelegenen Garbsen und Wunstorf.
Einkaufsmöglichkeiten für den täglichen Bedarf sowie ärztliche Versorgung sind in der Umgebung vorhanden. Größere Supermärkte, Apotheken und weitere Dienstleister lassen sich schnell mit dem Auto oder dem Fahrrad erreichen.
Für Freizeit und Sport bietet der Ort ein vielfältiges Angebot: zwei Fußballplätze, eine Tennisanlage, ein Skatepark mit angrenzendem Bolzplatz sowie zahlreiche Feld- und Waldwege zum Spazierengehen, Joggen oder Radfahren.
Die verkehrstechnische Anbindung ist ausgezeichnet: Über die Autobahn A2, die Bundesstraßen B6 und B441 sowie mit öffentlichen Verkehrsmitteln (S-Bahn, Regionalexpress, Buslinien und Stadtbahn) sind Garbsen, Wunstorf und Hannover bequem erreichbar. Die Kombination aus naturnahem Wohnen und guter Infrastruktur macht Schloß Ricklingen zu einem attraktiven Wohnort mit Entwicklungspotenzial.
Sonstige Angaben
Gerne senden wir Ihnen ein interaktives Exposé zu, bitte kontaktieren Sie uns dazu über den „Kontaktknopf“ in der Immobilienanzeige.
Seit dem 23.12.2020 müssen zum Schutz von Verbraucher*innen provisionspflichtige Makler*innenverträge mit Verbraucher*innen für Einfamilienhäuser und Eigentumswohnungen immer in Textform geschlossen werden. Daher können die Besichtigungstermine oder der Versand von über unser Exposé hinausgehenden Unterlagen erst nach Abschluss eines Vertrages stattfinden.
Wenn Sie also die Lage der Immobilie im Interaktiven Exposé geprüft haben („Adresse anzeigen“ anklicken und bestätigen), so genügt eine kurze E-Mail oder ein Anruf mit der Mitteilung, dass Sie die Immobilie gerne besichtigen würden. Daraufhin schicken wir Ihnen einen „Makler*innenauftrag“ als PDF per Mail zu, den Sie uns dann unterschrieben zurücksenden können (als PDF, Foto, Fax … ). Danach können sie wie gewohnt die Immobilie besichtigen und den Makler*innenvertrag einfach kostenfrei kündigen, wenn Ihnen die Immobilie nicht gefällt.
Sollten Sie ein personalisiertes Finanzierungsangebot wünschen, so hilft Ihnen die Finanzierungsabteilung gern professionell weiter. Die MGK bietet Ihnen mit Zugriff auf über 400 Banken immer die besten und auf Ihre Bedürfnisse zugeschnittenen Konditionen. Rufen Sie uns doch einfach an, dann können wir für Sie kurzfristig und kostenfrei einen Beratungstermin vereinbaren.
Wenn wir von Kund*innen eine Kontakt-Anfrage über ein Online-Portal erhalten, so verstehen wir dieses als Einwilligungserklärung. Wir gehen dann davon aus, dass diese Kund*innen über die von ihnen bereitgestellten Kommunikationskanäle von uns kontaktiert werden möchten und dass diese Kontaktdaten von uns zum Zweck der Bereitstellung von Informationen, die Immobilie betreffend, genutzt und gespeichert werden dürfen. Diese Einwilligung kann jederzeit ohne Angabe von Gründen – jedoch nur für die Zukunft – widerrufen werden. Die Rechtmäßigkeit der aufgrund der Einwilligung bis zum Widerruf erfolgten Datenverarbeitung bleibt davon unberührt. Die Rechte auf Auskunft, Berichtigung, Löschung oder Sperrung der personenbezogenen Daten können uns gegenüber jederzeit geltend gemacht werden.
Die Angaben in diesem Exposé haben wir von unseren Auftraggeber*innen erhalten. Wir übernehmen keine Gewähr für die Richtigkeit dieser Angaben. Eine Haftung für diese Angaben ist somit ausgeschlossen.
Grundriss
EG Grundriss
>
>
OG Grundriss
>
>
Keller Grundriss
>
>
Adresse
30826 Garbsen
Interessante Orte
Preis- und Lageinformationen
Preistrend für Bestandsimmobilien in Garbsen