Dieses charmante Reihenendhaus aus den Jahren 1965/66 präsentiert sich als ein liebevoll gepflegtes Zuhause mit viel Charakter und Entwicklungspotenzial. Auf rund ca. 112 m² Wohnfläche erstrecken sich fünf gut geschnittene Zimmer über drei Wohnebenen – ideal für Familien, Paare oder alle, die ein behagliches Wohnumfeld mit solider Bauqualität schätzen. Das rund 200 m² große Grundstück wird durch ein zusätzliches, im Grundbuch separat eingetragenes Gartengrundstück mit weiteren ca. 182 m² ergänzt – ein außergewöhnliches Plus, das vielfältige Nutzungsmöglichkeiten bietet. Ob als grüne Oase, Spielbereich, Nutzgarten oder Rückzugsort für entspannte Stunden: Die erweiterte Gartenfläche verleiht dem Objekt eine besondere Großzügigkeit. Eine eigene Garage mit angrenzendem Stellplatz sorgt zudem für komfortable Parkmöglichkeiten. **Das Garagendach eignet sich außerdem ideal für die Installation einer PV-Anlage. Im Erdgeschoss heißt Sie ein einladender Eingangsbereich willkommen, der in die Küche und den lichtdurchfluteten Wohnbereich führt. Große Fensterfronten schaffen eine angenehme Wohnatmosphäre und eröffnen den Blick auf die Terrasse sowie den liebevoll gestalteten Garten. Dieser geschützte Außenbereich lädt zum Entspannen, Genießen und geselligen Beisammensein ein. Ein Gäste-WC ergänzt die Ebene. Das Obergeschoss beherbergt zwei gut proportionierte Zimmer, die sich flexibel als Schlaf-, Kinder- oder Arbeitszimmer nutzen lassen. Ein helles Tageslichtbad rundet das Raumangebot dieser Etage ab. Das ausgebaute Dachgeschoss überzeugt mit zwei weiteren Räumen, die vielfältige Nutzungsspielräume bieten – perfekt für Homeoffice, Hobbys oder als gemütlicher Gästebereich. Das Haus ist vollständig unterkellert und stellt hier praktische Nutzflächen zur Verfügung, darunter ein großzügiger Hobby- und Abstellraum sowie der Heizungsbereich mit Wirtschaftsraum. Die moderne Buderus-Gasheizung aus dem Jahr 2022 sorgt für eine effiziente und zuverlässige Wärmeversorgung. Die zwischen 1996 und 2007 durchgeführten Modernisierungen – darunter Fenster, Elektrik, Sanitär und Innenausbau – unterstreichen den gepflegten Gesamtzustand des Hauses. Dieses Reihenendhaus vereint Wohnkomfort, Flexibilität und ein außergewöhnliches Gartenangebot – ein ideales Zuhause für Menschen, die Wert auf Qualität, Ruhe und ein harmonisches Wohnumfeld legen. Überzeugen Sie sich selbst von den Vorzügen dieser Immobilie und sichern Sie sich noch heute Ihren individuellen Besichtigungstermin.
Familienglück in Lehrte: Reihenendhaus mit vier Schlafzimmern, schönem Garten und Garage
31275 Lehrte
Die vollständige Adresse der Immobilie erhalten Sie vom Anbieter.
Auf Karte anzeigen
Die vollständige Adresse der Immobilie erhalten Sie vom Anbieter.
Finanzierungszertifikat
In nur zwei Minuten zu Ihrem persönlichen Finanzierungszertifkat.
Infos
| Haustyp | Reiheneckhaus |
|---|---|
| Etagenzahl | 3 |
| Wohnfläche ca. | 111 m2 |
| Nutzfläche | 39,91 m2 |
| Grundstücksfläche | 382 m2 |
| Bezugsfrei ab | nach Absprache |
| Zimmer | 5 |
| Schlafzimmer | 4 |
| Badezimmer | 2 |
| Anzahl Garage/Stellplatz | 2 |
Kosten
| Kaufpreis |
370.000 € |
|---|---|
| Provision |
siehe Sonstiges |
Finanzierungsrechner:
Kaufpreis:
600.000 €
Eigenkapital:
600.000 €
Monatliche Rate
0 €
Effektiver Jahreszins
0 %
Sollzinsbindung
10 Jahre
Bausubstanz & Energieausweis
| Baujahr | 1966 |
|---|---|
| Letzte Sanierung | 2022 |
| Objektzustand | Gepflegt |
| Wesentliche Energieträger | Gas |
| Energieausweis | liegt vor |
| Energieausweistyp | Bedarfsausweis |
| Energieverbrauchskennwert | 145,3 kWh/(m²*a) |
| Energieeffizienzklasse | E |
145,3
kWh/(m²*a)
Energieeffizienzklasse E
- A+
- A
- B
- C
- D
- E
- F
- G
- H
- 0
- 25
- 50
- 75
- 100
- 125
- 150
- 175
- 200
- 225
- >250
Beschreibung des Objekts
Ausstattung
Parkett
Teppich
Fliesen
Vollunterkellert
Lage
Die Immobilie befindet sich in einer der begehrtesten Wohnlagen von Lehrte, einer lebendigen Mittelstadt östlich der Landeshauptstadt Hannover. Lehrte zählt rund 44.000 Einwohner und zeichnet sich durch eine hervorragende Infrastruktur sowie eine exzellente Verkehrsanbindung aus. Der Bahnhof Lehrte gilt als wichtiger Verkehrsknotenpunkt im Großraum Hannover. Regelmäßige S-Bahn- und Regionalzugverbindungen ermöglichen schnelle und komfortable Fahrten in die Innenstadt Hannovers sowie in umliegende Städte und Gemeinden. Auch für Pendler, die auf das Auto angewiesen sind, bietet Lehrte optimale Bedingungen: Die Nähe zum Autobahnkreuz Hannover-Ost sowie mehrere direkte Autobahnanschlüsse garantieren eine schnelle Erreichbarkeit regionaler und überregionaler Ziele. Familien profitieren von einem breiten Bildungsangebot. Zahlreiche Kindertagesstätten, Grundschulen und weiterführende Schulen sind über das gesamte Stadtgebiet verteilt und bequem zu erreichen. Ergänzt wird dies durch ein vielfältiges Angebot an Sport-, Freizeit- und Kulturmöglichkeiten, die Lehrte zu einem attraktiven Wohnstandort für alle Altersgruppen machen. Die Nahversorgung ist hervorragend ausgeprägt: Einkaufsmöglichkeiten, Dienstleistungen und gastronomische Angebote befinden sich in unmittelbarer Umgebung. Gleichzeitig prägen ruhige Wohnquartiere und grüne Bereiche das Stadtbild und schaffen eine angenehme Balance zwischen städtischem Komfort und naturnaher Wohnqualität.
Sonstige Angaben
Der Maklervertrag mit uns kommt durch die Bestätigung der Inanspruchnahme unserer Makler-tätigkeit in Textform zustande. Die Höhe der Courtage richtet sich nach den ab dem 23.12.2020 in Kraft getretenen gesetzlichen Regelungen zur Teilung der Maklercourtage. Hiernach wird die Courtage regelmäßig für beide Parteien (Eigentümer und Käufer) jeweils 3,57% auf den Kaufpreis einschließlich gesetzlicher Umsatzsteuer betragen und ist bei notariellem Vertragsabschluss verdient und fällig. Die Höhe der Bruttocourtage unterliegt einer Anpassung bei Steuersatzänderung. Grunderwerbssteuer, Notar- und Gerichtskosten trägt der Käufer. Wir stehen Ihnen mit weiteren Informationen zum Objekt sowie für Besichtigungen gern zur Verfügung. Bitte nehmen Sie unsere Verbraucherinformationen und die allgemeinen Geschäftsbedingungen, die wir Ihnen nachstehend ebenfalls zur Verfügung stellen, zur Kenntnis. Engel & Völkers Immobilien Deutschland GmbH ist Lizenzpartner der Engel & Völkers Residential GmbH. Hinweise: Alle Angaben sind ohne Gewähr und basieren ausschließlich auf Informationen, die uns von unserem Auftraggeber übermittelt wurden. Wir übernehmen keine Gewähr für die Vollständigkeit, Richtigkeit und Aktualität dieser Angaben. Zwischenverkauf bleibt vor-behalten. Sollte das von uns nachgewiesene Objekt bereits bekannt sein, teilen Sie uns dies bitte unverzüglich mit. Die Weitergabe dieses Exposés an Dritte ohne unsere Zustimmung löst gegebenenfalls Courtage- bzw. Schadensersatzansprüche aus. Im Übrigen gelten unsere all-gemeinen Geschäftsbedingungen.
Grundriss
Grundriss Erdgeschoss
>
>
Grundriss Obergeschoss
>
>
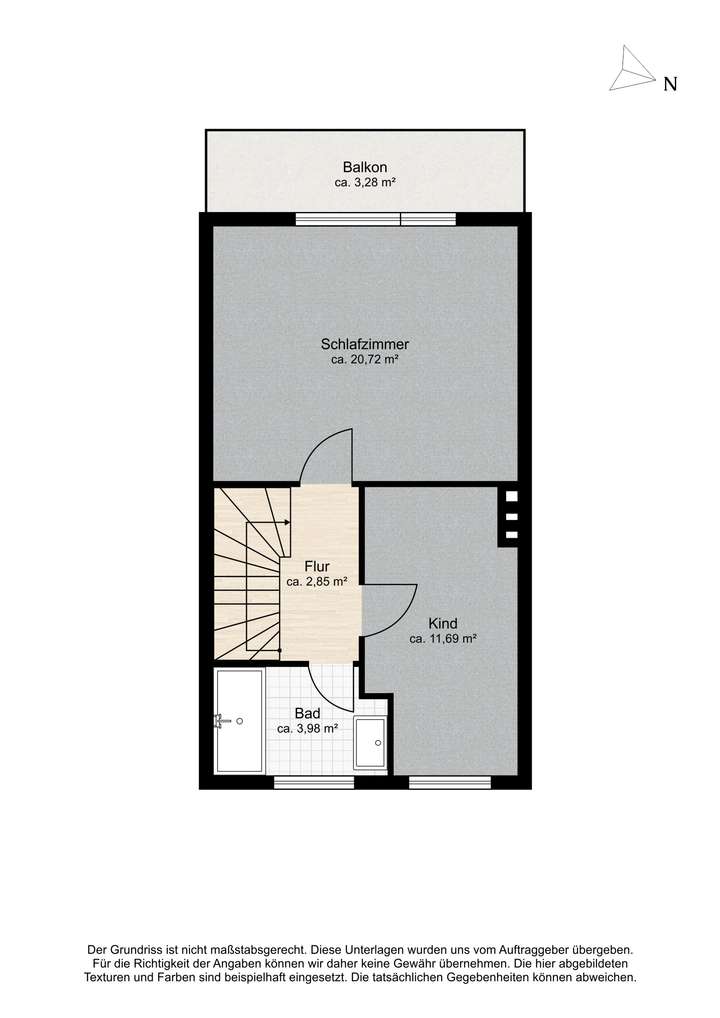
Grundriss Dachgeschoss
>
>
Grundriss Keller
>
>
Adresse
31275 Lehrte
Interessante Orte
Preis- und Lageinformationen
Preistrend für Bestandsimmobilien in Lehrte