Dieses im Jahr 1961 erbaute Einfamilienhaus steht auf einem 540m² großen Grundstück und bietet mit rund 210m² Wohnfläche viel Raum für die ganze Familie. Die ruhige Wohnlage mit guter Nachbarschaft und die Nähe zu Schulen, Kindergärten und Einkaufsmöglichkeiten machen die Immobilie besonders attraktiv für Familien.
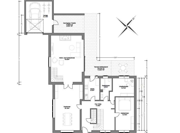
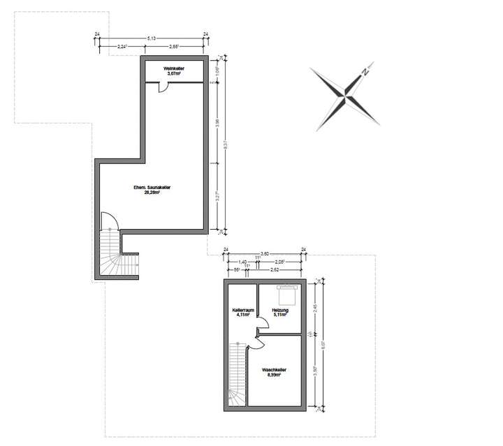
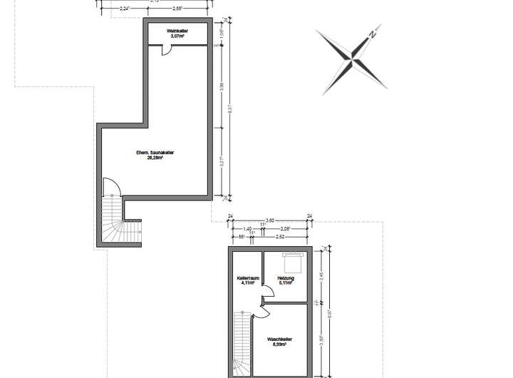
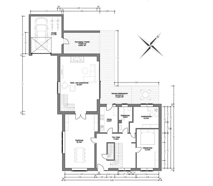
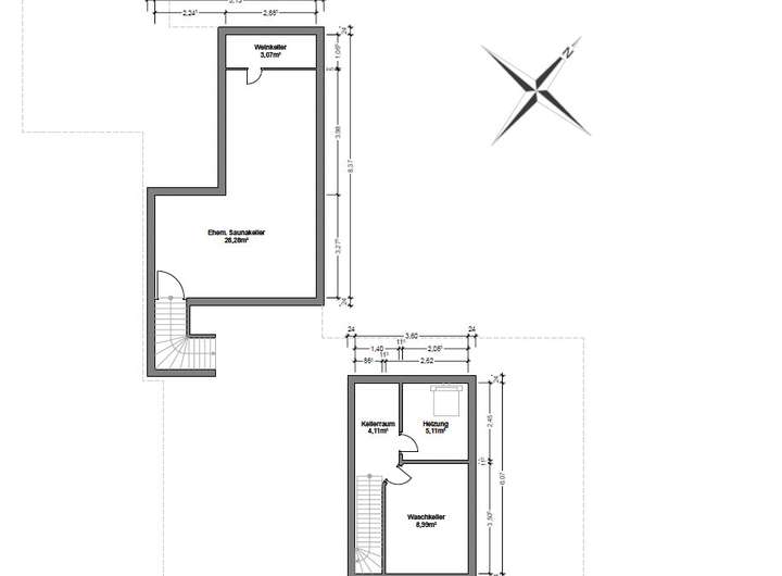
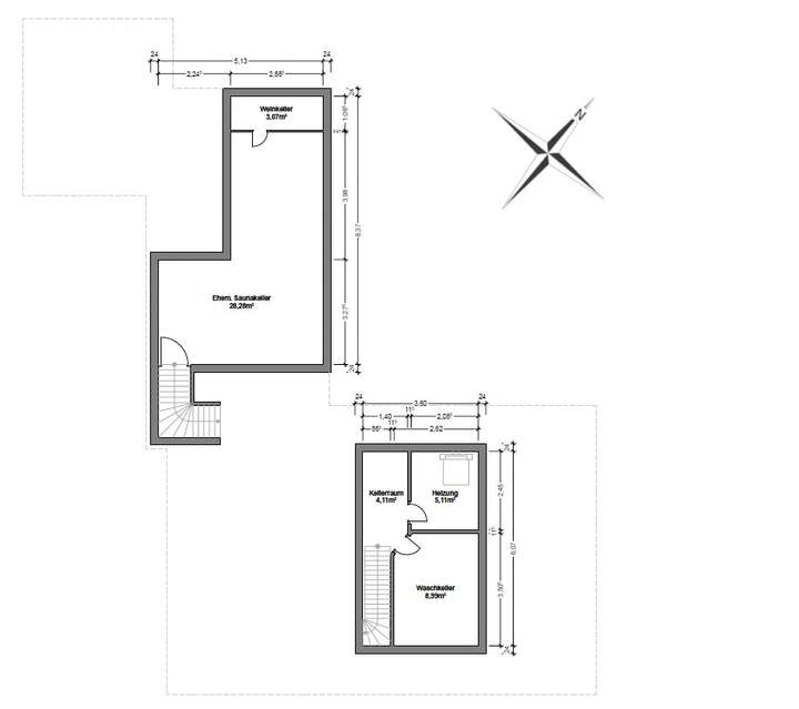
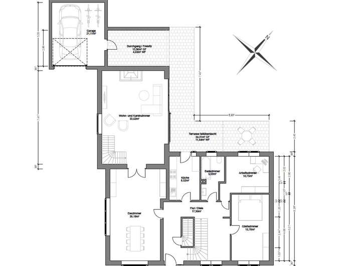
Im Erdgeschoss empfängt Sie ein großzügiger Eingangsbereich. Von hier aus gelangen Sie in das Esszimmer und das angrenzende, teilunterkellerte Wohn- und Kaminzimmer, welches 1976 erweitert wurde. Eine große Fensterfront sorgt für viel Licht und einen schönen Blick in den Garten. Zusätzlich stehen im Erdgeschoss eine Küche, ein Badezimmer mit Wanne, ein Arbeitszimmer sowie ein Schlafzimmer zur Verfügung. Der teilunterkellerte Bereich bietet Platz für Waschmaschine, Heizungsraum und Abstellmöglichkeiten.
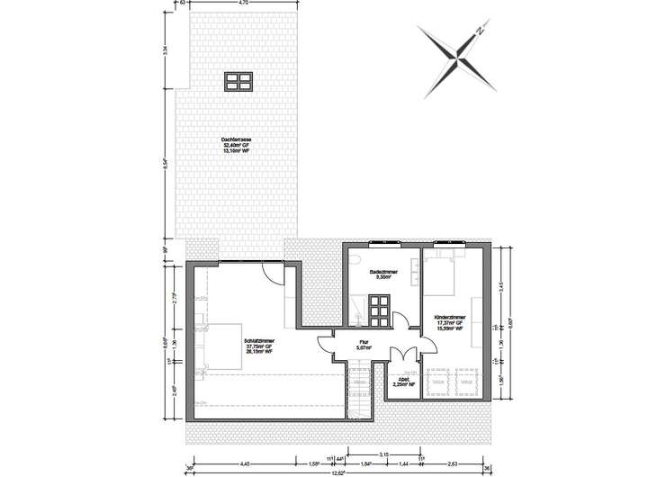
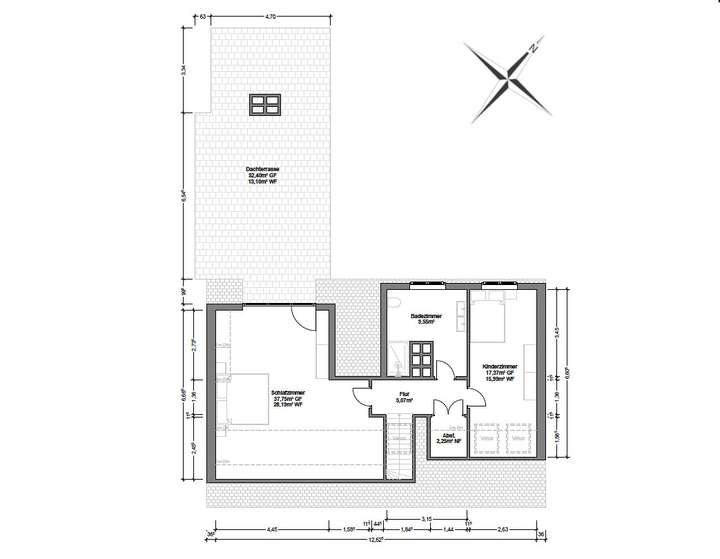
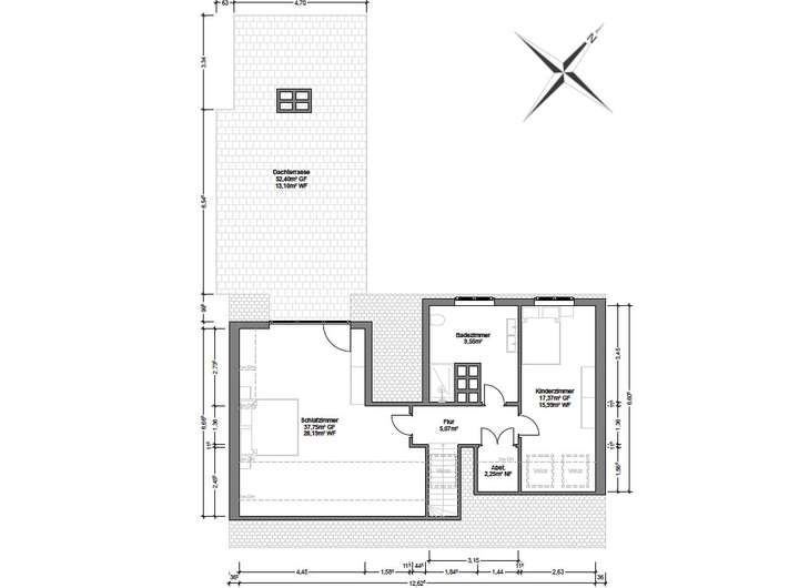
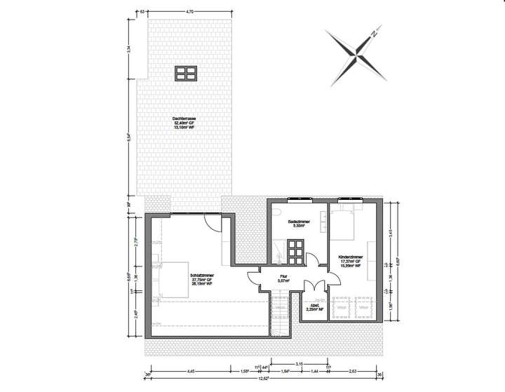
Das Dachgeschoss wurde 1988 aufgestockt und ausgebaut. Es beherbergt zwei weitere Schlafzimmer, ein Duschbad und eine große Dachterrasse – perfekt, um zusätzliche Rückzugsorte für die Familie zu schaffen.
Der Außenbereich überzeugt mit einer pflegeleichten Gartenfläche, zwei überdachten Terrassen sowie einer Garage. So bleibt neben dem Alltag auch Raum für entspannte Stunden im Freien.
Dieses Haus bietet Familien nicht nur viel Platz, sondern auch die Möglichkeit, eigene Wohnideen umzusetzen und ein Zuhause nach den eigenen Vorstellungen zu gestalten.
Delmenhorst-Deichhorst | Großzügiges Einfamilienhaus mit Garage in ruhiger Sackgasse
27753 Delmenhorst
Die vollständige Adresse der Immobilie erhalten Sie vom Anbieter.
Auf Karte anzeigen
Die vollständige Adresse der Immobilie erhalten Sie vom Anbieter.
Finanzierungszertifikat
In nur zwei Minuten zu Ihrem persönlichen Finanzierungszertifkat.
Infos
| Haustyp | Einfamilienhaus |
|---|---|
| Etagenzahl | 2 |
| Wohnfläche ca. | 210 m2 |
| Nutzfläche | 72,92 m2 |
| Grundstücksfläche | 540 m2 |
| Bezugsfrei ab | nach Vereinbarung |
| Zimmer | 6 |
| Schlafzimmer | 4 |
| Badezimmer | 2 |
| Garage/Stellplatz | Garage |
| Anzahl Garage/Stellplatz | 1 |
Kosten
| Kaufpreis |
279.000 € |
|---|---|
| Provision |
3,57% (inkl. MwSt.) vom beurkundeten Kaufpreis (Käuferprovision) |
Finanzierungsrechner:
Kaufpreis:
600.000 €
Eigenkapital:
600.000 €
Monatliche Rate
0 €
Effektiver Jahreszins
0 %
Sollzinsbindung
10 Jahre
Bausubstanz & Energieausweis
| Baujahr | 1961 |
|---|---|
| Objektzustand | Gepflegt |
| Qualität der Austattung | Normal |
| Heizungsart | Zentralheizung |
| Wesentliche Energieträger | Gas |
| Energieausweis | liegt vor |
| Energieausweistyp | Bedarfsausweis |
| Energieverbrauchskennwert | 293,9 kWh/(m²*a) |
| Energieeffizienzklasse | H |
293,9
kWh/(m²*a)
Energieeffizienzklasse H
- A+
- A
- B
- C
- D
- E
- F
- G
- H
- 0
- 25
- 50
- 75
- 100
- 125
- 150
- 175
- 200
- 225
- >250
Beschreibung des Objekts
Ausstattung
+ Brötje-Gasheizung mit Warmwasserzubereitung (2018)
+ Offener Kamin (Außen & Innen)
+ 2-fach verglaste Holzrahmenfenster (teilw. 2000, der Rest älter)
+ 2x Keller jeweils teilunterkellert
+ Sicherungskasten mit Schraubsicherungen im Erdgeschoss und Schaltsicherungen im Obergeschoss, Elektrik voraussichtlich 2- und 3-Adrig
+ Anbau einer Garage (1963)
+ Erweiterung des Wohnhauses um das Wohn- und Kaminzimmer (1976)
+ Umbau, Aufstockung und Ausbau des Dachgeschosses (1988)
+ Einbauküche (1996) mit Gasherd von Gaggenau, Backofen von NEFF u. Bosch-Geschirrspüler
+ 2 Badezimmer (Wannenbad im Erdgeschoss / Duschbad im Obergeschoss)
+ Dachterrasse (Holzkonstruktion muss erneuert werden!)
+ Überdachte Terrasse
Lage
Das Objekt liegt in einer ruhigen, zugleich aber zentral gelegenen Wohngegend von Delmenhorst. Die Nachbarschaft wird durch eine angenehme Mischung aus gepflegten Einfamilienhäusern und kleineren Mehrfamilienhäusern geprägt, was zu einem harmonischen Wohnumfeld beiträgt.
In unmittelbarer Nähe laden Grünflächen und Parks zu Spaziergängen sowie zur Erholung im Freien ein. Die Infrastruktur ist hervorragend: Einkaufsmöglichkeiten für den täglichen Bedarf, Kindergärten, Schulen sowie ärztliche Versorgung befinden sich in bequemer Reichweite und sind teils fußläufig oder mit dem Fahrrad erreichbar.
Durch die sehr gute Verkehrsanbindung lässt sich das Delmenhorster Stadtzentrum in wenigen Minuten erreichen. Auch die nahe gelegene Autobahn ermöglicht eine schnelle Anbindung an Bremen, Oldenburg und weitere Städte der Region. Zudem stehen Bus- und Bahnverbindungen in kurzer Distanz zur Verfügung, was eine hohe Flexibilität im Alltag bietet.
Besonders die gelungene Kombination aus ruhigem Wohnen und zentraler Lage macht diesen Standort gleichermaßen attraktiv für Familien wie auch für Berufspendler.
Sonstige Angaben
Wir weisen darauf hin, dass die von uns weitergegebenen Objektinformationen, Unterlagen, Pläne etc. vom Auftraggeber stammen. Eine Haftung für die Richtigkeit oder Vollständigkeit der Angaben übernehmen wir nicht. Es obliegt daher unseren Kunden, die darin enthaltenen Objektinformationen und Angaben auf ihre Richtigkeit hin zu überprüfen. Alle Immobilienangebote sind freibleibend und vorbehaltlich Irrtümer, Zwischenverkauf- und Vermietung oder sonstiger Zwischenverwertung.
Geldwäsche: Die Rutz Immobilien GmbH ist als Immobilienmaklerunternehmen gemäß § 2 Abs. 1 Nr. 14 und § 11 Abs. 1, 2 des Geldwäschegesetzes (GwG) verpflichtet, die Identität ihrer Vertragspartner zu überprüfen, sobald eine Geschäftsbeziehung entsteht oder ernsthaftes Interesse an einem Immobilienkaufvertrag besteht.
Dafür erfassen wir nach § 11 Abs. 4 GwG die relevanten Daten Ihres Personalausweises (bei natürlichen Personen), beispielsweise durch eine Kopie. Handelt es sich um eine juristische Person, ist ein Handelsregisterauszug erforderlich, aus dem der wirtschaftlich Berechtigte hervorgeht.
Das Geldwäschegesetz verpflichtet uns, diese Unterlagen für einen Zeitraum von fünf Jahren aufzubewahren. Zudem sind Sie als unser Vertragspartner gemäß § 11 Abs. 6 GwG zur Mitwirkung verpflichtet.
Grundriss
Grundriss Erdgeschoss
>
>
Grundriss Dachgeschoss
>
>
Grundriss Kellergeschoss
>
>
Adresse
27753 Delmenhorst
Interessante Orte
Preis- und Lageinformationen
Preistrend für Bestandsimmobilien in Deichhorst