Nutze jetzt Deine einmalige Chance auf Dein Neubauprojekt / Doppelhaushälfte mit Massa Haus direkt an der Helmstedter Str. in Braunschweig.
Freie Gestaltung gewünscht? Massa machts möglich!
Eigenleistung gewünscht? Willkommen bei Massa Haus!
Top- Preis/Leistungsverhältnis gewünscht? Mit einer Kapazität von bis zu 10 gebauten Häusern am Tag bzw. einem Schnitt von ca. 7 Häusern am Tag in 2025 bieten wir Dir als Marktführer ein großes Paket an Inklusivleistungen und einen hohen Standard ohne Aufpreis an!
Finanzierung benötigt?
Gegenüber einem Sanierungsobjekt zahlst Du mit einem Neubau i.d.R. eine deutlich geringere Rate bei gleichem Invest, dabei darfst Du Dir aufgrund der höheren Energieeffizienz eigentlich sogar deutlich mehr Rate leisten. Dieser Effekt wird mit Massa Haus noch sehr viel deutlicher Dank Sonderkonditionen mit Zinsnachlässen bei der Baufinanzierung. Hinzu kommen geringere Grunderwerbnebenkosten, höhere Beleihungswerte (verbessern ebenfalls die Konditionen) und eine höhere Kostensicherheit inkl. Festpreisgarantie auf das Massa Haus. Mit der Massa- Haus Baufinanzierung werden KfW- Programme wie z.B. das Wohneigentumsprogramm wie Eigenkapital gewertet wenn die Beleihung grundsätzlich passt.
Wohneigentum ohne oder mit geringem Eigenkapital? Mit Massa Haus ist das i.d.R. kein Problem*!
Deine Miete ist zu hoch? Sie steigt noch weiter, im Schnitt jährlich um einige Prozentpunkte!
Was Du dagegen tun kannst? Investieren in Dein eigenes Zuhause mit zinssicheren Darlehen (auch über die gesamte Laufzeit möglich), sicher vor Inflation und sofort oder spätestens in einigen Jahren bereits mit Sicherheit günstiger als Deine Miete bei vergleichbarer Wohnungsgröße. Zudem lässt sich das Haus bei Bedarf gewinnbringend weiterverkaufen!
*Grundstücks- und Einkommensabhängig
Nahe Stadtzentrum und großzügiges Grundstück! Jetzt freie Raumplanung genießen mit Massa
38126 Braunschweig
Die vollständige Adresse der Immobilie erhalten Sie vom Anbieter.
Auf Karte anzeigen
Die vollständige Adresse der Immobilie erhalten Sie vom Anbieter.
Finanzierungszertifikat
In nur zwei Minuten zu Ihrem persönlichen Finanzierungszertifkat.
Infos
| Haustyp | Doppelhaushaelfte |
|---|---|
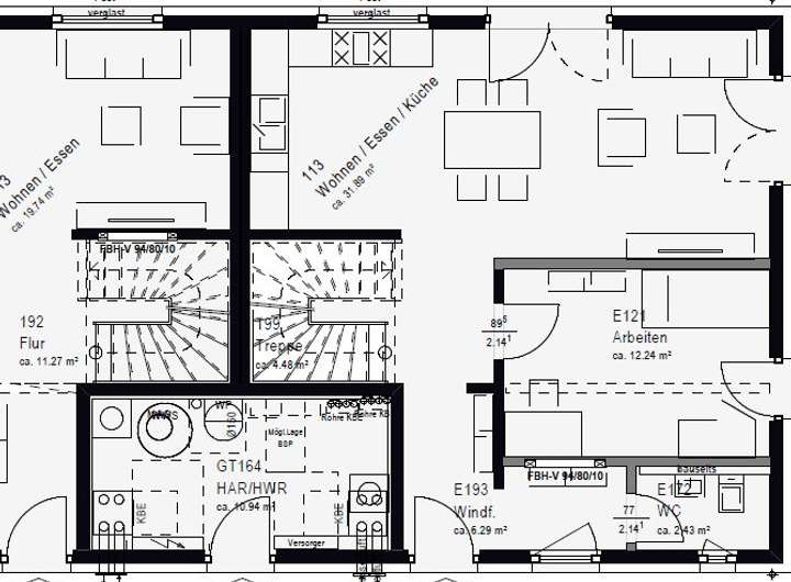
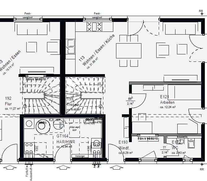
| Wohnfläche ca. | 125 m2 |
| Grundstücksfläche | 449 m2 |
| Zimmer | 5 |
| Schlafzimmer | 5 |
| Badezimmer | 2 |
Kosten
| Kaufpreis |
531.745 € |
|---|---|
| Provision | Nein |
Finanzierungsrechner:
Kaufpreis:
600.000 €
Eigenkapital:
600.000 €
Monatliche Rate
0 €
Effektiver Jahreszins
0 %
Sollzinsbindung
10 Jahre
Bausubstanz & Energieausweis
| Baujahr | 2026 |
|---|---|
| Heizungsart | Fußbodenheizung |
Beschreibung des Objekts
Ausstattung
Was Dein Massa Haus ausmacht?
- Freie Grundrissgestaltung inklusive (Fenster & Wandverschiebungen)!
- höchste Energieeffizienz bis hin zum Passivhaus
- Sonderkonditionen bei der Finanzierung mit regulären Zinsnachlässen bis zu 0,9% sowie vielen weiteren Vorteilen!
- Baugrundstück
- Festpreisgarantie 15 Monate (21 Monate möglich!)
- Gesundes Bauen & wohnen, Tüv- zertifiziert!
- trendiges und anpassbares Design; Hausvergrößerungen, Anbauteile u.v.m.
- flexible Ausbaukonzepte, jetzt auf Wunsch zusätzlich sparen mit mehr Eigenleistung!
- Architektenleistung / Bauantragsplanung
- Qualität " Made in Germany"
- Freiraum mit Raumhöhe 2,75m bereits im Standard!
- 5 Fach Versicherungsschutzpaket enthalten!
- u.v.m. Noch Fragen? Rufnummer: 0162 7170322
über 45.000 glückliche Massa- Baufamilien können sich nicht irren!!!
*Abbildung mit Sonderwünschen
* zzgl. Restarbeiten und Baunebenkosten
Lage
Das Grundstück befindet sich direkt an der Helmstedter Str. in Braunschweig.
Bitte beachten: Auf Wunsch können wir mit Satteldach auch 2 Vollgeschosse + ausgebautem Dachgeschoss errichten (2,5 Geschosse). Dies ist vor allem sinnvoll, wenn deutlich mehr Wohnfläche gewünscht wird.
Sollte Dir das Grundstück nicht zusagen, suchen wir gerne für Dich ein anderes!
Wir bauen Dein Traumhaus natürlich auch auf Deinem vorhandenen Grundstück.
Profitiere als Kunde vom Know How des Marktführers bei der Grundstückssuche!
Sonstige Angaben
Der angebotene Grundriss passt nicht?
Wähle jetzt zwischen ca. 140 verschieden Haustypen, plane ein zusätzliches Anbauteil oder verlängere Dein Haus nach Belieben!
Das angebotene Grundstück passt nicht?
Jetzt gratis Grundstücksservice nutzen und von unserem Netzwerk aus Privatpersonen, Bauherren, Makler und Investoren profitieren!
Dank unseres Netzwerks und unser Know How bei der Grundstückssuche profitieren viele Bauherren von unserem Grundstücksservice bevor die Grundstücke im Internet beworben werden!
Keine Kosten, kein Risiko!
Warum wir so etwas machen? Weil wir Dir dabei helfen möchten Deinen Traum zu verwirklichen! Rufe am besten noch heute an und vereinbare einen Beratungstermin unter: 0162 7170322.
Du möchtest ein Grundstück verkaufen?
Bei mir bist Du genau richtig! Keine Maklergebühren, kein Risiko, kostenfreie Bewertung und Bebaubarkeitsanalyse.
Möchtest du eine Eigentumswohnung oder Altbau verkaufen um Dein Traumhaus verwirklichen zu können?
Hier wird Dir mit individuellen Finanzierungslösungen und einem Top- Netzwerk mit ausschließlich sehr guten und bewährten Maklern weitergeholfen!
Herzliche Grüße
Christian Lehmann
Weitere Dokumente
NachhaltigkeitGrundriss
rechte WE
>
>
rechte WE OG
>
>
Adresse
38126 Braunschweig
Interessante Orte
Preis- und Lageinformationen
Preistrend für Bestandsimmobilien in Südstadt-Rautheim-Mascherode