Ein Zuhause mit viel Raum und Möglichkeiten – freistehendes Einfamilienhaus mit großem Grundstück in ruhiger Lage!
Dieses Einfamilienhaus aus dem Jahr 1973 liegt in einem angenehmen Wohnumfeld von Edewecht/Portsloge auf einem weitläufigen Grundstück. Auf zwei Wohnebenen sowie mit Keller und Nebengebäuden bietet die Immobilie außergewöhnlich viel Platz – ideal für Familien oder Mehrgenerationenwohnen unter einem Dach. Der Zustand ist sanierungsbedürftig, zugleich überzeugt das Haus durch solide Grundsubstanz und einen großzügigen, gut nutzbaren Grundriss.
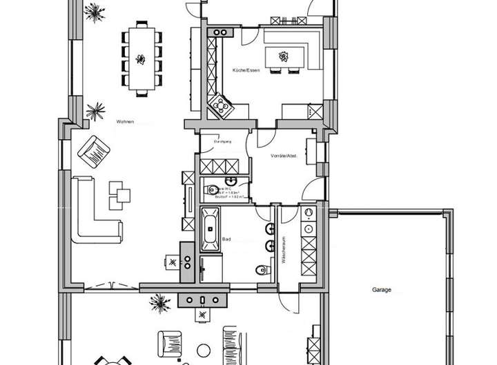
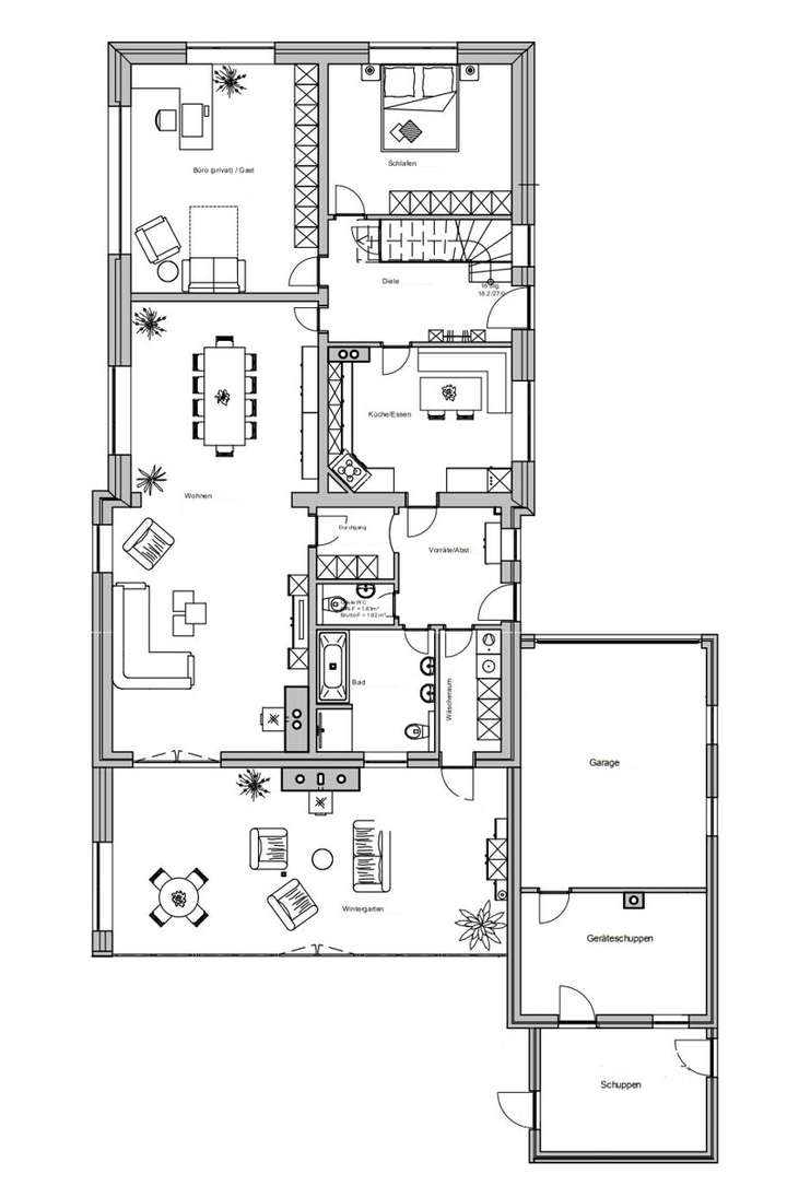
Im Erdgeschoss empfängt Sie eine zentrale Diele. Von hier aus öffnen sich der große Wohnbereich sowie der sehr großzügige Wintergarten mit weitem Blick in den Garten. Die Küche mit Essplatz ist praktisch geschnitten und bietet Raum für eine moderne Wohnküche. Ein Schlafzimmer auf dieser Ebene ermöglicht komfortables Wohnen, ergänzt durch ein weiteres, vielseitig nutzbares Zimmer, etwa als Büro oder Gästezimmer. Tageslichtbad und Gäste-WC sowie Abstell- und Hauswirtschaftsflächen runden das Erdgeschoss ab.
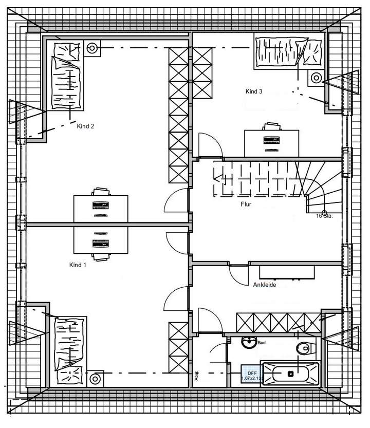
Das Dachgeschoss bietet mehrere gut geschnittene Zimmer für Kinder, Gäste oder Homeoffice, ergänzt durch ein weiteres Bad, eine Ankleide und Nebenräume. Auch hier eröffnet die Aufteilung viel Gestaltungsspielraum für moderne Wohnideen.
Im Keller stehen zusätzliche Nutzräume für Technik und Vorrat bereit. Eine Garage sowie weitere Schuppen bieten reichlich Stauraum und Platz für Werkstatt oder Gartenbedarf. Highlight ist das große Grundstück mit viel Privatsphäre und Raum für Garten-, Spiel- oder Erweiterungsideen.
Haben wir Ihr Interesse geweckt? Gerne stellen wir Ihnen diese besondere Immobilie bei einer persönlichen Besichtigung vor und vermitteln auch auf Wunsch den Kontakt zu erfahrenen Finanzierungsspezialisten.
6666 - Gestalten statt suchen: Einfamilienhaus mit Traumgrundstück in Edewecht!
26188 Edewecht
Die vollständige Adresse der Immobilie erhalten Sie vom Anbieter.
Auf Karte anzeigen
Die vollständige Adresse der Immobilie erhalten Sie vom Anbieter.
Finanzierungszertifikat
In nur zwei Minuten zu Ihrem persönlichen Finanzierungszertifkat.
Infos
| Haustyp | Einfamilienhaus |
|---|---|
| Wohnfläche ca. | 255 m2 |
| Nutzfläche | 76,34 m2 |
| Grundstücksfläche | 1.500 m2 |
| Bezugsfrei ab | nach Vereinbarung |
| Zimmer | 7 |
| Schlafzimmer | 6 |
| Badezimmer | 2 |
Kosten
| Kaufpreis |
289.000 € |
|---|---|
| Provision |
3,57 % vom Kaufpreis inkl. MwSt. |
Finanzierungsrechner:
Kaufpreis:
600.000 €
Eigenkapital:
600.000 €
Monatliche Rate
0 €
Effektiver Jahreszins
0 %
Sollzinsbindung
10 Jahre
Bausubstanz & Energieausweis
| Baujahr | 1973 |
|---|---|
| Wesentliche Energieträger | Gas |
| Energieausweis | liegt vor |
| Energieausweistyp | Bedarfsausweis |
| Energieverbrauchskennwert | 310,0 kWh/(m²*a) |
| Energieeffizienzklasse | H |
310,0
kWh/(m²*a)
Energieeffizienzklasse H
- A+
- A
- B
- C
- D
- E
- F
- G
- H
- 0
- 25
- 50
- 75
- 100
- 125
- 150
- 175
- 200
- 225
- >250
Beschreibung des Objekts
Ausstattung
Ausstattungsmerkmale dieses attraktiven Einfamilienhauses sind u.a.:
- ruhige Wohnlage
- durchdachter Grundriss
- Wintergarten
- großzügiger Garten
- Garage & Geräteschuppen
- Kamin
- zwei Tageslichtbäder und separates Gäste-WC
- Teilweise unterkellert
- Außenjalousien
- Gasheizung aus dem Jahre 2010
- und, und, und.
Eine detaillierte Beschreibung würde den Rahmen sprengen, daher empfehlen wir Ihnen eine Besichtigung, sodass Sie sich selbst ein Bild von der attraktiven Immobilie machen können.
Lage
Das Einfamilienhaus befindet sich im Edewechter Ortsteil Portsloge, reizvoll gelegen zwischen Edewecht und Bad Zwischenahn – und damit in einer der gefragtesten Wohnlagen der Gemeinde. Die Umgebung ist geprägt von der typischen Ammerländer Landschaft mit weiten Feldern, Wiesen und viel Grün. Wer naturnah wohnen und dennoch gut angebunden sein möchte, findet hier den idealen Lebensmittelpunkt für die ganze Familie.
Portsloge selbst ist ein gewachsener, ruhiger Ortsteil mit dörflichem Charakter und hoher Lebensqualität. Das Zentrum von Edewecht ist in wenigen Minuten erreichbar und bietet eine sehr gute Infrastruktur: Einkaufsmöglichkeiten für den täglichen Bedarf, Schulen, Kindergärten, Haus- und Fachärzte, Apotheken sowie Banken befinden sich in komfortabler Nähe. Auch gastronomisch ist Edewecht gut aufgestellt – mit Restaurants, Cafés und Bistros für jede Gelegenheit.
Die Verkehrsanbindung ist ebenfalls überzeugend. Über nahegelegene Bushaltestellen bestehen regelmäßige Verbindungen unter anderem nach Oldenburg und Bad Zwischenahn. Der nächstgelegene Bahnhof befindet sich in Bad Zwischenahn. Oldenburg als Universitäts- und Oberzentrum der Region ist nur rund eine Viertelstunde entfernt und ergänzt das Angebot mit vielfältigen Kultur-, Shopping- und Freizeitmöglichkeiten.
Für aktive Familien ist die Lage besonders attraktiv: Sport- und Reitvereine, Tennisanlagen und ein Hallen- bzw. Freizeitbad bieten zahlreiche Möglichkeiten direkt in der Umgebung. Naherholungsgebiete wie der Wildenloh oder das beliebte Bad Zwischenahner Meer sind schnell erreicht. Das Ammerland ist zudem bekannt für sein hervorragend ausgebautes Rad- und Wegenetz – ideal für ausgedehnte Spaziergänge, Fahrradtouren und entspannte Stunden im Grünen.
Insgesamt bietet Portsloge eine ruhige, familienfreundliche Wohnlage mit viel Natur, guter Infrastruktur und kurzen Wegen zu den umliegenden Zentren – perfekt für ein dauerhaftes Zuhause.
Sonstige Angaben
Wichtige Hinweise:
Alle Angaben zum Objekt beruhen auf den Angaben des Eigentümers. Für die Vollständigkeit und Richtigkeit dieser Daten übernehmen wir daher grundsätzlich keine Gewähr. Irrtümer sowie Zwischenvermietung bleiben vorbehalten.
Wir bitten um Verständnis dafür, dass wir Informationen zu unseren Objekten nur erteilen, wenn Sie bei ihren Anfragen ihre vollständige Postanschrift, E-Mail und Telefonnummer angeben.
Es ist möglich, dass Sie dieses Objekt auch von anderen Maklern aus der Immobilienbörse Weser-Ems angeboten bekommen. In dem Fall wenden Sie sich an den Makler Ihres Vertrauens.
Nach GEG § 80 Abs. 4 muss im Falle des Verkaufs von Ein- und Zweifamilienhäusern ein kostenfreies, informatorisches Beratungsgespräch mit einer nach § 88 GEG ausstellungsberechtigten Person zum Energieausweis geführt werden.
Grundriss
Grundriss EG
>
>
Grundriss OG
>
>
Grundriss Keller
>
>
Adresse
26188 Edewecht
Interessante Orte
Preis- und Lageinformationen
Preistrend für Bestandsimmobilien in Edewecht