Dieses im Jahr 1973 erbaute Reihenendhaus wurde 2012 vollständig modernisiert und befindet sich in einem modernen und sehr gepflegten Zustand. Auf ca. 109m² Wohnfläche und vier Zimmern bietet das Haus Platz für die ganze Familie. Neben einem liebevoll angelegten Garten mit eingelassenem Pool gehören auch ein Keller mit Partyabteil, ein geräumiges Carport für das Motorad oder den Anhänger sowie eine Garage auf dem nahegelegenen Garagenhof zur Immobilie. Das 343m² große Grundstück überzeugt durch seine pflegeleichte Gestaltung und die tolle Lage in direkter Nähe zum Hasport See.
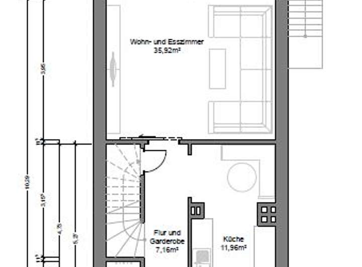
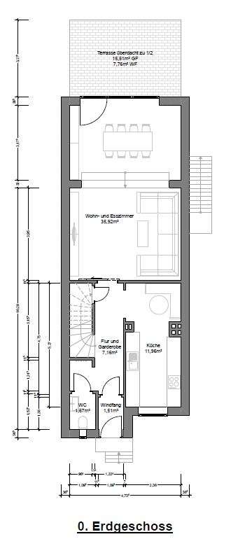
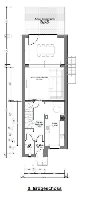
Im EG erwarten Sie ein modernisiertes Gäste-WC mit Fenster, eine geräumige Küche mit Einbauküche und das großzügige Wohn- und Esszimmer mit direktem Zugang zur Terrasse und in den Garten. Das Wohn- und Esszimmer wird durch den Kamin abgerundet.
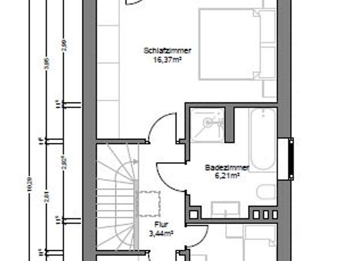
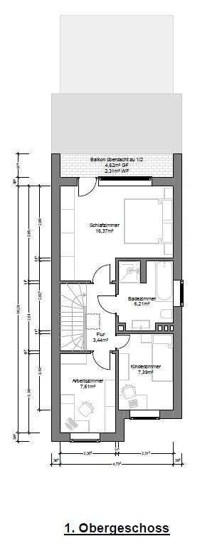
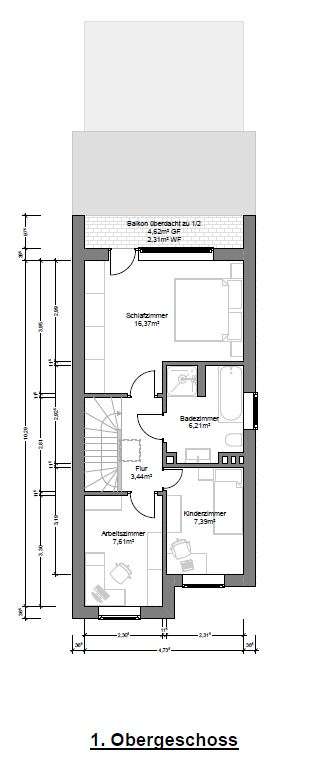
Das OG bietet ein helles Vollbad mit Fenster, ein Kinderzimmer sowie ein Büro und ein Schlafzimmer mit Zugang zum Balkon. Im Obergeschoss sind Außenrollläden in den Schlafräumen vorhanden.
Das gesamte Haus wurde im Jahr 2012 modernisiert. Hierbei wurden grundsätzliche Dinge wie die Leitungen, die Elektrik, die Gasheizung und die Fenster auf einen zeitgemäßen Stand gebracht. Ebenfalls wurden die Bäder saniert und und im Jahr 2024 wurde eine PV-Anlage mit Stromspeicher installiert. Zusätzlich wurden im ganzen Haus Lan-Kabel verlegt.
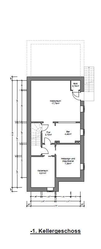
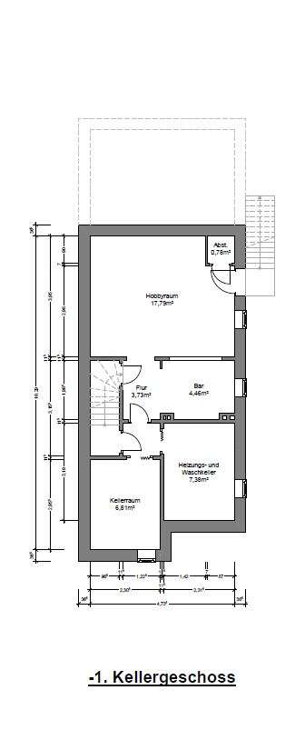
Im Kellergeschoss befinden sich ein Vorratsraum mit Anschluss für Waschmaschine und Trockner sowie die moderne Gasheizung der Marke Vaillant mit Warmwasserspeicher. Ebenfalls wurde hier ein Partykeller eingerichtet. Zusätzlich steht ein überdachter Seiteneingang zur Verfügung.
Das Haus wurde seit der Modernisierung stets vom Eigentümer selbst bewohnt, sehr pfleglich behandelt und befindet sich somit in einem tadelosen Zustand. Es bietet Familien ein attraktives Zuhause mit viel Platz, einem schönen Garten und einer ruhigen Wohnlage. Die Einfahrt vor dem Haus ist explizit nicht für Autos geeignet.
Delmenhorst-Hasport | Vollständig modernisiertes Reihenendhaus mit PV-Anlage & Garage auf sep. Hof
27755 Delmenhorst
Die vollständige Adresse der Immobilie erhalten Sie vom Anbieter.
Auf Karte anzeigen
Die vollständige Adresse der Immobilie erhalten Sie vom Anbieter.
Finanzierungszertifikat
In nur zwei Minuten zu Ihrem persönlichen Finanzierungszertifkat.
Infos
| Haustyp | Reiheneckhaus |
|---|---|
| Etagenzahl | 2 |
| Wohnfläche ca. | 109 m2 |
| Nutzfläche | 40,95 m2 |
| Grundstücksfläche | 342,75 m2 |
| Bezugsfrei ab | 01.05.2026 |
| Zimmer | 4 |
| Schlafzimmer | 3 |
| Badezimmer | 1 |
| Garage/Stellplatz | Garage |
| Anzahl Garage/Stellplatz | 1 |
Kosten
| Kaufpreis |
275.000 € |
|---|---|
| Provision |
3,57% inkl. gesetzl. MwSt. (Käuferprovision) (nach §656c BGB n.F) vom beurkundeten Kaufpreis. |
Finanzierungsrechner:
Kaufpreis:
600.000 €
Eigenkapital:
600.000 €
Monatliche Rate
0 €
Effektiver Jahreszins
0 %
Sollzinsbindung
10 Jahre
Bausubstanz & Energieausweis
| Baujahr | 1973 |
|---|---|
| Objektzustand | Vollständig Renoviert |
| Qualität der Austattung | Normal |
| Heizungsart | Gas-Heizung |
| Wesentliche Energieträger | Gas |
| Energieausweis | liegt vor |
| Energieausweistyp | Bedarfsausweis |
| Energieverbrauchskennwert | 222,6 kWh/(m²*a) |
| Energieeffizienzklasse | G |
222,6
kWh/(m²*a)
Energieeffizienzklasse G
- A+
- A
- B
- C
- D
- E
- F
- G
- H
- 0
- 25
- 50
- 75
- 100
- 125
- 150
- 175
- 200
- 225
- >250
Beschreibung des Objekts
Ausstattung
+ 2-fach verglaste Kunststoffenster (2012/2023)
+ 3-Adrige Elektrik (2012)
+ Vaillant Gas-Therme (2012)
+ Kamin mit Betriebserlaubnis (6 KW)
+ PV-Anlage 5 KW (2024)
+ Stromspeicher (2024)
+ saniertes Flachdach (2019)
+ Neue Leitungen (2012)
+ Lan-Verkabelung (2012)
+ Einbauküche
+ Vollbad mit Fenster
+ Gäste-WC
+ Außenrolläden in den Schlafzimmern
+ Vollkeller mit überdachtem Seitenausgang
+ Putzfassade (45cm)
+ Außenpool (4x4x1,2)
+ überdachte Terrasse
+ Balkon
+ Garage auf separatem Garagenhof
+ Holzunterstand neben dem Haus
+ Grundwasseranschluss
Lage
Die Immobilie befindet sich in Delmenhorst-Hasport, errichtet in einer ruhigen Seitenstraße. Alle Einrichtungen des täglichen Bedarfs sind in wenigen Minuten zu erreichen. In unmittelbarer Nähe befinden sich die Grundschule Annenheide, welche sich fußläufig erreichen lässt. Die Schwerpunkte der wohnortnahen Versorgung befinden sich an der Seestraße und der Annenheider Straße. An der Seestraße gibt es ein vielfältiges Einzelhandelsangebot mit einem Möbelhaus, eine Fachhandlung für Heimtierbedarf, einen Drogeriemarkt, einen Bäcker, einen Supermarkt und einen Elektronikfachmarkt.
An der Annenheider Straße gibt es zudem einen Lebensmittel-, Textil- und Baudiscounter, einen Bäcker und einen Getränkemarkt. Hasport/Annenheide verfügt im Norden über eine eigene Autobahnauf- bzw. -abfahrt (Delmenhorst-Hasport). Über die Autobahn 28 ist Bremen innerhalb von 20 Minuten, Oldenburg innerhalb von 30 Minuten erreichbar.
Sonstige Angaben
Wir weisen darauf hin, dass die von uns weitergegebenen Objektinformationen, Unterlagen, Pläne etc. vom Auftraggeber stammen. Eine Haftung für die Richtigkeit oder Vollständigkeit der Angaben übernehmen wir nicht. Es obliegt daher unseren Kunden, die darin enthaltenen Objektinformationen und Angaben auf ihre Richtigkeit hin zu überprüfen. Alle Immobilienangebote sind freibleibend und vorbehaltlich Irrtümer, Zwischenverkauf- und Vermietung oder sonstiger Zwischenverwertung.
Geldwäsche: Die Rutz Immobilien GmbH ist als Immobilienmaklerunternehmen gemäß § 2 Abs. 1 Nr. 14 und § 11 Abs. 1, 2 des Geldwäschegesetzes (GwG) verpflichtet, die Identität ihrer Vertragspartner zu überprüfen, sobald eine Geschäftsbeziehung entsteht oder ernsthaftes Interesse an einem Immobilienkaufvertrag besteht.
Dafür erfassen wir nach § 11 Abs. 4 GwG die relevanten Daten Ihres Personalausweises (bei natürlichen Personen), beispielsweise durch eine Kopie. Handelt es sich um eine juristische Person, ist ein Handelsregisterauszug erforderlich, aus dem der wirtschaftlich Berechtigte hervorgeht.
Das Geldwäschegesetz verpflichtet uns, diese Unterlagen für einen Zeitraum von fünf Jahren aufzubewahren. Zudem sind Sie als unser Vertragspartner gemäß § 11 Abs. 6 GwG zur Mitwirkung verpflichtet.
Grundriss
Grundriss EG
>
>
Grundriss OG
>
>
Grundriss KG
>
>
Adresse
27755 Delmenhorst
Interessante Orte
Preis- und Lageinformationen
Preistrend für Bestandsimmobilien in Hasport/Annenheide