Im Baugebiet Streubelinger Dorf in Lemwerder entsteht dieser moderne DHH-Neubau im Bungalowstil, der komfortables Wohnen auf einer Ebene mit hoher Energieeffizienz und zeitgemäßer Ausstattung verbindet.
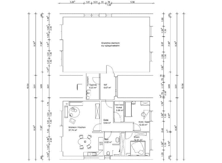
Auf ca. 85 m² Wohnfläche bietet das Haus eine durchdachte Raumaufteilung mit 3 Zimmern. Ideal für Paare, kleine Familien, Best Ager oder Wohnen & Arbeiten im Homeoffice. Der offen gestaltete Wohn- und Essbereich mit integrierter Küche bildet das Herzstück des Hauses und schafft eine helle, einladende Wohnatmosphäre.
Zwei weitere Zimmer lassen sich flexibel als Schlaf-, Kinder- oder Arbeitszimmer nutzen. Ergänzt wird das Raumangebot durch ein modernes Bad mit Dusche, ein separates Gäste-WC sowie einen Hauswirtschaftsraum und zusätzlichen Abstellraum – kurze Wege und hoher Alltagskomfort inklusive.
Zum Angebot gehört ein ca. 338 m² großes Grundstück in ruhiger Wohnlage. Das Baugebiet ist voll erschlossen und bietet eine solide infrastrukturelle Grundlage für langfristige Planungssicherheit.
Gesamtpaket auf einen Blick:
- Neubau-Bungalow
- ca. 85 m² Wohnfläche
- 3 Zimmer
- ca. 338 m² Grundstück
- Gesamtkaufpreis: 382.500 €
Ein attraktives Komplettangebot aus Haus und Grundstück, das modernes, barrierearmes Wohnen mit langfristiger Wertstabilität verbindet.
Energieeffizient & provisionfrei: Schlüsselfertiger KfW-40 Bungalow bei Bremen
27809 Lemwerder
Die vollständige Adresse der Immobilie erhalten Sie vom Anbieter.
Auf Karte anzeigen
Die vollständige Adresse der Immobilie erhalten Sie vom Anbieter.
Finanzierungszertifikat
In nur zwei Minuten zu Ihrem persönlichen Finanzierungszertifkat.
Infos
| Haustyp | Bungalow |
|---|---|
| Etagenzahl | 1 |
| Wohnfläche ca. | 85 m2 |
| Nutzfläche | 6 m2 |
| Grundstücksfläche | 338 m2 |
| Zimmer | 3 |
| Schlafzimmer | 2 |
| Badezimmer | 1 |
| Garage/Stellplatz | Carport |
| Anzahl Garage/Stellplatz | 1 |
Kosten
| Kaufpreis |
382.500 € |
|---|---|
| Provision | Nein |
Finanzierungsrechner:
Kaufpreis:
600.000 €
Eigenkapital:
600.000 €
Monatliche Rate
0 €
Effektiver Jahreszins
0 %
Sollzinsbindung
10 Jahre
Bausubstanz & Energieausweis
| Baujahr | 2026 |
|---|---|
| Bauphase | Haus in Planung (projektiert) |
| Qualität der Austattung | Gehoben |
| Heizungsart | Wärmepumpe |
| Wesentliche Energieträger | Strom |
Beschreibung des Objekts
Ausstattung
Das Haus wird schlüsselfertig übergeben und überzeugt durch eine hochwertige, zukunftssichere Ausstattung:
- KfW-40-Effizienzhaus
- Photovoltaikanlage inklusive
- Luft-Wärmepumpe
- Fußbodenheizung in allen Räumen
- Moderne Sanitärausstattung
- Elektrische Rollläden im gesamten Haus
- 3-fach-Wärme- und Schallschutzverglasung
- Großzügige Terrasse
- Eigene Auffahrt
Lage
Das Streubelinger Dorf verbindet naturnahe Ruhe, maritimes Flair und eine sehr gute Verkehrsanbindung. Eingebettet in ein grünes, gewachsenes Umfeld bietet die Lage hohe Lebensqualität für Familien, Paare und Berufspendler.
Über die B212 sind Bremen und Delmenhorst in ca. 30 Minuten, Oldenburg in rund 35 Minuten erreichbar. Damit wohnen Sie ruhig im Grünen und profitieren gleichzeitig von der Nähe zu den wirtschaftlichen und kulturellen Zentren der Region.
Sonstige Angaben
Provision:
Der Erwerb erfolgt provisionfrei für den Käufer.
Finanzierung:
Die KfW-Programme 296, 297 und 300 ermöglichen attraktive Finanzierungsmodelle. Beispiel: 394.000 € Darlehen mit monatlichen Raten zwischen 1.142 € und 1.335 € in den ersten zehn Jahren (Stand 03.02.2026).
Adresse
27809 Lemwerder
Interessante Orte
Preis- und Lageinformationen
Preistrend für Bestandsimmobilien in Lemwerder