Dieses durchdacht geschnittene Mittelreihenhaus überzeugt durch eine klassische Architektur, die funktionales Wohnen mit gemütlichen Rückzugsorten auf drei Ebenen verbindet. Schon beim Betreten des Objekts über den vorgelagerten Eingangsbereich wird die klare Struktur ersichtlich. Im Erdgeschoss empfängt Sie zunächst ein praktischer Windfang, der auch Zugang zum separaten Gäste-WC bietet – ein unverzichtbares Detail für den Besucherempfang. Von hier aus gelangen Sie in die innere Diele, die als zentraler Verteiler fungiert und das Treppenhaus integriert.
Das Herzstück des familiären Miteinanders bildet das großzügige Wohnzimmer. Der Raum ist so geschnitten, dass sich Wohnlandschaft und Essbereich harmonisch kombinieren lassen. Ein besonderes Highlight ist die direkte Verbindung zum Außenbereich: Vom Wohnzimmer aus treten Sie auf eine beeindruckend große Terrasse, die sich über die gesamte Breite des Hauses erstreckt. Dieser Außenbereich bietet enorm viel Platz für Loungemöbel oder einen großen Esstisch im Freien und verfügt über einen Treppenabgang, der die Verbindung zum Garten herstellt. Die Küche ist als eigenständiger, geschlossener Raum konzipiert und vom Flur aus begehbar, was eine angenehme Trennung von Koch- und Wohnbereich ermöglicht und Gerüche fernhält.
Das offeriert insgesamt drei Zimmer, die flexibel genutzt werden können. Zwei der Räume bieten eine ähnliche, komfortable Größe und eignen sich hervorragend als Eltern- oder Kinderzimmer. Das dritte Zimmer ist etwas kompakter geschnitten und bietet sich ideal als Arbeitszimmer oder gemütliches Reich für ein kleineres Kind an. Ergänzt wird diese Etage durch das zentral gelegene Badezimmer.
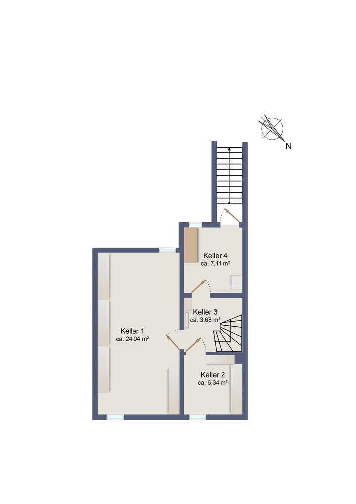
Der Keller verfügt über einen sehr großen Hauptraum, der weit über reine Lagerfläche hinausgeht und sich perfekt als Hobbyraum eignet. Ein separater Bereich ist mit Anschlüssen für die Waschmaschine ausgestattet, sodass die Hauswirtschaft bequem im Untergeschoss erledigt werden kann.
4-Zimmer Mittelreihenhaus in Sackgassenlage von Hamburg-Billstedt
22115 Hamburg
Die vollständige Adresse der Immobilie erhalten Sie vom Anbieter.
Auf Karte anzeigen
Die vollständige Adresse der Immobilie erhalten Sie vom Anbieter.
Finanzierungszertifikat
In nur zwei Minuten zu Ihrem persönlichen Finanzierungszertifkat.
Infos
| Haustyp | Reihenmittelhaus |
|---|---|
| Wohnfläche ca. | 86 m2 |
| Nutzfläche | 42,93 m2 |
| Grundstücksfläche | 196 m2 |
| Zimmer | 4 |
| Schlafzimmer | 3 |
| Badezimmer | 1 |
Kosten
| Kaufpreis |
339.000 € |
|---|---|
| Provision |
3,57% |
Finanzierungsrechner:
Kaufpreis:
600.000 €
Eigenkapital:
600.000 €
Monatliche Rate
0 €
Effektiver Jahreszins
0 %
Sollzinsbindung
10 Jahre
Bausubstanz & Energieausweis
| Baujahr | 1973 |
|---|---|
| Heizungsart | Fernwärme |
| Wesentliche Energieträger | Fernwärme |
| Energieausweis | liegt vor |
| Energieausweistyp | Bedarfsausweis |
| Energieverbrauchskennwert | 130,8 kWh/(m²*a) |
| Energieeffizienzklasse | E |
130,8
kWh/(m²*a)
Energieeffizienzklasse E
- A+
- A
- B
- C
- D
- E
- F
- G
- H
- 0
- 25
- 50
- 75
- 100
- 125
- 150
- 175
- 200
- 225
- >250
Beschreibung des Objekts
Ausstattung
Besondere Highlights:
+ Baujahr: 1973
+ Wohnfläche: Ca.: 86,19 m²
+ Grundstück: Ca.: 196 m²
+ 4 Zimmer
+ 2 Badezimmer
+ Vollunterkellert
+ Ruhige Nachbarschaft
+ Kurze Gehwege zu Einkaufsmöglichkeiten
+ Familienfreundliche Umgebung
+ Nähe zu öffentlichen Verkehrsmitteln
+ Gute Raumaufteilung
+ Viel Stauraum und Platz für Hobbys im Keller
+ Große Terasse mit Garten
+ Lichtdurchflutete Küche
+ Gefragte Lage
+ Viel Fensterfläche
+ Gartenschuppen
+ Individuelles Umsetzungspotenzial
+ Gute Anbindung in die Stadt
+ Fernwärmeheizung
Die Immobilie befindet sich in einem Sanierungsbedüftigen Zustand.
Nähere Details erläutere ich Ihnen gerne in einem persönlichen Gespräch.
Machen Sie sich selbst ein Bild von diesem schönen Objekt und vereinbaren Sie jetzt Ihren individuellen Besichtigungstermin.
Lage
Die angebotene Immobilie befindet sich in einem gewachsenen Wohngebiet im Osten Hamburgs, das sich durch seine ruhige, familienfreundliche Atmosphäre und eine hervorragende Infrastruktur auszeichnet. Die Umgebung ist geprägt von gepflegten Einfamilienhäusern, grünen Vorgärten und einer angenehmen Nachbarschaft, die besonders für Menschen attraktiv ist, die Ruhe schätzen und dennoch eine gute Anbindung an die Stadt wünschen.
Nur wenige Gehminuten entfernt finden sich mehrere Einkaufsmöglichkeiten für den täglichen Bedarf, darunter Supermärkte, Bäckereien und kleinere Fachgeschäfte. Auch Ärzte, Apotheken sowie Dienstleistungsangebote sind bequem erreichbar. Für Familien besonders interessant sind die nahegelegenen Kitas und Schulen, die sowohl fußläufig als auch mit dem Fahrrad optimal angebunden sind.
Erholungssuchende profitieren von verschiedenen Grünflächen und Parks in der Umgebung, die zu Spaziergängen und sportlichen Aktivitäten einladen. Radwege sowie mehrere Spielplätze tragen zusätzlich zur hohen Lebensqualität des Quartiers bei. Das nahegelegene Naturschutzgebiet und verschiedene Freizeitangebote sorgen dafür, dass man hier sowohl städtische als auch naturnahe Vorteile genießen kann.
Die Anbindung an den öffentlichen Nahverkehr ist hervorragend: Bushaltestellen mit regelmäßig fahrenden Linien liegen in unmittelbarer Nähe und gewährleisten eine schnelle Verbindung zu umliegenden Stadtteilen sowie zu wichtigen U- und S-Bahn-Knotenpunkten. Auch mit dem Auto erreicht man die Hamburger Innenstadt, die umliegenden Zentren und die Autobahnen unkompliziert und zügig.
Insgesamt überzeugt die Lage durch ihre Kombination aus ruhigem Wohnumfeld, guter Erreichbarkeit und einer vollständigen Versorgung im Alltag – ein idealer Ausgangspunkt für Familien, Berufstätige und alle, die einen attraktiven Wohnstandort im Hamburger Stadtgebiet suchen.
Sonstige Angaben
Sie wollen Ihre Immobilie verkaufen? Sprechen Sie uns an und vereinbaren Sie einen Termin für eine kostenlose Werteinschätzung. Entsprechend Ihrer Vorstellungen erhalten Sie von uns ein für Sie maßgeschneidertes Vermarktungskonzept für Ihre Immobilie.
Dolberg & Uderstadt Immobilien, Ihr Vertrauensmakler seit 1971 – profitieren Sie von der Erfahrung aus 50 Jahren im Verkauf von Immobilien.
Nebenkosten: ca. 2 % Notar- und Gerichtskosten sowie 5,5 % gesetzlicher Grunderwerbsteuer
Käufercourtage: 3,57 % inkl. Mehrwertsteuer
Bitte haben Sie Verständnis dafür, dass auf Wunsch der Verkäufer keine Reservierungen vor Notartermin möglich sind.
Haftungsausschluss: Wir möchten Sie darauf hinweisen, dass sämtliche Angaben auf Grundlage von Eigentümerangaben, nach bestem Wissen und Gewissen, jedoch ohne Gewähr auf Vollständigkeit und Richtigkeit, erfolgen. Irrtum und Zwischenverkauf vorbehalten. Der Makler ist von jeglicher Haftung befreit.
Grundriss
Grundriss EG
>
>
Grundriss OG
>
>
Grundirss KG
>
>
Adresse
22115 Hamburg
Interessante Orte
Preis- und Lageinformationen
Preistrend für Bestandsimmobilien in Billstedt