Charmantes Fachwerkjuwel mit ca.300 qm Wohnfläche sowie Einliegerwohnung in Hotteln – Historisches Wohnen mit grosszügigen Freiraum
Dieses charaktervolle Fachwerkhaus bietet viel Raum für individuelle Gestaltungsmöglichkeiten. Die Immobilie besticht durch die für historische Holzbauten typischen Sichtbalken, die den besonderen Charme des Fachwerks unterstreichen. Ergänzt wird das Angebot durch einen großzügigen Garten mit weitläufigen Grünflächen, einem Sandkasten für Kinder sowie mehreren gemütlich angelegten Bereichen, die zum Verweilen einladen.
Erdgeschoss (Eingangsbereich): Beim Betreten des Hauses empfängt Sie ein einladender Flur. Zur linken und rechten Seite befinden sich jeweils ein Zimmer, die sich ideal als Arbeitszimmer, Gästezimmer oder Schlafzimmer eignen.
Der großzügige Wohnbereich befindet sich im hinteren Teil des Erdgeschosses und geht offen in den Essbereich über. Durch diese offene Gestaltung entsteht ein helles und angenehmes Wohnambiente, das zugleich den charakteristischen Charme des Fachwerks bewahrt.
Vom Wohnzimmer aus besteht direkter Zugang zur südwestlich ausgerichteten Terrasse sowie zum Garten.
Küche : Die großzügig bemessene Wohnküche bietet ausreichend Platz für ein angenehmes Zusammensein. Die Raumaufteilung ist funktional gestaltet und vielseitig nutzbar. Durch die zentrale Anordnung sind Bereiche des Hauses direkt von der Küche aus erreichbar. Hierzu zählen u.a. das Büro, das Badezimmer mit separatem WC, der Hauswirtschaftsraum sowie dem Keller.
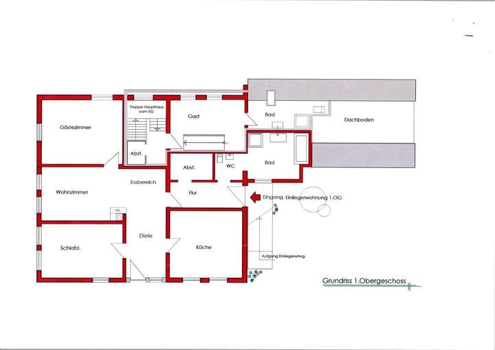
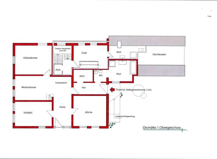
1 Obergeschoss: Auf dieser Ebene befindet sich ein kleiner, flexibel nutzbarer Raum, der sich beispielsweise als Lesezimmer, Arbeitsbereich oder ruhiger Rückzugsort anbietet. Ergänzt wird das Raumangebot durch das großzügig gestaltete Hauptbadezimmer.
Dachgeschoß: Das Dachgeschoss ist über einen Flur erschlossen. Von hier aus sind zwei Kinderzimmer erreichbar, die sich gut für Spiel-, Lern- oder Schlafbereiche eignen. Ergänzt wird diese Ebene durch das Schlafzimmer, dem ein begehbarer Kleiderschrank zugeordnet ist und der zusätzlichen Stauraum bietet.
Einliegerwohnung: Sie überzeugt durch eine großzügige Wohnfläche von ca. 100 m² und bietet drei Zimmer, ein separates Gäste-WC sowie einen Kamin, für eine angenehme Wohnatmosphäre.Die Einheit ist frei beziehbar und eröffnet vielseitige Nutzungsmöglichkeiten – sei es zur Vermietung, für mehrere Generationen unter einem Dach oder als eigenständiger Wohnbereich mit hohem Komfort.
Einfahrt: Sie präsentiert sich einladend und freundlich und bietet mit vier Einstellplätzen ausreichend Platz für die Fahrzeuge der Familie sowie für Gäste oder Mieter.
Fachwerkjuwel mit moderner Einliegerwohnung
31157 Sarstedt
Die vollständige Adresse der Immobilie erhalten Sie vom Anbieter.
Auf Karte anzeigen
Die vollständige Adresse der Immobilie erhalten Sie vom Anbieter.
Finanzierungszertifikat
In nur zwei Minuten zu Ihrem persönlichen Finanzierungszertifkat.
Infos
| Haustyp | Sonstige |
|---|---|
| Etagenzahl | 3 |
| Wohnfläche ca. | 300 m2 |
| Nutzfläche | 352,8 m2 |
| Grundstücksfläche | 637 m2 |
| Bezugsfrei ab | nach Absprache |
| Zimmer | 13 |
| Schlafzimmer | 7 |
| Badezimmer | 3 |
| Anzahl Garage/Stellplatz | 4 |
Kosten
| Kaufpreis |
570.000 € |
|---|---|
| Provision |
3,57 % incl.ges.Mwst Die Provision ist verdient und fällig mit notarieller Beurkundung. Der Immobilienmakler hat einen provisionspflichtigen Maklervertrag in gleicher Höhe mit dem Verkäufer abgeschlossen. |
Finanzierungsrechner:
Kaufpreis:
600.000 €
Eigenkapital:
600.000 €
Monatliche Rate
0 €
Effektiver Jahreszins
0 %
Sollzinsbindung
10 Jahre
Bausubstanz & Energieausweis
| Baujahr | 1900 |
|---|---|
| Letzte Sanierung | 2020 |
| Bauphase | Haus fertig gestellt |
| Objektzustand | Modernisiert |
| Qualität der Austattung | Normal |
| Heizungsart | Fernwärme |
| Wesentliche Energieträger | Bioenergie |
| Energieausweis | liegt zur Besichtigung vor |
Beschreibung des Objekts
Ausstattung
Das Haupthaus ist mit einer effizienten Biogasanlage ausgestattet, die Einliegerwohnung verfügt über eine separate Etagenheizung.
In den vergangenen Jahren wurden gezielte Modernisierungsmaßnahmen vorgenommen. Dazu zählen die Erneuerung der Elektrik sowie teilweise der Austausch der Fenster, der Bodenbeläge und der Bäder.
Zur Ausstattung der Immobilie gehören insgesamt 13 Zimmer, drei Bäder, ein separates Gäste-WC, eine Terrasse, ein Garten vier Stellplätze sowie weitere Flächen,Abstellräume für Fahrräder oder sonstiges.
Lage
Diese Immobilie befindet sich in einer attraktiven Lage in Sarstedt, OT Hotteln die sowohl Ruhe als auch hervorragende Verkehrsanbindungen bietet. Nur einen kurzen Fußweg von 6 Minuten entfernt finden Sie die nächste Haltestelle des öffentlichen Personennahverkehrs (ÖPNV), was Ihnen eine bequeme und schnelle Fortbewegung ermöglicht.
Der Hauptbahnhof ist lediglich 5 Fahrminuten entfernt, sodass Sie zügig an Ihr gewünschtes Reiseziel gelangen können. Für Flugreisende ist der nächste Flughafen in nur 31 Fahrminuten erreichbar, was ideale Bedingungen für Geschäftsreisende und Urlauber schafft.
Im ca. 5 Kilometer entfernten Sarstedt finden Sie alles, was Sie für ein komfortables Leben benötigen: Supermärkte, Schulen, Ärzte und vielfältige Freizeitmöglichkeiten. Die idyllische Umgebung lädt zu Spaziergängen und Outdoor-Aktivitäten ein, während die nahegelegenen Städte Hannover und Hildesheim mit ihrem kulturellen und gastronomischen Angebot leicht erreichbar sind.
Diese Lage vereint somit die Vorzüge einer ruhigen Wohngegend mit exzellenten Verkehrsverbindungen und ist perfekt für diejenigen, die Wert auf eine gute Anbindung und eine angenehme Wohnumgebung legen.
Sonstige Angaben
Ich lade Sie ein, dieses schöne Haus zu besichtigen, um sich einen umfassenden Eindruck von den Räumlichkeiten, der Ausstattung und der Gesamtatmosphäre zu verschaffen.
Bei Interesse stehe ich Ihnen gerne für weitere Informationen und einen Besichtigungstermin zur Verfügung.
Bitte teilen Sie mir Ihre Telefonnummer sowie Ihre E-Mail Adresse mit.
Ich freue mich auf Ihre Rückmeldung.
Immobilienmakler Andreas Fichter
makler-fichter@t-online.de
0171-4282868
Grundriss
Erdgeschoss
>
>
1 Obergeschoss
>
>
Dachgeschoss
>
>
Adresse
31157 Sarstedt
Interessante Orte
Preis- und Lageinformationen
Preistrend für Bestandsimmobilien in Sarstedt